Максимально упростите процесс уборки
Чем меньше усилий требуется для того, чтобы навести порядок, тем лучше. Запаситесь правильным инвентарём: с ним даже генеральная уборка не будет в тягость.
Вытирать пыль салфетками из микрофибры куда быстрее и эффективнее, чем старыми футболками или куском отслужившего своё пододеяльника. Если мыть пол водой с добавлением специального средства, оттереть грязь без особых усилий получится уже с первого раза.
Ненавидите подметать полы? Купите хороший пылесос, и дело с концом.
Вертикальный пылесос Scarlett SC-VC80H10
Компактный вертикальный пылесос — хорошее решение для обладателей маленьких квартир, где сложно найти место для хранения более объёмных моделей. Заодно он избавит вас от необходимости вручную чистить ковры и обивку мягкой мебели.
Будет совсем хорошо, если пылесос оснащён циклонным фильтром, а не мешком для сбора пыли.
Пылесос с технологией «Мультициклон» Scarlett IS-VC82C07
Накопившаяся в мешке пыль препятствует свободной циркуляции воздуха, поэтому мощность всасывания по ходу уборки падает. Модели с циклонными фильтрами лишены этого недостатка.
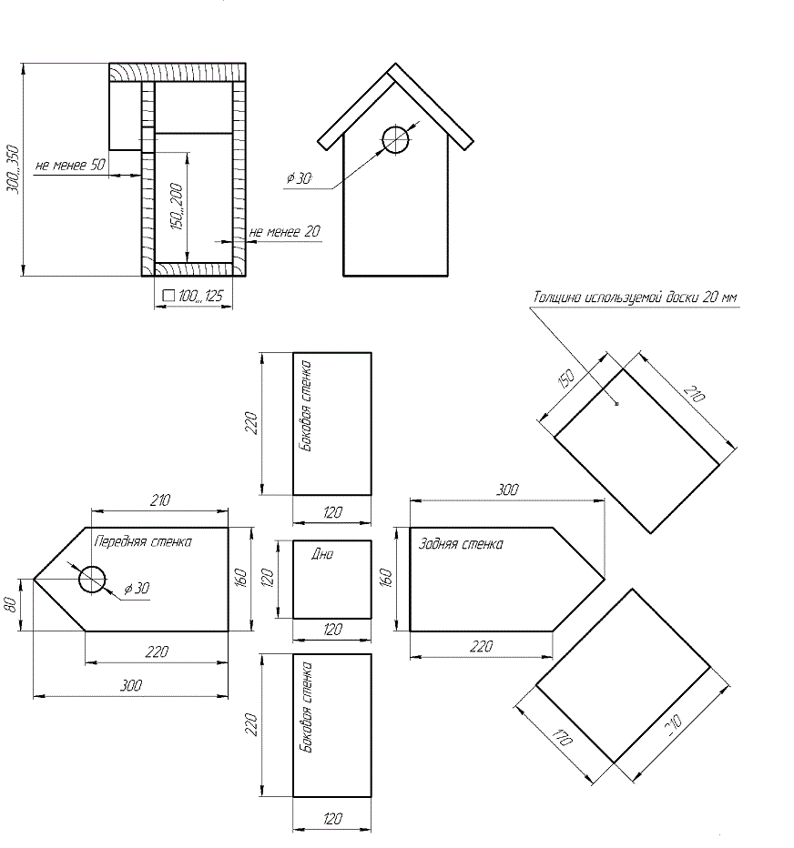
Мастер-класс деревянного домика
Домик для кукол своими руками из коробок или фанеры имеет один существенный недостаток: хрупкость конструкции. Большие модели, совмещающие в себе функции комода или стеллажа, требуют надежных креплений и изготавливаются из дерева.
https://youtube.com/watch?v=1l_0cDEC4PA
Это снизит трудозатраты и компенсирует отсутствие дорогостоящего инструмента. Линия среза, выполненного на профессиональном оборудовании, более точная и ровная, что существенно облегчит дальнейшую обработку дерева. Но, даже в этом случае, процесс изготовления домика остается довольно сложным для неопытных мастеров.
Для работы нужно подготовить материалы и инструменты по списку:
- Деревянный стеллаж.
- Шпатлевка по дереву.
- Лист фанеры толщиной 20-25 мм.
- Лист ДВП для межкомнатных перегородок и задней стены домика.
- Дрель-шуруповерт, набор сверл и шурупы.
- Столярный клей, малярная лента, жидкие гвозди
- Наждачная бумага.
- Грунтовка и белая акриловая краска, универсальные коллеры оранжевого и коричневого цветов, лак.
- Материалы для декора.
- Ножницы, карандаш, линейка, рулетка.
- Толстый картон.
- Кисть и валик.
- Строительный степлер или маленькие гвозди и молоток.
- Ручной лобзик.

Дополнительные материалы заменяются аналогичными или теми, у которых характеристики больше соответствуют задумке. Перед началом работы переделываемый предмет мебели нужно избавить от лишних деталей: дверцы, ящики, направляющие и подобные элементы, которые не пригодятся.
Весь последующий процесс проходит в несколько этапов:
Изготовление простого домика для кукол своими руками начинается с этапа подготовки и обработки получившегося деревянного короба. Поверхность бывшего стеллажа хорошо очистить и обработать наждачной бумагой для снятия старого покрытия. Лишние отверстия, сколы, вмятины заполнить шпатлевкой по дереву. После полного высыхания замазки поверхность отшлифовать.
На боковых стенах наметить карандашом окна. Выпилить лобзиком проемы, предварительно просверлив вспомогательные отверстия. Отшлифовать края до гладкости. Из листа ДВП вырезать межкомнатные перегородки с дверными проемами. Закрепить между полками с помощью клея. Для большей устойчивости к потолку и полу приклеить полоски плотного картона, зажав между ними тонкую межкомнатную стену.
Из толстой фанеры выпилить 2 прямоугольника с одинаковой шириной, равной глубине стеллажа, и разной длиной, которая зависит от длины шкафа. Например, для домика длиной 80 см будет достаточно деталей 55 см и 60 см. Края досок стягиваются шурупами под прямым углом. Для этого вдоль короткой стороны длинной детали просверлить 3-4 отверстия на равном расстоянии друг от друга. В торце второй детали продублировать отверстия. Нанести на места соединения столярный клей и скрепить оба элемента шурупами
Заготовку обработать наждачной бумагой, уделяя особое внимание местам распила. Части домика очистить от пыли и загрунтовать
Это мера способствует лучшему сцеплению краски и клея с поверхностью и уменьшает их расход.
Пока сохнет грунтовка из толстого плотного картона вырезать прямоугольники одинакового размера. Заготовки покрасить оранжевой акриловой краской. Просохший стеллаж покрыть снаружи и изнутри слоем белой акриловой краски. На боковые стены с внешней стороны наклеить картонные «кирпичи» в шахматном порядке, оставляя в кладке небольшие зазоры для большей реалистичности. Крышу покрасить в темно-коричневый цвет и дождаться полного высыхания краски. Затем установить сверху на домик, откорректировать положение и зафиксировать шурупами. Для этого сквозь внутренний стык боковых стен и потолка дрелью просверливаются 3-4 сквозных отверстия в перпендикулярном направление к скатам крыши и ввинчивают шурупы. Всю поверхность домика покрыть матовым лаком. Хорошо просушить. Из ДВП вырезать заднюю стенку. Закрепить по контуру домика строительным степлером или маленькими гвоздиками. Украсить интерьер, расставить игрушечную мебель.
Домик из бумаги в технике оригами
Создание фигурок оригами, среди них и домиков, по готовым схемам служит развитию логического и пространственного мышления ребенка, активации его мыслительных процессов. Заниматься оригами можно в любом месте, например, в очереди к врачу.
А еще у нас есть отличные мастер-классы из картона или бумаги: зимние домики.
Создав собственноручно первые простые домики из бумаги, вы сможете придумать и много других необычайно интересных поделок и почаще мастерить их вместе с вашим любимым ребенком.
Чертежи и размеры бумажного домика
Размеры бумажного домика ограничиваются только размерами и плотностью используемого материала. Из тонкой бумаги большие модели не будут держать форму. В случае, когда материал плотный, но небольшого формата, домик собирается из отдельных деталей.

На местах соединения стен, а также на скатах крыши предусматриваются дополнительные узкие полоски для нанесения клея или двустороннего скотча. В готовых распечатках домики детально прорисованы, их остается только вырезать и склеить. Самостоятельное создание эскиза оставляет место для творчества и многослойности при украшении.
Вариант бумажного домика:
- 4 открытые комнаты, разделенные двумя листами бумаги.
- Базовый чертеж состоит из 2 прямоугольных деталей с поперечными прорезями посередине. Глубина разрезов до половины ширины элементов.
- Размеры заготовок соответствуют высоте и двойной длине будущих комнат.
Кукольный домик для барби своими руками: схема, фото
Безусловно, существуют более простые варианты сделать дочери домик для куклы:
- Купить готовый. Но стоят они заоблачных денег. При этом пластиковые детали оказываются хрупкими, они плохо крепятся друг к другу, домик постоянно распадается.
- Организовать дом в шкафу, тумбочке или этажерке. Наверное, родители в своем далеком детстве сами так делали. Вариант хорош тем, что, во-первых, не нужно дополнительно тратиться, во-вторых, ребенок будет учиться использовать в игре предметы – заместители. Минус же в том, что дочка рано или поздно скажет, что дом не настоящий, ей захочется иметь что-то более правдоподобное, с обоями, окошками, прочее.
Тогда маме с папой придется решить, как сделать эту игрушку самим. В первую очередь, определиться с размерами. Если дом предназначается кукле типа Барби или Монстр Хай, он получится габаритным. Высота каждой комнаты будет не менее 30 см, ширина, чтобы можно было поставить в домике кукольную кровать, 40 см и более. Для пупсов и игрушек – фигурок можно сделать более компактное «жилье».

Дом для Барби из фанеры, сделанный своими руками.
Следующий этап – выбор материалов. Как правило, кукольные домики делают из:
- Картонных коробок и картона. Вариант бюджетный, тратить много на закупку материалов не нужно. Также не нужно задумываться, с помощью каких креплений домик собирать, будут нужны лишь любой клей и клейкая лента. Большой минус дома – он непрочный, гигроскопичный, легко пачкается. На тонкие полки не поставишь тяжелую мебель. Картонный домик для куклы не подходи маленьким детям, которые не умеют рассчитывать силу во время игры.
- Фанера. Более практичный и также дешевый вариант. Лист фанеры кроется на детали для игрушечного домика своими руками с помощью обыкновенного лобзика. Игрушка получается добротнее. Но пористую фанеру необходимо покрасить или обклеить так, чтобы она не поглощала пыль и влагу, не разбухала, в ней не завелся грибок. Еще один недостаток этого материала – тонкие листы фанеры непросто соединить между собой, чтобы они держались крепко, домик не развалился.
- Дерево, МДФ. Наиболее практичный и дорогостоящий вариант. Дом получится очень качественный и прочный, устойчивый и безопасный. Он не развалится, даже если ребенок повиснет на нем всем своим весом. МДФ легко обработать, элементы конструкции прочно соединятся между собой саморезами, а их шапки удастся утопить в толще материала. МДФ дает абсолютную свободу идеям декора домика.

Инересный кукольный дом из картона с подсветкой.
Красивый самодельный кукольный дом.
Хотя домик предназначается детям от 3 лет, то есть, того возраста, в котором режиссерская игра уже сформирована, нужно обращать внимание на присутствие в нем мелких деталей, которыми можно подавиться.
Прежде чем приступить к закупке материалов для кукольного домика и непосредственно перейти к его сборке, необходимо сделать план или схему. Он поможет высчитать, сколько материала потребуется купить
Детали будут соответствовать друг другу, их получится крепко соединить. Устойчивый и красивый дом для игрушек порадует ребенка и не испортит интерьер квартиры.

Схема кукольного дома с размерами.
Рецепт бисквитных коржей
При отсутствии дома миксера или кухонного комбайна процесс лучше не начинать. Даже при вращении венчиков на высоких оборотах взбивание занимает 5 минут. Тесто для бисквита из 6 яиц для формы 24 см:
- по 1 стакану сахара и муки;
- 1,5 ч. л. разрыхлителя;
- ванилин.
Шаг 1
Отделяют белки от желтков. Первую субстанцию убирают в камеру охлаждаться, со второй работают. Для ускорения процесса миску ставят на водяную баню, взбивают в теплом состоянии с 2/3 стакана сахара.
Шаг 2
Охлажденные белки вспушивают до устойчивых пиков, примешивая в процессе по чайной ложке песка. Капля лимона делает массу гуще и структурированнее.
Шаг 4
Бисквитное тесто на торт широкой лентой выливают в разъемную форму, застеленную пергаментом или калькой, припорошенную мукой. Удобнее всего положить бумагу, застегнуть замки на бортиках, обрезать по краю торчащие концы. Многие хозяйки смазывают дно прозрачным слоем сливочного масла или присыпают мукой. Жир предупреждает прилипание коржа, мука не дает ему попасть внутрь.
Шаг 5
После извлечения из духовки форму оставляют в сторону на 10 минут, подрезают края ножом, открывают бортики формы. Корж переворачивают на решетку, срывают бумагу, кладут на блюдо остывать.
Испанский бисквит
Универсальный корж с помощью разных наполнителей в Европе превращают в кондитерский шедевр. Такую заготовку называют испанским или генуэзским бисквитом. В Италии он известен как «Пан ди Спанья» (испанский хлеб). Ингредиенты:
- по 250 г сахара и муки;
- 6 яиц;
- 6 ложек кипятка;
- ванилин;
- ложка лимонной цедры;
- разрыхлитель.
Белки взбивают отдельно в крутую пену. В другой миске вспушивают желтки с кипятком, сахаром. В конце кладут цедру, доводят массу до нужной консистенции. К смеси добавляют муку с разрыхлителем, смешивают. Следом вводят белковую массу и аккуратно соединяют со смесью. Гладкое однородное тесто быстро выливают в форму. Как испечь простой бисквит, видно по фото.

Бисквит в мультиварке
Для приготовления коржа в чудо-кастрюле берут: 5 яиц, 1 стакан муки, неполный стакан сахара, пакетик ванильного сахара.
Ванная и туалет
Для туалетной комнаты нам понадобился унитаз, раковина и ванна. Нужно было быстро и просто их изготовить.
И я решила просто их вылепить из массы для лепки. Что впоследствии мы и сделали с дочками (фото 30).

Пусть они неидеальны, зато сделаны совместно.
Сохли наши произведения где-то сутки. Далее мы покрасили их белой акриловой краской и покрыли глянцевым акриловым лаком. Бачок после высыхания оказался довольно тяжелым, потом я заменила его на более легкий (вырезала из пробки и покрасила). Чтобы раковина устойчиво держалась на стене, под нее я склеила тумбочку. Тумбочку окрасили как и всю мебель в домике. Далее тумбочку я приклеила к стене и полу домика, а далее приклеила раковину. К раковине приклеен кран (вылеплен из массы для лепки) и бусины. Готового зеркальца не нашлось, и оно у нас тоже из картона.
Унитаз сделан из нескольких частей — основания, палочки от петушка, бачок (из пробки), цепочки и бусины.
Все это сооружение дополнено сидушкой — вырезали из картона и оклеили однотонной тканью.
На фото 32 вся туалетная комната в цвете.

Вот так быстро и весело из подручных материалов вместе с дочками мы соорудили наш кукольный домик. Такие поделки всегда вызывают радость у детей.
Пусть он пока довольно прост, но дочки вполне им довольны и с удовольствием дружно играют.


И еще видео, как сделать дом для кукол своими руками из фанеры:
Складывающийся дом из картона
1. Начните с пустой коробки. Поверните ее на бок, чтобы открытая часть была перпендикулярна полу.
2. Отрежьте верхнюю часть коробки и сохраните ее – позже это будет служить половиной крыши.
3. Используйте широкий скотч, чтобы закрепить некоторые детали коробки.
4. От другого картона отрежьте кусок, который будет второй половинкой крыши.
5. Скотчем склейте половинки крыши.
6. Соедините крышу и домик, и скрепите их скотчем.
7. Сделайте дом складывающимся. Поставьте домик лицом вниз и разрежьте посередине заднюю часть и нижнюю часть домика. Также разрежьте место, где стыкуются нижняя и задняя часть дома.
8. Добавьте скотч в те места, где вы сделали разрезы. Удостоверьтесь, что нижняя и задняя часть домика складываются в нужную сторону. Закрепите скотчем места, которые, по-вашему, сильно болтаются.
Другие варианты бумажных домиков
Очень интересными получаются из бумаги домики круглой формы.
При создании эскиза корпус такой конструкции выглядит как сплошной длинный прямоугольник. Склеивается поделка по одному сгибу. А крыша чаще вычерчивается отдельно в виде круга, затем подкраивается и соединяется с корпусом клеем.

Но возможно и построение чертежа в единстве с крышей. Тогда для крыши делается много разрезов, которые потом можно склеить внахлест, создавая коническую форму.

С большим энтузиазмом дети делают сказочные «бревенчатые» избушки.
Материалы для работы берутся те же, но технология построения такого дома совершенно другая. Здесь сначала заготавливают строительный материал. Из одинаковых длинненьких бумажных прямоугольников с помощью карандаша делают трубочки — «бревнышки».

Будет ли это маленький домишко или объемный домище, зависит от размеров и количества скатанных трубочек. Обычно ребята соревнуются со взрослыми или между собой, кто накатает или склеит больше.
Затем из готового материала аккуратно складываются стены. Здесь есть варианты: стены клеятся с просветами, где в ряду два бревнышка, или клеится сплошная кладка по четыре трубки со смещением их к краям в очередном ряду. Крыша домика может быть «бревенчатой» или гладкой.
А в видео более сложный вариант дома из газетных трубочек:
Еще идеи на фото:
Следите за чистотой
Чтобы не убивать на уборку все выходные, разбейте её на этапы — это проще, чем за день пытаться справиться с тем, что накопилось за неделю.
Вот примерный план ежедневных дел. Можете добавлять другие задачи и менять порядок их выполнения. Смысл в том, что поддержание чистоты — постоянный процесс, а не подвиг раз в две недели.
- Понедельник: приберитесь в ванной комнате и устройте стирку.
- Вторник: погладьте выстиранные вещи.
- Среда: протрите пыль.
- Четверг: пропылесосьте пол.
- Пятница: вымойте плиту и избавьтесь от залежавшихся в холодильнике продуктов.
Всё, к концу недели у вас дома чисто. Остаются только мелочи типа смены постельного белья и стирки одежды, которую вы планируете носить на следующей неделе. Одежду лучше постирать в субботу, чтобы в воскресенье погладить её и повесить в шкаф. Постельное бельё замените в воскресенье, в понедельник как раз запустите стирку.
Особенности выбора материала
Выбор материалов для строительства домика своими руками должен совпадать с финансовыми возможностями, количеством свободного времени и уровнем мастерства.
Бумага. Для этих целей подходит бумага для скрапбукинга: она плотная, не выгорает, имеет широкий выбор фактур и принтов. Готовые схемы можно распечатать на обычной офисной бумаге.
Картон. Идеальными вариантами станут переплетный, пивной, гофрированный трехслойный. Последний — сложнее в резке, но более доступный (например, в него обычно упакованы бытовая техника или весовые конфеты). Жесткость картона позволяет добавить этажность проекту.
Коробки. По своим характеристикам не отличаются от предыдущего материала. Для работы подойдут одна большая или несколько средних, обязательно целых коробок.
Фанера. Отличается доступностью, легкостью в обработке, возможностью воплотить сложные проекты, соотношением цена-качество. В то же время, требует определенных навыков работы с распиловочным инструментом, точной проектировки. Рекомендуемая толщина фанеры не менее 6-7 мм
Обязательно нужно обратить внимание на маркировку Е0 — ее наличие подтверждает низкое содержание формальдегида. Дерево
Материал более дорогой и сложный в работе, требующий наличия дорогостоящего инструмента. Целесообразен при выполнении многофункциональных домиков-стеллажей больших размеров.

Сравнительные характеристики материалов:
| Материал | Стоимость | Долговечность | Сложность |
| Бумажный домик | Очень дешево | Низкая | Очень легко |
| Картонный домик | Дешево | Невысокая | Легко, но требует терпения |
| Домик из коробок | Очень дешево | Невысокая | Очень легко |
| Домик из фанеры | Умеренно дорогая | Высокая | Средняя сложность, требует навыки работы с инструментом |
| Деревянный домик | Дороже среднего, но дешевле покупного | Очень высокая | Сложная, желателен распил на профессиональном оборудовании |
Функциональное назначение лаг

Лаги — это деревянная опора крыши (брус). Лаги монтируются в виде обрешетки на верхнее основание стен. В зависимости от применяемого материала для кровли подбирается толщина бруса(100-150 р. 1м.п). Если кровля покрывается мягкими (битумными) материалами, то делается фанерная основа-подложка (750-850 р. 3 кв.м). Жесткие материалы (металлочерепица, шифер, профнастил), кладутся прямо на лаги. Стоимость кровельного материала составит от 300 р. за 1 кв.м.
Так же при желании можно произвести утепление при помощи минеральной ваты или пенопласта. Осталось подобрать и установить окна и двери. Стоимость строительных работ обычно составляет 50-80% от стоимости строительных материалов.

Любое жилье, даже то, в котором проводится мало времени, должно быть уютным, функциональным и эстетически привлекательным. Исключив все излишества и правильно все спроектировав, можно добиться этой цели!
Избушка на полянке: мастерим пошагово
Приступаем к очередному изготовлению поделки совместно со своим чадом, прививаем ему полезные навыки и любознательность.

Эту игрушку собираем в такой последовательности:
Изготовляем фундамент, на котором будет стоять наш домик. Для этого использует картонную коробку. Подготавливаем квадрат 400х400 мм. Вырезаем из картона элементы домика, соединяем их с помощью скотча. Крепим к основе.

Из кусочков белоснежной бумаги вырезаем окна и двери. Приклеиваем. Ручкой рисуем шторки. Каштанами декорируем все стены. Делаем дизайн крыше и земле вокруг домика, используя разноцветные листья, хвою и ягоды.


В интернете существует множество пособий и мастер-классов на эту тематику. Многие уроки сопровождаются отличными пояснениями, что и как правильно делать, чтобы собрать хорошую и качественную игрушку.

Новое совместное времяпровождение порадует ребенка, и он долгое время будет с энтузиазмом помогать в его собирании. А потом – с удовольствием играться!

Инструменты и материалы для создания бумажного домика
Когда вы решите скрасить семейный вечер или ребенок в школе получит задание изготовить такую поделку, вам понадобится немного фантазии, бумага, клей и всего несколько инструментов. Бумага же может быть любая: тоненькая из цветных наборов, листки тетрадей или альбомов, чертежная (которая, кстати, отлично склеивается) или кусочки обоев. Понадобятся ножницы, линейка и карандаш, а иногда и кисточка для клея.

Если есть канцелярский нож, он поможет быстро и аккуратно проделать прорези окошек и двери. Клей подойдет самый разный: в тюбиках, клей ПВА, обойный, клей-карандаш, клейстер собственного приготовления или бумажный в бутылочках, скотч. От размаха вашей с ребенком фантазии зависит подбор предметов для украшения будущего домика. Подойдут краски, гуашь, цветные карандаши, бусы, вата, кружево и другие предметы для аппликации.
Заняться волшебным действом можно за столиком, на широком подоконнике или расположившись на полу. Лишь бы поверхность была гладкой и устойчивой к клею и царапинам (можно подложить дощечку или фанеру).
Что нужно учитывать при конструировании домика для кошек

Выбирайте материалы без резких запахов
Самое основное, на что нужно обратить внимание, это размеры Вашего питомца. Он должен иметь возможность свободно лечь на горизонтальной поверхности
Если конструкция домика подразумевает наличие закрытого пространства с лазом, животное должно иметь возможность свободно лечь, встать и повернуться в этом пространстве. Для обивки домика лучше всего использовать поролон и легко чистящиеся, мягкие, ворсистые ткани. При выборе материалов для изготовления домика следует обращать внимание на наличие резких, химических запахов от компонентов будущей конструкции. Если поролон, пластмассовые трубы или обивка для домика будут пахнуть, животному это вряд ли понравится. Поэтому старайтесь по возможности исключить такой вариант. Следует учитывать также и породу кошки. Если мы имеем дело с длинношерстной породой, оптимальнее всего будет сделать помимо домика еще и дополнительный матрасик, с легко снимающимся чехлом, а также чехлы для лежанок и открытых горизонтальных поверхностей конструкции. Это избавит Вас от необходимости вычищать шерсть.
Понаблюдайте за Вашим питомцем, определите, какое место в доме ему больше всего нравится, изучите предпочтения – любит ли он прятаться, или гордо наблюдать за всеми сверху? И, исходя из этого, приступайте к изготовлению домика.
Что понадобится
Перед тем, как начать работу, нужно четко понимать, что понадобится, чтобы избежать отсутствия того или иного материала в ходе работы.

Итак, для создания домика из коробки своими руками Вам понадобится:
Коробка. Чем больше будет ее размер, тем лучше. К примеру, возьмем коробку 800*600*600. Это самая большая коробка, которая способна поместиться в багажник легкового автомобиля. Конечно, можно купить коробок и больше, но этого тоже будет вполне достаточно.

Гофрокартон, а точнее его лист, размером тысяча двести на восемьсот миллиметров. С его помощью Вы сможете значительно укрепить крышу Вашего будущего сооружения. Можно обойтись, конечно, и без него, но все-таки рекомендуется использовать.

Простой карандаш, маркер или ручка









Ножницы и нож. Рекомендуется использовать обе принадлежности, делая срезы канцелярским ножом, а части коробок резать с помощью ножниц.


Линейка или уголок из металла больших размеров. Линейка должна быть большой, потому что маленьким прибором будет неудобно отмерять детали в большой коробке

Скотч и клей. Рекомендуется использовать клей ПВА, а также специальный бумажный скотч.

Рекомендация! При выборе размера коробки, по большей части нужно ориентироваться на размеры Вашего жилого помещения, потому что для небольших квартир домик больших размеров подойдет не очень хорошо.

В таком случае следует выбрать коробку небольших размеров.









Если у Вас квартира достаточно большая, то тут можно выбрать и достаточно большую коробку, потому что Вы даже не заметите отсутствие пространства, которое она занимает.

Кукольный дом
Этот прекрасный подарок для детей можно сделать самостоятельно из обыкновенных картонных коробок.
Домик будет состоять из двух этажей и двух комнат. Для начала соединить коробки между собой. Снизу, сбоку и по бокам приклеить еще по листу плотного картона. Скотчем укрепить конструкцию домика и дать клею высохнуть.
Следующий этап — украшение комнат и внешнего вида домика. Стены украсить аппликациями из цветной бумаги, добавить зеркал, занавесок на окна, игрушечную мебель. Чтобы куклам можно было «подниматься» на второй этаж, дома понадобится лестница, которая будет состоять из двух частей.
Из тонкой бумаги вырезать ступеньки для торца лестничного проема. Эту же делать вырезать из картона. Подобрать нужную ширину и высоту ступенек.
Выкроить еще пару частей из плотного листа картона. Понадобится паре прямоугольников для ступенек и дна.

Склеить боковые части лестницы и сжать руками, чтобы они стали более плотными.


Соединить конструкцию.

Обклеить лестницу цветной бумагой или покрасить гуашью.
Красивый и оригинальный кукольный домик готов!
Соединение потолков с полами
Потолок одного этажа является полом для следующего. Для предотвращения отклеивания и провисаний межэтажное перекрытие крепят на опору.
- Для точности рекомендуется по периметру каркаса прочертить линию на уровне верхних границ внутренних стен параллельно полу этажа.
- Из картона вырезать длинные полоски шириной не более 1 см . При недостаточной толщине материала полосок можно вырезать в два раза больше и склеить между собой.
- Полученные детали приклеить широкой стороной по периметру домика, совмещая с контрольной линией. Должен получиться равномерный выступ, опоясывающий изнутри внешние стены.
- Промазать клеем срезы всех деталей, на которые ляжет потолок, а также срезы самого потолка.
- Уложить деталь потолка, следя за перпендикулярностью внутренних стен.
- Проклеить малярной лентой стыки стен и пола верхнего этажа, следя за тем, чтобы скотч ложился до самого угла, не деформируя его.
Детская комната
В детской основное место занимает двухярусная кровать (фото 25).

У нее мягкие матрасики и подушечки. В комнате стоит небольшой стол (фото 26) и стул фото 27.


Так же имеется шкафчик для игрушек (фото 28).

В этой комнате окно я не прорезала, а просто приклеила картонное к боковой стенке. Комната украшена цветным алфавитом (вырезан из бумажной упаковки от детской игрушки). На фото 29 детская в цвете.

Почти все люстры в нашем домике склеены из одноразовых контейнеров, бусин, палочек от петушков и тесьмы.
Лишь одна, которая в музыкальной гостиной, сделана из бисера, проволоки и фурнитуры от бус.
К домику я склеила и лесенку, но она у нас пока приставная, так как я боюсь, что если ее приклеить, то она будет мешать одновременной игре 2 детей.
Начало работы
После того, как Вы подготовили все нужные принадлежности, можно начинать. Ниже приведена небольшая пошаговая инструкция, придерживаясь которой Вы добьетесь нужного результата, а точнее возведете замечательный домик из коробки.

Итак, приступим:
Первым делом нужно отметить середину на малых клапанах коробка, а затем провести линии к их основаниям. В итоге получится равнобокий треугольник

Далее нужно взять ножницы, срезать с их помощью ненужные части с верхних маленьких клапанов, ориентируясь по начерченным линиям. Также надо полностью срезать все нижние клапаны, но не торопитесь их выкидывать, потому что они пригодятся для крыши

Теперь надо сделать крышу, для этого следует склеить с помощью скотча нижние клапаны. Они будут служить верхней частью крыши

С помощью скотча нужно скрепить части крыши в целое сооружение









Следующим шагом нужно вырезать из картонного листа укрепление крыши. Затем приклеиваем его к уже существующей крыше при помощи клея

На длинной и короткой сторонах целой конструкции надо расчертить окна, а затем вырезать их с помощью предварительно приготовленного канцелярского ножа

На одной из оставшихся сторон делаем дверь


Конечно его можно использовать для абсолютно разных целей, но, как правило, чаще всего в нем живет домашний питомец.

Кукольный домик из картона
Если ваш ребенок попросил изготовить жилище для кукол, то не следует сразу же бежать в гараж и начинать распиливать доски.

Все можно сделать намного проще – достаточно использовать нашу инструкцию на пошаговое изготовление домика для начинающих:
Возьмите картонную коробку нужного размера. Например, это может быть упаковка для посылок или от бытовой техники. Раскройте ее снизу и сверху.

Две маленькие боковые части сверху обрезаются так, чтобы получились треугольники с двух сторон, направленные вершиной вверх. Треугольники сверху выравниваются вертикально, а продольные длинные элементы крышки крепятся к ним клеем или скотчем, образуя нижнюю часть ската крыши.

Сформировать крышу полностью не всегда удастся – ее вершина (конек) останется открытой. Решить эту проблему можно, если обрезать крышки с нижней части коробки. Продольные элементы крепятся друг к другу в виде шалаша и фиксируются к уже сооруженной части крыши. В результате конек кровли будет сооружен. Главное здесь — произвести все замеры и крепить, соблюдая стыки.
На стенах домика вырисовываются окна и дверь, которые затем прорезаются ножом. Крышу можно разукрасить в виде черепицы, а стены окрасить в предпочтительный цвет.

Оформление окон и дверей
Окна и двери оформляются в соответствии с основным материалом конструкции. Чем прочнее модель, тем сложнее крепления дверей и детальнее декор.

- В бумажных домиках окна и двери прорисовываются. Входная дверь вырезается с трех сторон. Окна вырезаются согласно картинке: створками или полностью проемом. Вырезать ажурные решетки и перемычки нецелесообразно – тонкие детали очень быстро порвутся в процессе игры, придавая домику неряшливый вид.
- В домиках из гофрокартона дверь вырезается аналогично. Если модель собрана из пивного или переплетного картона, то деталь двери вырезается полностью. Для крепления понадобится небольшой отрез марли или бинта, прочная бумага и клей. Дверь вставить в проем и промазать клеем, захватив часть стены, к которой она будет крепиться. Сверху приложить отрез марли и снова нанести тонкий слой клея. Из бумаги вырезать прямоугольник, равный двери, и приклеить поверх марли, соединяя дверное полотно со стеной. Марля добавит прочности креплению, а бумага исключит провисание. Для декора на деталь наклеить изображение настоящей двери. Из картона вырезать 2 рамки и оклеить ими дверной проем с обеих сторон. Оконные проемы оформляются также.
- В деревянных домиках двери крепятся при помощи рояльных петель. Дверной проем оформляется также, как и в предыдущем случае. Декор можно усложнить имитацией кирпичной кладки, наличием дверного молотка или колокольчика. Оконные проемы с внешней стороны можно оформить «стеклом» из прозрачного пластика. Сверху задекорировать деревянной фоторамкой. С внутренней стороны сделать обрамление из картона. Использование витражных красок на пластиковом окне сделает фасад ярким и необычным.
- Межкомнатные двери обычно не устанавливаются. Достаточно арочного проема или установки более узкой стены.
Дом из картона с трубой и дверью своими руками
Вам понадобится:
– горячий клей с клеевым пистолетом
– канцелярский нож
– ножницы
– несколько картонных коробок.
Большая коробка будет основной частью домика, а маленькие коробочки понадобятся для таких мелочей, как труба и оконные рамы.
1. Отрежьте детали большой коробки, которые формируют ее крышку – они будут использованы для создания крыши.
2. Переверните коробку верхом вниз. Вырежьте дверь, сделав большой надрез в форме буквы “L”.
3. Вырежьте квадраты для окон, используя канцелярский нож.
4. Склейте 2 части от отрезанной крышки коробки. Повторите тоже самое с двумя другими частями крышки. У вас получатся 2 половинки, из которых можно сделать крышу дома.
5. Для окон можете вырезать 2 широкие картонные полоски, и приклеить их к окну. Также можно вырезать несколько полосок для создания оконной рамы.
6. Чтобы приклеить крышу к домику, нужно сначала соединить половинки крыши при помощи небольших Г-образных картонных деталей. Далее используйте такие же детали, чтобы приклеить крышу к домику.
7. Теперь делаем маленькую крышу. Вам понадобится лист картона подходящего размера. Разделите его пополам (или просто согните) и приклейте к домику так же, как и большую крышу, т.е. Г-образными деталями.
8. В двери можете сделать окошко и, при желании, приклеить к нему оконную раму из картона.
9. По желаниюЕсли хотите сделать трубу для домика, вам понадобится небольшая коробка или 4 картонные детали одинакового размера, которые нужно склеить в небольшую коробочку.
10. Отметьте на маленькой коробке места, которые нужно отрезать, чтобы труба ровно легла на крышу дома. Чтобы было проще это сделать, прислоните коробочку к крыше ровно сбоку и карандашом проведите линии. Когда приклеите трубу к крыше, можно накрыть ее картонной крышкой и приклеить картонный цилиндр от туалетной бумаги.
11. По желанию: можете добавить ручку к двери. Используйте любую старую ручку и приклейте ее к двери. Можно также сделать ручку из картона.
Как сделать дом из картона своими руками
Вам понадобится:
– большая картонная коробка
– широкий скотч (клейкая лента)
– канцелярский или строительный нож
– металлическая линейка (чтобы делать ровные разрезы)
– черный маркер
– двухсторонний скотч (при необходимости)
– ткань для занавесок (при необходимости).
1. Разберите коробку и выверните ее наизнанку, чтобы домик позже был коричневым и однотонным, и все рисунки на коробки скрывались.
2. Чтобы домик был больше, те части, которые с одной стороны формируют крышку коробки, нужно поднять и закрепить в вертикальном положении с помощью скотча (клейкой ленты). Поставьте коробку на бок, чтобы с одной стороны был “вход” в домик.
3. Опционально: чтобы сделать диагональную крышу домика, канцелярским (или строительным) ножом отрежьте по диагонали (небольшой угол) верхнюю часть будущего домика (ту часть, которая сейчас наверху, после того, как вы перевернули коробку).
Из отрезанного куска картона отрежьте треугольные детали и обратно прикрепите скотчем крышу к домику.
4. Нижнюю часть домика (пол, что напротив крыши) отрежьте, скрепите скотчем при необходимости, и прикрепите к открытой части коробки (“вход”, который получился в пункте 2).
5. Теперь пора канцелярским ножом вырезать в картонном домике окна и двери.
При желании можете маркером нарисовать оконные рамы, кирпичики и другие детали. Также можно в дверце вырезать небольшую ручку (полуовал с краю двери).
6. Можете добавить занавески из обычной ткани, прикрепив их двухсторонним скотчем.
При необходимости используйте больше скотча, чтобы закрепить шатающиеся детали домика.
Как сделать из картона домик (замок)
Сделать такой красивый замок совсем несложно. Вы сможете его просто складывать и удобно хранить.
Такой домик можно ставить на любую поверхность (пол, стол)
Можно сделать как замок, так и простой домик, пожарную станцию или магазин – все зависит от того, что именно вы хотите.
Вам понадобится:
– картон
– простая бумага
– ножницы (канцелярский нож)
– карандаш
– акриловая краска (фломастеры, карандаши, мелки)
1. На простой бумаге нарисуйте схему будущих стен. Подгоните нужные размеры.
2. Делайте окошки и двери такого размера, чтобы в них смогла пролезть ручка ребенка.
3. Украсьте стены по вкусу. Используйте для этого акриловую краску (гуашь), карандаши, фломастеры и даже кусочки тканей, которые можно приклеить клеем ПВА.
4. Когда все стены украшены, просто вставьте их друг в друга, сделав надрезы посередине каждой стены – у одной стены сверху, у другой снизу.
* Надрезы нужно делать до середины стены.
Список источников
- www.infoniac.ru
- Lifehacker.ru
- heaclub.ru
- podelki-doma.ru
- www.toysew.ru
- rukodelieinfo.ru
- knittochka.ru
- www.stroitelstvosovety.ru
- sdelaisam.mirtesen.ru
- kaksdelat.guru
- clubsamodelok.ru
- handsmake.ru
- www.xn—–6kcctg4abn1dp4j.xn--p1ai
7 лестниц