Существующие нормы
Основной задачей кухонного фартука является защита прилегающей к гарнитуру стены от жара и брызг во время приготовления пищи. В связи с этим полотно, из которого изготавливаются фартуки, должно обладать рядом практических качеств: легко мыться, быть терпимым к различного рода чистящим средствам и высокой температуре, обладать отличной влагоустойчивостью. Краска, штукатурка, клеенка, моющиеся обои на кухне давно ушли в прошлое. Они не способны противостоять пару и абразивам, могут впитывают в себя вредный жир, создавая благоприятную среду для развития бактерий. На смену им пришли современные материалы.
Если хозяева уже определись с дизайном будущей кухни, самое время позаботиться о выборе фартука (разновидности, цветовой гаммы, размеров). Существует ГОСТ, согласно которому производитель изготавливает фартуки для кухни высотой 45-60 см. Однако сложно сказать, что всем необходимо придерживаться стандартных размеров. Зачастую высота фартука подбирается с учетом индивидуальных особенностей хозяев будущей кухни и конструктивных нюансов помещения. Рассмотрим эти моменты более детально.
Как установить маяки для фартука из кафеля
Маяки для облицовки плиткой рабочей зоны выставляются точно так же, как описано в статье о том, как клеить плитку, но я повторюсь.
Для установки маяков вам понадобятся:
- профиль металлический 27х28 мм.
- уровень лазерный или реечный
- остро заточенный карандаш
- перфоратор или дрель
- дюбель гвозди 6х40 мм.
Отмеряем рулеткой нужную высоту и, доверяя уровню, делаем короткие отметки острым карандашом. Конечно, используя луч лазера, делать это удобнее. Нужно лишь помнить о толщине луча и делать отметки либо сверху, либо снизу лазерной линии. Я делаю снизу, так, чтобы тень карандашного острия не перекрывала луч. Реечным уровнем работать то же можно и очень успешно, нужно лишь уметь проверять его показания. Как-нибудь, я напишу об этом.

Отрезав профиль нужной длины, просверлите в нем отверстия диаметром 6 мм. с помощью дрели и сверла. Некоторые профили уже имеют отверстия, что очень удобно. Можно конечно, сверлить стену сразу сквозь профиль, но велика вероятность, сбиться с курса и отклониться от карандашных рисок. Это – на ваше усмотрение.
Сверлить стену сквозь профиль проще так, как написано далее. Возьмите профиль посередине левой рукой, если вы – правша, и уприте его правым концом в угол стены, выставив верхним краем по рискам. После чего аккуратно сверлите отверстия, начиная с середины, фиксируйте дюбель-гвоздями и продолжайте пока не закрепите профиль вдоль всей длины.


Из какого материала можно сделать фартук для кухни?
Учитывая тот факт, что зона фартука является самой видной и самой быстро загрязняющейся поверхностью, к ней всегда предъявляются очень высокие требования.
Фартук должен хорошо мыться, выдерживать перепады температур, быть устойчивым к химическим средствам ухода. Рассмотрим ниже, какие материалы предлагает нам современный рынок для устройства фартука.
Керамическая плитка
Это самый практичный отделочный материал, который с легкостью моется, устойчив к воздействию воды, химсредств и температурным перепадам. Керамическая плитка пожароустойчива и долговечна, особенно рекомендуется ее выкладывать в тех кухнях, где есть газовая плита.


Также преимущество плитки заключается в возможности наносить на нее фотопечать. Многообразие цветов, декоров и различных панно позволяет создавать уникальные комбинации.


К недостаткам относится сложность ее укладки и затраты на сопровождающие работы: подготовка поверхности, поклейка и затирка плитки. В сравнении с устройством отделки МДФ и пластика, отделка стены фартуком из керамической плитки обойдется хозяйке кухни гораздо дороже.
Выбирая керамическую плитку для фартука, следует знать, что светлые швы быстро загрязняются, поэтому лучше выбирать затемненную затирку
Важно помнить и то, что гладкая матовая плитка легче чистится, чем глянцевая

Чтобы швы дольше сохранили свой привлекательный вид, стоит использовать водостойкую затирку.
Мозаика
Это достаточно богатая и эффектная отделка. При грамотном подборе можно сделать уникальные сочетания мозаики с полом и стенами, подобрать к мебели и любому предмету в интерьере.



Ее характеристики аналогичны керамической плитке. Фартук из мозаики хорош тем, что прослужит много лет.


К отрицательным сторонам мозаичной отделки относится сложность ее устройства и большое количество швов. В условиях кухни швы могут быстро загрязняться, потемнеть и плохо отмываться. Поэтому специалисты рекомендуют использовать эпоксидную затирку.

Устройство мозаичного фартука, в сравнении с керамическим, обойдется дороже. Для удешевления проекта можно воспользоваться плиткой «под мозаику».

Стекло
Стеклянный фартук — это новое веяние в дизайне, получившее популярность благодаря своей оригинальности
Важной особенностью такого фартука является возможность под стекло наносить разнообразные изображения





Недостаток стекла в том, что оно подойдет не к каждому интерьеру. Кроме того, на стекле хорошо заметны брызги от воды, пятна от жира. Поэтому хозяйке придется много времени уделять отмыванию фартука. Не порадует здесь и цена. Она гораздо выше керамической плитки и панелей МДФ.



Пластик
Фартук из пластиковых панелей относится к самым дешевым вариантам, устанавливается быстро и легко. Но в сравнении с другими вариантами, пластик может легко загореться от огня, деформироваться от химических чистящих средств и перепада температур.
Также он может легко поцарапаться при механических нагрузках. Некоторые виды пластика способны выделять в атмосферу токсичные вещества.


Сегодня в продаже предлагается двухсторонняя пластиковая панель. Ее устанавливают в специальные профили, благодаря чему появляется возможность самостоятельной замены в любое время.
Панели МДФ
Фартук из МДФ относится к самой дешевой отделке. Он устанавливается легко и быстро. Во многих магазинах при покупке кухни и панелей МДФ предлагается бесплатная их установка.
При этом крепление панелей не сложное, поэтому монтаж можно выполнить даже самостоятельно.


Важным плюсом МДФ-панелей является их легкий демонтаж и легкий подбор. Как правило, цвет такого фартука выбирается под цвет столешницы.


Отрицательная сторона фартука из МДФ заключается в неустойчивости к воздействию воды, бытовой химии. Фартук из МДФ легко воспламеняем и во время возгорания выделяет вредные вещества. Ценители дорогих кухонных интерьеров такую отделку вряд ли оценят.

Процесс установки
Перед установкой розеток на фартуке, то есть над рабочей зоной кухни, вам нужно убедиться, все ли для этого у вас есть. Вам потребуется: перфоратор, канавочное долото и коронка, внутренние коробочки, саморезы, коробка распределителя, дюбеля, трехжильный кабель и двойные розетки мощностью 16 Ампер. При этом нужно помнить, что устанавливать их надо на таком уровне, на какой к ним не дотянутся маленькие дети. Накладные крепления нужно сделать так, чтобы остальные коммуникации в доме не пострадали.
После того, как составлена схема расположения розеток, начинаем их монтаж в стену:
- Перфоратором нужно увеличить размер углубления. Если на месте новой розетки, была старая, следует отключить подачу электричества и демонтировать ее.
- Ставят коробку распределения.
Сегодня очень часто, используют так называемые выдвижные розетки. Они располагаются внутри фартука из МДФ. Поэтому, провода на поверхности отсутствуют. Такое изделие может поворачивается в любую сторону. Но это, скорее всего, просто красиво, чем практично. При установке следует помнить:
- кабель бесперебойно должен подключаться к сети;
- постоянный доступ к розеточной фурнитуре, чтобы, когда она сломается, ее можно было заменить;
- под поверхностью должно быть много пространства, а это исключает наличие шкафов и тумбочек.
Также следует учесть то, что если у вас декоративный кухонный фартук, то не следует ставить розетку на рисунке или орнаменте, чтобы не портить его внешний вид.
Учитывайте все эти критерии, и тогда ваш ремонт не принесет вам много забот.
Как определиться с высотой кухонного фартука?
Перед тем как купить защитный фартук, покупателю нужно определиться с его высотой. Зависит она от трёх параметров.
Размеры напольного блока
Высота напольного блока может быть от 0,85 до 0,91 м. Возможно и приобретение тумб гарнитура другой высоты, однако изготавливаться они будут уже под заказ. При выборе высоты в первую очередь нужно основываться на рост человека, который будет пользоваться гарнитуром. Блок должен располагаться примерно возле пояса – такое расположение считается самым практичным и удобным.
Вышепредставленные размеры считаются удобными для людей среднего роста. Если же человек высокий, то нужно выбирать гарнитур высотой примерно 1 м, если низкий – 0,8 и менее. Также стоит отметить, что вся кухонная мебель должна находиться на одном уровне. Визуально поднять напольный блок можно при помощи специальных выдвижных подставок. В том случае, если он слишком высокий, то придётся подстраивать под него всю остальную мебель.
Расположение навесных шкафчиков
Обычно навесные шкафчики размещаются таким образом, чтобы их нижний уровень находился на расстоянии 1,35-1,5 м от пола. Однако, расположение тут также может варьироваться в зависимости от особенностей человека
При обустройстве шкафчиков нужно обратить внимание на то, чтобы их использование было удобным. Так, человек при мытье посуды должен с лёгкостью доставать хотя бы да нижней полки шкафчика
Выходит, что расстояние от напольного блока, до низа шкафчика в среднем будет составлять 0,5 м
Тут стоит обратить внимание на то, что если в шкафчик установлены раздвижные дверцы, то расстояние в 0,5 метров будет удобным, если же они распахивающиеся, то лучше взять расстояние в 0,6-0,65 м
Наличие вытяжки
Сразу же стоит отметить, что существует два типа вытяжек:
- Встраиваемые;
- Самостоятельные.
Первые встраиваются в шкафчик, а вторые – находятся в отдельном месте. Несмотря на это, в любом случае расстояние от плиты до вытяжки должно быть больше, чем расстояние от плиты до нижнего уровня шкафчиков. Обычно это расстояние не превышает 0,7 м, однако оно может варьироваться в зависимости от типа плиты (если плита газовая расстояние будет больше, если электрическая – меньше).

3 правила выбора размеров фартука
Если вы заказываете стандартные кухонные шкафчики, то какой делать фартук, вы знаете – он должен занимать расстояние от столешницы до подвесных элементов. Но помимо гарнитура у вас будет установлена вытяжка. Также размеры этого защитного элемента будут зависеть от габаритов кухни. Посмотрим на несколько правил, которые помогут вам рассчитать высоту и ширину элемента.
- Вытяжка может встраиваться вместе со шкафом или быть купольной, а также каминного типа. Как правило, высота фартука до вытяжки от стола составляет не более 75 см – это стандарт. Какой должен быть фартук, если вытяжка установлена «особняком»? Лучше всего уложить его вокруг техники. С каждой стороны вытяжка должна обрамляться 5-10-сантиметровой защитой. На фото вы могли видеть, какие применяются стилистические решения. Например, в зоне вытяжки уложены дополнительные ряды плитки или же используется контрастный с основным фартуком материал. Подбираются комбинации стекла и пластика, разноцветной плитки.
- Если вы устанавливаете модель панели с небольшой толщиной, фартук должен иметь минимальный припуск на 2 сантиметра – по сантиметру для столешницы и навесных шкафов. А вот когда фартук по толщине больше, чем плинтус, не стоит оставлять припуски, так как у вас потом не получится установить шкафчики. Быть может, вы видели на фото панели со специальными плинтусами. Именно они позволяют правильно установить гарнитур.
- Оптимальной высотой считается размер до 65 см. Для просторных кухонь подойдет и более широкий фартук до 70 сантиметров. Широкие фартуки хороши только в тех помещениях, которые отличаются высокими потолками и широкими возможностями для декора стен.
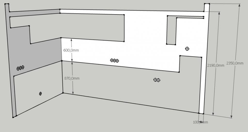
Высота кухонного фартука варьируется в зависимости от мебели и вытяжки. Если будете укладывать керамическую плитку, ориентируйтесь на стандартные размеры защитного элемента – 60 см. Как правило, все размеры плиток кратны этому числу (10Х10, 30Х30, 20Х20 см). А вот для стеклянного фартука, пластиковых панелей можно подбирать высоту и в 65, и в 45 сантиметров.
С чего начать или разметка для фартука
О разметке рабочей зоны, в которой будет выложен фартук из кафеля, впервые задуматься следует, размечая ниши для установки подрозетников в той же рабочей зоне. Именно тогда в вашу голову приходит мысль о расстоянии, отделяющем розетки от столешницы.
Для разметки фартука нас будет интересовать высота на стене, где заканчивается столешница, и высота от которой нависают шкафы. Если вы покупаете кухонную мебель в магазине, высоту, где заканчивается столешница нужно узнать заранее. К примеру, у меня в квартире она равна 82 см. Шкафы можно навесить на свой рост. У меня они начинаются от 1,43 метра.
Если же вы заказываете изготовление кухонной мебели для своих нужд, то вольны выбрать любую высоту для столешницы. Все для вашего удобства, ничего более.
Фартук должен быть чуть ниже края столешницы и чуть выше нижней линии, от которой расположены шкафы на стене. Говоря “чуть”, я имею в виду 2-3 сантиметра. Следует иметь в виду, что шкафы навешиваются на крепежную планку, которая по толщине равна толщине кафеля с клеем, примерно одному сантиметру, поэтому шкафы будут расположены, имея за задней стенкой небольшой ровный зазор. В нем удобно расположить провода для светильников под шкафами, освещающих поверхность столешницы.
С шириной, ограничивающей фартук рабочей зоны все просто. Она равна ширине кухонной мебели, которая должна быть вам известна.
Установка и модели вытяжки
Стандартом расстояния между вытяжкой и рабочей поверхностью считают 75 см. именно такой и оставляют ширину фартука при установке встроенной вытяжки. Подобные конструкции исключают «разбрызгивание» на стену рядом и выше каких-либо пятен. Но такие варианты «вписаны» в верхний мебельный ряд и являются единой линией.
Бывает, что варочная поверхность находится отдельно от основной мебельной группы, либо верхнее пространство между навесными шкафчиками остается не полностью заполненным (при особых проектах индукционных плит или по желанию хозяев). Еще кроме модульных вытяжек в частных домах может применяться каминная система. В этих случаях рекомендуется укладывать полотно фартука вокруг вытяжки и дополнительно защитить прилегающую зону керамической, пластиковой или стеклянной плиткой, которая будет дополнять основной фартук или составит ему красивый контраст в рамках общего дизайна. Плитку кладут по 5-10 см (зависит от ее размера). При использовании иных материалов под вытяжку фартук заходит на 1 см вверх и по 3-4 сбоку.
О правильной кухне можно много говорить, но сделает ее таковой только исключительная функциональность, учитывающая ваши привычки и вкус. А наши советы и подборка фото лишь помогут определиться с дизайном и подобрать оптимальные варианты.
7
фото
Как определить ширину?
Ширина фартука – это размер полотна от верхнего до нижнего его края. Она должна закрывать стены между рабочей поверхностью и той частью гарнитура и вытяжкой, которая навешивается на стены. Поэтому для защиты самих стен мастера обычно учитывают возможный зазор и добавляют к ширине 2 см на припуск. Поэтому ширина фартука может достигать от 47 см (минимальное расстояние между рабочей поверхностью и навесными шкафами 45 см +2 см припуски) до 117 см.
Из чего складывается последняя цифра? Это расстояние от рабочей поверхности до навесного шкафа/высота расположения вытяжки/верхняя граница навесного шкафа +припуски. Верхняя граница навесного шкафа будет интересовать в тех случаях, когда часть фартука окажется «свободной» – над ней не будет шкафчиков или вытяжки. Стандарты предусматривают для такого пространства, что ширина полотна может быть и больше – даже до потолка.
Материалы и правила расчета
Для отделки фартука специалисты применяют самые разнообразные материалы. Среди возможных вариантов выделяют:
- керамическую плитку или мозаику;
- МДФ;
- стеклянные панели, зеркальные элементы, которые защищены от пара, огня;
- полимерные материалы, ПВХ;
- кирпич или камень;
- металл.
У любого из описанных материалов есть достоинства и недостатки, свои особенности, но все они дают возможность уберечь кухонные стены. За ними легко ухаживать, очищать от загрязнений, можно создать необычный дизайн. Выбор отделки зависит от личных предпочтений владельцев, но размеры должны быть четко высчитаны.
Конкретно сказать, какой стандарт для фартука подбирать, очень сложно, поскольку для вычисления важно понимать и знать параметры всей мебели, другие особенности. Для начала проводится проектирование кухонного пространства, осуществляют замеры высоты столов, уровень навесной мебели, подбирается кухонный гарнитур, расположение его на кухне

Для правильного подсчета высоты от пола до фартука нужно учитывать расстояние от пола до напольных шкафов.
Для этого важно учитывать правила:
- столы выбирать по росту и другим параметрам владельца или всех членов семьи, которые будут сидеть за ним;
- в расчет берется высота плиты;
- учитывается дополнительная техника, будет ли она встраиваться в мебель;
- для упрощения процесса проще покупать готовый гарнитур, сделанный по стандартным параметрам.
Разберемся со стандартными и оптимальными значениями для фартука.
Это интересно: Мебель для кухни из России: детальный взгляд на вопрос
Несколько идей для красивого фартука: фотопримеры покрытий в интерьере
Если выбор материала изготовления фартука ложится целиком на плечи домашнего мастера, то подсказать несколько вариантов расцветки защитного покрытия стены рабочей зоны может и наша редакция. Ниже будут приведены примеры наиболее интересных решений дизайна интерьера, из которых читатель сможет подобрать подходящий для себя. А возможно, эти фото натолкнут на новые идеи, которые окажутся эксклюзивными.
1 из 9
ФОТО: roomester.ru
ФОТО: clearlyglassltd.co.uk
ФОТО: voyanceluxembourg.com
ФОТО: mainavi.ru
ФОТО: lider-s.ru
ФОТО: bogema-stroy.ru
ФОТО: project1266745.tilda.ws
ФОТО: steklovsem.com
ФОТО: pinterest.es
Материалы для устройства фартука
Выбор материала для устройства фартука является одним из главных факторов, влияющих на определение его размеров. Рассмотрим основные виды строительных материалов.
Керамическая плитка и керамогранит
Это самый распространенный вариант. Плитка отлично моется, имеет широкий ассортимент расцветок и фактур. Габариты фартука из керамической плитки определяются прежде всего ее размерами. Стандартные размеры плитки – 10х10, 15х15, 20х20, 20х30 см и т.д. Плитка больших размеров и керамогранит имеют габариты 30х30, 25х50, 30х60, 40х60 см и т.д.
Исходя из размеров выбранной вами плитки определяется конфигурация будущего фартука, которая позволит избежать необходимости резки материала. То есть если высота выложенных нескольких рядов плитки немного превосходит требуемое расстояние от столешницы до низа навесных шкафов, верхний ряд плитки не режут, а оставляют как есть. При этом навесные шкафы будут частично закрывать верхнюю часть фартука, обеспечивая необходимый припуск.
При выборе плитки очень важно предварительно выполнить чертеж развертки стены, на которой будет производиться облицовка. Вначале на чертеж в масштабе наносятся очертания вертикальной проекции кухонного гарнитура и вытяжки
Затем на них накладывается сетка расположения будущей облицовки из плитки — при этом важно соблюдать в масштабе размеры каждой плитки.
Для удобства плиточную сетку можно начертить на кальке (прозрачной бумаге) и потом, перемещая ее по основному чертежу, найти оптимальную конфигурацию будущего фартука. При этом следует иметь в виду, что отталкиваться надо от центральной доминанты всей кухни – варочной поверхности и вытяжки. То есть кальку надо наложить таким образом, чтобы по оси (центру) вытяжки проходил либо один из вертикальных межплиточных швов, либо эта ось совпадала с серединой одной из плиток.
Только в этом случае облицовка получится геометрически правильной относительно кухонного гарнитура. Чем меньше размеры плитки, тем легче этого добиться. Прежде чем покупать плитку определенного размера, попробуйте сделать несколько вариантов кальки (с плиткой разных размеров и форм) — тогда вы сразу увидите разницу, и это поможет вам выбрать наиболее оптимальный и экономичный вариант.
Межплиточные швы при укладке плитки лучше сделать минимальными (1,5 мм), так как они плохо отмываются от жира. Слишком толстые настенные швы могут испортить вид всей облицовки.
Листовые материалы
К листовым материалам для изготовления кухонных фартуков относятся:
- Ламинированная МДФ.
- Панели ПВХ.
- Закаленное стекло.
- Мозаичное полотно.
- Готовые ABS-пластиковые фартуки и др.
Отличительная особенность всех этих материалов заключается в том, что фартук из них выполняется после установки кухонного гарнитура. Размеры фартука в этом случае определяются прямо по месту, поэтому никакие припуски можно не предусматривать.
Установка таких фартуков наименее трудоемка и производится в кратчайшие сроки. Облицовка из панелей МДФ или ПВХ – самые экономичные варианты. Фартук из закаленного стекла – более дорогое удовольствие, чаще всего он изготавливается под заказ, но с каждым годом такой вид отделки приобретает все большую популярность. Под стеклянным фартуком можно клеить любые фотообои и даже разместить свои фотографии.
В продаже существуют также стандартные готовые кухонные фартуки, например: кухонная панель-фартук 3000х600х6мм, фартуки из ABS-пластика размером 2000х600х1,5 мм или 3000х600х1,5 мм и др. На них наносятся самые различные принты методом фотопечати, а верхний слой покрывается специальным защитным лаком.
Определение нижней и верхней границ для фартука: основные ориентиры
Рассчитать размеры будущего фартука получится только в том случае, если вся мебель и крупная бытовая техника уже приобретены. В виде исключения можно произвести расчеты по известным параметрам гарнитура, который уже заказан и будет установлен позднее. Но продавцы могут дать неточные характеристики материалов, поэтому в таких ситуациях лучше всего брать размеры фартука больше, чтобы исключить риски появления открытых участков стен.
Нижняя граница: высота столешниц
Стандартной высотой столешницы считается промежуток от 85 до 91 см. В некоторых случаях производители отклоняются от этих норм. Особенно это касается случаев, когда мебель приобретается под заказ, а покупатель просит сделать тумбы ниже или выше. Такая необходимость может возникнуть при маленьком или очень большом росте, так как оптимальной считается высота, при которой рабочая поверхность находится на уровне пояса человека.
Нижняя часть фартука должна находиться чуть ниже уровня столешниц. Обычно ее размещают на 3-5 см ниже рабочей поверхности. Это обусловлено необходимостью скрыть края фартука, на которых могут скапливаться загрязнения.
Верхняя граница: высота навесных шкафов
Стандарт размещения кухонных навесных шкафчиков требует вешать их так, чтобы нижний край находился на высоте 130-160 см от пола. Как и в случае с тумбами, точные параметры зависят от роста членов семьи и личных предпочтений. При этом стоит учитывать высоту самих шкафов, чтобы можно было легко достать необходимые вещи с верхней полки.
Высота кухонного фартука от столешницы до нижней части навесных шкафов обычно составляет около 50 см. Сверху, как и снизу, следует занести небольшую площадь покрытия за мебель. Вполне достаточно 3 см, поэтому общая высота фартука на участке с тумбами и шкафами около 60 см.

Плита с вытяжкой: особенности проведения расчетов
Особое внимание при проведении расчетов на выкладку фартука следует уделять плите. Чаще всего она имеет такую же высоту, как и тумбы кухонного гарнитура
Если она находится ниже, то по возможности ее следует поднять с помощью установки специальных подставок. При этом фартук должен начинаться от самого нижнего объекта.
Плита это или тумбы, прокладывать его нужно от самого нижнего объекта. Отступ от верхней границы варочной поверхности должен быть таким же. Если плита работает от газа, то размещать ее нужно таким образом, чтобы огонь был от покрытия фартука на расстоянии 20-30 см. Нужно помнить о газовой трубе, из-за которой в некоторых случаях приходится обрезать плитку.
Высота фартука на участке между плитой и вытяжкой будет самой большой, поэтому экран получится не в виде ровного прямоугольника, а с выпирающими элементами. Согласно ГОСТу, вытяжка должна находиться на расстоянии 65 см от электрической варочной поверхности. Если плита газовая, то промежуток увеличивается до 75 см. Также следует учитывать тип вытяжки.
В районе плиты с вытяжкой высота фартука будет немного выше
Важно учесть ГОСТ по расстоянию между этой техникой, приняв в расчет образовавшиеся открытые участки стен. Фартук следует располагать по всей поверхности, чтобы была соблюдена эргономика
Что делать с розетками

Розетки — самый важный элемент любой кухни. Их должно быть достаточно, чтобы хозяйка могла комфортно пользоваться любой необходимой ей техникой. Изначально нужно разобраться с теми розетками, которые уже есть на кухне, находятся ли они в том месте, где планируется монтаж фартука? Сколько нужно еще понадобится, чтобы подключить всю технику? Отталкиваясь от их количества и определяется расположение розеток.
Важные нюансы при размещении розеток:
- Как правило, на кухне используются двойные или тройные розетки (их располагают горизонтально).
- Подключение к сети нужно размещать подальше от источников воды, то есть мойки.
- Некоторые размещают розетки под столешницей, но это неудобно для использования малогабаритной техники (кофеварка, блендер и т. д.). Чтобы немного упростить, можно подключить крупную технику (стиральная и посудомоечная машинка, плита, холодильник) к скрытым розеткам, которые установлены за тумбами, а для остального предусматривается отдельный источник питания.
- Если нет возможности разместить розетку подальше от плиты и мойки, тогда можно использовать модели со специальной защитной крышкой, которые будут препятствовать попаданию жира и воды на розетку.
Разъемы для розеток нужно предусмотреть до того, как он будет заказан. В противном случае их придется размещать потом, для чего придется повредить уже готовый фартук, или придется протягивать дополнительные удлинители, но это серьезно повлияет на комфорт (будет много лишних проводов). Почему эти варианты плохи:
- Для монтажа розеток, после установки фартука необходимо использовать дополнительное оборудование. Отсутствие опыта выполнение подобных работ тоже может принести трудности: отверстие для розетки будет не аккуратное, что испортит эстетику, выбрать правильное место тоже будет тяжело.
- Подобная работа требует дополнительных растрат. Работы по штроблению стен под провода создадут много грязи на новой кухне, а после этого понадобится повторно проводить отделочные работы.
- Дополнительные работы по монтажу розеток невозможны при использовании фартука, например, из стекла или керамики.
Установка и модели вытяжки
Зона под вытяжкой требует особого внимания про выборе фартука
При этом важно обратить внимание на тип вытяжки, ее размеры, и где она расположена на кухне. На высоту фартука могут повлиять следующие факторы:
- При монтаже купольной конструкции над вытяжкой может устанавливаться, или не устанавливаться шкаф. Если его нет, значит высота фартука может или заполнять пространство над вытяжкой до самого потолка, некоторые делают его на уровне верхнего края кухонного гарнитура.
- Высота фартука под вышкой, соответствует высоте основного фартука
- Если плита с вытяжкой стоят отдельно от кухонного гарнитура, его можно выделить контрастным фартуком из другого материала, или наоборот, оформить каким-то материалом в цвет основному.
Если вокруг вытяжки свободное пространство (то есть нет навесных шкафов), или она стоит отдельно от кухонного гарнитура, тогда выбираются оригинальные варианты отделки несколькими материалами.
Установка фартука под вытяжкой

В плане монтажа фартука участок под вытяжкой считается самым проблемым. Его ширина в этой области будет увеличиваться. Дополнительно выкладывается ряд плитки 5-10 см. Можно сделать дополнительный ряд плитки вокруг самой техники
Важно, чтобы оформление вытяжки подходило под общий интерьер кухни
Монтаж фартука зависит от вида используемого материала. Часто это может быть керамическая плитка, стеклянные или пластиковые панели. И в том и в другом случае стоит придерживаться стандартной инструкции монтажа конкретного материала.
Кухонный фартук под вытяжкой
Второй момент – это ширина в месте монтажа вытяжки. Наиболее распространена и часто используется встроенная модель, которая крепиться к шкафчику, либо отдельно расположена. Тогда фартук достигает в этой зоне размеров 90-95 от крышки тумб и 180-185см от пола плюс 2-4 см на припуски. Здесь нужно быть очень бдительным при выборе низа вытяжки по росту.

Расчет очень прост – работающая вытяжка не должна упираться в лоб хозяйке либо хозяину, а быть выше. Это и определяет отметку навески в этом месте. И еще один размер следует учесть. Если плита, к примеру, 500мм, то вытяжка по минимуму должна быть шириной 600. И все пространство под ней должно быть закрыто с учетом захода его за мебель. Модель может быть и купольной, тогда никакого шкафного монтажа не требуется. Фартук в этом случае рассчитывается по вашему усмотрению – до потолка либо до вытяжки.
Дополнительные расчеты для фартука
Мы рассмотрели стандартные параметры, каким должен быть фартук для кухни (размеры, высота). Но есть еще дополнительные детали, которые следует учитывать:
Еще на стадии ремонта помещения важно, чтобы все углы стен, где будет располагаться гарнитур, были прямые, а пол выровнен по уровню. Тогда никаких неприятностей с монтажом, перекосом дверок, петель, лишними зазорами у вас не будет
Стандартные размеры фартука на кухне отлично впишутся в ваш интерьер.
В небольших помещениях часто плиту располагают вплотную к торцевой стене, чтобы не прерывать столешницу. В этом случае целесообразно, фартук из плитки, например, опустить до плинтуса. Или хотя бы пустить один ряд плитки на стыке края плиты и стены.
При выборе фартука, прежде всего, определитесь, как он монтируется, а лишь затем заказывайте кухонный набор. Сегодня наиболее востребованы фартуки из керамической плитки. С ними легко работать и просто рассчитать. Размер кратен 100мм, как плитки, так и декоров, он монтируется до установки мебельных модулей.
При любом виде материала перед его монтажом следует выполнить все электромонтажные работы. Это розетки, расположенные на его поверхности. Проследите, чтобы они не попали на декоры. Предусмотрите их в тех местах, где планируете установку электрооборудования – микроволновой печи, электрочайника, иного. Так же учтите пару дополнительных розеток для разового подключения блендера, электрической мясорубки, прочего.
Ассортимент материалов для фартука огромен, поэтому реально присмотреть именно тот, который украсит дизайн всего помещения. Он может быть ярким, строгим, комбинированным и при этом выступать своеобразным акцентом, украшающим общий облик. Учтите все особенности планировки комнаты приготовления пищи, ее площадь, расположение окон и двери, уровень потолка, чтобы спроектировать свою кухню. Исходя из этого, рассчитайте стандартные размеры фартука на кухне в каждом отдельном случае. В выборе вам поможет видео.
Что необходимо учитывать при составлении схемы электропроводки на кухне
- Первым делом, составить полный список электроприборов, которые вы собираетесь в последствии использовать. Без чего вряд ли получится обойтись даже с учетом, что размер кухни небольшой: плита (если в доме не проведен газ), холодильник, вытяжка, микроволновка, мультиварка и электрочайник. Если же площадь кухни позволяет, то кроме перечисленного устанавливают посудомоечную машину, телевизор, морозильную камеру, кофемашину и кулер. Добавьте к этому бра или другие светильники. Переодически потребуется включать мелкие бытовые приборы: миксер, электромясорубку, соковыжималку, тостер и т.д. Список используемой на кухне техники внушительный, поэтому требуется заранее продумать, в каких местах будут расположены розетки.
- Только перечнем электроприборов не обойтись. Потребуется знать, где и какая мебель после ремонта будет находиться в помещении. Желательно, чтоб по возможности розетки были на всех четырех стенах. Обязательно запланировать размещение минимум двух розеток на свободной от кухонного гарнитура стене. Они могут потребоваться для подключения телевизора, настольного светильника. Отметьте предполагаемое размещение холодильника, телевизора, осветительных приборов, мебели на листе бумаге.
- После этого определяемся с тем, где должны располагаться сами розетки. Это не так просто, как может показаться, потребуется соблюдение правил. На этом же этапе надо решить, на какой высоте и для каких приборов будут размещаться на кухне розетки.
Список источников
- idealkuhnya.ru
- kitchennice.ru
- dekoriko.ru
- yaplitka.ru
- stroy-podskazka.ru
- ribnydomik.ru
- rem.ninja
- mebelclubspb.ru
- homius.ru
- ukuhnya.com
- zharovnya.club
- blogremont.ru
7 лестниц