Основные этапы планирования
Весь процесс планирования можно разделить на 2 основных этапа:
- Определение расположения здания бани на плане участка.
- Составление плана помещений, находящихся внутри бани.
Планируем размещение на участке
Размещая баню на участке, нужно учитывать не только наличие свободной площади, но и доступность коммуникаций.
Оптимальным является вариант, когда дачу можно разместить в 15-20 м от водоема. Это не только предоставит неограниченный источник воды, но и даст возможность принимать контрастные водные процедуры. Если нет такого естественного водоема, его часто заменяют искусственным прудом, а в наиболее бюджетном варианте – ставят возле бани большую бочку с водой.

Идеальное расположение и постройки, и искусственного водоема
Конечно, отдельно стоящая в благоприятном месте баня, является идеальным вариантом. Но и цена такой постройки значительна. Поэтому, при возможности совмещайте баню с постройками, уже имеющимися на участке. Это позволит упростить строительство и сэкономить материал.
Удачным решением, например, является совмещение бани с летней кухней.

План бани, которая будет примыкать к летней кухне
Составляем план внутренних помещений
Составляя внутренний план бани 6 на 6, нужно учесть:
- Количество членов семьи, которые могут одновременно находиться в банном помещении.
- Назначение (будут ли здесь только мыться или еще и париться).
- Вместимость парной, которая должна вмещать нескольких человек одновременно;
- Канализацию, вентиляцию и пожарную безопасность.
В классическом варианте такая баня представляет собой прямоугольное здание с тремя отдельными помещениями внутри:
- Парной.
- Моечной.
- Комнатой отдыха, которая одновременно служит предбанником.
Внутренние перегородки между ними следует выполнять из того же материала, что и стены, т.к. они будут служить дополнительными опорами.
Такова примерная внутренняя планировка бани 6х6,распределение полезной площади которой производится следующим образом:
- Около 9 кв. м занимает комната отдыха.
- Примерно 4 кв. м отводится на моечную.
- Около 5 кв. м приходится на парную.
Двухэтажная баня
При желании хозяина здание таких размеров вполне может быть двухэтажным. План бани 6х6 допускает наличие террасы и большого балкона.
Рациональная и продуманная планировка позволяет не только принимать в бане водные процедуры, но и дает возможность обустроить на мансардном этаже бильярдную или тренажерный зал.

Пример двухэтажного строения с высокой функциональностью
Этот вариант планировки бани 6х6 является наиболее комфортным, хотя, безусловно, затратным. Лестницу на второй этаж желательно устанавливать в комнате отдыха, что предотвратит попадание влаги на мансарду.
Размещение полок в парной
Пользоваться такой баней, может одновременно семья из шести человек. Чтобы никто из них не испытывал нехватку площади, при выборе планировки бань 6х6 нужно продумать размещение полок в парной.
Обычно они имеют такой размер, чтобы на них мог поместиться взрослый мужчина. В русской бане их размещают в 3 уровня.

Несколько уровней полок, которые отвечают всем потребностям человека в планировке
Верхняя полка устанавливается, как правило, на высоте около 110 см. При этом требуется, чтобы на ней можно было свободно сидеть, не упираясь головой в потолок.
Выбор типа печи
Инструкция к составлению проекта на завершающем этапе требует предусмотреть тип печи. Обычно происходит выбор между каменкой и металлической печью.
Каждая из них имеет свои преимущества. Если каменка долго нагревается, но зато долго держит тепло, то металлическая печь, напротив, греется быстро, но также быстро и остывает.
Как раз план бани 6х6 предполагает, что более предпочтительной является установка каменки, поскольку только она может обогреть столь значительную площадь в зимнее время. Устанавливается она в парной, а топка выводится в комнату отдыха, тем самым обогревая и ее.

Каменка в парной, как идеальная печь
Таким образом, план бани 6 на 6 должен учесть все основные нюансы, которые могут возникнуть при ее строительстве. Поэтому, при его составлении желательна консультация профессиональных архитекторов или, как минимум, опытных строителей.
https://youtube.com/watch?v=LnXxlNIZo4E
Подготовка к постройке
При планировке строения необходимо четко определиться с местом расположения «свежего» объекта. Так, если создаваемый проект бани 6 на 9 будет стоять в живописной местности, то следует обустроить все таким образом, чтобы выйдя из парилки, можно было бы полюбоваться чудесным ландшафтом.
В таком случае, оптимальным вариантом является возведение банного сруба, в котором имеется терраса. Площади 7м2 вполне достаточно для размещения небольшого летнего столика, здесь все располагается на одном уровне. С террасы открывается вид на 3 стороны, на нее можно выйти из бани, либо зайти с улицы.

На фото баня с террасой
Учитывая размеры будущей постройки, а также особенности почвы, делается выбор в пользу ленточного, либо столбчатого фундамента. Если в местном грунте превалирует глина, то основу конструкции следует располагать в 10 см ниже точки промерзания. Песочные грунты в подобном заглублении не нуждаются.
Ленточный фундамент
Технология монтажа такой основы довольно проста, однако здесь понадобится внушительный участок земли и большое количество материала. На таких фундаментах устанавливаются проекты бань 6х7 и более.

Фундамент для бани
Ленточные фундаменты для бани строятся следующим способом:
- в грунте, по периметру вырывается траншея;
- туда заливается раствор. Наполнителем может быть гравий, бутовый камень, отходы кирпича;
- здесь же делается пароизоляция (несколько слоев рубероида);
- кладка скрепляется с помощью цементно-песчаного, либо цементно-известкового раствора;

Отмостка, конструктивное исполнение
готовый фундамент необходимо защитить. Для этого оборудуется отмостка в метр шириной. Чтобы оттуда стекала вода, ее требуется сделать наклонной.
Столбчатый фундамент
Инструкция предупреждает — на подобных каркасах могут располагаться только легкие конструкции. По сравнению с ленточными аналогами, их укладка выйдет дешевле, более быстрыми темпами. Такие фундаменты ─ идеальный вариант для брусчатых и рубленых бань, в которых не требуется установка перемычек.

Столбчатый фундамент
Когда возводится столбчатый фундамент, то столбы водружаются там, где будут находиться стены. Тумбы поднимаются выше уровня земли на 200 мм. Образовавшаяся верхняя плоскость выравнивается с помощью цементного раствора.
Сам грунт изолируется полотнами рубероида. Затем сюда же подсыпается песок и гравий, сверху все заливается бетоном. В глинистой почве идеально стоят бетонные столбы.
Известны два способа изготовления сруба:
«в чашу», при котором торцы бревен оканчиваются за пределами углов;

Рубка в лапу
«в лапу», где четко соблюдается заложенная геометрия.
В обоих этих случаях, бревна максимально прилегают друг к другу благодаря тому, что в соседних сегментах выпиливаются симметричные пазы.
Краткое описание особенностей конструкции и используемых материалов двухэтажной бани
Для изготовления сруба использован пиленый брус 150×150 мм, кровельное покрытие – ондулин, обшивка внутренних и внешних стен из натуральной вагонки. Для фасада можно заменить натуральную вагонку более дешевыми материалами.
Фундамент ленточный мелкоуглубленный армированный.
Схема мелкозаглубленного ленточного армированного монолитного фундамента
Нижний обвязочный ряд из пропитанного антисептиками бруса 150×150 мм. Для лаг требуются доски 50×150 мм, шаг лаг 60 см. Для монтажа чернового пола под утеплитель первого этажа крепятся черепные бруски 50×50 мм, они прибиваются по сторонам половых балок.
Сруб из пиленого бруса 150×150 мм, обвязочный ряд желательно пропитать антисептиками. В подполье бани очень сыро, дополнительная защита даст возможность надежно защитить деревянные элементы от порчи.
Балки перекрытия и стропила изготовлены из доски 50×150 мм, шаг 80 сантиметров. Для обрешетки можно брать рейки 20×50 мм или необрезные доски толщиной 20 мм.
Рейки 20×50 мм
Крыша утепленная. Делать на двухэтажной бане неиспользуемый чердак нецелесообразно по экономическим соображениям.
В качестве утеплителя используется минеральная вата или стекловата.
Утеплители
Об утеплителях стоит немного поговорить. Реклама производителей утверждает, что только минеральная «базальтовая» вата является самым лучшим материалом, она не колется, не вызывает аллергических реакций и т. д. За счет таких «выдающихся свойств» минеральной ваты все производители значительно увеличили ее цену.
Базальтовая вата
Что же на самом деле? Базальт в своем составе содержит более 50% стекла, именно оно является главным компонентом базальтовой ваты (как и для стекловаты), все остальные примеси очищаются. Тогда в чем разница по химическому составу между обыкновенной стекловатой и минеральной?
Далее, почему колется стекловата, а минеральная нет? И здесь все просто. Раньше технологии не позволяли делать волокна стекла очень тонкими, из-за этого у них было достаточно «силы», чтобы создавать неудобства. Сегодня стекловату можно изготавливать с очень тонкими волокнами, она уже не колется. Еще один момент, о котором не говорят производители.
По себестоимости изготовление стекла обойдется намного дороже, чем использование готового вулканического стекла (базальта). Тогда почему цена минеральной ваты намного больше, чем стекловаты? И здесь все просто. Реклама обслуживает производителей, а не потребителей. Грамотная рекламная кампания позволила продавать минеральную вату значительно дороже себестоимости производства, а за счет этого возрастают прибыли. Мы остановились на вате только для того, чтобы убедить вас не доверять слепо рекламе, а думать при выборе материалов. Вывод: далеко не все, что дороже имеет лучшие эксплуатационные характеристики.
Видео – Свойства каменной ваты Rockwool
Для фронтонов применяются шпонированные доски толщиной 40 мм, карнизы и углы сруба обиты вагонкой. Во фронтонах устанавливаются четыре окна, можете использовать пластиковые или сделать деревянные. Для самостоятельного изготовления деревянных окон нужны солидные знания и станки по дереву.
Стропильная система двускатной крыши с вертикальными опорными стойками, сверху ноги связаны перемычкой.
Стропильная система двухскатной крыши
Два верхних ряда сруба нужно фиксировать увеличенным количеством нагелей, лучше применить металлические прутки. Последний ряд сруба выполняет функцию мауэрлата и будет воспринимать значительные боковые нагрузки от стропильных ног.
Крыша. Для покрытия крыши используется ондулин – отличное покрытие по качеству и цене.
Ондулин
Под этот материал делается обрешетка из реек 20×50 мм, можете вместо реек брать необрезные доски, доски б/у, оставшиеся после разборки опалубки фундамента и т. д. Ондулин крепится специальными гвоздями, вбивать гвозди нужно только в верхнюю часть волны. Под ондулин обязательно класть гидроизоляцию, нахлест не менее 10 сантиметров, изоляция фиксируется степлером.
Систему водоотвода дождевых вод устанавливать обязательно, во время ее монтажа не повредите листы ондулина, у него недостаточно прочности. Не забывайте делать уклон сливных лотков примерно 3÷5°, предусмотрите отвод воды от фундамента.
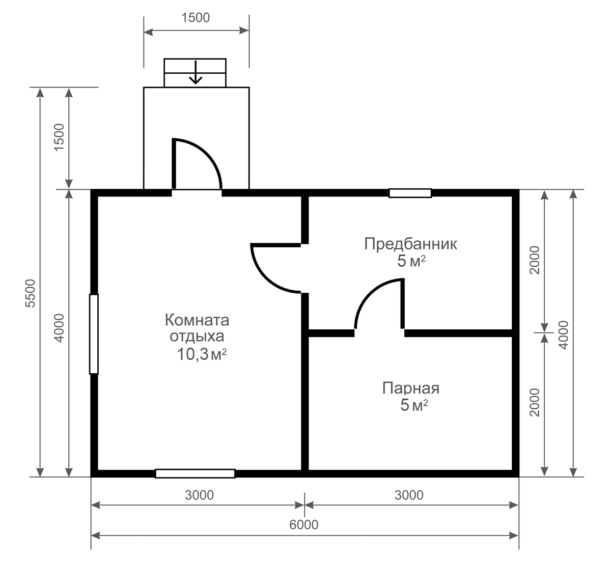
Особенности бани 6 на 6 метров

В мансарде над баней можно какое-то время жить или разместить гостей
Причин, по которым строится довольно большая баня, размерами 6х6 метров несколько:
- Рассматриваемая схема бани 6х6 метров является наиболее оптимальной для тех, у кого большая семья или тем, кто имеет большой круг друзей, собирающихся одной веселой компанией.
- Чаще всего такая баня – это первая капитальная постройка на участке и может служить заменой дома, в то время, когда строится основное жилье.
- При правильной планировке в такой бане можно не только помыться, попариться, но и качественно отдохнуть. Кроме того на 2 этаже могут быть обустроены спальни для гостей, бильярдная или тренажерный зал.

Пример схемы бани 6 на 6
Однако помните, строительство такой бани займет гораздо большее время и, конечно же, гораздо большие финансовые затраты. Хотя с другой стороны время строительства значительно сократится, если будет использоваться сухой материал. В то же время стоимость увеличится, тогда как баня под усадку 6 на 6 будет значительно дешевле.
Отделочные материалы
Материалы, при помощи которых будет производиться внутренняя отделка, должны соответствовать определенным требованиям:
- быть прочными и иметь продолжительный срок службы;
- обладать хорошей устойчивостью к перепадам температур и влажности воздуха;
- быть экологически чистыми, а именно не содержать токсичных веществ, которые могут выделяться при нагревании;
- быть гипоаллергенными и безопасными, неспособными обжечь или травмировать людей;
- легко поддаваться обработке моющими средствами;
- иметь эстетичный и приятный внешний вид.
По всем этим параметрам идеально для внутренней отделки бани подходит натуральное дерево – остается подобрать определенный вид дерева для каждой отдельной зоны.
Так, для дизайна стен в парной, а также для изготовления лавок, лежанок и сопутствующей банной утвари лучше всего выбирать лиственные породы деревьев. Такая древесина не нагревается до высоких температур, в ней отсутствуют смолы, она быстро просыхает, что препятствует образованию грибка и гнили. Для этой цели прекрасно подойдут липа, ольха или осина.
Липа имеет светлую, нежную текстуру, приятную на ощупь, она не темнеет от времени, а при нагревании распространяет вокруг себя очень нежный аромат. Осина обладает особой прочностью: она менее всего подвержена рассыпанию и деформации. Ольха обладает прекрасными бактерицидными свойствами, она также приятна на ощупь, устойчива к перепадам температур и конденсату.
Для отделки предбанника, напротив, лучше использовать древесину хвойных пород, таких как ель или сосна. Так как это помещение обычно сильно не нагревается, запах хвои, выделяемый под воздействием умеренного тепла, наполнит помещение приятным ароматом, который, ко всему прочему, обладает бактерицидными свойствами и способностью повышать иммунитет человека. Это свойство способствует сопротивляемости человеческого организма к инфекционным заболеваниям.
Сосна достаточно долговечна и имеет красивую структуру. Кроме этого, сравнительно невысокая стоимость отделочных материалов из сосны делает их самыми популярными для облицовки предбанников и комнат отдыха в современных банях. Отделка из ели или пихты будет иметь более светлый оттенок и более прочную структуру, которая не растрескивается после полного высыхания и усадки строения. При этом пихтовая доска, в отличие от ели и сосны, практически не выделяет смолу. Для тех кто не любит хвойного запаха, можно посоветовать для отделки берёзу.
Для отделки моечной лучшим вариантом будет использование кафеля, так как он лучше дерева переносит неограниченный контакт с водой. К тому же он совершенно не подвержен гниению, за ним гораздо проще ухаживать. Чтобы не нарушать гармонию в дизайне, можно подобрать кафель с рисунком, имитирующим дерево.
О том, как отделать баню изнутри, смотрите в следующем видео.
О размерах
Определяя габариты сруба, следует корректировать расчеты, согласовываясь со строительными, законодательными, пожарными и прочими нормами. К примеру, выбирая место, где будет строиться проект бани 6х7, следует отступить от границы соседних наделов на расстояние от 1 до 3 м.

Вымеряйте все правильно
В любой бане должны присутствовать основные помещения ─ раздевалка, моечная, парилка. От размеров последних зависит общая кубатура. Также, требуется учесть, сколько людей будут находиться одновременно внутри бани. Не последнюю роль играет и цена материалов.
Раздевалка
Предбанник (или прихожая-тамбур) строится с таким расчетом — один человек нуждается минимум в 1,5 м2 площади. Помещение нужно утеплить, чтобы холодный воздух снаружи не попадал внутрь. Здесь же происходит врезка широкого окна.

Хороший предбанник
Помещение оборудуется:
- вешалкой (шкафчиком) для одежды,
- местом, куда укладываются дрова или уголь.
Если баня используется лишь летом, раздевалку можно заменить террасой.

Хорошо видна дверь в парилку
Парилка
Из раздевалки можно попасть в моечную, а далее в парилку. Иногда, два последних помещения совмещаются в одно. В парилке на одного человека должен приходится минимум 1 м2 площади, оптимальной формой для нее считается квадрат.

Интересные лежаки
Глухая стена обычно оснащается деревянными скамьями в несколько ярусов.
Терраса
Здесь вам пригодятся знания, приобретенные во время изготовления лестницы. Длина нашей террасы 3 м, ширина 1,5 м, вертикальные опоры из пиленого бруса 150×150 мм. Брус должен быть максимально качественным, выберите его для опор еще в период кладки сруба
Обратите внимание, чтобы на нем не было гнилых сучков и трещин, все четыре грани были параллельными, не было изгибов. Брус нужно тщательно отшлифовать, острые углы снять под фаску
Верхняя часть соединяется с обвязкой бани, нижняя часть устанавливается на фундамент, для гидроизоляции используйте два слоя рубероида. Идеальный вариант – брус садится на анкер, забетонированный во время заливки фундамента. Если для вас сложно точно рассчитать положение анкера, тогда фиксируйте вертикальные опоры металлическими уголками на саморезы и дюбеля.
Видео – Монтаж усадочных домкратов
Ограждение террасы из балясин и перил. Крепление балясин такое же, как мы описывали для лестницы. Только одно различие – все запилы по торцам должны делаться не под уклоном, а под углом 90°. Внимательно делайте разметку и сверлите отверстия, балясины крепятся на шкантики, не забывайте использовать столярный клей.
Ограждение террасы
Перила к вертикальным стойкам можно крепить в шип (довольно сложный метод) или уголками (самый простой метод). Советуем пользоваться уголками, по физическим характеристикам они надежнее шипового. В нижней части перил и опорах нужно вырубить долотом посадочные места уголков, работайте очень аккуратно, размеры посадочных мест должны соответствовать размерам металлических уголков.
Крыша бани
Крыша с ондулиновым покрытием, наклонная, двухскатная, фронтоны обшиваются вагонкой под оцилиндрованное бревно. Стропила изготовлены из досок 50×150 мм, обрешетка из реек или необрезных досок. Расстояние между стропилами 80 сантиметров. Перед началом монтажа кровли следует временно накрыть потолочные балки прочными досками. Они должны выдерживать вес рабочих и строительных конструкций.
Крыша с ондулиновым покрытием
Шаг 1. Проверьте размеры верхнего ряда бани по горизонтали, проверьте параллельность по длине и ширине. Отклонения не должны превышать 1÷2 сантиметров по углам бани.
Шаг 2. Сделайте шаблон стропил из досок. Поднимите шаблон и «пройдитесь» с ним по всей длине бани, положение стропильных ног должно быть симметричным по концам. Отметьте места для зарубок. Все нормально – снимайте шаблон и приступайте к изготовлению стропил.
Видео – Как запилить стропила под нужным углом и нужных размеров
Шаг 3. Несмотря на то, что ширина бани допускает изготовление самой простой висячей стропильной системы, мы выбираем наслонный вариант. Дело в том, что для неопытных строителей сделать качественную висячую стропильную систему на предельных значениях пролетов очень сложно, рисковать не стоит. Лучше установить коньковый брус и вертикальные упоры к нему (бабки). Заготовьте все стропила, в собранном виде поднимите их на баню.
Стропильная система
Видео – Установка стропил
Шаг 4. У фронтонов установите вертикальные стойки соответствующей длины, закрепите на них коньковый брус. Постоянно проверяйте точность линейных размеров и пространственного положения.
Стропила и коньковый брус
Шаг 5. По очереди устанавливайте стропила, проверяйте их положение и фиксируйте стальными уголками толщиной не менее 1,5 мм. Временно связывайте между собой установленные стропильные ноги отрезками досок, после устройства обрешетки они демонтируются.
Шаг 6. При помощи веревки с синькой отбейте на стропильных ногах линии для реек обрешетки. По всей длине крыши делать разметку не стоит, начните со свесов, далее можно расстояние между рейками контролировать простейшими шаблонами.
Шаг 7. Устанавливайте кровельное покрытие, проверяйте положение рядов. Для гарантии герметичности можете использовать гидрозащиту из любого материала. Ондулин изготавливается из модифицированного битума и полимерных добавок на основе отходов бумажной промышленности. Физические характеристики прочности такого материала требуют бережного отношения во время установки кровельного покрытия. По нему нежелательно ходить, фиксация выполняется специальными гвоздями с мягкими уплотнительными прокладками. Вколачивать гвозди нужно с чувством.
Шаг 8. Подровняйте выступающую обрешетку по размерам листов ондулина. Установите несущие конструкции для обивки фронтонов. Подбейте досками свесы стропильных ног, поставьте коньковую защиту и т. д.
Коньковая деталь
Шаг 9. Установите водосточную систему согласно рекомендациям производителей, зашейте фронтоны. Если нет желания монтировать водоотвод – нужно сделать вокруг бани отмостку.
Видео – Монтаж пластикового водостока
Самые трудоемкие работы закончены. В таком состоянии сруб может зимовать (лучший вариант), если нет времени – начинайте внутренние работы.
Вспомогательные комнаты, расположенные внутри отдельно
В современном мире баня – это не только помещение, где можно принять водные процедуры. Нередко именно в бане можно посидеть с друзьями или просто отдохнуть после тяжелого трудового дня. Но тогда необходимо позаботиться про обустройство дополнительных помещений.
Комната отдыха
Для бани 6х4 можно предусмотреть отдельную комнату для отдыха, не совмещая ее смете с предбанником. Эта комната довольно вместительная, так что она будет занимать ½ площади всей бани. Если вентиляция позволяет, то можно установить и мягкую мебель, которая не будет бояться перепадов температуры и повышенной влажности.
Оборудуют комнату отдыха удобными скамейками, большим столом, лежаками.
Бассейн
Если говорить о классической русской бане, то она не предусматривает такой элемент, как бассейн. Но сегодня это уже далеко не роскошь. Некоторые проекты могут предполагать наличие полноценного плавательного бассейна. Но только располагать его под одной кровлей с парилкой не совсем верно. А вот как выглядит проект двухэтажной бани с бассейном, поможет понять информация по данной ссылке.
Полноценный бассейн может быть полноценно заменен купелью. Тогда отпадает надобность выделять под бассейн закрытое помещение. А так можно сделать душевую комнату немного просторнее и установить купель. Этот вариант считается более приемлемым для такой бани.
Спальня
Такой вариант планировки считается довольно удобным, если вы частенько собираетесь в бане с друзьями. Тогда ее можно задействовать не только для принятия водных процедур, но и полноценного отдыха. Она может иметь отдельный вход, но при этом в обязательном порядке должна быть изолирована от основного банного блока. Возможно вам также будет интересно больше узнать про проект бани с бассейном из пеноблоков.
Спальня в бане будет отдельной комнатой и не выполняет функции комнаты для отдыха.
Для этого можно поделить внутренне пространство постройки на 2 равные части. Уличная дверь будет находиться четко по центру. В одну сторону от входа обустроить спальню, а в другой будет находиться парилка и помывочная. Гостевое помещение имеет смежную стену с комнатой отдыха или парилкой.
Есть ещё одни вариант планировки. Суть его в том, что помещение поделить на 2 части – гостевую и общую банную. Комната большей площади отойдет для принятия водных процедур, а вот оставшееся пространство послужит для спальни. А вот насколько хорошо выглядит проект бани из газосиликатных блоков с мансардой, и как правильно можно выполнить строительство такого проекта, указано здесь.
Пристройки: веранды, мансарды
Имеется еще один не менее интересный вариант плана бани 6х4. В этом случае необходимо возвести основой банный блок. Он будет объединять в себе парилку, помывочную и даже комнату отдыха. А вот оставшиеся комнаты можно отвести для бассейна, спальни или зоны отдыха. Такой вариант планировки отлично подойдет тем, кто применяет баню сезонно, то есть в летнее время.
Также использовать этот вариант можно тем, кто не может потратить большую сумму денег на возведение сразу большого комплекса. Еще можно обустроить мансарду. Она станет отличным помещениям для оборудования гостевой, спальни или комнаты отдыха. А вот как будет выглядеть деревянная баня с террасой, можно увидеть на фото в данной статье.
Преимуществом такой планировки в том, что пристраивать вспомогательные комнаты можно по мере их необходимости и возможности. Кроме этого, создается прекрасная возможность сэкономить на применяемых материалах.
Для дополнительных блоков не нужно возложить мощный фундамент, как это требуется для бани. Для этого вполне подойдут свайные или неглубокие ленточные основания. В тех комнатах, где присутствует невысокая влажность, можно сэкономить на покупке паро-и гидроизоляции, используя более простые материалы.
Строительство бани – это ответственный момент. Необходимо все заранее предусмотреть и ничего не упустить. Составить планировку вполне реально самостоятельно, без привлечения специалистов. А представленные рекомендации вам в этом смогут помочь. Как правильно создать план для бани с комнатой отдыха читайте в этом материале.
На что стоит обратить внимание при выборе проекта?
Самое первое, на что необходимо обращать внимание – это размеры и уникальность проекта. Так, баня проектом 6х6 или 5х5 может быть рассчитана на одинаковое количество людей, тут все напрямую зависит от функциональности расположенных внутри нее помещений
В большинстве своем обладатели дачных и загородных участков останавливают свой выбор на типовых проектах, так как такой вариант исполнения является менее затратным в сравнении с индивидуальной разработкой. Без сомнений, созданный только для вас проект, учитывает все ваши желания, однако и воплощение его в жизнь окажется в несколько раз дороже, в сравнении, к примеру, с типовой баней из бруса 6х6.

Второе, с чем вам необходимо будет определиться – это материал, из которого будут возведены стены, так как от него зависит выбор типа фундамента. Решающим фактором в этом случае окажется грунт на участке, а также общий вес конструкции. Также следует учитывать и доступность дерева, ведь перевозка бруса из другого региона также в разы увеличит стоимость конструкции.
Третий пункт, это, как правило, рабочая сила. В этом случае варианты не могут похвастаться своей многочисленностью, однако нуждаются в обсуждении, так как можно разбить на этапы строительство, каждый из этапов может выполняться, как самостоятельно, так и при помощи сторонней силы. Самое простое, правда, не всегда качественное и дешевое решение – это доверить строительство бани под ключ одному подрядчику. Если вы уверены в выбранной фирме, а в строительном договоре тщательно оговорены все этапы, сроки выполнения и возможные замеры, то такой вариант имеет место быть. Те, кто желает уменьшить стоимость строительства, заключают договоры с разными компаниями или берутся за выполнение этапов своими силами. Оправдан такой подход может быть тем, что многие компании, которые предлагают возведение бань, кровельные и фундаментные работы заказывают на стороне. При этом для вас стоимость работ увеличится, по меньшей мере, на цену прибавочной стоимости главной компании – застройщика. Проведенные самостоятельно работы, обойдутся вам гораздо дешевле, и вполне возможно будут выполнены качественно, если вы будите соблюдать все необходимые условия.
Последнее, о чем стоит подумать, – это варианты замера. Безусловно, если, к примеру, изначально задумывалась баня из пеноблоков, а на этапе возведения вы резко захотите баню из бревен, то, скорее всего их этого ничего хорошего не выйдет. Однако надо знать, что вы готовы осуществить замену отдельных материалов, в случае изменения их стоимости или их отсутствия в необходимом количестве, безусловно, необходимо.
Оптимальный вариант проекта бани 6х3 из бруса
Деревянное строение 6 на 3 со стороны будет напоминать благоустроенный деревянный домик. В данном помещении ни с чем несравнимый запах древесины позволит создать атмосферу спокойствия и уюта.
Как показано на проекте ниже, в таком строении предусмотрено 4 помещения:
- комната для отдыха;
- предбанник;
- парилка;
- моечная.
А если вы разместите в такой бане еще деревянную мебель, пару кресел, диван и столик, а также установите домашний кинотеатр и телевизор, то сможете обеспечить не только комфортное нахождение в такой бане, но и создадите все условия для полноценного отдыха.
Один из типовых проектов бани 6х3
Такое строение включает в себя:
- фундамент. В этом случае он будет относиться к столбчатому типу, и состоять из цементных блоков с размерами 200 на 200 на 400 мм. Устанавливать их нужно под основные опорные точки вашей конструкции через 1,5 м;
- основание бани. Первый ряд состоит из нестроганного бруса с размерами 150 на 150. На пол предусматривается настил лаг, также из нестроганого бруса с размерами 150 на 100. Укладывать их нужно с шагом в 70 см;
Лаги на пол уложены
- стены. Стены такого строения возводятся из профилированных брусьев с прокладкой между ними льняного полотна. Во время монтажа для внутренней отделки будут использоваться оцинкованные гвозди. В моечной и комнате отдыха стены можно и не обшивать.
- перегородки. Для их обустройства используется профилированный брус с размерами 90 на 140 мм;
Брус профилированный
- потолок. В комнате для отдыха и моечной бани потолок подшивается вагонкой из хвойных пород дерева. А также проводится пароизоляция с помощью специальных материалов и утепление;
- парная. В данном помещении потолок, и стены нужно проложить фольгой и отделать вагонкой хвойных пород дерева. А также в парной предусматривается порог из строганных досок;
- поддон. В моечной предусматривается наличие поддона со сливным устройством;
- банная печь. В комплектацию проекта она не входит;
Вариантов обустройства печи очень много.
- стропила. В этих целях используется брус через 80 см с размерами 100 на 40 мм.
Проекты бань 6 на 3 из бруса могут быть скорректированы по вашим пожеланиям, соответственно цена нового заказа немного будет отличаться от базовой стоимости. Возвести конструкцию с такими маленькими размерами, вы сможете всего за неделю, после чего долгое время наслаждаться водными процедурами уже в своей собственной бане.
Небольшой, но функциональный проект
Экономный проект бани 6 на 3
Ширину обычно принимают в 3 м
Уютная и компактная баня считается самым оптимальным вариантом установки на участке земли с небольшими размерами. По причине отсутствия свободных метров на загородном участке все больше людей стали выбирать проект бани 3х6 из бруса с удлиненной конструкцией.
Несмотря на такие малые размеры банного комплекса, вы можете быть полностью уверены, что в нем с легкостью смогут поместиться пара- тройка человек.
На основе выше предложенного проекта вы видите, что данная постройка будет состоять из трех помещений:
- моечной;
- парилки;
- и комнаты отдыха, которые будут расположены в ряд.
Так, что вы даже при относительно малых размерах моечной, сможете без труда разместить там гидромассажную ванну, а в комнате отдыха бани, к примеру – несколько кресел и столик. Кроме этого, в зависимости от ваших требований, в таком проекте предусматривается уменьшение размеров парной в пользу увеличения площади комнаты отдыха.
Мебель тоже должна сочетаться с общим стилем.
В базовый комплект такой постройки входит:
- материал для стен в виде строганного профилированного бруса с размерами 100 на 150 мм и либо 150 на 150 мм либо 200 на 150 мм — для перегородок;
- филенчатые двери и банная дверь в парилке;
- в качестве кровли используется мягкая волнистая кровля;
- в качестве межэтажных перекрытий будет использовать брус с сечением 150 на 100 мм, а шаг балок предусматривается в 70 мм;
- шпунтованная строганная доска с толщиной в 35 мм используется в качестве чистового пола;
Доска для пола
- для обшивки парилки предусмотрена вагонка из хвойных пород древесины с прокладкой из фольги;
- фундамент предусматривается столбчатый из бетонных блоков с размерами 400 на 400 на 400 мм.
Блоки для фундамента
Даже, несмотря на малые размеры, которые имеет баня 6 на 3 , если ее построить своими руками, она все равно будет выгодно смотреться как на берегу реки или вблизи озера, так и в лесу и на загородном участке.
Баня возле озера
Этапы возведения каркасной бани своими руками
Возведение каркасной бани производится по обычной для таких видов работ схеме: основание, стойки как угловые, так и стеновые, обвязка, потолок, крыша. Всю работу можно поделить на несколько этапов:
- Подготовка места для постройки бани. Сюда входит уборка мусора, травы, камней.
- Разметка участка, залив фундамента.
- Укладка первой обвязки бревен на готовый фундамент. Непосредственно перед самой укладкой бревна на фундамент нужно положить на него рубероид в два слоя. Таким способом выполняется гидроизоляция фундамента.
- Укладка лаг для пола. Она производится путем врезания концов лаг в нижнее бревно. Перед укладкой на них половых досок необходимо убрать весь мусор. Готовый пол утепляется керамзитом.
- Установка стоек. Стойки закрепляются как на нижней обвязке бревен, так и на верхней. Все это делается с соблюдением одинакового расстояния между ними.
- Укладка потолка. Сначала в верхние бревна врезаются потолочные балки, затем на них настилают доски. Для гидроизоляции потолка используют рубероид. Его укладывают на доски внахлест, в два слоя. Поверх этого укладывается двойная обрешетка. Затем все закрывают металлочерепицей.
- Обшивка каркаса, как с внутренней стороны, так и с внешней. Извне баню можно дополнительно обшить доской или сайдингом.
- Установка окон и дверей. Для этого используют специальный строительный уровень.
Список источников
- Proekt-sam.ru
- dekoriko.ru
- 2Gazon.ru
- banya-expert.com
- 9ban.ru
- banyamsk.ru
7 лестниц