Как сделать своими руками 8-ми рамочный улей Дадан
Самостоятельное строительство конструкции для содержания медоносных насекомых из прочной древесины, фанеры или ДВП доступно даже пчеловодам, которые не обладают хорошими столярными навыками. Понадобятся чертежи, где подробно, с размерами нарисованы все составляющие изделия.
Этапы изготовления и необходимые для него инструменты совпадают. Стенки корпусов, днище, крыша 8-рамочного Дадана отличаются от частей более вместительных строений только величиной.
Подготовка к работе
Вырезать детали и собирать конструкцию лучше в теплом сухом помещении. Если материалы пропитаются влагой, на них могут потом появиться трещины. Понадобится:
- чертеж улья (общий и всех деталей по отдельности);
- доски хорошего качества;
- дрель с шурупами или молоток с гвоздями;
- нетоксичный клей;
- краска.
Для гнездового корпуса с дном и рамок берутся доски толщиной 3,5-4 см. Стенки магазина, крыша, вставка под нее могут быть тоньше, около 2-2,5 см.
Станок для обработки древесины нужен, чтобы сделать улей Дадана своими руками. С его помощью придают гладкость поверхности досок, вырезают необходимые детали с пазами для соединения.
Порядок работы
Деревянные заготовки модулей будущего улья скрепляются между собой так, чтобы не оставалось щелей. Желательно места соединения деталей промазать клеем, закрепить шурупами, гвоздями с торцов.
По верху полученных прямоугольных модулей (кроме крыши) приделываются бруски для установки более высокого «этажа». У корпуса и магазина формируются фальцы для вощеных рамок.
Сборка производится постепенно, от днища до крыши. После заделки щелей строение промазывают грунтовкой, чтобы защитить от влаги. Затем готовый улей Дадан окрашивают снаружи для привлечения пчел, обычно в желтый или ярко-голубой цвет. Внутри его дезинфицируют или прогревают горелкой.
Размер восьмирамочного улья
Высота конструкции с 1 гнездовым корпусом и 1 магазином, вставкой под крышу примерно одинакова у всех вариантов Даданов – около 80 см. Из них по 9-10 см отводится на дно и подкрышник.
Высота стандартного корпуса составляет 32 см, магазина – 16,5 см. Крыша может дотягивать до 15-16 см.
Внутри длина равна 45 см, ширина зависит от количества рамок и толщины досок, из которых они изготовлены. Необходимо оставлять запас до 2 см. Для 8 вощин понадобится ширина корпуса 30 см.
Внешние размеры улья определяются толщиной досок. При 3,5 см длина конструкции составит 52 см, ширина – 37 см.
Чертеж восьмирамочного улья Дадан
На схеме видно расположение модулей компактного пчелиного домика. Оно учитывает особенности движения по сотам насекомых с добытым нектаром – снизу вверх.
Корпус. На передней стенке необходимо выпилить 2 летка для пчел. Нижняя щель проходит вдоль края, на стыке с днищем. У круглого или прямоугольного отверстия верхнего летка улья расположение должно быть по центру корпуса, отступая от края 6-7 см.
Магазин. Тонкие стенки увеличивают объем внутреннего пространства. Его можно использовать для углубления ячеек сот, чтобы матка не откладывала в них яйца.
Подкрышник. Высота вставки должна быть достаточной, чтобы поместить подкормку, матрасик для утепления гнезда.
Крыша. Верхушка делается шире и длиннее корпуса Дадана примерно на 2 см. Ей потребуется утепление и внешнее водостойкое покрытие, например, металлическое.
Дно. Хотя при закреплении всех деталей нижняя часть корпуса более герметична, большинство пасечников отдает предпочтение съемному днищу. Его легче очищать от мусора. На плоскость крепят 3 бруска, кроме стороны, на которой расположен леток.
Особенности содержания пчел
8-рамочный улей Дадан подходит для южных регионов. Обычно в него помещают ослабленные семейства весной, при слабом медосборе.
Модули облегченной конструкции улья можно перемещать, как рутовские. Но подобные принципы работы не подходят для содержания пчел в 8-рамочных Даданах из-за большой высоты корпуса. Насекомые весной при недостаточном количестве расплода склонны укладывать нектар с пыльцой в верхние ячейки гнезда вместо магазинных.
В чем отличия ульев Рута от Дадановских

Ульи Рута востребованы у пчеловодов. Эти методы пчеловождения позволяют получить хороший результат. Некоторые пасечники сравнивают Рутовский с ульем Даданова и указывают на их сходство. На самом деле принципы содержания пчелосемьи в Рутовской и Дадановской конструкции разные. В домиках Рута уход и содержание основано на поведенческих особенностях насекомых:
- домик состоит из нескольких корпусов. Каждая секция имеет по 10 рамок;
- после выхода из зимовки насекомых пчеловодов устанавливает еще один корпус с вощиной над пчелами;
- установка еще одной секции служит предложением для семьи расширить сове гнездо. Они перебираются в теплый корпус. Следом за пчелами перебирается и матка;
- как только насекомые переберутся пасечник меняет секции местами;
- после заполнения корпуса медом матку с расплодом отделяют сеткой. Через эту сетку труженицы могут проходить свободно, а королева нет. Это стимулирует рабочих насекомых на сбор меда, а матку на увеличение расплода.
А вот для Дадановских улей характерно:
- замена нескольких рамок после зимовки;
- позже, когда рамки заполнены медом устанавливается магазинная надставка для взятка;
- по мере заполнения надставки ее можно заменить пусто или дополнительно поставить еще один магазин между гнездом.
Конструкция Дадановских ульев не позволяет переохладиться пчелосемьи. Модель используют преимущественно холодных регионах. Кроме того, Дадановские улья просты в обслуживании. Поэтому рекомендуются для новичков.
Улей дадан на 10 рамок
10 рамочные модели на рамку 435 на 300 — это попытка пчеловодов еще более облегчить существующие габариты улья. Если судить по рамке и креплению корпусов и магазинов, то такая конструкция остается по сути даданом, но только сильно «похудевшим».
По внешним же признакам она напоминает теперь другой известный вариант улья Лангстрота — Рута, что приводит к определенным удобствам для пчеловодов, работающих на своей пасеке с разными типами конструкций.
Использование 10 рамочного улья на дадановскую рамку позволяет при необходимости менять некоторые общие для двух систем элементы, например, крыши, донья, магазины, медовые полурамки. Неиспользуемых частей становится меньше, экономиться место для их хранения.
Обратите внимание! Мы думаем, это будет вам интересно:
Пошаговая инструкция как сделать улей
Общим и главным элементом всех этих конструкций является рамка, магазинная полурамка имеет те же размеры, только короче, не 300 мм, а 145 мм.
Многие умельцы не пользуются покупным инвентарем у себя на пасеке, а предпочитают изготавливать все самостоятельно, считая такие жилища более подходящими для своих пчел. Преимущества такого подхода заключается в том, что всегда остается возможность что-то улучшить и усовершенствовать. Конструкция подгоняется мастером под свои особые условия эксплуатации.
Построить улей своими руками совсем не трудно, нужно только быть предельно аккуратным и точно придерживаться размеров, которые приведены в чертежах.
Занимаемся самостоятельным изготовлением
Конструкция улья, предложенная Даданом, а потом усовершенствована Блатом, считается наиболее оптимальной для рационального пчеловождения. Такая конструкция отлично подходит как для новичка, так и для опытного пчеловода. А сейчас давайте разберемся, как изготовить улей Дадана своими руками на 10 и 12 рамок соответственно.
Изготавливаем рамку
Инструментарий и материалы
- сухие тонкие заготовки из реек (пример и размеры на фото далее);
- молоток;
- стальная проволока;
- шило;
- плоскозубцы с кусачками;
- сапожные гвозди.
Изготовление
- Размер рамок улья Дадана 12-ти и 10-ти рамочной конструкции ничем не отличается между собой, а их изготовление идентичное. Размер такой рамки должен быть 43,5х30 см. Берем приготовленные заготовки сухих реек и с помощью гвоздей и молотка соединяем их, как показано на фото.
Размер реек для рамкиПроцесс соединения реекДолбим дырки для проволоки шилом
- Шилом делаем дырки для проволоки в боковых рейках.
- Натягиваем сквозь дырки проволоку и, с помощью шила и плоскогубцев, дотягиваем ее.
- Через последнее отверстие делаем петлю и закрепляем натянутую проволоку так, как показано на фото. Все лишнее откусываем плоскогубцами.
Продевание проволоки через дыркиЗатягивание проволоки с помощью шилаУзел фиксации проволокиВид готовой рамки
Все рамка готова. Теперь после процедуры вощения можно ее использовать.
Делаем улей на 10 рамок
Размер конструкции
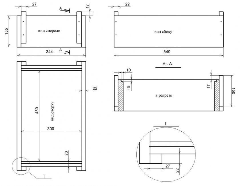
Размер переднего щита 10-ти рамочного улья Дадана должен быть 53х32х4 см, где 53 см – ширина, 32 см – высота, а 4 см – толщина. Размер заднего щита такой же. Размеры боковых щитов должны быть следующими – 49 (ширина) х 32 (высота) х 4 см (толщина). Также делаются фальцы размером 1х1,2 см. Толщина дна должна составлять 38 см.
Чертеж однокорпусного улья с двумя магазинами
Вверху улья делается по центру полукруглый или овальный леток размером 12х10 см. Перед летком должна быть прилетная доска выступающая на 5 см. Нижний леток изготавливается на всю ширину по внутрянке улья. Его низ – это дно улья. Высота проема 1,5 см. Ширина нижнего летка регулируется специальным засовом, а также перед ним должна обязательно быть прилетная доска.
Основной инструментарий и материалы
- сухие деревянные заготовки из хвойных пород дерева;
- качественный клей в количестве нескольких тюбиков;
- краска;
- молоток;
- гвозди;
- деревообробный станок;
- струбцина;
- прочие инструменты по надобности.
Изготовление
- Проводим качественную обработку дерева на станке.
- Вырезаем пазы, с помощью которых будут соединяться стенки улья.
- Нарезаем неширокие планки размером 18х4 мм.
- Соединяем планки в щит с помощью клея и струбцины.
- Собираем корпус используя при этом клей и гвозди.
- Готовый улей красим и высверливаем летки.
- Для вентиляции делаем в улье несколько отверстий диаметром 1,4 см.
Далее в видео показано как сделать щиты для улья.
Делаем улей на 12 рамок
Размеры
Конструктивно 12-ти рамочный Дадановский улей мало чем отличается от 10-ти рамочного. Чтобы было более понятно и наглядно ниже приведен чертеж этой конструкции со всеми размерами.
Чертеж двенадцатирамочного улья
Инструментарий, материалы и изготовление
Для изготовления этой конструкции нам понадобятся те же инструменты и материалы, что и для 10-ти рамочного улья. Изготовление проходит тоже одинаково. Чтобы учесть все нюансы по изготовлению обязательно руководствуйтесь приведенными чертежами. Что до изготовления летков, то сделать их можно по аналогии с десятирамочной конструкцией. Но некоторые пчеловоды нижние летки предпочитают делать не на всю ширину, а от 15 до 30 см, тут уж решать вам самим.
История создания
Шарль Дадан – это французский пчеловод, который на протяжении длительного времени занимался тщательным изучением разнообразных конструкций ульев, проводил сравнения и делал расчеты. Он был уверен в том, что молодые матки способны откладывать до трех тысяч яиц за один день.
Он рассчитал, что для заполнения всех сот за один день с помощью меда, потребуется полторы тысячи ячеек. Именно поэтому в улье Дадана из двенадцати рамок хватит места для всей медовой продукции.
Дадановский улей пользуется необычайным спросом среди всех пчеловодов. Его также изготавливают своими руками.
Разновидности ульев
Ульи Дадана могут состоять из десяти и двенадцати рамок, имеющих соответствующие размеры. Учитывая популярность таких ульев для пчел, считается, что данная разновидность конструкции очень эффективная, практичная и удобная для пчеловождения.
- 12 рамок. Подобный улей имеет стандартные размеры (450 на 450 мм). Для стенок такого улья подойдут 37 миллиметровые доски, исключение составляет подкрышник и крыша. Говоря о визуальном размере улья для пчел, он приблизительно равен 524 на 524 мм. Различается несколько разновидностей таких конструкций, разница заключается в численности рамок.
- 10 рамок. Своими руками можно легко изготовить ульи Дадана-Блата, учитывая чертежи и размеры. В итоге должны получатся высота корпуса Дадана-блата до 325 мм, ширина до 445 мм, а длина 450 мм. Магазины должны быть высотою в 165 мм. Верхний леток должен иметь размер 12 на 10.
Как создавались ульи Дадана-Блатта
Шарль Дадан (1817 г.р.) был тем человеком, которому пришла в голову идея создать улей с вертикальным типом. Он изучал конструкции пчелиных домов много лет. А на его собственной пасеке был 8‑рамочный улей.
Француз применил подход чисто математический:
- Сколько яиц откладывает одна пчеломатка за один день? — 3000.
- Сколько ячеек пчелы способны заполнить в сотах в течение дня? — 1600.
- Значит в 12-ти рамках Квимби окажется 10,5 тысяч ячеек.
Эти расчеты и эксперименты позволили усовершенствовать конструкцию и создать собственный даданов улей. Это изобретение очень скоро стали использовать пчеловоды в странах самых разных.
Но довести его до совершенства, вывести на рынок удалось швейцарцу Блатту. Внесенные им коррективы корпуса сделали улей подходящим для условий зимы. Система, имеющая размер рамки 435 мм (раньше было 470) получила имя Дадана-Блатта. Кстати, у бренда есть еще одно имя DADANT.
Особенности новых ульев
Несмотря на очевидную эффективность новой конструкции, до сих пор дадановский улей вызывает дискуссии пчеловодов. Кто-то уверен, что они давно изжили себя, кто-то уверен в обратном.
Но следует признать, что у этих конструкций есть несомненные достоинства:
- Даже самая сильная семья пчел, вполне будет довольствоваться одним корпусом.
- Концентрация меда в магазине осуществляется в предельном объеме.
- Однокорпусный вариант улья избавит вас от нужды передвигать объемные корпуса.
- Все рамки легко доступны для пчеловода.
- Конструкция улья роению пчел никак не способствует, следовательно, за состоянием рамок наблюдать довольно легко.
- В зимний период здесь уместятся не только основная семья, но и запасная. Достаточно их разделить перегородкой.
- Эту систему новички могут освоить легко из-за простоты ее использования.
- Он будет служить вам лет 25, если не нарушать правил эксплуатации.
Дадан прошел испытание временем – конструкция была изобретена в конце 19 века. Продуманная конструкция, простота и надежность сделали его популярным среди опытных пчеловодов и новичков.
Американский француз Дадан в 60х годах 19 века рассчитал математически габариты улья. К сожалению, работу не удалось завершить. Несколько лет спустя другой пчеловод, швейцарец Блатт довел до ума наработки Дадана и запатентовал работу как улей Дадана-Блатта.
Улей Дадан — конструкцияВ наше время Дадановский улей представлен несколькими типами конструкций. Главные различия – объем, материал и теплоизоляция.Габариты конструкции – вопрос стратегический
Важно понимать, что нужно в конкретных условиях
- 10 рамочный. Классическая схема Дадана.
- 12 рамочный. Квадратное сечение позволяет по-разному расположить рамки (с теплым или холодным заносом).
- 14 и 16 рамочный. Тяжелей работать в одиночку. Увеличенное количество рамок создает большую нагрузку на конструкцию.
Советы опытных пчеловодов
Пасечники, работавшие с уменьшёнными восьмирамочными ульями в многокорпусной конструкции, советуют разделять пчелосемьи на уровне корпусов. Это удобнее, чем проводить разделение на отдельные рамки.
Согласно базовым рекомендациям, матку следует заменять ежегодно. Однако некоторые пчеловоды советуют довериться инстинктам насекомых. Так, пасечник Майкл Буш считает, что маток можно заменять, если пчелосемья начинает угасать. В остальных же случаях нежелательно даже покупать новую матку — лучше разделять пчелосемьи и давать им возможность выращивать маток самостоятельно.
Ознакомьтесь подробнее: с чего начинать будущему пчеловоду, а также узнайте, как разводить пчёл.
Выбирая размер и конструкцию улья, обязательно ознакомьтесь с рекомендациями, указанными выше
Если же ваш выбор пал на восьмирамочные конструкции, принимайте во внимание советы опытных пасечников. Окончательное решение пчеловод принимает самостоятельно, исходя из личного опыта
Плюсы и минусы улья
Из основных преимуществ дадановского улья стоит выделить:
- семья развивается вертикально, что является естественным процессом по сравнению с лежаками, в которых развитие происходит горизонтально;
- в ульях Дадана легко отбирать медовые рамки из магазинных надставок или вторых корпусов;
- возможность разделения рамок на гнездовые и магазинные позволяет увеличить срок службы гнездовых;
- от болезней и вредителей обрабатываются лишь гнезда, что исключает накопление вредных веществ в меде и магазинных сотах;
- мед из магазинов принято считать более чистым и менее склонным к кристаллизации, чем из основного корпуса;
- при использовании двух корпусов создается достаточный объем для полноценного развития семьи, что позволяет сохранить рабочее настроение и снизить вероятность роения;
- магазин с полномедными рамками под силу поднять одному взрослому.
Однако такие ульи имеют и недостатки:
- сложно отследить роевое состояние;
- кормами пчелы заполняют магазины, а зимовка происходит в гнездовых рамках. Этот момент следует учитывать и своевременно производить подкормку;
- дадановские ульи хоть и легче лежаков, но тяжелее, чем рутовские.
Как сделать своими руками двенадцатирамочный улей Дадан
Размеры и чертежи двенадцати рамочного улья Дадан приведены для одностеночного типа, поскольку вторые стенки надстраиваются поверх внутренних, и не имеют значения.
Подготовка к работе
При некотором навыке изготовить улей Дадан самостоятельно несложно. Есть несколько важных моментов.
- Хранение и обработка дерева в сухом месте. Используется только высушенная древесина.
- Заранее изучить чертежи и представлять порядок работы.
- Подготовить инструмент и материалы.
Хорошо выполненная работа прослужит долго. Срок жизни изготовленного улья зависит от материала.
Порядок работы
Из доски 35 мм нарезают заготовки согласно чертежу. Подготавливают места соединения, выбираются фальцы. Заготовки шлифуются.
Широкие доски при сборке противопоставляют узким (если передняя нижняя доска широкая, боковые нижние берутся узкие).
Места соединения проклеивают. Используется ПВА или столярный (казеиновый) клей
Важно чтоб клей не имел резкого запаха и не был токсичным для пчел.
Торцы соединений дополнительно усиливаются штифтами или саморезами. Перед последующей сборкой нужно дать клею высохнуть.
Высверливается верхний леток, прорезается нижний по кромке корпуса.
- Съемное дно делается шире и собирается из досок в четверть (или другим способом с хорошей герметичностью). Три планки набиваются с таким расчетом, чтобы входить в фальц внизу корпуса. Лицевая сторона остается без планки, для вентиляции. Доски можно взять толще 4 см, это утяжелит дно, но сделает его прочней.
- Надстройка (магазин) собирается аналогично корпусу. По верхней кромке надстройки выбирается фальц.
- Крыша надевается на корпус или магазин. Со временем немного меняют форму, потому нужно сделать посадку крыши не слишком плотной. По бокам или в лицевой части устраиваются отверстия для вентиляции. Чтобы пчел можно было перевозить, нужно закрыть отверстия мелкой сеткой.
Размер двенадцатирамочного улья
Типичные размеры элементов улья Дадан на 12 рамок.
| Длина мм | Ширина мм | Высота мм | |
| Внутренние размеры (при толщине доски 35 мм) | |||
| Корпус | 450 | 450 | 310 |
| Магазин | 450 | 450 | 155 |
| Крыша | 450 | 450 | 70 |
| Внешний размер (при толщине доски 35 мм) | |||
| Корпус | 520 | 520 | 320 |
| Магазин | 520 | 520 | 165 |
| Дно | 520 | 520 | 70 |
| Крыша | 520 | 520 | 80 |
- Глубина фальца рекомендуется 18 мм. Имеется в виду что остается пространство 10 мм между рамкой и верхним срезом.
- Глубину прочих фальцев выбирают исходя из толщины материала.
- Зазор между дном и рамками оставляют 25 мм, для уборки и для удобства пчел.
- Верхний леток диаметром 25 мм сверлится в 70 мм от верхнего среза. Под летком устанавливается прилетная дощечка.
- Нижний леток высотой 10 мм и делается почти во всю длину стенки, его длина регулируется специальными вкладышами.
Вид в сборе улья Дадан. Вариант с двумя магазинами и подкрышником.

Вид в сборе двенадцатирамочного улья Дадан
Чертеж корпуса
Для сборки корпуса потребуется по две боковых и передних стенки. В фронтовой стенке нужно будет просверлить верхний леток.

Боковая стенка корпуса Дадан на 12 рам

Передняя стенка корпуса Дадан на 12 рам
Чертеж магазина
Для сборки магазина, также понадобится две передние и 2 боковые стенки.

Боковая стенка магазина Дадан на 12 рам

Передняя стенка магазина Дадан на 12 рам
Чертеж подкрышника
При необходимости подкрышника, он собирается также аналогично корпусу и магазину, но имеет свои размеры.

Подкрышник Дадан на 12 рам
Чертеж крыши
На чертеже представлена горизонтальная крыша. Если нужен скат, можно приподнять одну переднею стенку на 20мм, и не забыть про боковые стенки у которых максимальный внешний размер увеличится до 100мм, а минимальный останется 80мм. Также правая боковушка должна быть зеркально левой.
После сборки каркаса сверху нужно закрепить лист фанеры 540мм*540мм или связать 20мм доской, при условии что крыша горизонтальная. С внутренней стороны утеплить, а с внешней покрыть листом железа, толем, линолеумом или другим материалом не пропускающим влагу.

Крыша Дадан на 12 рам
Чертеж дна
При изготовлении дна заготавливаем две боковые стенки (1), заднюю (2 без летка) и переднею (2) в которой заранее нужно сделать леток 10мм на длину подготовленной вами вкладки. Также нужно заранее подготовить дно (3) из доски 25мм, размером 470мм*470мм. Соединив 2 боковые стенки с задней вставляем дно, только потом закрываем передней стенкой. Под леток можно набить дощечку.

Дно Дадан на 12 рам
При изготовлении улья Дадан из доски 40мм. внутренние размеры не меняются. Увеличивается внешний размер на 10мм, и меняется глубина фальца на 21 мм.
Технология изготовления 8-рамочных ульев своими руками
Точная технология сборки восьмирамочного улья зависит от того, рамки какого типа планирует использовать пасечник и сколько корпусов он будет использовать. Ниже приведены данные по выбору размера и материалов для изготовления конструкции.

Материалы и инструменты для изготовления
Для изготовления конструкции необходимо заготовить доски. При сооружении улья для гнездовых рамок на 300 мм используют древесину толщиной 40 мм. Для гнездовых рамок на 230 мм необходимы более узкие доски — с толщиной в 30 мм.
Из инструментов будут необходимы:
- электролобзик (для резки досок);
- столярный клей;
- гвозди или штифты;
- молоток.
Знаете ли вы? Рабочая пчела в период сбора пыльцы развивает скорость до 25 км/ч. Насекомое «без груза» может летать со скоростью 65 км/ч.
Чертежи и размеры
Рассчитывая размеры и составляя чертежи, исходите из типа используемых рамок:
- Ширина. Расчёты проводят, умножая количество рамок (в данном случае — 8) на 3,75 см. Так, при использовании дадановских рамок на 300 мм оптимальная ширина улья составляет 30 см.
- Длина. К длине рамки необходимо добавить 1,4 см. Между стенками и боковыми планками должно быть расстояние в 0,75 см.
- Высота. Чтобы вычислить нужную высоту, прибавьте к высоте рамок длину фальцев.

Оборудование улья внутри
Улей должен быть оборудован следующими элементами:
- гнездовые корпуса;
- полукорпусная подставка;
- магазинная надставка;
- гнездовые и магазинные рамки;
- крыша;
- съёмное дно;
- утеплители на крышу и стенки;
- деревянные потолочины.
Важно! Для ухода за пасекой и выкачки мёда обязательно приобретите захваты для рамок, инструменты для распечатывания сотов, щётки и скребки для чистки улья и прочий специализированный инвентарь.
Также, корпуса следует оборудовать вентиляционными отверстиями, ветрозащитными планками и летками. Для отделения матки нужны перегородки. Внутрь помещают две кормушки вместимостью по 500 мл.

Видео
В представленных видеосюжетах пчеловоды России делятся опытом самостоятельного изготовления рамок для пчелиных домиков: какой лучше использовать материал, какие понадобятся инструменты, как упростить и облегчить процесс сборки, а результат сделать качественным и надежным.
Об авторе:
Нашли ошибку? Выделите текст мышкой и нажмите:
Ctrl
+
Enter
Знаете ли вы, что:
Компост – перепревшие органические остатки самого разного происхождения. Как сделать? В кучу, яму или большой ящик складывают все подряд: кухонные остатки, ботву огородных культур, скошенные до цветения сорняки, тонкие веточки. Все это переслаивают фосфоритной мукой, иногда соломой, землей или торфом. (Некоторые дачники добавляют специальные ускорители компостирования.) Накрывают пленкой. В процессе перепревания кучу периодически ворошат или протыкают для притока свежего воздуха. Обычно компост «зреет» 2 года, но с современными добавками может быть готов и за один летний сезон.
Список источников
- upchel.ru
- mirpchely.ru
- pchela-info.ru
- mainavi.ru
- polzoteka.ru
- loveanimal.ru
- ogorodum.ru
- fermer.blog
7 лестниц