Стиль и цветовые решения
Даже в 18 метровой квартире-студии применимы несколько стилевых решений, таких как:
Лофт – индустриальный стиль, которому свойственны грубые необработанные материалы, открытые коммуникации. Кирпичная кладка, не скрываемые трубы и системы вентиляции – вот, что характеризует лофт. Данный очень популярный, но дорогой стиль предполагает некий минимальный набор предметов интерьера. Основные цвета: серый, черный, белый, терракотовый.
Хай тек – современный стиль прямых линий и холодного глянцевого металла. Отличается простотой и четкостью. Цветовая гамма, как правило, холодная. Присутствуют такие цвета, как зеленый, синий, красный, фиолетовый, серый, белый.
Прованс – легкий непринужденный стиль, обои в цветочек – это про него. Характеризуется теплыми и спокойными тонами: бежевым, лавандовым, зеленым, розовым, коричневым.
Минимализм – название говорит само за себя. Минимум мебели и вещей. Больше воздуха и света. Оформить интерьер можно в любой гамме.
Эко стиль – трава, дерево, камень. Три основополагающих ключа данного стиля, но можно заменить материалы соответствующими фактурами. В этом направлении используют все природные цвета и сочетания.
Классический – деревянная мебель, натуральные дорогие ткани, возможно украшение лепниной. Роскошный и благородный. Цвета применяются пастельные, однотонные.
Эклектика – смешение стилей
Однако важно не перестараться, иначе пространство будет казаться подавленным и чрезмерно перегруженным. Такой интерьер – для довольно смелых людей, которым свойственна оригинальность
Цветовая гамма абсолютно любая.
Футуризм – стиль будущего, с необычной, но не менее притягательной геометрией. Холодная палитра сочетает в себе стиль и некое неземное присутствие. Не слишком распространен, его выбирают творческие люди с особым взглядом на мир.
Оформление интерьера
Для того чтобы помещение было не только привлекательным, но и комфортным для проживания, нужно тщательно продумать каждую деталь, и только после этого начать отделку
В процессе обустройства в обязательном порядке нужно принимать во внимание функциональное назначение определенной комнаты или области




Зал
Дизайну гостиной нужно уделить особое внимание, так как здесь мы проводим большую часть времени, встречаем гостей и устраиваем посиделки. Именно поэтому зал нужно отделить от спальной комнаты
Идеальным решением станет использование стеллажа или монтаж карниза со шторкой.
Разумеется, перегородка не будет спасать от шума, однако визуально она сможет скрыть спальную зону от гостиной. Если вы хотите выделить для гостиной зоны как можно больше пространства, то в спальне можете установить не большую кровать, а раскладывающийся диван. А вот шкаф-купе можно установить и в гостиной. Если его поверхность отделана зеркалами, то это визуально увеличит свободное пространство. От применения предметов с темными тонами лучше отказаться, так как они не способствуют отдыху после тяжелого рабочего дня. Кроме того, не стоит нагромождать интерьер гостиной различными предметами мебели, так как это еще больше сузит комнату и сделает ее миниатюрной.
Кухня
При разработке дизайна кухни лучше всего отдать предпочтение светлым оттенкам. Идеальным вариантом будет использование мебели, выполненной с омбре, так как данная цветовая градация позволяет визуально увеличить помещение
Пристальное внимание при этом нужно уделить особенностям фасада. Для маленьких комнат специалисты советуют использовать глянцевую мебель, так как лакированный блеск также зрительно делает помещение большим
А вот от закрытых полок навесного типа лучше отказаться, так как они визуально захламляют кухню. Одним из наиболее ответственных и важных моментов при этом является освещение рабочей области, так как от этого зависит удобство работы. Учитывая тот факт, что гостиная не может похвастаться большими размерами, обеденную область также лучше расположить здесь. Очень часто именно стол играет роль разграничителя в квартире-студии.
Прихожая
Учитывая небольшие габариты квартиры в 33 кв. метра, прихожая здесь будет минимальной. Именно поэтому для ее обустройства достаточно будет обыкновенной вешалки и пары пуфов. Данный комплект также может быть дополнен небольшой тумбой, куда будет складываться обувь.
Санузел
В санузлах необходимо отдать предпочтение небольшим душевым кабинам, которые могут похвастаться своей компактностью и удобством использования. Сэкономленное место всегда можно выделить для хранения белья, бытовой химии и одежды. При наличии необходимого бюджета можно отказаться от установки традиционного унитаза и выбрать навесные варианты. Они не только характеризуются привлекательным внешним видом, но и придают помещению легкости.
В небольших ванных комнатах смонтировать раковину «тюльпан» не получится из-за стесненных условий. А вот тумба с полками отлично подойдет, так как в ней можно будет хранить различные предметы.
Дизайн однокомнатной квартиры 40 кв. м, способы зонирования
Если вы не имеете детей, то дизайн квартиры площадью 40 кв.м гораздо проще продумать, так как задача упрощается — не нужно раздумывать, где выделить место под детскую зону, плюс освобождается драгоценные квадратные метры.
Сегодня существует множество способов зонирования однокомнатных квартир площадью 40 кв.м, все только зависит от индивидуальных пожеланий и конфигурации помещения. Так же расширяет возможности по благоустройству однокомнатной квартиры большое разнообразие уже готовых решений для интерьера -готовая мебель и другие элементы интерьера, а так же большое количество видов отделочных материалов и др. А если вы не можете найти готовое решение, всегда можно воспользоваться услугами частных мастерских, которые помогут сделать все необходимое по интерьеру под именно ваши запросы.
Сегодня существует масса способов зонирования небольших однокомнатных квартир площадью 40 кв.м. Очень часто без серьезных затрат можно осуществить зонирование при помощи мебели, расставив ее отдельными группами в отведенном месте комнаты. Частенько таким образом в одной комнате можно разместить спальную, гостиную и рабочее пространство — миникабинет.
Дизайн однокомнатной квартиры 40 кв.м, зонирование при помощи мебели
Так же дополнительно спальную зону можно отгородить при помощи ширмы, системы раздвижных перегородок — современные системы, могут быть изготовлены с использованием витражей, это придает больший стиль и красоту пространству комнаты.
Дизайн однокомнатной квартиры 40 кв.м.
Весьма распространенным способом является изготовление перегородки из гипсокартона, благодаря эластичности этого материала можно изготовить довольно таки красивые фигурные перегородки.
Обустраиваем кабинет
Обычно кабинет в виде узкого прямоугольника считается кабинетом с неправильной планировкой.

Однако правильный профессиональный подбор современного дизайна позволит сделать даже такой кабинет наиболее удобным и эффективным. Нужно только подобрать правильное расположение:
- столика;
- осветительных приборов;
- диванов или кресел;
- вместительной тумбы;
- а также шкафа, желательно встроенной конструкции.

Для отделки кабинета можно использовать элементы стиля лофт – цветовая гамма дивана, кресел и ковров похожа на расцветку бетона, напольное покрытие и предметы мебели содержат элементы из дерева, абажуры на светильниках просты и не привлекают к себе внимания.

Интерьер спальни-гостиной
В дизайне маленькой студии, параметры которой составляют примерно 5х6 м, важно соблюдать принципы художественного баланса и гармонии. В качестве фона должны выступать нейтральные светлые поверхности, которые в маленькой пропорции можно обрамить более темными линиями, а для акцентов подойдут перекликающиеся по цвету яркие краски мебели, текстиля и декора
Что касается разделения комнаты на гостевую и спальную часть, то существует несколько вариантов: расположить кровать в нише между стенами и шкафом; обустроить для нее своеобразное возвышение – подиум; просто отделить какой-нибудь перегородкой, занавеской или предметом мебели.
Если место ночного отдыха находится рядом с окном, нельзя делать глухие перестенки, иначе гостиная останется без солнечного света. В этом случае удобнее использовать стеклянную перегородку, стеллаж, или же просто раздвижные портьеры. Хорошую альтернативу драпирующейся ткани составят текстильные панели-купе, которые еще называют японскими шторами.


Современное решение
Выбор современного интерьера квартиры 45 кв.м. – это действительно хорошее решение. Отделочные элементы используются минимально, а внешнее оформление выглядит довольно просто.

Однако, высокое качество работ и дорогие натуральные материалы делают внешний вид помещения богатым и довольно роскошным. Интерьер гостиной должен соответствовать интерьеру квартиры 45 кв. м. в целом.

В качестве предмета интерьера оптимально приобретение журнального столика с двумя трансформирующимися частями из натурального материала. Полы в гостиной также лучше выложить из высококачественного дерева, сохранившего естественный цвет.

Белые, кремовые, светлые тона стоит использовать не только на стенах. Визуальному увеличению комнаты будут способствовать шторы, ковры, мебель того же оттенка.

Особенности планировки
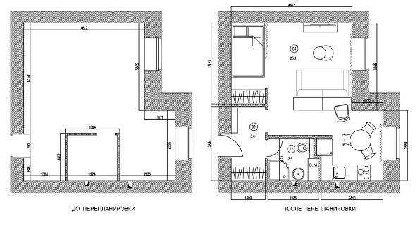
Основная задача дизайнеров при обустройстве небольшого помещения заключается в визуальном увеличении полезной площади. Именно поэтому начальный этап проработки интерьера заключается в перепланировке, цель которой – скрыть недостатки квартиры. Серии домов могут иметь значительные различия по площади квартир, их планировке, поэтому к каждому отдельному интерьеру необходим индивидуальный подход. Рациональным решением может стать полная перепланировка помещения: удаление некоторых частей стен или перегородок
Важно помнить, что трогать несущие конструкции категорически запрещается
Дизайн 1-комнатной квартиры следует планировать, опираясь на расширение пространства. Вот несколько рекомендаций по увеличению жилой площади:
- Объединение комнаты и лоджии. Полный демонтаж стены необязателен, достаточно снести оконный блок, превратить остаток стены в функциональный разделитель пространства.
- Переоборудование балкона или лоджии в кабинет, столовую или спальню.
- Обустройство второго яруса в квартире с высотой потолка от 3 метров. На таком втором этаже можно расположить спальное место, а под ним – зону отдыха или шкаф.
- Использование широких подоконников в качестве книжных полок, цветника или рабочего стола.
- Переоборудование кладовки в гардеробную комнату. Такое решение позволит значительно освободить место в квартире.
Цветовое оформление, декор и освещение в квартире 45 кв м
Цветовая гамма для небольшой квартиры безусловно должна быть светлой. В качестве основного цвета можно использовать белый, светло-серый. Яркие оттенки лучше применить точечно – в деталях. Декор в таком интерьере может оказаться лишним. Если есть желание, украсить жилье можно минимально: фотографиями на стенах, красивой посудой, ярким текстилем. Что же касается света, то его должно быть много. Рекомендуется использовать все виды освещения: напольные, потолочные и настенные.
В оформлении современной квартиры желательно применять пастельную цветовую гамму в белых, бежевых или серых тонах
2 Выделите спальную зону
Не хотите тратить время, деньги и силы на обустройство отдельной спальни? Тогда продумайте зонирование интимного пространства в жилой комнате.
Хорошим решением станут несплошные и лёгкие перегородки для зонирования. Они могут быть, например, низкими или реечными.

Фото: Instagram adsgroup_design

Фото: Instagram di_yanail

Фото: Instagram intalio_design
Если в комнате есть ниша, разместите спальное место в ней. Повесьте шторы — и вот имитация отдельной спальни готова.

Фото: Instagram 4livingru

Фото: Instagram decor_dom.ru
Впрочем, шторы могут обрамлять и отдельно стоящую кровать. Зонирование будет условным, но тем не менее — будет.

Фото: Instagram shtorigotovie
Хорошее решение для однушки — установить подиум: разная высота пола тоже отлично справляется с разделением комнаты на две зоны. На подиуме можно разместить кровать, а внутри него оборудовать места для хранения.

Фото: Instagram koltsova_dizain
Планировка квартиры 33 квадратных метра
Рассмотрим два варианта планировок.
Однушка
В новостройках, да и в домах советских построек, тех же хрущевках, однушки площадью 30-33 квадратных метра — не редкость. В новостройках такие планировки состоят из кухни около 8-10 квадратных метров, комнаты — 10-13 квадратов, санузел — 3-4 квадрата и прихожей-коридора 4-5 квадрата.
На такой территории несложно организовать функциональное пространство, но о глобальной перепланировке вряд ли можно думать. Во-первых, объединять кухню с комнатой — означает лишить себя приватности. Во-вторых, переносы стен и тем более «мокрых» зон — трудоемки, хоть и возможны при ряде определенных условий (например, перенести кухню в коридор можно, но только если квартира находится на первом этаже и с соблюдением ряда инженерных правил). Поэтому однокомнатную квартиру лучше правильно зонировать, выбрать соответствующую функциональную мебель и правильную отделку, чтобы небольшое помещение не смотрелось захламлённым.
Хитрости и приемы гуру дизайнерского искусства!
Чтобы миниатюрная однокомнатная квартира баловала комфортом, уютом и красотой, следует руководствоваться советами квалифицированных специалистов.
Грамотное зонирование
- Разделить квартиру на функциональные зоны можно с помощью:
- предметов интерьера;
- цветовой палитры;
- освещения;
- многоуровневого потолка;
- ширм;
- разного отделочного материала;
- подиума.
Каждый человек сможет выбрать идеальный для себя вариант, эффектно зонирующий пространство.
Компактная мебель
В однокомнатных квартирах-студиях уместна трансформируемая мебель, когда, например, мягкий диван превращается в удобную кровать, а огромный шкаф с множеством полочек и ящичков в компактный пенал и так далее. Сегодня рынок предлагает массу самых практичных и, на первый взгляд, необычных моделей предметов обстановки. Кроме того, можно купить мебель, которая производится на заказ по эскизу клиента в соответствии с размерами комнаты или задействовать пол. Также специалисты рекомендуют приобретать мебель на ножках, чтобы увеличить пространство, создав оптическую иллюзию.
Цветовая палитра
Чтобы визуально квартира казалась просторнее, необходимо оформить ее в светлых тонах. Безупречны для небольшого помещения такие оттенки:
- белоснежный;
- бежевый;
- карамельный;
- песочный;
- молочный;
- сливочный;
- кремовый.
В качестве акцентов можно использовать следующие цвета:
- бирюзовый;
- желтый;
- оранжевый;
- васильковый;
- фиолетовый;
- серый;
- алый.
Можно поэкспериментировать и с другими оттенками, однако, следует помнить о том, что темные цвета для небольшой площади не годятся.
Стилевые направления
Поскольку сегодня модным веянием является оформление помещений в соответствии с определенным направлением, требуется крайне внимательно подойти к выбору стиля. Для однокомнатных квартир-студий безупречны: минимализм, хай-тек, лофт, фюжн, скандинавский, винтаж.
Кроме того, необходимо отдать предпочтение глянцевым и зеркальным поверхностям, а также наполнить жилище разнообразными осветительными приборами и отказаться от тяжелых штор в пользу жалюзи.
Освещение
Для квартиры-студии стоит продумать локальное освещение для каждой функциональной зоны: кухни, спальни, гостевой и зоны хранения. Это может быть верхний свет или настенные светильники, а также торшеры или светильники, крепящиеся к мебели.
- Для кухни лучше выбирать верхний свет, а для дополнительного освещения шкафчиков или ниш можно приобрести светодиодные светильники. Они легко крепятся к мебели. Они также отлично подойдут для шкафа или гардеробной. А верхний свет лучше всего сделать отдельным для зоны кухни и жилой зоны.
- Для спального места подойдут настенные светильники, которые можно легко выключить лежа в кровати.
- Если гостевая зона находится под спальным местом, то в ней также стоит разместить настенный светильник.
- Что касается декоративного света, то в маленькой квартире лучше использовать подсветку без больших абажуров и плафонов. Это могут быть полоски светодиодов за мебелью или лампочки в нишах.
Идеи дизайна
К любой квартире можно подобрать дизайн в современном стиле, пусть это квартира-студия всего в 18 кв. м. Интерьер зависит от предпочтения владельца. Рекомендации дизайнеров – оформителей достаточно просты:
Использовать как можно больше зеркал, устанавливая их напротив оконного проема. Свет, проходящий через стеклопакет, будет отражаться в его зеркальной поверхности, придавая помещению невесомость, воздушность и визуальное расширение. Данный совет является незаменимым, если в квартире имеется всего одно окно.
- Убирайте все ненужные вещи по коробкам или в шкафы. Они – причина захламленности, а нам это не нужно.
- И главное – вам должно быть комфортно в квартире.
Экспериментировать самостоятельно или довериться профессионалу – выбирать вам. Определившись с направлением в стиле, учитывая свои потребности и индивидуальные особенности, воплотить в реальность дизайн вашей мечты не составит труда. Как показывает практика, в дизайне маленьких квартир – студий ничего невозможного нет.
Особенности планировки
Однокомнатные квартиры бывают нескольких видов. Они отличаются размерами, формой и планировкой. В связи с этим, обустраивая их, используют разный дизайн.
Дизайн должен подчеркнуть преимущества, и скрыть недостатки жилья.
Самыми популярными являются два типа планировки однокомнатной квартиры.
- Стандартная планировка. В такой квартире предусмотрена одна комната, кухня, санузел, прихожая. Главным достоинством данного типа является возможность уединения хозяев. К минусам относят тесноту, неудобство планировки, маленькую площадь. Поместить необходимые предметы мебели в таких условиях непросто. Поможет в этом грамотно подобранный дизайн.
- Студия. Это современный вариант планировки квартиры с одной комнатой. В ней мало перегородок, только самые необходимые, что обеспечивает наличие свободного пространства. Подходит для проживания холостяков или молодых пар.
Плюсы и минусы маленькой однокомнатной квартиры
Как правило, такие однокомнатные квартиры продаются в новых домах, где жилье отвечает современным стандартам. В довесок к основной жилой площади добавляют лоджию или балкон, которые тоже используют с максимальной выгодой. То есть обустраивают в них отдельные помещения для конкретных целей. Среди неоспоримых достоинств жилья отмечают:
- Сравнительно низкую стоимость. Эти квартирки не дотягивают до двухкомнатных вариантов, но и ставить их в один ряд с типовыми однушками было бы неправильно. Среди основного контингента покупателей, как правило, преобладают молодые семьи. Габариты маленькой квартиры действительно удобны для проживания вдвоем. В случае появления новорожденного на первых порах для обустройства отдельного детского уголка в квартире тоже найдется место. Вот с рождением второго ребенка уже придется обеспокоиться покупкой более просторного жилья.
- Возможность создания нестандартного дизайн-проекта, который идеально вписывается в рамки студий.
- В условиях жесткого минимализма, гораздо проще наводить в квартире порядок. Да, этот плюс можно причислить к списку «относительных». Однако, чем меньше вещей, тем легче уборка.

Не лишены такие квартиры и недостатков:
- Отсутствие звукоизоляции. К сожалению, любые ухищрения не помогут полностью избавить спальню от кухонного шума или же отзвуков веселящихся гостей в зале.
- Отсутствие «личного пространства». Если в квартире проживают двое, то обустроить каждому по отдельной площадке для работы или отдыха не получится. К сожалению, придется смириться с этим фактом и отказаться от желания «отдохнуть друг от друга». Как вариант, возможно обустройство балкона под обособленную площадку для умиротворенного чтения книг или же спокойной работы.
- Невозможность создания отдельных комнат.
- Неудобство от тесного контакта помещений с разным микроклиматом. Кухня будет периодически наносить вред гостиной и спальне, протягивая к ним «щупальца» запахов кулинарных экспериментов.

Конечно будем честными, ни один здравомыслящий человек не отдаст предпочтение скромной по габаритам квартире вместо просторного жилья, если у него будет такой выбор. Маленькие студии никогда не смогут дотянуться до полноценных двушек или трешек. Их интерьер можно сделать красивым, удобным и уютным. Но это всего лишь ряд ухищрений, с помощью которых владельцы улучшат то, что имеется в их распоряжении. А вот о том, как это сделать грамотно, и поговорим дальше.

Вдохновляющие идеи для создания дизайна интерьера однокомнатной квартиры
Если хочется, чтобы квартира была просторной, многофункциональной, комфортной, но идей для создания чудесного дизайна нет, можно получить долю вдохновения, ознакомившись с работами специалистов.
Фото – проект № 1: однокомнатная квартира в объятиях нежности
Квартира выглядит воздушно, уютно и весьма практично. Такой эффект получился благодаря нежной цветовой гамме, которая визуально увеличивает пространство, обилию света, зеркальным, глянцевым поверхностям, а также предметам интерьера на высоких ножках.







Фото – проект № 2: 33 кв.м. уюта
Квартира-студия получилась очень уютной, стильной, функциональной. Пастельные оттенки, встроенная подсветка, барная стойка вместо обеденного стола, минимум предметов обстановки, глянцевые и зеркальные поверхности сделали помещение невероятно просторным и комфортным.









Фото – проект № 3: яркий и позитивный дизайн квартиры
Квартира выглядит жизнерадостной и просторной, несмотря на площадь всего в 33 кв.м. Изюминка проекта – многофункциональный подиум, используемый в качестве и зоны отдыха, и системы хранения, и спальной области. Эта дизайнерская хитрость позволила значительно увеличить полезную площадь. Кроме того, квартира хорошо освещена и оформлена в освежающих тонах, что визуально делает жилище больше и выразительнее.








Фото – проект № 4: дизайн под названием «Благородное безмолвие»
Однокомнатная квартира восхищает аристократичностью, изящностью и эргономичностью
Минимум предметов интерьера, привлекающий внимание отделочный материал, дуэт прозрачных и блестящих поверхностей, светлая палитра, эксклюзивный декор не только преподнесли комфорт, уют, элегантность, но и создали особенную с нотками таинственности ауру









Однокомнатная квартира, дизайн которой на фото (33 кв. м.) пленяет с первого взгляда, может быть красивой, комфортной, эксклюзивной!
Основные варианты стилей дизайна при оформлении студии 35 кв м
Студия отличается отсутствием перегородки для кухни. Иногда удаляют стену между коридором и жилой площадью. У комнаты с планировкой типа «квадрат» большие возможности, ограниченные только метражом. Выбор варианта:
- установив у стены изящную лестницу, хозяева получают спальное место или зону для работы на компьютере (в этом случае предпочтительнее Лофт);
- лаконичный Скандинавский дизайн (монтировать подиум для кровати со ступенями, сделать легкую деревянную ширму в тон дизайну);
- оригинальное решение – студия, выполненная в стиле Модерн (элементы классики и технологий).
- Минимализм позволяет создать светлое, эргономичное жилище, с исключением лишних предметов.
Имейте под рукой технический план квартиры. Благодаря ему вы узнаете, какие стены несущие, а какие при желании можно снести, объединив тем самым пространство.
Для студии 35 кв. м подбирают дизайн (фото), который отвечает потребностям, вкусовым предпочтениям жильцов.
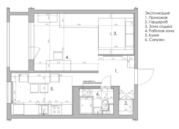
Функциональные зоны
Как мы и упоминали выше, дизайн-проект квартиры 33 кв. м может включать все важные зоны: гостиную (для отдыха и сбора семьей и друзьями), кухню (для приготовления пищи) и спальню. Ванную комнату и прихожую мы не берем в расчет, они по умолчанию есть в каждой квартире.
Гостиная
С помощью грамотного зонирования можно разграничить одну комнату на гостиную и спальню. Например, поставить кровать в нишу, сделать импровизированную перегородку из стеллажа, заказать в мастерской стеклянную перегородку, чтобы обеспечить хорошую инсоляцию помещения, удаленного от окна. Вариантов много, и какой из них выбрать, зависит от ваших пожеланий и бюджета. Строить глухие перегородки из гипсокартона все же не рекомендуем, площадь этого не позволяет и визуально они только съедят полезное пространство.
Еще один вариант — сделать импровизированную гостиную в кухне. Для этого достаточно всего лишь найти место для дивана, а на стену повесить телевизор. Гостиную зону можно объединить с обеденной, и в таком случае изолированная комната останется полностью приватной.
Фото в различных стилях
Стиль лофт является достаточно популярным в настоящее время и очень часто применяется для оформления различных жилых пространств. Данное направление предполагает простую, но при этом функциональную меблировку, небрежную, немного неаккуратную облицовку и в основном прохладную цветовую палитру. Для зонирования редко выбирают ширмы и раздвижные двери, в этом случае предпочитают разграничение помещения за счет смены фактур или оттеночной гаммы.
Классика считается основательным, элегантным и практичным стилем, интерьер которого следует обустраивать мебелью из дорогих материалов, украшать антикварными предметами и выполнять в мягкой однотонной оттеночной палитре.

На фото квартира-студия 35 квадратов, выполненная в стиле лофт.


Современный дизайн отличается четкой структурой, лаконичными геометрическими формами, яркими цветовыми акцентами и смелыми фактурными комбинациями, а скандинавский интерьер характеризуется особой эргономичностью, удобством, комфортом, красотой и настоящей эстетичностью.
В таком стиле в приоритете использование натуральных материалов в стеновой, напольной, потолочной отделке и в изготовлении предметов мебели, а также оформление в пастельных оттенках в сочетании с насыщенными вкраплениями.


Квартира 33 кв.м. на двоих в Москве
Мы не смогли обойти вниманием еще одну стильную московскую квартиру авторства дизайнера Галины Ло. Молодая пара мечтала об уединенном семейном гнездышке – и этого удалось достичь, объединив элементы современного стиля и лофта
А вместо стены – необычная деревянная перегородка-стеллаж, изготовленная по индивидуальному заказу.
Особое внимание тут заслуживают материалы: от разноцветного пробкового пола до декоративного кирпича на стенах. Стена на кухне покрыта грифельной краской, чтобы рисовать или оставлять записки-напоминания. А главный козырь в ванной комнате – керамогранит, стилизованный под натуральное дерево.







- Интерьеры
- Декор
- Хендмейд
- Дача и сад
- Советы
Полезные советы и идеи
Важное требование к прихожей в однокомнатной квартире – расположение шкафа с одеждой. Если двери гардеробной облицевать стеклом, помещение станет выглядеть более просторным
Зеркальная входная дверь не только создаст иллюзию длинного коридора, но и завершит образ. Если санузел не позволяет установить стиральную машину, рационально вынести ее и встроить в шкаф.
Фальшивые стенки с отражающей панелью или окном можно разместить напротив входа в комнату (если возникает необходимость отгородить какое-нибудь помещение). Такой визуальный барьер не отягощает интерьер.
Хорошим вариантом для тех, кто не проводит за приготовлением пищи много времени, станет американский стиль планировки. Открытая кухня у входа поможет увеличить спальню. Не следует забывать: как любая перепланировка, такое решение требует согласования и соблюдения следующих технических условий. Не допустим снос капитальной стены и демонтаж каркаса жесткости.
Массивные столы в небольшой гостиной смотрятся громоздко. Предпочтение лучше отдать варианту без углов, позволяющему расположить большее число людей. А тот, кто редко устраивает торжественные ужины, обеденный стол может заменить журнальным или рабочим. Многофункциональная мебель – ключ к успеху в экономии места малых пространств.
Ощущение воздуха в квартире создают глянцевые белые поверхности. Но не стоит ограничивать себя исключительно этим цветом. Подойдут так же оттенки слоновой кости, молочный или кремовый. Отражающий темный пол поможет значительно углубить помещение и оттенит светлые фасады. Позволить себе темные стены без визуального уменьшения пространства можно, если использовать в интерьере светлую мебель. Цвет стен при таком варианте нужно подобрать глубокий матовый.
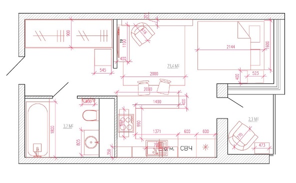
Дизайн спальни
Спальное место в студии 33 кв. м. выделено с помощью перегородки. Стену у изголовья обшили вагонкой: это красиво и практично. Полосы вагонки визуально приподнимают потолок, а плотное дерево защищает от проникновения звуков из общего коридора, расположенного за стеной.
Ниша в перегородке, открывающаяся в сторону спальни, занята модульной системой хранения, приобретенной в ИКЕА. Она называется АЛЬГОТ. Подсветка светодиодами облегчает пользование системой и создает дополнительное освещение. Кроме того, на прикроватной тумбе установили настольную лампу для вечернего чтения. Она создает уютную, теплую атмосферу в спальне.

Как делать не надо: 3 табу в современном дизайне квартиры-студии 30 кв. м.
- Расставлять мебель вдоль стен. Замкнутый контур из мебели по краям и пустота посередине — не лучший способ организации небольшого пространства: так оно будет казаться еще меньше. А вот равномерно расставленные предметы создадут визуальное ощущение простора.
- Оформлять пространство симметричным, отзеркаливать мебель и предметы интерьера. Симметрия несколько утяжеляет интерьер, а небольшой хаос, кривые линии и оси наоборот, делают его немного легче, воздушнее.
- Предусмотреть мало мест для хранения. Лучше пусть в кухне-гостиной будет не так просторно, как хотелось бы, чем если места вроде бы и много, но оно всегда немного захламлено из-за нехватки полок и ящиков.
Квартира 33 кв. м. Дизайн: Надя Зотова
Квартира 33 кв. м. Дизайн: Надя Зотова
Выбор стиля и цветовое решение
В рамках квартир-студий реализуют чаще всего современные стили. Ведь жилье по сути является прогрессивным вариантом, который еще полвека назад не встречался вовсе. Кстати, началось все с оригинальной идеи американского дизайнера, который создал дом без внутренних стен. Этот прообраз первой студии стоит в качестве архитектурного памятника до сих пор. Идея стирать границы и расширять пространства настолько понравилась дизайнерам, что она постепенно даже стала вытеснять традиционные варианты планировки. Среди стилистических направлений стоит отметить минимализм, хайтек, прованс, лофт, скандинавский и в качестве классического компромисса — модерн. Эти интерьерные решения органично воплощаются на квадратных метрах студии и подчеркивают ее достоинства. Для вышеперечисленных стилей характерно использование светлой, спокойной цветовой гаммы. Основу в ней составляют белый и серый. В скандинавском стиле добавляют холодные тона: синий, голубой, зеленый. Хайтек и минимализм ничего не имеют против черного в акцентных зонах и декоративных элементах. Прованс не обходится без ярких пятен сиреневого, розового, голубого цветов. Лофт применяет коричневый и буро-красный (кирпичный) оттенок в отделке. Модерн же отдает предпочтение кофейной цветовой гамме.


Дизайн кухни
В дизайне кухни превалируют светлые оттенки. Стильно будут смотреться фасады гарнитура с эффектом омбре, то есть цветовой градации. К примеру, низ имеет насыщенный шоколадный оттенок, постепенно переходящий в кофе с молоком ближе к уровню столешницы. Верх же оформляется в «сливочных» тонах белого. Поверхность фасадов стоит выбирать глянцевую, с лакированным блеском. Отражающие элементы зрительно увеличат маленькое пространство. Не рекомендуют использовать в маленьких кухоньках навесные полки закрытого типа выше уровня глаз. Они будут «давить» своей массивностью, поэтому места для хранения дверцами лучше не оборудовать. Обязательно стоит позаботиться об освещении рабочей зоны. Фартук можно оформить мозаичным способом из маленьких керамических плиточек или же квадратных кусочков пластика, стекла, зеркал. Обеденную зону располагают здесь же. Стол часто примыкает к спинке дивана в гостиной. Этот вариант не потребует дополнительного разграничения зон.
Дизайн квартиры-студии площадью 24 кв. метра +50 фото


Дизайн гостиной и спальни
Что касается спальни, то ее обязательно отделяют от гостиной зоны. Оптимальный вариант — установка сквозного стеллажа. Чтобы он выглядел воздушным, а не приземистым, полки «насаживают» на длинные вертикальные балки, которые проходят от потолка и до пола. Еще один вариант — установка карниза со шторой по контуру кровати. Конечно текстильная перегородка не спасет от шума, но от взглядов гостей защитит полностью. Для экономии пространства можно использовать не полноценную двуспальную кровать, а раскладной диван. Встроенный шкаф-купе завершит интерьерную композицию.


Дизайн прихожей
Прихожая в квартирах-студиях маленькая, не имеющая пространства для размаха. По этой причине ее оборудуют только вешалкой для верхней одежды, скамеечкой или парой пуфов для переобувания и традиционным зеркалом. К мебельному комплекту можно добавить узкую тумбу. Если же в спальне шкаф отсутствует, то гардеробную размещают в прихожей, предварительно оставив для нее дополнительное место. Фасады оформляют в светлых тонах, чередуя их с зеркальными поверхностями. Отдельно стоит озаботиться дополнительным точечным освещением на потолке по периметру зоны.

Дизайн ванной комнаты
В ванных комнатах предпочтение отдают компактным душевым кабинам. Они позволяют сэкономить пространство и освободить площадку под дополнительные места для хранения полотенец и бытовой химии. Если бюджет позволяет, то от обычного унитаза отказываются в пользу навесного варианта. Смотрится он стильно, необычно и придает помещению «легкости». Чтобы остальная обстановка соответствовала, к современным решениям прибегают и при выборе раковины. Лучше забыть о традиционных «тюльпанах» и установить модную накладную «чашу». Снизу ее дополнит тумба с полками для хранения. В отделке применяют светлую крупную плитку. Чем меньше швов, тем шире станут стены визуально. А вот от больших принтов стоит отказаться, так как эффект от них будет обратный.


Варианты оформления квартиры 45 кв м для семьи с ребенком
Маленькая квартира 45 квадратных метров для семьи с ребенком должна быть максимально функциональной. Потребуется вместительная мебель:
- комод для распашонок, ползунков, пеленок;
- детская кроватка с системами для хранения постельного белья и одеял;
- кровать для родителей;
- шкаф-купе;
- настенные полки и многое другое.
Комнату в квартире для семейной пары с ребенком можно разделить на зоны с помощью небольшой полуперегородки
Отделка в такой квартире должна быть практичной. Например, в детской зоне лучше поклеить моющиеся обои, а на пол уложить теплый ковролин. Что касается общего стилевого направления, то идеальным вариантом станет минимализм.
Список источников
- www.ivd.ru
- www.dizainvfoto.ru
- dizainexpert.ru
- design-homes.ru
- cornas.ru
- strojka-gid.ru
- salon.ru
- dekoriko.ru
- lafoy.ru
- Trizio.ru
- stroy-podskazka.ru
- thewalls.ru
- harthaus.ru
7 лестниц