Демонтаж смесителя
Процесс демонтажа имеет такую последовательность:
- Перед тем, как приступить к работе, придется прекратить подачу воды. Обычно перекрывают вентили, которые располагаются на входе в дом, но в некоторых случаях можно перекрыть только разводку в это помещение. Иногда эти вентили находятся внизу под раковиной, и их можно быстро отключить. Тем не менее, делать этого не рекомендуется, ведь в процессе монтажа можно случайно зацепить вентили рукой, поэтому лучше сразу же отключить подачу воды в помещение.
- Теперь необходимо оставить открытым кран, чтобы оптимизировать давление в трубе. Из труб следует слить всю воду, поэтому вниз рекомендуется поставить любую подходящую емкость.
-
Далее необходимо демонтировать нерабочий смеситель, но, к сожалению, сделать это не всегда получается быстро.
В процессе работы возникают следующие сложности:
- мастеру приходится выполнять демонтаж в довольно не комфортном положении, особенно в тех случаях, когда раковина врезается в стол;
- откручивать соединения очень сложно, ведь для гаечного ключа требуется больше места;
- соединения не всегда легко откручиваются из-за ржавчины.
В этом случае лучшим решением будет демонтаж раковины. Не стоит из-за экономии средств на покупку герметика усложнять себе работу.

Рекомендуется демонтировать раковину, чтобы было удобнее менять смеситель
Для того, чтобы отсоединить раковину, потребуется отключить ее от канализационной трубы. Необходимо вытащить гибкую гофру из трубы канализации. После таких действий будет намного проще снять старый кран.
Потребуется отсоединить шпильку или стопорную гайку (зависит от особенностей конструкции изделия). Если узлы сильно проржавели, то их необходимо тщательно опрыскать смазкой в виде аэрозоля. Тем не менее, даже этого не всегда достаточно, поэтому можно демонтировать их с помощью шлифовальной машинки. Главное — не нарушить целостность раковины.

Проржавевшие трубы придется срезать
Необходимо внимательно осмотреть состояние водопроводных труб, а именно резьбовых соединений, куда планируется устанавливать новые подводки.
Чтобы шланг надежно фиксировался на трубе, она должна быть целой без каких-либо заусенцев, сколов. Поэтому если труба проржавела, то лучше закрепить в этом месте специальный удлинитель. Такой способ позволит сделать соединение максимально прочным.

Рекомендуется установить удлинитель на старую трубу
Для начала необходимо намотать уплотнитель на резьбу трубы, а затем усилить герметизацию с помощью специальной пасты. Теперь можно зафиксировать ключом и сам удлинитель. Потребуется затянуть его очень плотно.
Если есть в этом потребность, то рекомендуется на этом этапе установить запорные клапаны. Это значительно упростит проведение дальнейших мелких ремонтных работ, ведь не придется отключать общий водопровод.

Сантехнический запорный клапан
Дальнейшие действия будут отличаться в зависимости от особенностей монтажа:
- если вы будете использовать металлопластик, то на трубы имеет смысл закрепить переходники;
- если смеситель будет фиксироваться на раковину после длительной эксплуатации, то рекомендуется предварительно очистить отверстие от ржавчины и прочих загрязнений;
-
в случае приобретения новой мойки рекомендуется выбирать модель с уже подготовленными отверстиями под крепления (если они отсутствуют, то их придется сделать самостоятельно).
В металлической конструкции можно быстро сделать отверстия, используя специальный инструмент, благодаря чему получится подготовить углубления любого диаметра.
Если мойка каменная, то понадобится специальная алмазная насадка.

С помощью такой насадки можно быстро сделать отверстие в столешнице
Типы смесителей для раковины кухни
Основными причинами замены крана на кухне становятся смена интерьера, замена раковины и износ деталей крана. Процесс разбора и замена смесителя на кухне независимо от модели происходят почти одинаково, но перед этим домовладельцу необходимо определиться с наиболее подходящим его типом. Их могут поставлять в магазины различными по конфигурации, материалу, дизайну.
Конфигурация крана напрямую связана с типом установки. Бывают настольные и настенные, но чаще всего на кухне устанавливают кран на столешницу или на бортик мойки. На стену в большинстве случаев крепят смесители в дорогих интерьерах кухонь и не всем они по карману.
В качестве материала изготовления для сантехники применяют бронзу, латунь, керамику, силумин. При использовании силумина прибор отличается долгим сроком службы, наименьшим весом и приемлемой ценой. Если предпочесть дешевизне надёжность, то следует выбирать изделия из керамики, бронзы и латуни. Они существенно дороже, но и служат намного дольше. Поэтому для долгосрочного использования данный тип изделий считается более выгодным, чем силуминовые краны.
Виды шлангов для кухонных смесителей
Чтобы установить кухонный смеситель, нужно обратить особое внимание на тип шланга для соединения с водопроводной трубой
Для того чтобы не пришлось часто устанавливать новую подводку к крану, выбирать их следует с осторожностью и смотреть на надёжность

Они могут быть:
- сильфонные с наружным металлическим гофрированным слоем и внутренней каучуковой вставкой;
- армированные – гибкие, обтянутые сверху металлической сеткой, шланги по краям имеют фитинги стандартных размеров с соединительными гайками;
- гибкие шланги, изготовленные из алюминиевой оплётки с малым сроком службы;
- стальные шланги используют в качестве временной подводки, они служат менее года.
При правильной сборке смесителя, он послужит несколько лет. Поэтому в процессе подключения шлангов рекомендуют использовать уплотнитель и резиновые прокладки.
К преимуществам армированных шлангов относят: гибкость, лёгкость установки при помощи разводного ключа, устойчивость к резким перепадам давления воды. Недостатки: продавливание резиновой прокладки и быстрый износ гаек крепления.
Самыми долговечными шлангами считаются нейлоновые и из нержавейки, которые могут выдержать высокую температуру воды и прослужить в среднем 10 лет.
Преимущества сильфонных шлангов: способны выдержать очень высокие температуры воды, просты в установке, фитинги надёжно приварены к гофрированной трубке, гибки и устойчивы к механическому воздействию. К недостаткам относят низкий уровень шумоизоляции. Эту проблему решают установкой шланга с большим диаметром, чем у водопроводной трубы.

Если расстояние от входного отверстия до трубы составляет около 25 см, то можно использовать стандартные шланги. В другом случае покупают длинные гибкие шланги в нержавеющей оплётке, чтобы не затопить соседа.
Излив смесителя
Вопросу по выбору высоты излива следует уделить должное внимание, так как при большой высоте и раковине маленького диаметра вода начнёт разбрызгиваться. В другом случае: при маленькой высоте излива будет неудобно мыть объёмную посуду
Поэтому выбирают среднюю высоту излива исходя из параметров мойки.
Эту проблему легко решить, купив раковину в комплекте со смесителем или обратив внимание на выдвижной излив, который вынимается из гнезда на 60-120 см. Применение современного шланга для излива помогает сохранить время и чистоту на кухне

С двумя кран буксами червячного типа
В двух вентильных моделях смешивание воды происходит поочерёдным вращением «барашков», отвечающих за подачу холодной и горячей воды. Конструкция довольно дешёвая, поэтому пользуется повышенным спросом. Если смеситель течёт из-за трещины в корпусе, необходимо демонтировать кран и установить новый. Однако наиболее распространённая неисправность заключается в износе резиновых прокладок, которые сдерживают поток воды. Такая проблема характерна для вентиля, подающего горячую воду. Регулярное воздействие высоких температур разрушает резину, что нарушает герметичность стыка кран буксы и корпуса смесителя. Чтобы устранить дефект, нужно разобрать кран.

Как снять кран червячного типа?
Вот что нужно делать:
- Удаляем декоративную заглушку с «барашка».
- Выкручиваем отвёрткой фиксирующий винт.
- Снимаем вентиль.
- Откручиваем кран буксу рожковым ключом.
- Снимаем изношенную прокладку.
- Устанавливаем новый уплотнитель.
- Собираем кран в обратной последовательности.
Виды смесительных устройств для кухни
Независимо от конструкции любой смеситель выполняет одну и ту же функцию- он смешивает горячую и холодную воду, подаваемую подходящими к нему трубами, в определенной пропорции и регулирует напор получившегося потока.
Наиболее распространенными являются следующие виды смесителей:
- однорычажные, или шаровые;
- двухвентильные;
- термостатические;
- сенсорные.
Однорычажные
Бали разработаны во второй половине XX века и быстро завоевали заслуженную популярность. И температура, и напор в них регулируется единственной рукояткой- рычагом, которая может перемещаться вверх-вниз, регулируя напор, и налево-направо, регулируя температуру. В основе конструкции- керамический шар с фасонными отверстиями для горячей и холодной воды и для выходящего потока. Поворачивая шар за рычаг, владелец совмещает эти отверстия с соответствующими окнами в корпусе, создавая больший или меньший просвет.
Достоинство конструкции:
- долгий срок службы;
- удобство управления одной рукой.
Недостатки:
- работают только с водой, свободной от механических примесей, что требует установки дополнительных фильтров;
- высокая стоимость.
Заменить однорычажный смеситель легко и просто.
Двухвентильные
Этой конструкции более двухсот лет. Традиционные смесители были изобретены в Великобритании лордом Кэвендишем, известным ученым. Конструкция до сих пор сохраняет популярность благодаря простоте и доступной цене.
Напор горячей их холодной воды регулируется отдельными вентилями. Смешиваются они в выходном патрубке.
Вентиль управляется маховиком-рукояткой, ее вращение через червячную передачу преобразуется в поступательное движение тарельчатого клапана, увеличивая или уменьшая просвет меду прокладкой и седлом.
Двухвентильный смеситель
Достоинства:
- нетребовательность к качеству воды;
- дешевизна смесителя
- дешевизна прокладок
К недостаткам таких смесителей относят:
- неудобство пользования
- необходимость частой замены прокладок.
Улучшенная конструкция двухвентильного смесителя использует вместо резиновых прокладок керамические диски. Кран открывается полностью за пол-оборота рукоятки. Однако такие смесители чувствительны к качеству воды.
Термостатические
Механический термочувствительный элемент регулирует пропорции смешения горячей и холодной воды так, чтобы температура выходящего потока соответствовала заданной. Пользователь один раз устанавливает комфортную температуры и далее ему достаточно только включать и выключать воду, регулируя ее напор.
Сенсорные
В таких смесителях к термостату добавлен датчик близости. Достаточно поднести руки или какой-либо к крану- он сам включит воду заданной температуры и напора. Когда руки или предмет убирают из зоны действия сенсора, вода отключается. Такие смесители давно используются в общественных туалетах, в последнее время они стали распространяться и в частных домовладениях. Питается устройство от батарейки, которой хватает не менее, чем на год.
К достоинствам конструкции относят:
- удобство пользования, после первичной настройки смеситель работает автоматически
- экономия воды, она подается только тогда, когда в зоне действия датчика находят руки;
- безопасность, исключается риск залить соседей из-за забытого крана.
Недостатки устройства, следующие:
- сложность конструкции исключает самостоятельный ремонт;
- необходимость периодической замены батарейки;
- весьма высокая цена.
С ростом популярности устройства эксперты предсказывают снижение цен на сенсорные смесители.
Инструкция по установке смесителя
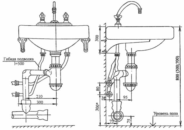
Демонтажные работы мы разобрали, пора переходить к рассмотрению вопроса, как правильно установить смеситель на кухне и подсоединить его к водопроводу. Начнем с нержавеющей мойки, в которой может не оказаться установочного отверстия (некоторые производители выпускают их, чтобы пользователь сам выбрал место для «гусака»). В этом случае нужно разметить центр будущего отверстия, накернить его и просверлить под диаметр 8 мм. Чтобы получить идеально круглый проем, воспользуйтесь специальным приспособлением, показанным на фото.

За счет сжатия болтом в раковине выдавливается ровный круг. Под смеситель с гайкой нужен диаметр 35 мм, для монтажа на 2 шпильки хватит 32 мм. Если мойка не меняется, то ее следует отчистить с обеих сторон от проема, а дальше действовать по инструкции:
- Соберите сантехнический прибор, вкрутив первую подводку с короткой гильзой, потом вторую с длинной. Слегка подожмите их рожковым ключом на 10 мм. Если ваше изделие крепится на 1 гайку, то сборка производится после его монтажа на раковину.
- Закрутите в гнезда шпильки и притяните их отверткой (на торце у каждой есть шлиц). Большое усилие не прилагайте – крепление подтянется за счет вращения гаек.
- Наденьте круглую резиновую прокладку и вставьте кран в монтажное отверстие. Затем установите вторую наружную прокладку и пластину в виде полумесяца.
- Наживите гайки и закрепите прибор, выровняв его по центру отверстия и отрегулировав так, чтобы «гусак» равномерно поворачивался в обе стороны. После чего окончательно затяните гайки рожковым ключом.
- Поставьте мойку на место, промазав края снизу герметиком. Подключите канализационный сифон.
- Протяните шланги к трубам и присоедините их посредством накидных гаек, затягивающихся с минимальным усилием, чтобы не выдавить резиновые прокладки.


Схема установки и подключения к водопроводу
Санитарный прибор с большой гайкой крепится в другом порядке – сначала изделие прикручивается к умывальнику, а затем подсоединяются шланги. Иначе они не дадут накрутить гайку на резьбовую часть. То же касается монтажа с помощью металлопластиковых и нержавеющих подводок: поскольку они не обладают достаточной гибкостью, 2 трубы сложно протолкнуть в одно отверстие. Подсоединяя шланги к полипропиленовым трубам, проследите, чтобы они крепились к стене защелками. Процесс установки смотрите в видеоролике:
С керамической кран буксой
Это аналог предыдущей модели, который отличается более длительным сроком эксплуатации. Надёжность конструкции обеспечивается заменой резиновой прокладки, керамическими пластинами. Однако такие кран буксы чувствительны к качеству воды: присутствие песка или мелкого сора оказывает на керамику губительное воздействие. В частности, пластинки стачиваются, что приводит к нарушению герметичности соединений. Если вы используете смеситель с керамическими кран буксами, обязательно нужно установить фильтр для очистки воды.

Разборка модели с керамической кран буксой происходит по описанной выше схеме, а вот починить смеситель можно иначе. Если пластины изношены, они подлежат замене. Приобрести нужные элементы можно в сантехническом магазине, прихватив с собой кран буксу. Проблема может крыться и в износе прокладки: она прижимает пластины, перекрывая воду. Если кран капает, можно нарастить прокладку, наклеив сверху слой резины или намотав несколько витков изоленты. Не забудьте сделать отверстия для воды! Замена кран буксы в смесителе выполняется, если текущий ремонт невозможен.
Профилактические меры
Что можно предпринять, чтобы смесители для раковины на кухне и в ванной работали долго и не создавали проблем. Во всём виновата вода. Именно она негативно влияет на детали и узлы сантехнических приборов. И чем она жёстче и загрязнённее, тем срок эксплуатации смесителей будет ниже.
Поэтому самый эффективный способ продлить данный срок – это очистить воду. Делается сегодня это просто. Надо в систему водопровода установить фильтры, которые будут удерживать взвешенные частицы. Ведь именно они попадают в стыки и смежные плоскости деталей и узлов, оставляя там царапины, разрывая резиновые прокладки и манжеты.
Фильтр в системе водопровода решает многие проблемы
Не последнюю негативную роль играет накипь, но бороться с ней самостоятельно сложно. Ведь это солевые отложения, которые возникают при нагревании жёсткой воды. Можно установить в систему водопровода фильтры-умягчители, но это недешёвое оборудование, достаточно больших размеров, под которое надо выделить место. В квартире с этим могут возникнуть проблемы. Но стоит ли это того, чтобы сохранить в целостности смесители.
Надо добавить, что многие производители очень внимательно относятся к производству смесителей. Используются высококачественные металлы, пластик и резина, детали подогнаны с высокой точностью. Поэтому невзирая на качество используемой воды, такие приборы служат по несколько лет при достаточно высокой интенсивности эксплуатации
Так что стоит обратить внимание на брендовые модели с гарантией качества
Виды смесителей
На рынке в настоящее время представлен огромный ассортимент кранов разной функциональности и ценовой категории. Перед покупкой стоит ознакомиться с основными видами, чтобы выбрать для себя наиболее приемлемый вариант.
Помимо дизайнерских решений, краны отличаются между собой по следующим критериям:
- материал: сплав металлов, полимеры и керамика;
- тип защитного напыления: хром, эмаль, порошковая краска;
- принцип действия: однорычажный, сенсорный, двухвентильный.
Стоит остановиться подробнее на типовом различии моделей.
Однорычажный
В основе конструкции однорычажного крана находится металлический шар с тремя отверстиями либо картридж с керамическими пластинами и специальной силиконовой смазкой, также с отверстиями, перемещение которого и производит смешивание воды.
Регулировка температуры производится за счет движения рычага (ручки). Изделие при выключении «запоминает» положение и при следующем включении выдает воду необходимой температуры.
Однорычажные модели просты в монтаже и использовании, а отсутствие резиновых прокладок и трущихся между собой металлических деталей обеспечивает долговечность изделия.
Двухвентильный
Двухвентильный кран представляет собой два отдельных потока горячей и холодной воды, объединенных в один излив. Холодная и горячая вода в такого типа приборах регулируется независимо друг от друга двумя вентильными головками (кранбуксами).
Сенсорный
Сенсорные смесители оснащены индукционными датчиками. Датчик реагирует на изменения поля в зоне чувствительности крана. Подача воды осуществляется при помощи соленоидного клапана. Питание для электроники подается от специальных аккумуляторов, встроенных в прибор.
Для задания необходимой температуры смесители оснащены регуляторами воды.

Замена своими руками
Замена крана является несложной процедурой, и справиться с ней под силу каждому
Важно выполнять все действия не спеша, особенно если замена происходит в первый раз
Перед самостоятельной заменой крана, нужно подготовить следующие инструменты :
- ключи гаечные 10×12 или 13×14 ;
- торцовый ключ ;
- разводной ключ N 1 ;
- гибкие шланги ;
- набор резиновых прокладок ;
- фторопластовую ленту или силиконовый герметик (использовать по необходимости).

Демонтаж смесителя
Первым этапом является подготовка инструментов и демонтаж старого крана.
Порядок действий:
- Перекрыть воду на магистральных трубах. Пометить либо запомнить горячий и холодный кран для того, чтобы в дальнейшем не перепутать. Стоит проверить отсутствие протеканий, если таковые имеются, в противном случае, придется сменить вентили магистралей холодной и горячей воды перед продолжением работы.
- Найти накидные гайки, соединяющие подводку с магистральными трубами, и открутить при помощи разводного ключа. Для слива остатков воды понадобится тазик.
- Трубчатые штуцеры с места крепления смесителя и шлангов следует открутить гаечным ключом 10×12 или 13×14, в зависимости от ситуации.
- Далее следует демонтаж крана. Для этого нужно открутить прижимную шайбу и две шестигранные гайки (для однорычажного смесителя на шпилечном креплении) или прижимную гайку (для двухвентильного), находящиеся прямо под раковиной. Это удобно сделать трубчатым ключом.
- Снятие мойки сделает работу более удобной. Если мойку снять нельзя, придется опускаться под нее.
- Открутить гибкие шланги можно рожковыми ключами.
- Осталось отсоединить смеситель от раковины и снять шайбу и прокладку.

Подготовка и сборка смесителя
Перед тем, как заменить смеситель на кухне , необходимо произвести некоторые манипуляции.
Что необходимо сделать:
- Распаковать и осмотреть смеситель с целью выявления дефектов.
- Положить тряпку на дно раковины для того, чтобы при падении мелкие детали не провалились, а крупные не повредили поверхность.
- Если выбран двухвентильный кран, то его нужно собрать: вставить излив (то есть саму трубку) в корпус и прикрутить их друг к другу. В случае необходимости, обмотать конец подводки фторопластовой лентой, но это делать не обязательно, так как шланг уже имеет прокладку.
- Прикрутить трубки подводки в соответствующие отверстия: сначала вручную, а затем на пару оборотов рожковым ключом № 10, чтобы закрепить результат. При этом, по необходимости, нужно надеть резиновые прокладки на штуцеры шлангов.
- Отрегулировать моменты затягивания носика крана и вентиля. Чтобы не повредить поверхностное напыление инструментами, подложить тряпку.
- Очистить от грязи и ржавчины место крепежа. Для этого удобно использовать проволочную щетку.

Установка
После сборки можно приступать к монтажу.
Порядок действий:
- Продеть концы шлангов в посадочное отверстие мойки.
- Если устанавливается однорычажный или сенсорный смеситель, то скорее всего, он будет крепиться на шпильки прижимной шайбой и гайками. Для этого их нужно прикрутить под раковиной, но не до конца. После чего смеситель выравнивается по центру монтажного отверстия, затем закручивается до упора.
- Если устанавливается двухвентильный кран, то крепиться он будет на опорную шайбу и подтягивающую гайку. Для этого используют разводной или газовый ключ.
- Теперь можно присоединить концы подводки к магистралям подачи воды. Современные гибкие шланги зачастую уже оснащены гайками-штуцерами с резиновыми прокладками, поэтому останется только их прикрутить.

Опрессовка и запуск
Перед эксплуатацией установленного крана рекомендуется проверить его на герметичность. Для этого следует перекрыть воду на смесителе и вентили на кранах подачи горячей и холодной воды. Затем внимательно осмотреть места соединений и сам кран. Если через 15—20 минут вода нигде не появилась, значит, все собрано правильно — краном можно пользоваться.
Перед началом эксплуатации также рекомендуется снять сеточный фильтр с гусака смесителя и пропустить воду для смыва из труб остатков ржавчины и накипи, затем вернуть на место.

Выбор водораспределительного узла
Прежде чем менять смеситель необходимо выбрать новое устройство. Чтобы кран служил долго и не утомлял постоянными неполадками, отнеситесь к покупке ответственно.
Производители, которые дорожат своей репутацией, производят агрегат из латуни или бронзы. Узнать такое устройство несложно – его внутренности желтого цвета. Серая начинка «говорит» об изделии из силумина. Этот материал совсем ненадежен и подвержен скорым коррозийным процессам.
Уплотнения должны быть резиновыми.
Разрезное распорное кольцо излива, чтобы кран не шатался и не тек.
Рычажковая запорная арматура по всем параметрам предпочтительней вентильной:
- экономит воду, потому что не требует постоянной настройки;
- удобно открывать и закрывать грязными руками. На кухне это особенно актуально.
Подготовка
Прежде чем начать процесс установки, следует подготовить все. Начать нужно с отключения водоснабжения. Для этого необходимо перекрыть вентили горячей и холодной воды. Если на кухне установлены отдельные, достаточно перекрыть их, в противном случае придется отключать воду по всей квартире.
Далее необходимо подготовить инструменты: ключи, ФУМ ленту, новый смеситель.
Демонтаж старого крана
Вне зависимости от того, какой тип смесителя был установлен, его придется снимать. Делать это нужно аккуратно, чтобы не повредить раковину, шланги и прочие элементы, которые нам пригодятся для дальнейшей эксплуатации.
Итак, берем разводной ключ и снимаем кран с раковины. Если вы планируете вместе с краном заменить и водопроводные шланги горячей и холодной воды, тогда их можно не откручивать от смесителя. В противном случае это придется сделать, чтобы потом к ним подключить новое устройство.
Конечно, если шланги служат уже более пяти лет, лучше на этом не экономить, а установить новые. Ведь сэкономленные деньги окажутся копейками, по сравнению со стоимостью ремонта соседей снизу, когда из-за прорыва старого шланга вода хлынет к ним.
Процесс установки
Когда старый смеситель снят, можно производить замену. Для этого берем новый кран. Желательно, чтобы это был однорычажный. Как показывает практика, именно такое устройство является самым прочным и долговечным. С однорычажным краном у вас не будет проблем с необходимостью замены прокладок и прочих элементов.
Итак, если необходима установка и водопроводных шлангов, тогда их необходимо продеть в отверстие в раковине и подключить к смесителю. А затем другие концы подключить к водопроводным трубам. При этом необязательно использовать ФУМ ленту. Дело в том, что современные устройства оснащены резиновыми прокладками, которые предотвращают возможную течь.
Подключая шланги к крану, не забудьте заранее вставить прокладку в дно крана, которая будет служить уплотнением при соединении с раковиной.
Остается лишь закрепить кран на мойке. В случае с однорычажным краном, это значит, что нужно закрутить гайку на винте.
Проверка
Когда все необходимые манипуляции по демонтажу и установке нового смесителя выполнены, можно переходить к последнему этапу монтажа – контроль качества выполненной работы. Для этого нужно сначала открыть вентили водоснабжения. Далее поочередно и плавно нужно открыть кран холодной и горячей воды, а затем и осуществить смешивание. При этом нужно проверять все места соединений. Дальше необходимо осуществить проверку при максимальном напоре.
Если при проверке обнаружена течь, придется снова отключать водоснабжение и перепроверять места соединений, где есть проблемы. Скорее всего, понадобится лишь использование ФУМ ленты. Ее нужно намотать на резьбу и аккуратно зажать соединение.
Течь может наблюдаться и в ином случае: если соединения были зажаты слишком сильно. В таком случае могли быть пережаты прокладки. Это могло привести к выходу их из строя. В таком случае можно попробовать просто поменять прокладку.
Замена – это нестрашно
https://youtube.com/watch?v=SV1cKbJrQQ0
Чтобы своими руками установить смеситель на кухне, необязательно даже дополнительно смотреть видео. Будет достаточно и данной инструкции-рекомендации. Поменять кран таким образом будет просто, и не займет много времени. Главное, последовательно выполнять все этапы, тогда никаких непредвиденных ситуаций не произойдет. А смеситель будет служить продолжительное время без поломки и протечек.
Как заменить кран-буксу своими руками?
1. С маховика необходимо снять самый верхний колпачок. Возможно, в процессе долгой эксплуатации сделать это будет нелегко, поэтому в таком случае помогут пассатижи. Под колпачком внутри маховика находится болт, который необходимо вывернуть, чтобы извлечь вентиль крана.

2. Часто, чтобы отвернуть вентиль, требуется приложить немало усилий, ведь металл под постоянным воздействием воды образует окись, которая, иной раз, намертво скрепляет детали смесителя друг с другом. После того, как вентиль снят, необходимо почистить резьбу, к которой крепился болт — за период эксплуатации, вероятно, там мог скопиться мусор. Очистке нужно подвергнуть изнутри и сам маховик.

3. Далее следует заняться отвинчиванием фурнитуры крана, которая также может не поддаться с первого раза. Для удобства нужно взять раздвижные клещи, а чтобы не исцарапать ими глянцевую поверхность под них можно подложить лоскут плотной материи.

4. После снятия фурнитуры можно увидеть буксу, ввинченную в смеситель. Перед тем, как ее вывернуть, обязательно надо проверить, перекрыта ли подача горячей или холодной воды (в зависимости от того, какую воду регулировала вышедшая из строя кран-букса).
Если воду не перекрыть, то она хлынет сразу же после извлечения буксы из смесителя.

5. Когда букса вывинчена, необходимо тщательно прочистить резьбу смесителя. Это нужно для того, чтобы новая кран-букса встала плотно по резьбе, иначе, если там останется мусор, вода будет подтекать не только из носика гусака, но и у основания маховика. Для зачистки подойдет кардощетка.

6. Для каждого смесителя подходит определенный вид кран-букс. Необходимо подобрать эту деталь таким образом, чтобы она совпадала по резьбе, величине и материалу (керамическая или резиновая). Для удобства буксу, вышедшую из строя, можно просто взять с собой в магазин.

7. Новую буксу ввинчиваем на место, где стояла ее предшественница. Если резьба смесителя очищена нормально, то проблем с дальнейшей сборкой маховика возникнуть не должно.

Поскольку смеситель довольно часто эксплуатируется в ванной комнате и на кухне, то будет полезно иметь навыки по замене кран-буксы, ведь чаще всего именно она является причиной протечки воды. А, благодаря пошаговой инструкции с фото, справиться с этим сможет не только мужчина, но и домохозяйка, которая не имеет возможности обратиться к сантехнику.
Предлагаю также посмотреть видео по замене кран-буксы смесителя своими руками.
Список источников
- homius.ru
- vdome.club
- kachestvolife.club
- qustu.com
- mebel-expert.info
- trubexpert.ru
- stroypomochnik.ru
- mr-build.ru
- muzhik-v-dome.ru
- vyborkuhni.ru
7 лестниц
