Что такое корпусная мебель ↑
Существует общепринятая классификация мебельных предметов, которая отражена в статьях ГОСТ. Там же прописаны требования к отдельным изделиям. Все виды делят на две большие категории – корпусную и мягкую мебель, каждая из категорий, в свою очередь, также имеет подвиды. Для начала попробуем определить, что это – корпусная мебель, и найти ее отличительные характеристики.

Современный кухонный гарнитур
Данное название подходит для любой массивной мебели, главной частью которой является вместительный корпус. Он состоит из сборных частей, панелей и щитов, то есть под определение подходят все шкафы, буфеты, комоды, консоли, тумбы и тумбочки, шифоньеры и серванты. Основная функция – хранение вещей, которые складывают на полочки, в ящички, специальные отделения и отсеки.

Динамический элемент — выдвижной модуль
Данный вид прекрасно сочетается с другими, например, категорией брусковых изделий – столов и стульев (для изготовления ножек используют бруски или продолговатые заготовки), а также с мягкой мебелью. В одном гарнитуре могут быть элементы разных видов, например, для столовой группы традиционным считается сочетание из стола, стульев и буфета (или сервировочного стола в виде комода).

Столовая группа
Для корпусных изделий характерно использование фасада (красиво оформленной лицевой части) и специальной фурнитуры, помогающей открывать дверцы и ящички. К фурнитуре относятся разного рода петли, ручки, направляющие. Из современных деталей – поворотные и нажимные механизмы, газлифт, элементы внутреннего наполнения.

Фасады МДФ в современном интерьере
Современная корпусная кухонная и столовая мебель – это удобные и эргономичные системы хранения, максимально функциональные и эстетически привлекательные.
Комплектующие для детской мебели
Принципиальное отличие мебели для детской комнаты заключается в использовании экологически чистых материалов и эргономичной фурнитуры. Комплектующие детской мебели – это широкий выбор продукции для шкафов, столов, кроватей и других изделий.
Кроме общего для большинства изделий крепежа и лицевой фурнитуры, следует выделить некоторые особенные комплектующие для сборки мебели в детскую:
- раздвижные системы для шкафов купе;
- подъемные механизмы для кроватей;
- направляющие для выдвижных ящиков (телескопические и роликовые).
В зависимости от конкретной конфигурации каждого элемента детской комнаты, количество и разновидность используемой фурнитуры может немного меняться.
Комплектующие для кухонной мебели
Основная задача кухонного гарнитура заключается не только в хранении необходимых вещей, но и в правильном расположении бытовой техники. Кроме того, неотъемлемой составляющей является столешница, которая играет роль верхней части напольных секций и выступает в качестве рабочей разделочной поверхности.
Комплектующие для кухонной мебели можно разделить на несколько условных категорий:
- соединительный крепеж (различные конфирматы, саморезы, навесы);
- дополнительные механизмы (газлифты, доводчики, сервоприводы);
- комплектующие фасадов мебели (ручки, рамки, витражи, молдинги).
Каждая группа товаров используется в зависимости от функциональности гарнитура, выбранной стилистики и различных конструктивных особенностей.
Что входит в кухонный гарнитур?
Любой стандартный элемент, входящий в комплект кухонной мебели – это мебель из одной серии, а количество шкафов хозяева подбирают в соответствии с конкретной кухней (размерами, формой) и со своими предпочтениями.



Кухня – такое помещение, где мебель должна выдерживать повышенные нагрузки, а потому важна такая составляющая, как прочность крепления. Это относится ко всему – и к дверцам, и к полкам, и к стеновому креплению шкафов, и ко всей фурнитуре, и столешнице стола, а также его опорам.


Второй способ более оригинальный, практичный и привлекательный – все шкафы придвинуты так же плотно один к другому, но столешница у них общая. В этом случае можно врезать в столешницу, например, мойку или какие-либо нагревательные предметы.

О чем говорит эргономика
На этапе проектирования мебели, независимо от того будет это табурет или кухонный гарнитур, учитывают требования эргономики. А именно учесть потребуется соответствие предметов обстановки антропометрическим данным человека. Так, при изготовлении мебели для детей учитывают категорию роста, к которой относится ребенок. При изготовлении стульев, столов, кухонной мебели учитывают усредненные показатели, рассчитанные на среднестатистического человека.

Основные требования эргономики
В качестве примера можно рассмотреть требования к основным параметрам кухонного гарнитура:
- Для составления эскиза предварительно измеряют высоту помещения, длины стен, вдоль которых будет располагаться гарнитур, расстояние до выступающих элементов: труб, подоконников, оконного проема, двери, отмечают мета расположения розеток, включателей и вентиляционного отверстия.
- Стандартные размеры напольных тумб по высоте составляют 850 мм, по ширине 300 – 800 мм и в глубину не больше 500 мм.
- Ширина навесных шкафов дублируется нижерасположенными, а глубина составляет от 300 до 350 мм. Высота может быть выбрана так, чтобы между верхом шкафа и потолком оставалось свободное место в 200 мм. Некоторые дизайнерские решения предполагают размещение навесных шкафов на всю высоту помещения.
- Высота рабочего фартука составляет 600 — 650 мм.

Эргономика на кухне

Эргономика в зависимости от роста человека
При разработке проекта мебели потребуется учесть площадь помещения, выбрать место установки мебели таким образом, чтобы она не препятствовала передвижению по комнате. Сейчас существует большое количество компьютерных программ, позволяющих визуализировать проект в заданных условиях.

Компьютерная программа для визуализации проекта кухни
При разработке комплекта мебели потребуется подготовить пояснения не только ко всему гарнитуру, мебельной стенке или набору детской мебели, но и к каждому предмету по отдельности. Деталировка должна касаться всех элементов.

Детальный чертеж кухонных шкафов
Например, для кухонной тумбы потребуется отразить параметры задней панели, боковых стенок, фасада и полок. Если она оснащается выдвижным ящиком, то его детализацию выполняют отдельно, отмечая места крепления направляющих и ручки, размеры боковин, фасада и дна.
От компании Ikea
Икеа – это кухни практичные, привлекательные и имеющие вполне демократические цены, а потому популярные сегодня во всём мире. С каждым днём производители повышают качество материалов, с которыми работают, а также качество выполнения самих работ по созданию кухонной мебели.
Выпускаемая продукция отличается большим разнообразием, оттенками цвета и фактурой поверхностей, что делает возможным выбор подходящего варианта мебели для того, чтобы оформить кухню в одном из предпочтительных стилей.



Кухонный ансамбль Ikea может быть либо заказан под определённые размеры и под особенную форму вашей кухни, либо может быть уже готовым решением, выбор которых в магазинах представлен в большом разнообразии. Основной задачей производителей этой известной компании является именно модульность мебели. Поэтому есть большая вероятность того, что выбирая в линейке размерных рядов, можно сконструировать ту кухню, которая подойдёт именно в вашем конкретном случае. Причём, стоить это будет достаточно недорого, а сроки изготовления будут минимальными.



Этапы конструирования корпусной мебели
Первым этапом будет так называемый предэтапный этап, который должен начинаться с обмеров вашего помещения (для этого лучше вызвать специалистов). Перед тем как начать все замеры, конструктор должен выяснить данное месторасположение, специфические требования к подобной конструкции, габариты и материалы, которые могут быть использованы при изготовлении корпусной мебели именно для этого конкретного помещения.
С этого должен начинаться процесс конструирования любой мебели.
Иногда клиенты рисуют в своих фантазиях такую мебель и расстановку, которую нельзя создать в настоящих условиях. Дизайнер-конструктор должен, не ущемив желаний заказчика, предложить то, что будет доступно для реализации.
Оригинальный проект корпусной мебели для кухни
Конструктор мебели должен будет зафиксировать габаритные размеры помещения вместе с оконными и дверными проёмами. Дополнительно потребуется измерить всё расположение коммуникаций.
проектирования мебели для кухни
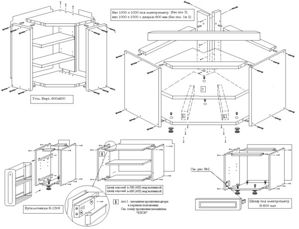
Важный этап: чертеж
Для самостоятельного изготовления мебели потребуется разработать чертеж и схему сборки изделия. Это обязательное условие. Основой для чертежа служит эскиз – идея, воплощенная на бумаге. Эскиз отражает основные нюансы: форму изделия, пропорции, количество и наличие основных элементов (полок, дверец, ящиков), дизайн фасадов.

Детская мебель – чертеж с размерами
За основу подготовки документации для изготовления мебели можно взять типовой перечень схем и чертежей, которые предоставляет производитель корпусной мебели для облегчения и упрощения процесса сборки. Такой перечень состоит из следующей документации:
- Изображения общего вида изделия.
- Сборочного чертежа.
- Списка фурнитуры.
- Чертежей с деталировкой всех элементов, с указанием мест крепления деталей, типов отверстий и используемой фурнитуры, расположения кромок.
- Спецификации.

Деталировка изделия для сборки
Это необязательный перечень – какие-то пункты можно удалить, какие-то добавить.
Какой способ производства лучше ↑
Перед покупкой нового гарнитура всегда встает вопрос, что лучше: модель на заказ или полностью готовый вариант. Инженеры научились придумывать универсальные модели, которые легко вписываются в любой интерьер, однако дизайнерский проект для конкретного помещения все равно удобнее и функциональнее.

Модульная кухня серийного производства
Если в планах оборудование кухни современной встроенной техникой, индивидуальный проект является единственно верным решением. Вы самостоятельно выбираете места расположения рабочей поверхности, холодильника, мойки, плиты. Большую роль играют и размеры оборудования – они редко совпадают с габаритами готовых предложений.

Гарнитур на заказ с учетом площади помещения и стиля интерьера
Лучше обратиться к мастерам и тем, кто живет в малогабаритных квартирах. Стандартные фабричные модели массового производства рассчитаны на площадь от 7-10 м и более², тогда как до сих пор встречаются помещения 5-6 м².

Вариант для малогабаритной квартиры
Для владельцев просторного жилья существует множество стильных, дорогих или экономичных модульных предложений. Среди них есть интересные варианты с отдельно стоящим столом-«островом» или удобным столовым гарнитуром.
Разновидности фасада
Встречаются различные типы поверхностей корпусной мебели. Главным требованием к материалу изделия является плоская фактура. Для кухонных гарнитуров используют ДСП, МДФ, массив дерева и их сочетания с пластиковыми и стеклянными вставками. Все эти материалы могут быть выполнены в любом цвете в зависимости от пожеланий заказчика. Такая возможность позволяет оформлять кухню в различных стилях и гармонично сочетать ее с отделанными ранее элементами интерьера.
МДФ
На сегодняшний день фасады из мелкодисперсной фракции являются наиболее популярными у производителей и заказчиков корпусной мебели. В отличие от ДСП, этот материал обладает более гладкой фактурой и стоит намного дешевле, чем изделия из массива дерева. Для корпусной мебели используют две разновидности МДФ:
- с пленочным покрытием;
- крашеные.
Оба варианта имеют своих приверженцев, однако следует отметить большую практичность на кухне пленочных фасадов. Применение этой технологии позволяет существенно упростить чистяще-моющие процедуры. Однако дверцы шкафов из крашеного МДФ обладают более высокими показателями влаго- и износостойкости. Особенности технологии обработки поверхностей обуславливают дороговизну изделий.

Рамочный
Такая разновидность фасадов очень популярна, поскольку позволяет сочетать в себе одновременно два материала. Комбинированная конструкция может быть бюджетной, но при этом довольно элегантной. Подобные фасады отличаются большой долговечностью благодаря возможности замены отдельных частей. Кроме того, рамочные конструкции значительно легче, чем цельные изделия.
Раму изготавливают из ДСП, МДФ, массива дерева или алюминиевого профиля. В качестве заполнения используют стекло, пластик, зеркала, пробковый лист, кованые решетки. Оригинальным решением станет установка в раму меловой доски, на которой можно оставлять записки домочадцам. Минусом таких конструкций является сложность уборки. В некоторых случаях неоднородные фасады требуют использования разных моющих средств для каждой составляющей.

Деревянный
Предметы комнатной обстановки из массива являются довольно дорогостоящими. Выглядят подобные гарнитуры очень изысканно и респектабельно. Такая мебель позволяет легко создавать аристократические кухни в классическом стиле. Подобные изделия также уместны и для помещений, выполненных в кантри.
Для фасадов используют такие ценные породы древесины, как дуб, ясень, орех, липа, бук. Для дополнительного декора применяют разнообразные технологии искусственного состаривания и различные лакокрасочные покрытия. Приобретать мебель из массива стоит только у проверенных производителей, хорошо зарекомендовавших себя на рынке. Этот фактор имеет значение, поскольку высокая цена таких гарнитуров обусловлена сложным технологическим процессом подготовки материала. Отсутствие нарушений гарантирует качество мебели. В противном случае существует риск приобрести дорогое изделие, которое быстро потеряет свой облик.

Поставщики и производители комплектующих для мебели на выставке
Выставка «МЕБЕЛЬ» – это знаковое событие для всех специалистов, чья деятельность связана с этой отраслью.
Чем масштабнее мероприятие и чем выше его статус – тем больше новинок предоставят ведущие поставщики комплектующих мебели. Подобные выставки – это шанс новому производителю выгодно презентовать свою продукцию, а мебельным фабрикам ознакомиться с новыми поступлениями.
Современная качественная фурнитура и комплектующие для мебели всегда будут востребованными на рынке, поэтому посещать крупные профильные мероприятия обоюдно выгодно как производителям и поставщикам продукции, так и представителям частных компаний, которые занимаются изготовлением корпусной или мягкой мебели.
Каждый год на выставке «МЕБЕЛЬ» участвуют ведущие поставщики и производители комплектующих для мебели.
Читайте другие наши статьи: Магазины комплектующих для мебели разных городовКомплектующие для мягкой мебели
Программное обеспечение «Астра»
Проектирование мебели в конструкторе Астра
Этот софт, в отличие от программного комплекса «Базис», настроен на проектирование корпусной мебели для малых и средних предприятий, что соответственно, сказывается и на его стоимость.
Стоит отметить схожесть с вышеописанным продуктом Pro100, но «Астра» проигрывает ему в функциональных возможностях.
Преимущества программы:
- Выбор способа раскроя, который будет минимизировать расход материала;
- Установка фурнитуры в автоматическом режиме;
- Создание полного комплекта рабочих чертежей;
- Возможность создания оценки стоимости работ;
- Бесплатная демонстративная версия обладает широким функционалом.
Недостатки программы:
- Составляемая смета не включает в себя цену фурнитуры;
- Высокие требования к персональному компьютеру, а именно к видеокарте;
- Небольшое количество типовых моделей;
- Сложная настройка программы.
Мебельный конструктор «Астра» состоит из нескольких модулей:
- Раскрой.
- Конструктор.
- S-Nesting.
Первые два модуля предназначены соответственно для раскроя и визуализации, а последний для производства криволинейных моделей мебели.
Что это такое?
Название говорит само за себя – мебель состоит из закрытого корпуса, предназначение которого – хранение какой-либо кухонной утвари, а также продуктов питания. Такая кухонная мебель отличается мобильностью, и любой её корпус может быть совмещён с другим удобным способом, который подходит для какой-то конкретной кухни.
Корпусную мебель можно расставить так, что сконструированный вами кухонный гарнитур задействует в помещении самые неудобные и недоступные его уголки или выступы, а всё необходимое будет находиться в удобном для вас расположении. То есть вы сможете организовать кухонное пространство по своему усмотрению.



Таким образом, очень компактно, с сохранением всей функциональности, может быть укомплектована кухня даже самых маленьких размеров. За такие её возможности кухонную мебель иногда называют большим конструктором.
Важно и то, что при необходимости, любая часть кухонного гарнитура может быть переставлена по-другому, и для этих целей отдельные элементы кухонной мебели имеют надёжные соединения



Как правило, гарнитуры предлагаются по вполне доступным ценам, но и любителям шикануть также всегда найдётся из чего выбрать
Важно понимать, что наиболее рациональным решением будет приобрести корпусные составляющие по индивидуальному заказу. И неважно – миниатюрная «хрущёвка» у вас или роскошные апартаменты


Установка дверных фасадов
Такие элементы изготавливают из древесных плит, массива или стекла. Для их фиксации применяются разные крепежные системы. Алгоритм сборки дверных конструкций предполагает выполнение нескольких шагов:
Разметка. Петли должны располагаться на расстоянии 5-10 см от нижнего и верхнего края. С торца желательно отступать же примерно на 21 мм
Очень важно точно отметить месторасположение фурнитуры, поэтому все замеры нужно проверять несколько раз.
После этого в каркасе двери формируется отверстие с помощью фрезы Форстнера, в котором располагают петлю. Крепление конструкции производится с помощью специальных саморезов.
Следующим шагом является фиксация двери к стенке модуля
Для таких целей также предварительно выравнивают расположение петли и устанавливают небольшой зазор между дверью и каркасом. Это позволит фасаду открываться без препятствий. Фиксация также производится с помощью саморезов.

После завершения сборки отдельных модулей, следует расположить их на кухне в нужном порядке. Чтобы придать системе стойкость, желательно стянуть все шкафчики между собой. Для таких целей используются специальные стяжки, под которые нужно будет высверлить отверстия. Если вы не уверены, что справитесь с подобной задачей самостоятельно, тогда лучше доверить подобную работу представителю продавца.

7фотографий
Фасад
Фасадом называют внешнюю сторону кухонной мебели (шкафа, пенала, тумбы и так далее). Именно от фасада зависит, насколько приятным окажется изделие внешне, и каким оно будет по стилю исполнения.

МДФ
Это высококачественная плита с плотным однородным составом. Важная особенность материала в отсутствии в нём каких бы то ни было вредных примесей, то есть это экологичный материал.
Другой плюс – в возможности сделать тонкую обработку такого материала, что очень важно для радиусных и закруглённых торцов фасада


Если фасад выполнен из МДФ, то для покрытия подойдёт один из четырёх материалов:
- плёнка ПВХ – материал достаточно доступный по стоимости, зато и срок службы у него недолгий;
- пластик считается материалом надёжным и практичным для изготовления кухонных шкафов. Плиту покрывают ламинатом высокого давления (пластиком HPL), которому не страшны ни царапины, ни удары, ни влага, ни резкая смена температуры, да и ухаживать за такой поверхностью очень просто.

Покрыть поверхность краской – такое решение может стать неплохой альтернативой пластиковому покрытию. Пользоваться для этого следует алкидной эмалью или матовым, глянцевым или рельефным лаком.



Деревянный
Фасад из дерева является признаком дорогих кухонных модулей, относящихся к стилям «классика», «кантри» или «прованс». Фасад может быть дубовым, вишнёвым, черешневым, ореховым, берёзовым или из акации. Любой из этих материалов красиво выглядит, но цена его высока. Бывает так, что стоимость за фасад является 70% от стоимости всего изделия.

Рамочный
В этом случае рамку фасада делают деревянной или алюминиевой, а в центр вставляют стекло, плиты ДСП, МДФ или ЛДСП. Особенно торжественно и необычно выглядят стеклянные вставки, которые могут быть выполнены в разных вариациях:
- прозрачным цветным стеклом;
- матовым или глянцевым цветным стеклом;
- стекло с имитацией изморози;

- с рифлёной фактурой;
- армированный вариант;
- пескоструйная обработка.
В любом случае кухня будет выглядеть очень необычно.


Программа Базис-Мебельщик
Базис-Мебельщик является одним из модулей программного комплекса, с помощь которого корпусная мебель по индивидуальному заказу доходит до своих заказчиков.
Интерфейс программы Базис- Мебельщик
Вкратце этот продукт имеет богатый набор функций, с помощью которых можно получить все необходимые чертежи создаваемой модели, узнать точные крепёжные места, а также выяснить остальные мелочи. Программный комплекс имеет помимо данного модуля ещё шесть составляющих, с помощью которых можно наладить целую фабрику по созданию предметов интерьера.
Преимущества программы:
- Функциональность, позволяющая моделировать мебель на профессиональном уровне. Составление чертежей и моделей раскроя, указание крепёжных мест, все это позволяет этой программе пользоваться популярностью среди дизайнеров и производителей;
- Существует функция обновления базы данных собственными элементами;
- Существуют все необходимые привязки при работе в графическом редакторе;
-
Программа распознаёт часто используемые детали и предлагает добавить их автоматически, что очень полезно при создании модульной мебели;
- Инструмент работы с фурнитурой очень удобен;
- Работа с программным комплексом может осуществляться как комплексно, так и отдельно с каждым модулем. Комплексная работа позволяет увеличить производительность организации, занимающейся производством мебели на всех этапах.
Недостатки программы:
- Стоимость софта окажется не по карману многим организациям;
- Трёхмерная визуализация программы не позволяет конкурировать ей с подобными продуктами по качеству картинки;
- Для того чтобы изучить основы работы программы потребуется много времени. Это усугубляется скудным наличием в сети обучающих видеороликов от пользователей.
Рассмотрим остальные модули этого программного продукта для производства мебели.
Базис-Шкаф
Утилита для проектирования мебели посредством изменения конструктивных схем.
Применив этот модуль можно за несколько минут смоделировать шкаф с желаемыми параметрами.
Базис-ЧПУ
Модуль, с помощью которого производится раскрой деталей корпусной мебели, создаваемой в других модулях программного комплекса.
Базис-Раскрой
Утилита для раскроя деталей по задаваемым параметрам. Этот модуль позволяет рассчитать площадь и габариты модели, выяснить наличие обрезков, которые могут ещё пригодиться и подсчитать количество ненужных отходов.
Базис-Смета
Эта составляющая программного комплекса помогает рассчитать стоимость готовой продукции, производит анализ затрат на интеллектуальный труд и производственную деятельность.
Подсчет стоимости шкафа в программе Базис-Смета
Кроме этого утилита производит учёт прочих сопутствующих производству мебели затрат. Забив необходимые сведения в настройки, утилита в автоматическом режиме создаёт бухгалтерские документы, необходимые для деятельности организации-изготовителя.
Базис-Салон
Утилита, позволяющая производить продажу продуктов. С помощью этого модуля менеджер с лёгкостью сможет представить клиенту трёхмерное изображение выбранного предмета интерьера, сориентировать его по возможной стоимости, а также по срокам изготовления. Программа автоматически передаёт сведения о заказе на производство или информирует персонал о наличии подобной продукции на складе.
Пример проектирования комнаты и кухни в Базис-Салон
Базис-Склад
Этот модуль помогает вести учёт продукции. С её помощью хозяйственная деятельность на предприятии осуществляется быстрее и легче, потому как отображается вся необходимая информация о приходе/расходе материалов, их остатках и перемещении.
Специфика кухонной обстановки ↑
Предметы, составляющие кухонный интерьер, отличаются от аналогов, расположенных в других комнатах. Например, шкафы для кухни выглядят иначе, чем платяные, которые находятся в спальне, гостиной или прихожей. Существует два вида кухонных шкафов – настенные и напольные. Первые могут иметь глухой или прозрачный фасад, вторые – собственную специфику. Например, отделение для мойки выглядит иначе, чем для встроенной техники или посуды.

Кухонные шкафы — удобная система хранения
Чаще всего при планировке жилых помещений комнате для приготовления и приема пищи отводится немного места. В современных домах – в среднем от 10 м² до 15 м². С учетом этого шкафы имеют свои особенности, например, линейные модели занимают площадь от стены до стены, а угловые тянутся вдоль двух смежных стен. Существуют варианты в виде буквы П — объемные системы хранения с огромным количеством полочек, ящичков и выдвижных модулей.

Интересное угловое решение
В связи с экономией пространства распространена практичная встроенная мебель, занимающая гораздо меньше места, чем отдельно стоящая. Наряду с интерьерными предметами встраивают и техническое оборудование – варочные поверхности, духовые шкафы, микроволновые печи, стиральные и посудомоечные машины, холодильники.

Вторая важная часть кухни – техническая
Благодаря разнообразию решений возможен перенос части шкафов под рабочую поверхность в центре помещения, которая называется «остров». Он не похож на стандартный обеденный стол, хотя может выполнять и его функции.

Современная композиция с «островом»
Для экономии места используют конструкции с антресолями, занимающие стену от пола до потолка. Если необходимо продемонстрировать красивые сервизы, устанавливают стеклянную витрину.
Список источников
- www.meb-expo.ru
- dekoriko.ru
- mebel-expert.info
- Proekt-sam.ru
- ktchn.ru
- KitchenGuide.su
7 лестниц