Пошаговая инструкция
Рассчитать размеры наличников. Для этого нужно измерить высоту оконной рамы и к ее величине прибавить ширину планки. Если на окно не устанавливают отлив, к значению высоты оконной рамы нужно прибавить две ширины планки. В этом случае их крепят по всему оконному периметру;
Заготовить необходимое количество деталей (3 или 4).
Сделать срезы для стыковки на каждой детали под углом 45 градусов. Чтобы срез был ровным и правильным, очень удобно использовать специальный монтажный угол с нанесенной разметкой. На горизонтальных планках надрезы необходимы с двух сторон. На вертикальных – в зависимости от структуры обрамления. Если предполагается монтаж наличников, надрез делают с одной стороны
В обратном случае – с обеих сторон.
Очистить рабочую поверхность крепления от пыли, грязи, воды и остатков монтажной пены.
Измерить проем окна при помощи уровня.
Прикрепить верхнюю планку следующим образом:
Сделать необходимые отметки на стене.
При помощи перфоратора просверлить отверстия, забить в них дюбеля.
Сделать соответствующие отметки на поверхности планки, просверлить отверстия в них.
При помощи саморезов прикрепить наличник к основной поверхности.
Прикрепить таким же способом остальные детали, обращая особое внимание на аккуратное соединение стыков.
Для крепления планок вместо саморезов можно также использовать специальный синтетический клей или «жидкие гвозди». Последовательность монтажа и подготовки к нему такая же.
Пластиковые наличники – прекрасная альтернатива отделочным работам. Они избавят вас от лишних затрат, дополнительно защитят дом от холода и сквозняков, не доставят особых хлопот в уходе. Это возможность приобрести одновременно эксклюзивное, современное и практичное украшение. А простота монтажа и визуальная эстетичность делает это обрамление окон самым популярным, гарантируя уют и красоту вашего дома.
Изготавливаем наличники для окон на деревянный дом самостоятельно – пошаговый процесс
Перед тем, как приступить к созданию наличника, следует выбрать и распечатать эскиз. Подробно об этом мы уже рассказали в разделе
Как правильно создать узоры? Распространение нашли два основных метода:
- Прорезная резьба – предполагает выполнение сквозного орнамента, который по своему внешнему виду напоминает кружево.
- Накладная резьба – ключевое отличие состоит в том, что все элементы, составляющие оконный наличник, выполняются отдельно и размещаются на заранее подготовленную основу.
Для самостоятельного изготовления резных наличников из досок на окна
потребуется:
- лобзик – необходим для кропотливых работ, требующих особой аккуратности;
- ножовка;
- нож, стамеска;
- фрезеровальный станок – используется для придания изделиям мелких граней.
Самостоятельно сделать резные наличники на окна достаточно просто:
- Проведите предварительные замеры окон. Следите за точностью замеров, лучше всего провести их несколько раз. Это позволит избежать временных затрат и порчи материалов.
- Подберите древесину – ее ширина должна гармонировать с габаритами оконных проемов. Если речь идет о выполнении прорезной резьбы, использовать необходимо древесину толщиной не менее 30 мм. Если предпочтение отдано накладной резьбе, исходное полотно должно иметь ширину не менее 10 мм. Ни в коем случае нельзя использовать сырое или чуть влажное дерево при изготовлении наличников. Полотно должно быть полностью сухим.
- Приступайте к вырезке заготовки для будущего наличника из досок с использованием специального трафарета. Трафареты целесообразнее всего закрепить на поверхности доски с использованием клея. Полученная заготовка в обязательном порядке должна быть обработана защитным составом.
- Выполните вырезку деталей и мелких накладных элементов – для проведения работ лучше всего использовать лобзик. Сначала необходимо вырезать на доске внешние, а затем внутренние детали.
- Для обтачивания можно также воспользоваться специальным электроточилом с камнем: можно легко придать нужную форму практически любому элементу. Процедура требует особой аккуратности, поэтому спешить не стоит. Применяйте различные типы пилок для элементов различных размеров – это позволит получить аккуратные детали.
- Ошкурьте полученные мелкие изделия – целесообразно воспользоваться обычной наждачной бумагой. Обязательно обработайте резные детали сильной пропиткой. Для того чтобы убрать характерную белизну дерева после шлифовки, применяют профессиональные растворы на основе хрома, железа и меди.
- При необходимости можно покрыть составляющие наличника лаком – так изделия будут защищены от воздействия солнца, перепадов температур.
Перейдите к непосредственному монтажу соединению всех
элементов. Здесь можно использовать как гвозди без шляпок, так и шипы –
выступающие элементы крепежа. Лучше всего изготавливать их из древесины твердых
пород. Нормальный размер шипа – от 6 до 25 мм.
Монтаж наличника на окно может проводиться двумя способами:
На глухой тип:
- На поверхности оконной рамы и наличников при помощи карандаша отмечаются места расположения шипов – элементов для монтажа.
- При помощи инструментов в соответствии с проведенной разметкой создаются выемки для шипов на оконной раме – пазы. Диаметр пазов должен превышать размер шипов примерно на 2-5 мм.
- Клеящее вещество наносится равномерно на шипы. Шипы с нанесенным клеем аккуратно внедряются в паз – предварительно подготовленную выемку для шипов в раме, после чего на них насаживаются наличники.
Такой метод крепления примечателен тем, что позволяет уберечь изготовленные
наличники от неблагоприятного воздействия влаги, грязи и пыли. Он достаточно
сложен и требует аккуратности, однако позволяет получить наиболее надежное
соединение.
С использованием сквозного шипа – при монтаже места стыков следует покрыть прозрачным или цветным лаком, после чего переходить к установке на клей.

Для облегчения процесса монтажа лучше всего обрамить оконный проем
специальной рейкой. Она позволит устранить возможные неровности стены и
позволит создать надежную основу. Толщина рейки не должна превышать 10-15
миллиметров.
Важно: при монтажных работах следует учитывать направление открывания
окон. Если окна в доме отрываются наружу, установку наличников следует
осуществлять на расстоянии не менее 3 см от створок. . https://www.youtube.com/embed/rpOzFAzuSsc
Варианты наличников для окон
Основное правило при выборе наличников — чтобы их материал соответствовал материалу окна. Если у вас деревянное окно, то и наличник должен быть деревянным, если пластиковое, то пластиковым. Хотя бывают исключения, в виде удачного сочетания наличников и окна, изготовленных из разных материалов.
Деревянные наличники
Деревянные наличники – изготавливаются из планок толщиной не менее 30 сантиметров. Ширина деревянных наличников может быть разной, в зависимости от профильного рисунка и дизайна. Профильный узор простых деревянных наличников делается с помощью фрезерного станка. Достоинства : доступная цена, лёгкий монтаж. Недостатки: бедный дизайн, слабая устойчивость к влаге и перепадам температур, необходимость регулярной покраски или лакировки. Форма выпуска: скругленные или скошенные планки с выпуклым узором, либо гладкие, длиной 1,5-2 метра. Область применения: скрытие монтажных швов на деревянных окнах. Дополнительная защита швов от факторов внешней среды. 
Резные наличники
Резные деревянные наличники, изготавливаются ручным способом или с применением лобзика. Вариантов узора наличников много: от простого орнамента до сакральных символов, защищающих дом от нечистой силы. Самостоятельное изготовление резных наличников — это работа, требующая навыков в столярном деле. Если вы хотите делать наличники своими руками, но не имеете опыта — выбирайте узор без сложных элементов. Достоинства: очень красивый внешний вид, возможность облагородить фасад дома без значительных финансовых вложений. Недостатки: высокая цена, сложность изготовления, хрупкость, необходимость регулярной покраски. Форма выпуска: в зависимости от индивидуального заказа или дизайна, разработанного изготовителем. Область применения: украшение окон и фасада дома, скрытие монтажных швов.
Пластиковые наличники
Пластиковые наличники – это общее название для планок, изготовленных из пластмассы, поливинилхлорида и пенопласта. Наличники из пластика часто входят в комплект устанавливаемого пластикового окна. Из-за специфики производства этого вида наличников, их невозможно изготовить в домашних условиях. Пластиковые наличники могут иметь обычный и резной рисунок. Монтаж планок производится на специальные крепления, жидкие гвозди, клей или двусторонний скотч. Достоинства: устойчивость к влаге, длительная эксплуатация, лёгкий монтаж. Недостатки: хрупкость некоторых изделий, небольшой выбор дизайна при имитации резных наличников. Форма выпуска: гладкие, резные или с профильным рисунком планки, длиной 1,5-2,5 метра. Область применения: скрытие монтажных швов на пластиковых, иногда деревянных окнах. Дополнительная защита монтажных швов от факторов внешней среды. 
Наличники из МДФ
Из-за слабой устойчивости к влаге, наличники из древесноволокнистой плиты средней плотности рекомендуется использовать только для внутренней отделки окна. Планки из МДФ отлично подходят для деревянных окон, особенно если они повторяют цвет и текстуру дерева. Крепление наличников производится на гвозди, шурупы или клей. Достоинства: невысокая цена, хороший внешний вид. Недостатки: плохая устойчивость к влаге, невозможность использования для внешней отделки. Форма выпуска: гладкие, скругленные или с профильным рисунком планки, длиной 1-3 метра. Область применения: внутренняя отделка деревянных или пластиковых окон. 
Алюминиевые наличники
Наличники из алюминия, в основном предназначены для скрытия монтажных швов, при монтаже окон и витражей, изготовленных из этого же материала. По внешнему виду и дизайну, алюминиевые наличники сильно напоминают планки из пластика. Крепление алюминиевых наличников осуществляется на специальный профиль или защёлки. Достоинства: прочность, длительность эксплуатации. Недостатки: плохое сочетание с окнами из других материалов. Форма выпуска: алюминиевые планки с различным видом рисунка кроме резного, длиной 1,5-2,5 метра. Область применения: внешняя и внутренняя отделка окон и витражей из алюминия. 
Трафареты для наличников на окна. Как сделать резные наличники?

Обрамление окон резным декором создает основу всего стиля фасада. Эти элементы придают индивидуальность всему строению, могут менять его геометрию, носить тайный смысл. Изготовить эту красоту несложно собственными руками.
Функция оконных наличников и немного истории
Деревянные окна впервые появились в качестве обрамления окон еще в 15 веке. Сегодня эти элементы практически не имеют смысловой нагрузки, используются для защиты рамы от проникновения мусора и влаги. Раньше такой декор имел особое величие, каждый вид рисунка использовался с глубоким смыслом, означал то или иное.
Люди верили в мистическую защиту этих деревянных конструкций, придерживались мнения, что они способны не пускать зло в дом.
Виды и типы наличников для окон
Элементы резного декора могут быть плоскими и выпуклыми. Вторая разновидность производится с использованием специальных станков, что повышает их стоимость.
По виду монтажных работ, эти структуры могут быть телескопические (оснащенные специальными выступами) и накладные.
Виды этих элементов могут различаться в зависимости от материала, из которого они созданы:
- древесные;
- пластиковые;
- МДФ.
Требования, предъявляемые к материалу наличников
Красивые наличники на окна в деревянном доме нужны не только для достижения эстетических целей, но и для решения чисто практических вопросов.
Для того чтобы конструкция долго стояла и полноценно выполняла возложенные на неё функции, она должна отвечать некоторым требованиям.
- Материал должен хорошо противостоять воздействию влаги, мороза, солнца, ветров и осадков (лучше всего для этого подходят дуб и бук).
- Конструкция должна быть прочной, не должна быть подвержена растрескиванию (по этой причине наружные наличники из МДФ не делают, предпочитая размещать их внутри помещения).
Выяснив требования к материалу, из которого готовят такой декор, следует отметить, что лучшим будет дерево. Гипс, к примеру, быстро впитывает влагу, темнеет, теряет эстетический вид. Это приводит к тому, что архитектурный замысел быстро приходит в негодность.
Полимербетон, стеклофибробетон хорошо противостоят влаге и повышенным, пониженным температурам воздуха. Однако они обладают достаточным весом, что не всегда позволяет применять их на некоторых строениях.
Полиуретан практически не отличается от иных материалов, кроме того, дает дополнительную теплоизоляцию дома, отличается простой монтажных работ.
Как сделать трафареты для наличников на окна?

Чтобы сделать трафареты, требуется не слишком много умений. Достаточно просто найти понравившийся вариант декора, к примеру, в интернете, затем перенести его на плотный картон (обязательно с реальными оконными размерами).
Гораздо важнее, правильно подготовится к созданию этих обрамлений:
- выбрать подходящую древесину (обладающую плотной, крепкой, твердой структурой);
- подобрать необходимый инструментарий (стамески, ножи, лобзик).
Изготовление наличников на окна
Красивые наличники на окна в деревянном доме обязательно нужно готовить с учетом всех пропорций. К примеру, если створка открывается наружу, то наличник не должен стоять ближе к створке, чем на 3 см. Иначе он будет создавать препятствия для открытия рамы.
Начинать изготовление конструкции следует с тщательного обстругивания заготовки. Ей размеры могут находиться в интервале от 3 до 15 см. Ширина декоративного элемента не должна быть шире оконной коробки более чем на 5 см. Чтобы конструкция лучше примыкала к стене, нужно делать зазоры или пазы на расстоянии не больше 15 м от кромки.
Очень важно бережно воздействовать на дерево электрическим инструментом. Если прилагать излишние усилия, велика вероятность нарушения его целостности, растрескивания
Если делать узоры сложно, следует наточить полотно.
Деревянные наличники на окна – русские традиции в современных постройках
С давних времен резные оконные наличники из дерева изготавливались мастерами вручную. В наши дни популярность дерева ничуть не уменьшилась. Усовершенствовался лишь процесс изготовления изделия: резную обналичку создают при помощи станков с вертикальными фрезами. Чаще всего предпочтение отдают производству наличников из дуба, венге, ореха, сосны.
Компания «АнкорокнА» предлагает изготовление наличников для окон из ПВХ и прочих стеклопакетов, устанавливаемых в деревянных домах из бруса и бревна, а также в загородных домах из кирпича, блоков, каркасных домах.
Наличник деревянный для стеклопакета имеет ряд преимуществ:
- это экологически чистая продукция;
- защищает от пыли, влаги, сквозняков;
- это минимальные теплопотери и хорошая шумоизоляция;
- с его помощью декорируют и украшают окна;
- имеет разнообразные формы и размеры, что позволяет подобрать любое стилевое решение;
- деревянные изделия выглядят дорого и презентабельно, подчеркивая статус хозяев дома.
Важный нюанс при выполнении наружных работ
При установке пластиковых окон и выполнении демонтажных работ, монтажники часто не снимают наружные откосы. Однако даже самая аккуратная работа приводит к образованию на старых откосах сколов и трещин.
Зазоры между новым окном и стеной здания просто напросто заполняются монтажной пеной, в результате чего некоторое её количество выступает наружу. После завершения монтажа оконной конструкции, часто устанавливают только внутренние откосы, про внешнюю облицовку же напрочь забывают.

После установки стеклопакетов по торцам проема остается много монтажной пены, которую следует удалить
Казалось бы, такой вариант приемлем для квартир на верхних этажах – издалека всё равно никто не увидит отсутствие внешних откосов и небольшое выступание пены.
Сниженная же защита от внешних воздействий, не только усугубит ваш комфорт, но и приведет к воздействию на сами окна, что значительно сократит срок их службы. В конце концов, основной защитой от холода станут внутренние откосы, играющие больше декоративную роль, и для теплоизоляции вообще не предназначены. Таким образом, в квартире будет влага и холод, а на стеклах постоянный конденсат.

После удаления старой пены и доборных элементов, все щели необходимо по новой запенить
Для исправления данной ситуации следует выполнить следующие действия:
- снять внутренние откосы;
- снять наружные откосы там, где выступает монтажная пена;
- снять поврежденную пену, и заново заделать щели новой;
- удалить с откосов всю краску;
- снять отливы и запенить все найденные трещины и поры;
- все сколы снаружи удобно заделывать плиточным клеем, который продаётся в каждом строительном магазине;
- на последнем этапе, следует наложить шпаклёвку так, чтобы вся монтажная пена была скрыта от глаз и внешних воздействий. Это основной момент отделки наружных откосов пластиковых окон.
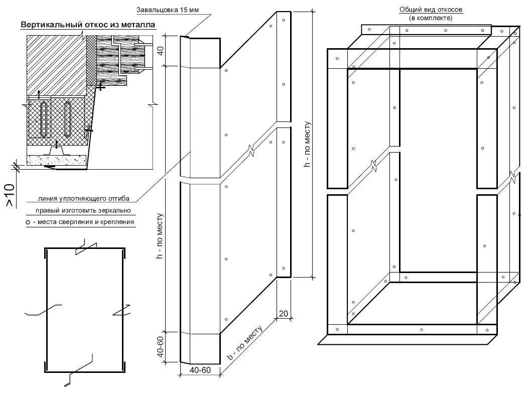
Последовательность работ
Установка металлических откосов на окна предполагает проведение замерочных работ. Ширина и высота изделия будут соответствовать внутренним и внешним параметрам проема. Изготовление верхнего, нижнего и боковых металлических элементов производится путем вырезания их из заготовленного металлического листа в соответствии с полученными измерениями.
Схема подрезки металлического откоса
Схема подрезки нижнего металлического отлива
Схема подрезки верхнего металлического отлива
На втором этапе работ происходит установка отлива, горизонтальное положение которого контролируется строительным уровнем. Нижний стык стены и оконной рамы оснащается специальным теплоизоляционным материалом и диффузионной лентой для шумоподавления и защиты от влаги.
Сначала необходимо установить отлив
Во время крепления отлива монтажную пену наносят на оконный проем и на отлив с внутренней стороны. Чтобы он не загнулся из-за расширения пены, на время его плотно прижимают. После того как отлив закреплен, приступают к монтажу металлических откосов.
Перед тем как устанавливать металлические откосы, необходимо те места, в которых они будут соприкасаться с рамой окна, обработать герметиком.
Металлические откосы закрепляют с помощью монтажной пены
Сначала устанавливают боковые элементы с соблюдением необходимого уклона изнутри наружу. Верхняя и нижняя части корректируются при помощи ножа в зависимости от уровня наклона.
Боковые элементы должны быть установлены в вертикальном положении и притянуты при помощи шурупов. Верхняя часть подгоняется под боковые элементы. Она выравнивается относительно внешних углов и закрепляется саморезами.
На завершающем этапе все места прилегания обрабатываются герметиком.
При монтаже откосов на фасад из профнастила используют горизонтальные перемычки
В случае когда фасад дома обшит профнастилом, при отделке оконных проемов необходимо использование горизонтальных перемычек. Это боковые полочки, изготовленные из профлиста, которые с одной стороны крепят к стене, а с другой – к металлопрофилю. Стальные наличники придают фасаду завершенность.
Материалы для наличников на окна
Выбор материала для изготовления наличников для оконного проема вопрос не простой. Возникает множество факторов, которые необходимо учитывать. Это и оформление стены деревянного дома, климатические условия местности, из чего изготовлено окно и пр. Профессионалы строительного дела рекомендуют для деревянных домов выбрать красивый наличник из того же дерева, ведь эксплуатационные особенности разных видов древесины разнообразны. Но вполне допустимо использование других основ.

Рис. 6. Материалы для наличников на окна.
Древесина
Итак, основными материалами, изготовление наличников из которых будет отвечать технологическим и эстетическим требованиям могут являться:
Древесина.
Она надежная и прочная. Многие мастера не просто советуют, но даже рекомендуют использовать ее. Для лучшего совмещения нужно выбирать дерево, сходное по структуре древесине стен здания. Преимущество его в натуральности, экологичности, простоте обработки и ухода. Главное, такой элемент подойдет любой постройке. К тому же, благодаря своей универсальности, древесине можно придать любой орнамент и рисунок, тут уж вашей фантазии нет предела. Есть и некоторые недостатки. Это относительная недолговечность (в сравнении с пластиком и пр.), подверженность влиянию влажности и перепадам температур.

Рис. 7. Обычный деревянный наличник.
Пластик
Отличная альтернатива древесине. К сожалению, случается так, что дерево со временем может деформироваться, а вот пластиковый наличник такого себе не позволит. Он имеет довольно широкую палитру как цветовую, так и структурную. Кроме этого, пластик более практичен и не уязвим к воздействиям влаги и температуре, именно поэтому срок службы такого материала куда более долгий, чем чистого дерева. Стоит отметить, что с пластиковым наличником в комплекте идут элементы крепежа, что позволяет не портить дерево стены или окна различными гвоздями и шурупами. Об экологичности в этом случае говорить не приходится.

Рис. 8. Пластиковый наличник на окна.
МДФ
Еще один вариант для изготовления наличников на окна в деревянных постройках – это МДФ. В чем его преимущество? Все очень просто! МДФ – это плиты, изготовленные из отходов деревообработки. По сути, это натуральный материал, схожий с деревом, но за счет того, что при изготовлении он пропитывается специальными составами, срок его службы значительно увеличивается. В дополнение, панели МДФ имеют оригинальное цветовое решение и специальное покрытие, защищающее его от пагубного воздействия внешней среды. Единственный минус древесной плиты, это то, что по прочности она проигрывает дереву и пластику. Поэтому, выбор материала – это дело индивидуальное, ведь каждый из них обладает как достоинствами, так и недостатками, которые в процессе выбора играют свою роль.

Рис. 9. Пример наличника из МДФ.
Изготовление наличников своими руками
Сделать наличники самостоятельно можно только из дерева. Для этого вам понадобится специальный инструмент и деревянные планки.
Простые наличники
Для изготовления простых деревянных наличников вам понадобятся:
- Электрический лобзик.
- Рубанок (простой или электрический).
- Шлифовальная машинка.
- Фреза (ручная или станок).
- Мелкозернистая наждачная бумага.
- Деревянные планки сечением 30х100 мм.
Технология изготовления простых наличников:
- Обработайте все стороны деревянных планок рубанком.
- Установите насадку для профильного рисунка на ручной или стационарный станок.
- Обработайте лицевую сторону наличника с помощью фрезы.
- Произведите окончательную шлифовку наличников наждачной бумагой или шлифовальной машинкой.
В случае отсутствия фрезерного станка, можно сделать наличники с гладкой поверхностью. Для этого с помощью рубанка скосите лицевую сторону планки под углом 20-30 градусов и зашлифуйте её наждачной бумагой.
Резные наличники
Если вы собрались делать деревянные наличники с резным узором, учтите, что дело это небыстрое и требующее «железного» терпения. Для создания резных наличников, помимо основных инструментов, вам понадобится набор специальных стамесок с разной формой лезвий и ручной лобзик. Чтобы было легче ориентироваться в большом выборе узоров, ниже приведём несколько шаблонов для вырезания: 

Изготовить резные наличники можно двумя способами – обычным и накладным. В обычном способе, узор вырезается непосредственно на самом наличнике. В накладном способе, узор изготавливается в виде накладок, толщиной не менее 10 миллиметров, поле чего, накладка крепится на основной наличник. Для новичков рекомендуется использовать накладной способ, поскольку в случае неудачно получившегося узора, накладку можно заменить новым элементом.
Правильный выбор породы дерева для резного наличника, очень важен. Легче производить резьбу хвойных пород дерева, потому что они мягкие. Наличники из твёрдых пород лиственницы, прослужат дольше.
Если вы не занимались резьбой по дереву, для первого раза выбирайте очень простой узор и по мере увеличения навыка, переходите на более сложные орнаменты.
Этапы изготовления резного наличника накладным способом:
- Подготовьте основу для наличника, для этого обработайте рубанком планки толщиной 30 миллиметров.
- Изготовьте накладные планки толщиной не менее 10 сантиметров.
- Нарисуйте на толстой бумаге или картоне элементы будущего узора.
- Вырежьте элементы узора ножницами.
- Установите вырезанный трафарет на накладную планку и перенесите на неё рисунок.
- С помощью дрели и лобзика сделайте выемки по разметке.
- Доработайте края выемок стамесками, закруглите края и доведите контуры.
- Произведите шлифование готового элемента накладки.
- Установите накладку на основной наличник, закрепив его с помощью клея или гвоздей.
- Собрав все накладные элементы в одну композицию, приступайте к установке наличников на окно.
Установка наличников
Монтаж пластиковых наличников на окна начинается с установки универсального откоса. Откос монтируется по всему периметру проёма.

Установка стартового молдинга для монтажа облицовки
Если возникла необходимость отпилить часть материала, делать это следует с помощью ножовки или электропилы. Наиболее прочное крепление осуществляется при помощи стартового молдинга.
Теперь можно переходить непосредственно к монтажу наличников. Начинать следует с углов –производится запил элементов под углом 45 градусов, аналогично тому, как это делалось с откосами. Инструмент для резки – мелкозубчатая ножовка или торцевая электропила с максимальной частотой расположения зубьев.

Запил конструкции должен проводиться под углом в 45 градусов
Наибольшая аккуратность стыковки обеспечивается благодаря соблюдению следующих рекомендаций:
- запиливать изделия нужно с лицевой стороны, с горизонтальным их расположением и закреплением граней;
- осуществляя распиливание, на опору электропилы под носиком наличника желательно установить прокладки толщиной около 1 см – так носик и монтажный паз будут находиться в одной плоскости, а значит, работать будет удобнее;
Срез производится для более плотного прилегания различных частей
после запила, часть монтажной полки срезается, чтобы грани облицовки прилегали друг к другу плотнее;
стыки уголков желательно обрабатывать термопистолетом. Для этого, углы сначала склеиваются между собой, а затем устанавливаются на проём с остальными элементами;

Стыки между разными частями должны быть склеены, после чего можно проводить их монтаж на окно
если запилы делаются ручной ножовкой, то желательно изготовить стусло из фанеры 8-12 мм. Его стенки должны выдерживать ширину облицовки и размещаться строго в параллельных друг к другу плоскостях.
После того, как закончили с углами, следует переходить к установке наличников по периметру проёма. «Носик» изделия устанавливается в монтажный паз откоса, другой же конец крепится к стенке или обрешётке.
Дополнительная информация: Отделка пластиковых окон и стеклопакетов.
После монтажа облицовки, остаётся только установить фасадные панели. С одной стороны они вставляются в паз наличника, а со второй крепятся к обрешётке или стене.
Установка
Традиционно установка наличников производится креплением к стене или откосам окна. Сейчас для этого лучше всего использовать саморезы (4,2-6)х(80х150), если стена не деревянная – в пропиленовых дюбелях. Точки крепления располагают по возможности равномерно из расчета 1 точка на 5-7 кв. дм поверхности наличника, очерченной его наружным контуром. При креплении к откосам точки крепления располагают в ряд с шагом 150-300 мм (зависит от массы наличника, которая, в свою очередь, зависит от его художественного исполнения, см. далее) по осевой линии выступающей наружу части несущей (базовой) стены. Лунки с головками крепежа либо прячут в вязи верхних уровней (см. далее), либо зашпаклевывают и закрашивают основным тоном.
Наличники-«телескопы»
В современных домах, снаружи утепленных и обшитых сайдингом/вагонкой, окна часто ставят заподлицо с базовой стеной, иначе окно вообще утонет в стене. В таком случае для крепления наличника не остается ничего, кроме рамы окна. На такой случай придуманы т. наз. телескопические наличники, но вполне надежно они будут держаться только на окнах в усиленных рамах, предназначенных для регионов с суровым климатом; материал рамы – упрочненный ПВХ или модифицированная древесина (см. далее), особого значения не имеет.

Устройство телескопических наличников
Вся «телескопичность» наличников сводится к установке их на подрезаемые по месту доборные элементы, жестко связанные с рамой окна. Надежнее всего наличники на пазовых доборах, слева на рис. Телескопические системы наличников с пазом в раме (напр., справа на рис.) не предназначены для наружной установки: порывом ветра наличник может выломать, сломав заодно и раму.
Если рама окна современная деревянная или ПВХ с пазом под шпонку, телескопические наличники к такому окну можно ставить, не вынимая его. Если же ПВХ окно с стене с недоступной базовой поверхностью не предназначено для установки наличника, то нет другого выхода, как вынуть окно, поставить в проем короб под наличник, прикрепив его к базовой стене, и вновь установить окно. В таком случае короб наличника должен иметь пазы, приходящиеся на места крепления анкеров окна.
Как сделать трафарет для наличника
Трафарет – это приспособление для нанесения одинаковых узоров и символов на нужную поверхность. Прежде чем начинать работу по изготовлению наличников, понадобится достать трафареты и шаблоны.
В готовом виде трафареты и шаблоны могут быть изготовлены на бумаге, картоне или древесном волокне. Их нужно только приложить к поверхности будущего наличника и обвести. Сделать трафарет самостоятельно можно несколькими способами:
- С помощью графического редактора. Вначале выбирается нужный эскиз рисунка для резьбы или несколько понравившихся изображений и обрабатывается любой программой фотошопа. Например, в любом компьютере установлено приложение Paint, с помощью которого можно редактировать изображения.
Здесь можно создать индивидуальный эскиз для резных наличников. Сложность рисунка будет зависеть от уровня мастерства резьбы по дереву.
- Сделать ксерокопию или распечатать орнамент для наличника. Приглянувшийся рисунок увеличивается до нужного размера при копировании или при распечатке. Полученный бумажный трафарет можно переносить на дерево.
- Если нет принтера (и желания его искать), можно поступить следующим образом. Вначале подбирается нужный масштаб узора на компьютере, бумага прикладывается к монитору и просвечивающие контуры узора обводятся маркером или фломастером без сильного нажима на экран. Если рисунок не поместился полностью на экране, его нужно передвинуть и продолжить рисовать трафарет.
-
Вручную – масштабированием по клеткам. С помощью линейного масштабирования рисунок копируется по клеткам. При этом можно изменить пропорцию узора. Чтобы увеличить размер, увеличивается масштаб клеток, и рисунок копируется в больших клетках, чем клетки исходника.
Трафареты и шаблоны – главные помощники в создании резных наличников. В чертеже нужно учесть, какой рисунок будет выбран для различных составляющих наличника.
Резные наличники включают в себя следующие основные детали:
- верхняя планка наличника;
- вертикальные рейки наличника или рама;
- нижняя планка или профилированный подоконный поясок.
Это только основные элементы, резные наличники могут включать ещё множество декоративных деталей: диадема, плечики, вазончики и прочее.
Выбор породы древесины для изготовления
Если вы решили заняться производством наличников, в этом случае обратите внимание на правильный выбор древесины. Специалисты рекомендуют отдавать предпочтение таким материалам как: бук, береза, дуб, орех или же фруктовые деревья
Но все же выбор древесины во многом зависит от способа изготовления изделия, поэтому постарайтесь учитывать все сопутствующие тонкости.
- Изделия из дуба и бука считаются самыми надежными и практичными в использовании. Но стоит отметить, что этот материал очень твердый, поэтому для изготовления узора требуется приложить немало усилий и времени.
- Резные наличники из липы, осины или же ольхи, довольно распространенный вид изделия. Эти породы, относятся к мягкой древесине, поэтому производить их обработку, одно удовольствие. Но помните, что неправильная обработка может обернуться деформацией материала и проникновением в поры большого количеств влаги, из-за чего наличник быстро станет непригодным.
- Лучше всего использовать хвойные породы, поскольку они достаточно прочные и твердые для создания деревянных изделий. Такие материалы, позволят обеспечить долговечность в использовании, а также сохранить привлекательность на протяжении многих лет.
- Лиственница — отличный материал, так как эта порода не подвержена гниению. Но ее главным минусом является хрупкость. Сделать из нее резной наличник не получится.
- Фруктовые деревья подойдут для мелких, резных украшений, которые впоследствии устанавливаются на основные наличники для того, чтобы подчеркнуть особенность конструкции.
Список источников
- otdelkaexp.ru
- klub-masterov.ru
- vopros-remont.ru
- okna-biz.ru
- fasad.guru
- RTP-news.com
- Proekt-sam.ru
- 1prookna.ru
7 лестниц