Принцип действия
Кузнецов предложил новый принцип построения кирпичных печей. Во всех придуманных/сконструированных ранее моделях горячие газы движутся по каналам. Проходя по ним, они нагревают кирпич, сами охлаждаются. Движение возможно только при наличии тяги. При таком принудительном принципе действия прогрев корпуса неравномерный, а приводит это к образованию трещин. Большое количество кирпичей занимает практически все пространство, и теплообменник при необходимости поставить некуда. Только поместить его в топку, где он будет контактировать с пламенем, из-за чего срок службы его очень ограничен. К тому же расположенный в зоне горения теплообменник отнимает значительную часть тепловой энергии, ухудшая условия горения топлива, что снижает КПД печи и повышает количество сажи.

Одна из канальных печей внутри выглядит так
Кузнецов использует другой, принцип движения газов в печи — свободный. Печь состоит из колпаков — перевернутых вверх дном сосудов (с отверстием вверху или без — по-разному в разных моделях). Колпаки могут располагаться друг над другом или один за другим, но обязательно сообщаются между собой при помощи сухого шва — пространства в 2-3 см, незаполненного раствором или теплоизолятором, через который и переходят газы из одного колпака в другой.
Первый колпак и топка объединены в единое пространство. При таком устройстве происходит вот что. Самые горячие газы поднимаются верх. На некоторое время они вверху и остаются, где передают часть тепловой энергии стенам, сами остывают. По мере остывания они опускаются вниз, а на их место поднимаются более горячие. При таком построении движение воздушных масс происходит только за счет естественных физических процессов.

Принцип движения газов в колпаковых печах
Наглядно продемонстрировать процесс можно, если в перевернутый вверх дном стакан запустить струю дыма. Она поднимается вверх, достигает верха, затем остывшая часть дыма вдоль стенок опускается вниз. Приметно те же процессы, только гораздо более сложные, проходя и в печи.
На рисунке красными стрелками показана схема движения горячего воздуха в колпаковых печах. Синими стрелками показано движение холодного воздуха, попавшего в печь. Очевидно, что вверх он подниматься не будет, потому как весит больше, а пройдет понизу и почти не повлияет на общую температуру в колпаке, что продемонстрировано на рисунке справа.
Но одного колпака для эффективного отбора тепла недостаточно, потому большинство печей имеют два или три свода в зависимости от мощности. В них происходят практически те же процессы, что и в первом: более горячие газы находятся вверху, нагревая кладку, холодные проходят понизу и выходят в дымоход. В верхней зоне второго свода и размещается теплообменник или любое другое необходимое для каких-либо целей устройство. Никакого открытого огня, только горячие газы и очень эффективный теплосъем: постоянно протекают воздушные потоки высокой температуры. Причем никакого влияния на процессы горения нагрев теплоносителя, камней или воды в баке не оказывает: от топки они отделены кирпичной стенкой.

Один из вариантов колпаковой печи
Конструкция печей разной конфигурации и назначения разная, но «потребляют» они немного топлива и долго остаются горячими. Об этом говорят отзывы владельцев. Например, в доме из бруса сложена такая печь. При -25оС топят утром и вечером по 5 полешек (всего в сутки получается порядка 18 кг дров). В домике +25оС и утром не холодно. При температуре «за бортом» до -10оС топят один раз. Так что насчет эффективности вопросов нет. Если и есть вопросы, то по поводы выбора исполнителя. Ведь параметры ее работы зависят от того, насколько правильно и грамотно сложена печь. И быстро ее не сделаешь: средних размеров и без наворотов — это 2-3 недели работы. Вообще с отзывами о печах Кузнецова все просто: люди довольны. Удовольствие, конечно недешевое, но однозначно оно того стоит. Это утверждают все владельцы таких печей. Никаких сложностей в эксплуатации, экономичны и не капризны, очень долго отдают тепло, а греются быстро.
Чертежи печи Кузнецова своими руками

Принцип работы печи одинаковый, но существует множество различных моделей, делящихся по целенаправленности использования:
- отопительные;
- отопительно-варочные;
- русские теплые;
- банные;
- для мытья;
- с встроенным камином.
Чертежи печи Кузнецова для бани

Чертежи печи Кузнецова с камином

Печь Кузнецова своими руками
Будем рассматривать строительство на примере отопительной печи, поскольку это самый распространенный вариант.
Если вы будете соблюдать все указанные ниже правила и материалы, вы сможете с легкостью построить печь Кузнецова своими руками.
Материалы для печи Кузнецова своими руками

Нам понадобится:
- кирпичи (для внутренней кирпичной кладки, подойдет огнеупорный шамотный около 70 штук, сосчитать количество необходимого кирпича можно используя чертеж или строительный калькулятор);
- кирпичи (для наружной кладки обычный глиняный М-150 около 760 штук);
- 100-150 кг. глины;
- 200-300 кг очищенного песка (можно глину и песок, заменить на готовый глиняно-песчаный раствор, на 500 кирпичей необходимо 0,2 метра кубических);
- фурнитура из металла (задвижка, колосник, проволока, топочная и поддувальная дверки, 2 стальных уголка).
Фундамент для печи Кузнецова

Для данной печи может потребоваться фундамент, поскольку она имеет большой вес.
Если вы выполняете кладку около стены, расположите фундамент не ближе, чем на 5 сантиметров к ее основанию. Чтобы избавиться от зазоров используйте для промежутков песок.
Учтите степень промерзания почвы и сделайте глубину котлована не менее, чем 1 метр.
Не забудьте про песчаную подушку и гидроизоляционный пояс из битумной мастики и рубероида.
Обязательно армируйте бетонный блок фундамента для печи Кузнецова своими руками с помощью металлического каркаса, который легко сварить из арматурных прутьев.
Кладка печи Кузнецова

Распечатайте необходимый вам чертеж и приступайте к выкладке. Это довольно просто.
Сделайте канал между первым и вторым ярусом в ¼ кирпича, так, чтобы топка была длиннее.
Начинайте создание перекрытия колпака с 17-18 ряда.
Дойдя до 21 ряда, сделайте несколько небольших проходов на внутренних стенках сбоку. Так разжигать печь будет удобнее.
Располагайте огнеупорочный слой в висящем состоянии, чтобы при нагревании не деформировать стены.
Внутренняя кладка шамотного кирпича обязательно устанавливается ребром – этого может не быть в чертежах. Внешнюю можно делать по своему желанию.
Проволока вам понадобится для усиления связки, поэтому каждые несколько рядов кладки прокладывайте проволокой для надежности и долговечности печи Кузнецова, построенной своими руками.
Стоит учесть расширение кирпичей при высоких температурах. Для этого между стенами и металлическими элементами проведите обработку огнеупорными смесями.
Также обработка огнеупорной смесью нужно после постройки печи и застывания раствора.
Начинайте тестировать печь Кузнецова своими руками с минимальной температуры, постепенно повышая ее.
Надеюсь отопление своими руками поможет вам сберечь здоровье и тепло в вашем доме.
Занимательная терминология
Теперь о «катализаторах» и прочих чудесных вещах, якобы придуманных Кузнецовым. Вы знакомы с посудой Цептер? Ее менеджеры тоже красиво рассказывают о неких «терморегуляторах», которые на деле оказываются биметаллическими термометрами. Вранье вроде небольшое, но зато позволяет накрутить цену. Так и с данными конструкциями. Отзывы о печах Кузнецова далеко не самые восторженные: http://kataevov.livejournal.com/15993.html
И да, катализатором все же называется нечто отличное от мифической конструкции из шамота, потому что шамот – огнеупор по определению.
Теперь о чуде сухого шва. Я очень рад, что И. В. Кузнецов сделал столь великое открытие. Но только лично я встречал сухой шов в дореволюционных печах в усадьбах Шаховского и Храповицкого во Владимирской области, а их построили до 1917 года. Или вот две книги 1908 https://yadi.sk/i/K05rK2gLiwnWM и 1943 https://yadi.sk/d/N5V0ZiuOiwnWH . Просто посмотрите картинки. Некоторые вещи удивительно напоминают современные элементы конструкций Великого Печного.
Основные принципы нового способа сжигания топлива
Горение в чистом виде представляет собой химическую реакцию, в результате которой из простых веществ – водорода и углерода – при взаимодействии с кислородом образуются другие вещества. Процесс осуществляется с выделением тепла. Если окислителем в реакции горения выступает воздух, то в топке образуются балластные газы. Это – азот, избыточный воздух, не участвовавший в горении, водяные пары, появившиеся при выпаривании воды из топлива. Такие газы участия в горении не принимают, а, наоборот, отбирают на себя полезное тепло. В печах традиционной конструкции, работающих по принципу принудительного движения газов (ПДГ), все газы, в том числе, балластные, смешиваются в один поток. В результате этого температура топочного пространства снижается, условия сгорания топлива ухудшаются.
И.В.Кузнецов предложил свой механизм снижения влияния балластных газов на сжигание топлива и улучшение использования выделившегося тепла. Основной идеей, на которой базируются печи Кузнецова, является выведение балластных газов из зоны сжигания топлива, с использованием естественных физических явлений. Под влиянием собственной силы тяжести холодные газы опускаются вниз, а горячие – более лёгкие – поднимаются вверх.
Организовать такое естественное движение газов в топочном пространстве возможно только в теплогенераторе, сооружённом по особой схеме. Весь цикл газообмена происходит в колпаке печи, который может изготавливаться самой различной формы.

Особенности конструкции и принцип работы
Печи Кузнецова более эффективны для отопления, чем обычные канальные модели
В канальной печи горячий воздух движется по направлению от топки в сторону дымохода. При этом нагреваются стенки конструкции, от которых тепло излучается в помещения. В таких нагревательных дровяных конструкциях продукты сгорания удаляются естественным образом. Чем лучше тяга, тем быстрее горячий воздух отводится на улицу. КПД устройства достигает не более 60%. До 40% тепла «отапливает» окружающее пространство.
Канальные модели громоздки, прогрев неравномерен — на начальном участке (пока воздух горячий) стенки прогреваются сильнее, в конце дымохода меньше. Разность температур часто приводит к появлению трещин в структуре стен.
В кузнецовских печках используется иной способ удаления горячих продуктов сгорания. На его пути устраивают один ли несколько колпаков, в которых происходит воздухообмен.
Сообщаются камеры через узкие щели, называемые «сухими швами».
Нижний колпак объединён с топкой. Под «куполом» за счёт законов физики скапливается горячий воздух, который прогревает стенки печи, сам при этом охлаждается. По мере горения топлива в колпак поступает новая порция тепла, вытесняя остывшие массы вниз. Охлаждённый воздух перетекает во второй купол, где процесс повторяется.
колпаковые печи .
| Колпаковые печи Кузнецова |
|
|
|
||||||||||
| Отзыв о колпаковой печи, Ольховка.mp4 |
|
|
|
||||||||||
| Проект колпаковой печи Печи Кузнецова |
|
|
|
||||||||||
| Колпаковые печи Игоря Кузнецова |
|
|
|
||||||||||
| Проект колпаковой печи 2. Ссылка на скачивание в описании. |
|
|
|
||||||||||
| Колпаковая печь. |
|
|
|
||||||||||
| Часть 1!!!Эксплуатация КОЛПАКОВОЙ ПЕЧИ в доме 115 кв.м!! Горение медленное около 5 часов!! |
|
|
|
||||||||||
| Древне-арийская печь |
|
|
|
||||||||||
| Оригинальная печь 3. ПОРЯДОВКА |
|
|
|
||||||||||
| Сухой шов в печи Кузнецова |
|
|
|
||||||||||
| Колпаковые печи Кузнецова |
|
|
|
||||||||||
| Двухколпаковая отопительно варочная печь |
|
|
|
||||||||||
| РУССКАЯ ПЕЧЬ ОТОПЛЕНИЕ ДОМА ПЕЧЬ КУЗНЕЦОВА |
|
|
|
||||||||||
| Двухколпаковая печь Кузнецова |
|
|
|
||||||||||
| Как сложить колпаковую отопительно варочную печь с своими руками. |
|
|
|
||||||||||
| РУССКАЯ ПЕЧЬ КУЗНЕЦОВА ЗАПУСКАЕМ, РАСТАПЛИВАЕМ |
|
|
|
||||||||||
| Схемы движения газов в печи |
|
|
|
||||||||||
| Схемы печей. Какую печь выбрать для дома. |
|
|
|
||||||||||
| Преимущества колпаковой печи перед традиционной |
|
|
|
||||||||||
| Ставим простую, эффективную колпаковую печь. |
|
|
|
||||||||||
| ПЕЧЬ КИРПИЧНАЯ КОЛПАКОВАЯ часть 1 (1-15ряд) |
|
|
|
||||||||||
| печи Кузнецова |
|
|
|
||||||||||
| Колпаковая печь (6 часть) 3 х3,5 кирпича (дымоход) 100% готова! |
|
|
|
||||||||||
| ДВУХ КОЛПАКОВАЯ ПЕЧЬ “ПЬЯНЫЙ ГУСЬ” (в духовке) |
|
|
|
||||||||||
| Что такое колпак печи |
|
|
|
||||||||||
| Колпаковая буржуйка быстро и просто |
|
|
|
||||||||||
| ДОМ на Колпаковой ПЕЧИ!!9м на 9м!!8 м.куб.дров на сезон!!! |
|
|
|
||||||||||
| Работа колпаковой печи.” rel=”spf-prefetch |
|
|
|
||||||||||
| Проект печи с хлебной камерой.” rel=”spf-prefetch |
|
|
|
||||||||||
| Колпаковая печь #1″ rel=”spf-prefetch |
|
|
|
||||||||||
| Колпаковая печь #1″ rel=”spf-prefetch |
|
Нажми для просмотра |
|
||||||||||
| Колпаковая печь #1″ rel=”spf-prefetch |
|
Нажми для просмотра |
|
||||||||||
| Колпаковая печь #1″ rel=”spf-prefetch |
Строительство своими руками
Браться за строительство своими силами уместно только человеку с навыками каменщика. В печном строительстве есть много тонкостей, которые становятся понятны только после многих лет работы. Основные моменты стоит узнать, чтобы проконтролировать работу нанятых мастеров и самостоятельно выбрать материалы.
Выбор модели
Для строительства можно выбрать модель с теплой лежанкой
Строительство начинается с выбора модели. Ещё на этапе изготовления проекта определяют:
- назначение;
- необходимую мощность теплоотдачи;
- конфигурацию;
- материалы для кладки и их количество.
В сводной таблице на сайте указаны: геометрические размеры и теплоотдача каждой из сторон. После перехода в раздел «чертежи бесплатно» по порядовке с точностью до кирпича вычисляют количество материалов. За чертежи некоторых печей придётся заплатить небольшую сумму — для покупки потребуется регистрация на сайте.
Материалы и принадлежности
Все расходные материалы подбирают и покупают заранее, так как после начала строительства можно быстро не найти, например, дверцы или задвижки необходимого размера.
Для выкладки камеры сгорания печи потребуется жаропрочный кирпич
Для кузнецовской печи потребуются:
- три вида кирпичей — полнотелый красный с маркой не ниже М-150, шамотный жаропрочный, лучше ШБ-8 и отделочный для наружного слоя кладки;
- песчано-цементная смесь для печей;
- литые изделия согласно чертежу — дверцы для топочной и зольной камеры, колосник, задвижки и вьюшки, дверцы для очистных каналов;
- проволока для перевязки рядов из расчёта укладки по периметру каждых двух рядов;
- уголки перекрытия для топки;
- сетка арматурная для заливки фундамента;
- асбестовый шнур для термоизоляции чугунной фасонины.
Для работы понадобятся мастерок или кельма, ёмкости для замешивания растворов, уровень, расшивка, рулетка и отвес.
На первом этапе строительства обустраивают фундамент, длина и ширина которого соответствует размерам печи. Для этого делают углубление в грунте, насыпают и утрамбовывают 10–15 см песка. Подготовленную опалубку заливают тяжёлым бетоном.
Верхний край залитого фундамента делают на 13–15 см ниже уровня пола, потом углубление закладывают двумя слоями огнеупорного кирпича. Они нужны, чтобы тепло не уходило сквозь пол в грунт.
Время набора фундаментом полной прочности 28 суток, но начинать кладку можно через 17–20 дней, если строительство не планируют завершить очень быстро.
На следующих этапах возводят «тело» печи, строго выполняя инструкции, соблюдая порядовку и выверяя горизонтальный и вертикальный уровни.
Проход дымохода сквозь перекрытия обеспечивают теплоизоляцией, исключающей нагрев строительных материалов.
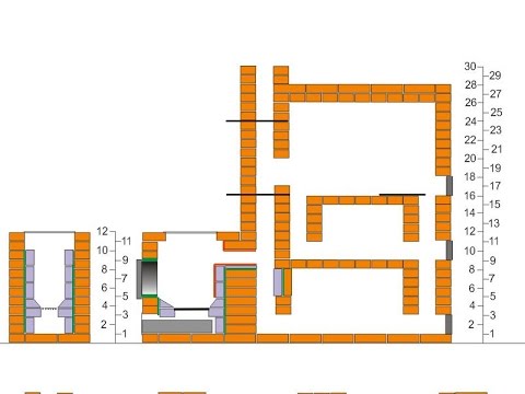
Конструкция и принцип действия
Выражение «Всё гениальное — просто!» в полной мере касается конструкции купольной печи, которая позволяет реализовать достоинства свободного движения газов. Простейший двухколпаковый агрегат, представленный на рисунке слева, работает следующим образом. Воздух, необходимый для горения дров, поступает через поддувало 1. Топку 2 выполняют в виде сужающегося сопла, благодаря чему удаётся не пропускать наружный воздух сверх меры. В противном случае он будет сразу же уходить во второй колпак, увлекая за собой разогретые газы. Препятствует поступлению тяжёлого холодного воздуха и так называемая газовая вьюшка, которая образуется под куполом. К слову, из-за простой конструкции установившаяся внутри печи атмосфера часто бывает неустойчивой — её срывает тяга со стороны внешнего колпака. Именно поэтому двухколпаковые печи, известные задолго до рождения Кузнецова, не имели популярности.
Принцип действия двухколпаковой печи
Во время активного горения дров не успевшие окислиться кислородом воздуха горючие газы поднимаются под купол 4 внутреннего колпака 3. Там они воспламеняются под действием открытого пламени и высокой температуры. Можно сказать, что под колпаком возникает зона, подобная той, которая образуется в камере дожигания обычной пиролизной печи
Немаловажно и то, что процесс пиролитического горения сам себя регулирует — при очень интенсивном пламени затрудняется отток продуктов сгорания, а соответственно, уменьшается и тяга. Если же пиролизные газы выгорают, то процесс восстанавливается
В это же время не менее важные процессы происходят и под сводом второго колпака. В этой зоне вступают в реакцию оксиды азота и монооксиды углерода (угарный газ), которые в результате реакций распадаются на безопасные компоненты. При правильной работе купольного агрегата в дымоход уходит преимущественно водяной пар и углекислый газ.
Идеальным вариантом двухколпаковой печи был бы агрегат круглой формы. В этом случае тело отопительного прибора могло бы выполнять функции верхнего купола. К сожалению, на практике соорудить такой теплогенератор сложно не столько из-за сферической формы, сколько по причине трудностей с обустройством прочисток и люков для их обслуживания. Из-за этого колпаки соединяют между собой широким каналом, который проходит в задней части печи. Эта особенность отражена на схеме, расположенной справа.
Ещё больше повысить КПД печей этого типа позволяет установка нескольких каскадов, каждый из которых состоит из двух колпаков, однако ввиду сложности монтажа и повышенных требований к термостойкости футеровки подобные конструкции популярностью среди печников-любителей не пользуются.
Принципиальная схема простейшей печи Кузнецова
Описанные выше принципы естественного движения горячих газов полностью выдержаны в печах, разработанных И.В. Кузнецовым. На приведённой выше схеме одного из таких агрегатов цифрами обозначены: 1 — топочная камера; 2 — так называемый сухой шов; 3 — внутренний купол;
4 — теплообменник; 5 — верхний купол; 6 — дымоход. Как видите, топка и нижний колпак объединяются в одно пространство, разделённое узким каналом, который называют «сухим швом». Это позволило создать во внутреннем куполе и зоне сжигания условия, наиболее подходящие для свободного движения горячего газа к своду колпака, а охлаждённого — в сторону топки.
Особенности кладки: подготовка материалов
Печь колпаковая, которая описывается в статье, создается из полнотелого глиняного кирпича, который кладется в основу дымохода и корпуса. Следует выбирать изделия марки М-150 и выше, тогда как размер кирпича должен составить 250 x 120 x 65 мм. Для того чтобы определить количество кирпича для укладки такой печи, необходимо умножить количество рядов на 0,8. Этого объема будет достаточно для кладки корпуса, учитывая отбраковку и бой.
Для расчёта материала, который лежит в основе дымохода, необходимо действовать по другой схеме. Для начала определяется число кирпичей на один ряд, это число умножается на количество рядов. Для каждой конструкции это значение будет зависеть от высоты здания и габаритов печи. К полученному значению следует добавить 10% на бой, так удастся получить искомое число.

Необходимые материалы и инструменты
Отопительно-варочная печь Кузнецова предусматривает наличие следующих материалов, чтобы полностью обеспечить проект:

- кирпич для печи (красный, огнеупорный);
- колосниковая решетка;
- дверца для печной, варочной топки и поддувала;
- панель для варки;
- «летняя», топочная и задвижка для дымоходной трубы;
- металлический уголок и полоска;
- лист металла, керамическая плита или любой другой имеющийся материал с огнеупорными свойствами.
На одних материалах двухколпаковая печь не построится, поэтому стоит заблаговременно позаботиться о наличии строительного инвентаря. Список необходимого оборудования может меняться в зависимости от желаемой постройки и дополнительных требований заказчика. В работе также не обойтись без следующих инструментов:
- кельма;
- шпатели;
- миксерная насадка для раствора;
- строительный уровень;
- болгарка;
- перфоратор;
- отвес;
- посуда для замеса раствора.
Подготовка к работе
До того как соорудить печи Кузнецова своими руками, внимательно изучается схема постройки, уточняются все спорные моменты кладки. На начальном этапе необходимо заложить мощный фундамент, чтобы конструкция выстояла перед всеми внешними факторами в будущем. Важные советы на подготовительной части работы:

- Очаг и колпак совмещаются сухим швом, чтобы потоки воздуха правильно циркулировали в процессе топки печи.
- Камин не должен содержать над камерой топки катализатор, выполненный из огнеупорного кирпича в виде решетки.
- Топочная часть и колпак не объединяются по причине того, что процесс сгорания дров должен осуществляться в определенном объеме для создания максимальных показателей температуры.
- Если помещение имеет деревянные стены, конструкция печи заблаговременно ограждается специальными металлическими пластинами.
Чертежи и схемы
Купольные кузнецовские печи не так просты в изготовлении, как кажется вначале. Если порядовка закладки нарушается, раствор приготовится не той консистенции и состава, который требуется, конечный итог выйдет неутешительным. Перед установкой правильно подбирается схема постройки, подробно изучаются чертежи и только потом ведется работа.
Как сделать основание постройки?
Дровяная кирпичная печь строится с закладки фундамента, который будет основой будущей конструкции. Инструкция по работе:

- Выкапывается яма прямоугольной формы глубиной около 1 метра.
- Днище посыпается песком толщиной в 15 см и утрамбовывается на протяжении нескольких дней.
- Формируется опалубка из древесных досок.
- К работе подключают прут из металла для армирования бетонного слоя.
- Не спеша заливается бетон, в процессе удаляются лишние пузырьки воздуха. Кирпичное основание должно быть в форме гладкой ровной плитки.
- Фундамент сохнет на протяжении нескольких недель, после чего начинается кладка.
Основная работа
Порядовка кузнецовки осуществляется следующим образом:
- Выкладывается слой из 20 кирпичей максимально ровно, так как это основа всей конструкции.
- Создается основа камеры поддувала и нижнего колпака.
- Закладывается кирпичный слой по стандартному принципу.
- Выкладываются стенки частично из шамотного кирпича, создаются боковые стенки топочного участка.
- Порядовка подразумевает создание топливной камеры.
- Происходит процесс установки дверцы для камеры сгорания.
- Следующий ряд подразумевает стандартный принцип укладки.
- Выкладка огнеупорным и красным кирпичом согласно схеме.
- На этом уровне формируется очаг и проход для сгорания конечных продуктов, накладывается асбестовая полоска.
- Этап включает создание выемок для плиты и продолжается закладка по принципу предыдущих рядов, прокладывается асбестовая бечевка.
https://youtube.com/watch?v=vXFx1VcDXKQ
Всего в процессе присутствует более 30 этапов, каждый из которых требует повышенной внимательности к деталям. Все действия осуществляются согласно схемам плана, утвержденным до начала проведения работ. Проекты завершаются формированием дымохода, в особых случаях приходится обращаться за дополнительными услугами кровельщиков.
Виды печей Кузнецова
Как говорилось выше, колпаки можно располагать по-разному, потому и вариантов очень много. Возможность установки во втором куполе любого устройства теплообмена без ущерба процессу горения также способствует наличию множества разных тепловых агрегатов. При этом проектироваться по такому принципу могут устройства с любым типом горения: верхним, нижним, пиролизным, послойным и т.д. Все они имеют некоторую специфику, но могут быть реализованы. На сайте Кузнецова выложены проекты разного назначения с порядовкой. Их можно скачивать для личного пользования свободно, а вот републикация их не приветствуется.

Камины, построенные по принципу колпаковых печей
Есть печи Кузнецова для двухэтажных домов, и обогревают они оба уровня. Причем есть такие агрегаты и с лежанками. Обогрев может быть конвекционного типа (только от стенок печки) или внутрь может быть вставлен водогрейный теплообменник. Тогда такой агрегат называют котлом и обозначают КИК. В свободном доступе на официальном сайте Кузнецова выложены четыре готовых водогрейных кирпичных котла мощностью 16 кВТ, 17 кВт, 34 кВт, 64 кВт. В них может быть встроен бак для нагрева воды для бытовых нужд. Котел нужно обвязать металлическими уголками, при необходимости можно утеплить, сверху уложить армирующую сетку и оштукатурить.

Отопительная печь. Красиво
Вариантов конвекционных печей гораздо больше. В разделе отопительно-варочных печей без использования шамотного кирпича ОВИК насчитывается 25 разных проектов. Есть три варианта отопительно-варочной печи с камином. Располагаться камин может сбоку (справа или слева). Такие варианты маркируются ОВИК БК (боковой камин), есть вариант с лежанкой и камином ОВИК БК 13л. При камине расположенном сзади маркировка ОВИК ЗК (задний камин).

Отопительно-варочная печь Кузнецова выглядит очень достойно
Чисто отопительные тепловые агрегаты маркируются ИОК. Порядовки, в которых есть лежанка, в названии имеют буквы «леж» или «Л», при наличии духовки добавляется буква «Д». В отопительных печах также есть варианты с каминами. Маркируются они ОИК К. Есть печи калориферные ПКИК1Х. Отдельно категорией выделены печи для теплиц и хлебные.

Отопительная печь Кузнецова ОИК. Впечатляет
Русские печи Кузнецова маркируются РТИК, всего выложены порядовки 10 моделей, две из которых с лежанками. Они имеют привычную конфигурацию варочной камеры, устье которой должно иметь герметичную заслонку. При не герметичности камеры нормально печь работать не будет.

Русская колпаковая печь с лежанкой
В разделе печей для бани Кузнецов предлагает сразу вариант планировки помещений с указанием габаритов и показано как можно «вписать» туда подходящие модели. Ведь помещения бань, как правило, небольшие и если металлическую печь разместить в ней можно легко, то габаритную кирпичную уже проблематично. И учитывать при этом нужно многие факторы: откуда топиться будет, где выход пара и самая горячая часть печи. А тут предложены готовые варианты. Очень удобно и стоит сказать автору большое спасибо! Сами печи вынесены в отдельную категорию и маркируются БИК.

Банные печи Кузнецова маркируются БИК. Презентабельно выглядят и по отзывам имеют отличные характеристики
В этом видео предлагается проект печи, сконструированной по предложенному Кузнецовым принципу построения печей. В первой половине рассказывается о движении газов и о том, как это работает, о принципах управления работой конкретной модели. Во втором комментируется процесс кладки. Очень полезное и познавательное видео.
Основа основ
Большинство преимуществ печей Кузнецова дает принцип свободного прохода газов. Поясним опять на примере.
Представим себе печь со сложной системой дымовых ходов: утермарковку, четырех-пяти оборотную голландку. В этом тесном лабиринте неизбежно будут возникать сильные завихрения. Слыхали, как печь гудит? Это лишь незначительное проявление бушующей в ней вихревой энергии. А взяться ей неоткуда, кроме как из закладки топлива. Если каналы достаточно длинные и узкие, то на первый взгляд ничего тут страшного нет: вихри, пока доберутся до трубы, рассеются, остывая, и все равно отдадут свою энергию телу печи, а оно – в помещение. Но на деле проявляются нюансы, о которых будет сказано далее в тексте. Из-за них КПД канальной печи свыше 60% – исключительная редкость.
В канальной печи, пока она топится, мечется огромный поток энергии, и на отопление или подогрев воды можно, не нарушая ее работы, взять лишь небольшую ее часть. Такая печь в чем-то похожа на ядерный реактор. Не пугайтесь, только по синергетике, т.е. по путям циркуляции энергии в ней. В ядерный реактор приходится закладывать топлива в десятки раз больше, чем необходимо для обеспечения проектного энерговыхода. Иначе нейтроны просто вылетят наружу, не успев встретить готовые их принять атомы урана. В канальной печи – горячие вихри, не успев остыть, вылетят в трубу или, наоборот, остынут сразу, дав дым и сажу.
А вот кузнецовки (о подробностях ниже) по синергетике уже ближе к термоядерным реакторам будущего. «Термояд» звучит страшновато, но это только по ассоциации с водородной бомбой. На самом деле теромядерные реакторы вполне безопасны.
Почему? Потому, что в них вырабатывается энергии ровно столько, сколько должно уйти потребителю, а технологический запас по мощности для разреженной плазмы нужен мизерный. Если вдруг камера токамака или стелларатора внезапно полностью разрушится, плазма полностью высветится (тяжелых-то атомов в ней нет) и остынет, прежде чем дойдет до стен помещения. Ремонтники выругаются – то ли дело в дежурке лясы точить – но уже через 5 мин. смогут притупить к ликвидации без защитных средств.
Так что же общего у печей Кузнецова с термоядерными реакторами? То, что энергия дымовых газов благодаря принципу свободного прохода не прокручивается много раз в потоке, пока не протолкнется в тело печи, а пропитывает его сразу же. И деться ей оттуда теперь некуда, кроме как в помещение и/или водогрейный регистр.
Список источников
- clubpechnikov.ru
- www.comfortclub.ru
- teplowood.ru
- teploguru.ru
- StrojDvor.ru
- www.syl.ru
- EtoKirpichi.ru
- funer.ru
- kotel-otoplenija.ru
- dom-dacha-svoimi-rukami.ru
7 лестниц
Нажми для просмотра
Нажми для просмотра
Нажми для просмотра
Нажми для просмотра
Нажми для просмотра
Нажми для просмотра
Нажми для просмотра
Нажми для просмотра
Нажми для просмотра
Нажми для просмотра
Нажми для просмотра
Нажми для просмотра
Нажми для просмотра
Нажми для просмотра
Нажми для просмотра
Нажми для просмотра
Нажми для просмотра
Нажми для просмотра
Нажми для просмотра
Нажми для просмотра
Нажми для просмотра
Нажми для просмотра
Нажми для просмотра
Нажми для просмотра
Нажми для просмотра
Нажми для просмотра
Нажми для просмотра
Нажми для просмотра
Нажми для просмотра
Нажми для просмотра