Этапы проектирования и содержание проекта МКД
Проект на строительство МКД состоит из обязательных и дополнительных разделов. Содержание документа и каждого раздела определены Постановлением № 87, а разработка должна соответствовать ГОСТ Р 21.1101-2013.
Изучение технического задания и документов на участок
Перед проектированием нужно изучить требования заказчика к результату работы. Они указываются в техническом задании и договоре с проектной организацией. Также изучаются основные документы градостроительного планирования и зонирования, ГПЗУ, договор аренды, иные бланки и формы. По представленным документам определяются сроки и порядок проведения инженерных изысканий, иные обследований.
Инженерные изыскания
Согласно ГрК РФ, инженерные изыскания являются обязательно стадией проектирования МКД. В ходе изысканий проводятся следующие мероприятия:
- подготовка геологической основы для будущего строительства, т.е. изучение состава и качества грунта и почвы, мест расположения подземных и наземных инженерных и транспортных коммуникаций;
- анализ климатических условий по месту строительства;
- оценка состояния рельефа и ландшафта, определение пятна застройки, мест размещения и передвижения техники, хранения материалов;
- определение места размещения ограждающих конструкций (с учетом предписаний муниципальных органов).
Также на этой стадии изучаются ограничения параметров строительства по площади, этажности, месту размещения защитных и санитарных зон. Все результаты инженерных изысканий оформляются в виде документов, будут указаны в содержании проекта.

Современное ПО позволяет создать визуализацию будущего объекта уже на стадии проектирования
Подготовка и обоснование архитектурных, планировочных и иных решений
Облик и планировка будущего здания зависит от решений, которые выберут архитекторы и проектировщики. На выбор решений влияет градостроительная документация населенного пункта, этажность и площадь будущего дома, наличие городской и социальной инфраструктуры, иные факторы. Все архитектурные, объемно-планировочные и иные решения должны быть обоснованы в соответствующих разделах проекта.
Проектирование инженерных систем
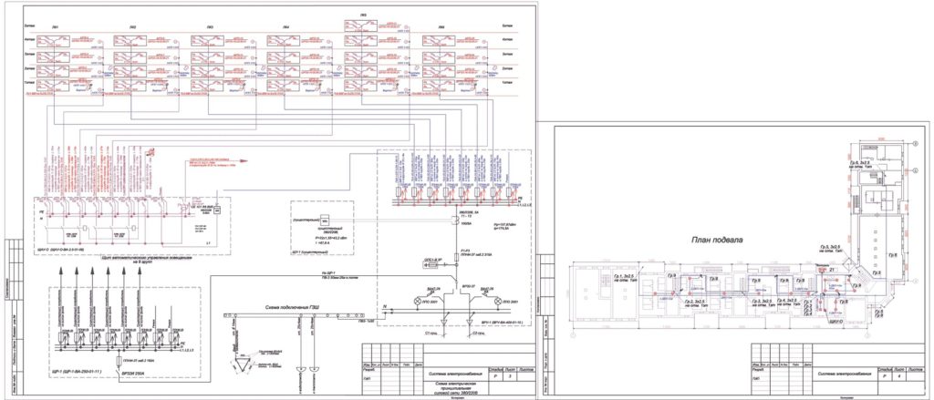
Для каждого МКД разрабатываются инженерные системы – водоснабжение и водоотведение, энергоснабжение, газоснабжение, вентиляция и т.д. Инженерные коммуникации должны соответствовать архитектуре и планировке здания, охватывать все жилые и вспомогательные помещения. Допустимые показатели подключения и лимиты потребления указываются в технических условиях ресурсоснабжающих организаций, поэтому проектировщик должен учесть их в работе.

В проекте МКД есть разделы на все инженерные системы, графические схемы для размещения сетей
Разработка мероприятий по защите и безопасности
Обязательным требованием для проектирования МКД является разработка раздела с мерами пожарной и иной безопасности. Сюда входят пути эвакуации и запасные лестницы, системы пожарной сигнализации и пожаротушения. Также меры безопасности должны быть разработаны для подрядчика, который будет вести строительные работы.
Оформление проектной документации
Выше перечислен далеко не полный перечень этапов проектирования. Например, в итоговых документах должны указываться требования к строительным материалам и конструкциям, местам размещения ограждений, планы организации строительства. Все разделы проекта содержат текстовое описание и графические материалы. В текстовом блоке указываются решения и их обоснование, пояснения и рекомендации к строительству. В графическую часть входят схемы, чертежи, таблицы, иные документы и объекты.
В процессе проектирования могут применяться различные методы визуализации, в том числе для уточнения отдельных деталей будущего объекта с заказчиком. После заполнения всех разделов проекта по Постановлению № 87, его должен утвердить заказчик. Далее документация направляется на экспертизу, для получения разрешения на строительство.

В содержании проектной документации будут поэтажные планы с отображением всех помещений
Нужно ли платить за проект
Выше уже говорилось, что стоимость проекта электропитания многоквартирного дома довольно высока. И многие заказчики строительства всерьез задумываются: нужно ли вообще тратить лишние деньги, заказывая проектирование? Ведь на сегодняшний день в интернете существуют десятки сайтов, где можно скачать подходящие проекты для самых разных домов: от 4-х квартирных зданий до огромных небоскребов на сотни кабинетов и офисов. Использование готового проекта позволило бы сэкономить десятки дней работы и десятки (а может и сотни!) тысяч рублей.
И всё же, это недопустимо. Подходить к строительству и электрификации дома следует максимально серьезно, и экономить здесь просто нельзя. Ведь дома могут отличаться не только высотой и количеством квартир или офисов.
Пример электрификации офиса
Также необходимо учесть, какие плиты будут там использоваться – электрические или газовые. Уже это значительно влияет на мощность потребления электричества.
Кроме того, на объемы энергопотребления влияет географическое положение, качество отопления и утепления зданий. Специалисты обязательно учтут, используются ли в зимнее время года дополнительные обогреватели, работающие на электричестве.
Конечно, при составлении проекта учитывается не только расход электричества в обычном режиме, но и в моменты пика. Это зависит не только от времени года, но и от времени суток.
Другая крайность также имеет серьезные минусы – если при выборе материалов ошибутся в большую сторону, и электросеть будет иметь слишком высокую мощность, то при покупке нужного количества электрического кабеля придется переплатить немалые деньги.
Подбор кабеля по мощности
Только настоящие профессионалы могут рассчитать стандартную и пиковую нагрузку на электросеть, подобрать оптимальное оборудование и материалы, чтобы составить именно такой проект электроснабжения, который будет в полной мере соответствовать запросам пользователей в здании.
Вводное слово.
Иными словами, поэтажный план БТИ квартиры или нежилого помещения- это чертеж помещения, выполненный по обмерам специалистов Бюро технической инвентаризации. Его также часто сокращенно называют “план БТИ”. На практике планом БТИ называют любой инвентаризационный план, даже если сами обмеры проводила другая организация, потому что подавляющее большинство объектов все-таки инвентаризировались именно БТИ (Бюро технической инвентаризации).К поэтажному плану квартиры или нежилого здания всегда прилагается экспликация.
Экспликация- что это за документ?
Экспликация- это список всех помещений объекта с указанием их площадей. Также указывается назначение помещения- основное или вспомогательное.
Ниже мы приведем пример экспликации.
Отметим, что для узаконивания перепланировки квартиры необходим технический паспорт квартиры, а не просто поэтажный план и экспликация, которые включаются в его состав. При согласовании переустройства нежилых помещений достаточно плана БТИ и экспликации вместе с выпиской из технического паспорта на здание и справкой о состоянии помещения.
Также многие жилищные инспекции перестали принимать технические паспорта с датой обследования квартиры более 5 лет назад.
Посмотрим как выглядит план БТИ.
Нужно ли платить за проект
типовой проект небольшого пятиэтажного одноподъездного дома
Однако, вовсе не факт, что проект, разработанный для местности с одним климатом, типом почвы, сейсмической активностью и другими факторами, можно будет воплотить в другой местности. В некоторых случаях это может стать причиной разрушения здания всего за несколько лет.
История строительства знает случаи, когда строители заказывали план первого этажа, рассчитывая просто продублировать его 5 или даже 9 раз, получив тем самым многоэтажное здание. Конечно, это также недопустимо. Ведь нагрузки на фундамент и несущие конструкции одноэтажного и пятиэтажного здания различаются во много раз. И халатное отношение, в сумме с непрофессионализмом и желанием минимизировать затраты, нередко приводит к настоящим трагедиям.
пример правильной конструкции пятиэтажного дома
Обучающее видео о том, как самостоятельно создать план дома или квартиры.
планировка квартир в 5 этажных кирпичных домах
Требования по составлению поэтажного плана
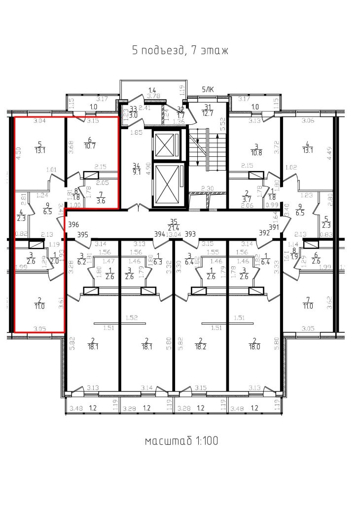
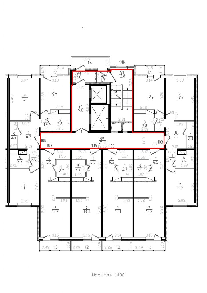
Данные, полученные во время исследования, отображаются на схематическом изображении. Результатом проведения инвентаризации, является разработка поэтажного плана, который входит в перечень необходимой документации технического паспорта на сооружение.
Его составляют в виде одноуровневого схематического изображения объекта или этажа многоэтажного дома с обозначением всех перегородок, перемычек, несущих стен, оконных и дверных проемов.

В поэтажную схему вносится следующая информация:
- инвентаризационный номер, который присваивается всем помещениям, входящим в состав объекта;
- оконные и дверные проемы, несущие стены, встроенные кладовые и ниши;
- дата выполнения последнего измерения помещения;
- название организации, которая производила обмеры.
Все самовольные, а также незарегистрированные изменения планировки на схеме обозначаются красными линиями и в последующем влекут за собой наложение штрафа на владельца недвижимости при проверке
исполнительной геодезической документации.
Экспликация
Экспликация представляет собой удобный справочный материал в осуществлении мероприятий по управлению пространством квартиры. Экспликация может быть размещена на поэтажном плане помещения или отдельно, как самостоятельный документ, имеющий юридическую силу.
Составляется она на основе сбора данных по специальным методам (метод общего контурного вычисления площади помещения) и необходима при следующих действиях с квартирой:
- при вводе объекта в эксплуатацию;
- при постановке на кадастровый учет;
- при оформлении заемных средств;
- при замене правоустанавливающих документов (свидетельства и т.п.);
- при перепланировке и т.п.
Также сведения, имеющиеся в экспликации, могут использоваться при расчете коммунальных платежей и ремонтных работ, для сверки сведений кадастровых документов с реальными данными квартиры, и т.п.
Собственники квартиры в многоквартирном доме, гражданка «В» и гражданин «С» решили сделать перепланировку. Так как сбор документов и процедура по согласованию перепланировки могла затянуться на длительное время, собственники решили сначала осуществить мероприятия по перепланировке, а после и узаконить ее.
Следует иметь в виду, что самовольная перепланировка квартиры наказывается в соответствии с ст. 7.21 Кодекса Российской Федерации об административных правонарушениях. Штраф составляет от 2 000 рублей до 2 500 рублей.
Зачастую граждане, осуществляющие перепланировку жилья и не оформляют документы по перепланировке за ненадобностью.
Для того, чтобы узаконить перепланировку, необходимо для начала обратиться с пакетом документов в специализированные учреждения для изготовления поэтажного плана и экспликации. Данные документы будут являться основанием для оформления изменений квартиры. После чего необходимо будет обращаться еще в ряд учреждений для получения необходимых заключений.
После сбора документов, для того, чтобы узаконить перепланировку, необходимо обращаться в районный суд.
Что такое экспликация
Экспликация — это своего рода пояснение к плану помещения. В экспликации перечислены сведения количественных, качественных и технических характеристик помещения.
Самый распространенный вид экспликации представляет собой таблицу, содержащую данные площадей в виде чисел. Экспликация содержит следующие сведения:
- общую площадь квартиры;
- площадь каждого помещения в квартире;
- высоту помещения.
Помимо этого, таблица содержит условные обозначения, применяемые к отдельным помещениям, а также описание характеристик, и обязательно дату обследования помещения.
Где получить экспликацию квартиры?
Экспликацию, как и поэтажный план, можно заказать в специализированном учреждении — Бюро технической инвентаризации. При заказе на изготовление экспликации, в эту организацию подается пакет необходимых документов, состоящих из:
- заявления на изготовление экспликации;
- копии паспорта, удостоверяющего личность заявителя;
- копии документов, которые подтверждают права на изготовление и получение поэтажного плана;
- иных документов, по требованию сотрудников учреждения.
В случае если заказчиком экспликации является представитель собственника помещения, необходимо представить также доверенность, оформленную нотариально (для физических лиц) или заверенную организацией (в случае, если заявителем выступает юридическое лицо — организация).
Стадия 3. Кадастровый учет
Собственник или нотариально-доверенное лицо относит диски в кадастровую палату (или МФЦ). В случае, если документы подаются напрямую в кадастровую палату, нужно заполнять заявления, но по опыту кадастровая палата очень неохотно рассматривает такие заявления в Москве и Питере, лучше сразу нести в МФЦ.
В МФЦ заполняют заявление, и выдают его копию. При себе нужно иметь доверенность, либо паспорт и учредительные документы, если подает глава организации, паспорт.
Пример выданного заявления:

С момента подписания заявления можно отсчитывать максимальный срок ответа на заявления, сейчас это 10 рабочих дней на обработку заявления в Палате, а также 6 рабочих дней на пересылку документов, в итоге 16 рабочих дней, это до 22 календарных дней.
По результату Вы получите ответ Кадастровой палаты в виде кадастрового паспорта (либо иной, в случае вопросов с документами).
Кампания Смарт Вэй ставит на кадастровый учет без задержек, пример кадастрового паспорта, полученного через 11 рабочих дней после подачи заявления:

Подготовка к строительству многоквартирного дома
Пожалуй, любой человек, даже не имеющий отношения к строительству, согласится, что возведение многоэтажного здания, в котором будут жить сотни или даже тысячи людей, является очень сложной и ответственной задачей. И начинается она с кадастровых работ.
Проводятся они кадастровой палатой, обычно это занимает до одного месяца. Чтобы получить нужные данные, заявитель должен собрать следующий пакет документов:
- Документированное межевание;
- Решение представителей власти о предоставлении определенного земельного участка в частную собственность (2 экз.);
- Заявление;
- Квитанция об оплате документирования.
Заявитель может получить готовую справку из земельного кадастра лично или по почте. Эта записка и есть запрошенный кадастровый план. В заявке обязательно должно быть указано, какое количество экземпляров заявитель хочет получить. Стоит учитывать, что в учреждения юстиции обычно приходится предоставлять минимум два экземпляра. Чтобы получить данный документ лично или на почте, необходимо предоставить паспорт.
Готовая кадастровая выписка содержит следующие данные:
- Кадастровый номер – уникальный номер, который был присвоен определенному земельному участку, и по которому он в дальнейшем будет проходить по всем архивам и спискам;
- Наименование участка. Чаще всего в этой строчке просто указывается «землепользование»;
- Местоположение в пределах квартала кадастра;
- Категория земли. В некоторых случаях может стоять пометка «не установлено»;
- Цель предоставления;
- Площадь. Данные берутся из документов о постановлении о внесенных уточнениях и межевании;
- Особые отметки. Здесь уточняются различные данные, например, сведения о правах заявителя.
Образец кадастровой выписки
Последние записи
23 Июня 2020 5:00
Какие возможности предоставляет психолого-педагогическое образование
23 Июня 2020 5:00
Как в Москве записать ребенка в детский сад
23 Июня 2020 5:00
Как проходит бесплатное обучение парикмахеров
Новости smi2.ru
19 Июня 2020 5:00
СанПиН – что актуально в нынешнем году для образовательных учреждений
14 Июня 2020 5:00
Основные принципы дифференцированного обучения
13 Июня 2020 5:00
Современные технологии обучения в России
12 Июня 2020 5:00
Какие существуют уровни образования в России
8 Июня 2020 6:00
Как получить второе высшее образование
8 Июня 2020 5:00
Как научить ребенка читать – методика Зайцева
5 Июня 2020 5:00
Принципы реализации дошкольного образования в России
5 Июня 2020 5:00
Что такое машинное обучение
2 Июня 2020 5:00
Что такое среднее профессиональное образование
28 Мая 2020 5:00
Принципы обучения в современной школе
27 Мая 2020 12:00
Как проходит обучение на тракториста машиниста
27 Мая 2020 5:00
Что такое очная форма обучения
Новости smi2.ru
31 Марта 2020 5:00
Восемь главных принципов инклюзивного образования
30 Марта 2020 5:00
Система оценок в России
29 Марта 2020 5:00
Заочное обучение – плюсы и минусы
Стадия 1. Ввод объекта в эксплуатацию.
Согласно требованиям в 2020 году, комплект документов для получения разрешения на ввод объекта в эксплуатацию включает в себя также документы, которые готовят инвентаризаторы и кадастровые инженеры:
Поэтажные планы.
Поэтажные планы оформляются органом технической инвентаризации (к прим. Смарт Вэй). Изготавливаются они на основании фактических обмеров всех помещений, включая квартиры, места общего пользования, подвал, чердак, нежилые помещения, а также все, что есть во внутренних границах здания. Обмеры помещений выполняются согласно СНиПу на высоте 1.1-1.3 метра.
Обмеры помещений лучше выполнять с распечатанными проектными чертежами, помечая на чертежах текущий размеры и отклонения.
Пример части поэтажного плана многоквартирного дома:

Ведомость помещений
Ведомость помещений – это документ, отображающий характеристики и состав всех помещений, которые отрисованы на поэтажном плане.
Нет ничего сложного в ее заполнении, кроме большого объема информации. Опытные организации имеют программное обеспечение, которое выгружает ведомость из огромных поэтажных планов за несколько минут.
Справка о технико-экономических показателях объекта недвижимости – документ, содержащий все характеристики здания, полученные в результате технической инвентаризации. Справка ТЭП используется для заполнения разрешения на ввод объекта в эксплуатацию (на практике ГСН просто копируют все данные из ТЭП в разрешение на ввод).
Шаблон справки для заполнения можно найти на сайте государственного строительного надзора (ГСН), но по опыту требуется немного другой вариант заполнения.
Образец справки ТЭП, которая была оформлена без ошибок и прошла в ГСН с первого раза:


Технический план зданий
Технический план состоит из описания характеристик здания, включая расположения здания на земельном участке. Заверяется и подписывается кадастровым инженером.
Никаких сложностей в изготовлении технического плана на многоквартирный дом нет, все делается согласно приказу МинЭкономРазвития № , разве что для ввода в эксплуатацию обязательно прикладывать бумажную версию с физической печатью кадастрового инженера, а также техплан на диске, подписанный ЭЦП.
Образец технического плана без ошибок (последняя часть вырезана):
Техплан здания 1
Техплан здания 2
Техплан здания 3
Техплан здания 4
Техплан здания 6
Техплан здания 5
Техплан здания 8
Техплан здания 7
Техплан здания 9
Техплан здания 10
Техплан здания 11
Дополнительные документы
Вместе с инвентаризацией объекта недвижимости могут требоваться дополнительные документы, который орган технической инвентаризации не обязан предоставлять, но все же изготавливает:
- Милицейский адрес. Получить на здание можно в администрации или уполномоченном органе.
- Технический паспорт. Может требовать заказчик. Изготавливается на основании обмеров.
Выбор земельного участка
Первым этапом является поиск подходящего участка для строительства нового объекта. При выборе застройщик ориентируется на два основных критерия:
Близость к городской инфраструктуре. Оптимальным вариантом является возведение жилого дома ближе к центру, где имеется все необходимо для комфортного проживания (магазины, больницы, школы, садики и прочие объекты). Но чем ближе участок к центральной части, тем выше стоимость земли, да и получить разрешение сложнее.
Покупка земельного участка за городом позволяет сэкономить деньги и быстрее оформить документы, но возникают сложности с продажей квартир. Люди не спешат приобретать недвижимость в местах, где отсутствует нормальное транспортное сообщение, и нет необходимых объектов инфраструктуры. Соответственно, стоимость одного «квадрата» жилья снижается.
Возможность подведения коммуникаций. Следующий важный момент — близость телефонных линий, теплоснабжающих, электрических и газовых сетей. Если в новостройке предусмотрено автономное отопление, вопрос с подключением к центральной теплотрассе решается сам собой. При этом к дому все равно необходимо тянуть воду, ставить опоры для подвода электричества, подключать газ и так далее. Все это повышает стоимость строительства и усложняет проект.
Следующим «камнем преткновения» является градостроительный план, с учетом которого производится застройка города. Строительным компаниям приходится пройти настоящие «круги ада», чтобы получить одобрение на возведение многоэтажного дома, а общее количество разрешений при строительстве объекта возле центра города может исчисляться несколькими десятками.
Простейший путь — получить разрешение на строительство в том районе, где еще мало новостроек, а по генеральному плану предусмотрено возведение нескольких домов. Процесс оформления разрешения упрощается и в том случае, когда в роли заказчика постройки выступают муниципальные власти. Но здесь речь идет о многоэтажных домах с квартирами эконом-класса, предназначенных для малообеспеченных семей.
Проектирование
После проведения топографической съемки и геологической экспертизы можно приступать к следующей стадии — составить проект будущего многоквартирного дома. От правильности его выполнения зависит будущая планировка квартир, размер жилплощади, а также внешний вид объекта.
Проект будущего дома разрабатывается с учетом действующих строительных норм, климатических условий, санитарных требований и сейсмологической ситуации
К примеру, в санитарном законодательстве ключевое внимание уделяется качеству вентиляции и освещенности. Что касается теплоизоляции, необходимость дополнительной отделки фасада определятся с учетом среднегодовой температуры
При разработке проекта учитывается множество факторов, вплоть до расположения коммуникаций. Здесь разработчикам проектной документации приходится учесть множество требований (в том числе в секторе экологии), а также особенности окружающей среды.
Главной сложностью при разработке проекта является необходимость его согласования с архитектурно-строительными организациями. Именно этот этап занимает «львиную» долю времени.
Если многоквартирный жилой дом имеет высоту от 22 этажей и больше, требуется дополнительный расчет нагрузки на фундамент и определение стойкости несущих элементов. При создании проекта специалисты должны учитывать особенности не только той территории, где ведется строительство, но и план застройки близлежащих участков.
От правильности составления проекта, а также проверки документов на факт соответствия требованиям зависит результат работы по возведению многоквартирного жилого дома, его надежность, безопасность и внешняя привлекательность. Обязательно составляется проектная декларация, где приводится информация о застройщике и объекте.
Где взять поэтажный план квартиры и экспликацию?
Теперь попробуем ответить на вопрос “Где брать план БТИ?”. Для этого сначала необходимо выяснить, какая организация выполняла обмеры Вашего здания. Именно в ней и необходимо заказывать документы. Если Ваша квартира или нежилое помещение находится в жилом здании, которое построили давно (до 2000 г.), то обмеры проводило БТИ. Если квартира или нежилое помещение находится в здании более позднего года постройки, то обмеры могли проводить и в Ростехинвентаризации, и в БТИ. Хотя, чаще всего, застройщики все равно обращались именно в БТИ. Если у Вас здание целиком является нежилым любого года постройки, то обмеры могла проводить любая из этих двух организаций (но в БТИ гораздо чаще).
Разработка проекта системы отопления
Устройство отопления, начиная от вводной системы и заканчивая радиаторами отопления, создается сразу после того, как построен остов многоквартирного здания. Разумеется, к этому моменту проект отопления многоквартирного дома должен быть разработан, проверен и утвержден.
И именно на первом этапе нередко возникает ряд трудностей, как и при выполнении любой другой, очень сложной и важной работы.
Вообще, система отопления многоквартирного дома отличается сложностью. Мощность системы отопления может зависеть от силы ветра в вашем регионе, материала, из которого построено здание, толщины стен, размеров помещений и множества других факторов
Даже две одинаковые квартиры, одна из которых расположена на углу здания, а другая – в его центре, требуют разного подхода
Мощность системы отопления может зависеть от силы ветра в вашем регионе, материала, из которого построено здание, толщины стен, размеров помещений и множества других факторов. Даже две одинаковые квартиры, одна из которых расположена на углу здания, а другая – в его центре, требуют разного подхода.
Ведь сильный ветер в зимнее время года довольно быстро остужает наружные стены, а, значит, теплопотери угловой квартиры будут значительно выше.

Поэтому их необходимо компенсировать, установив более крупные радиаторы отопления. Учесть все нюансы, подобрать оптимальные решения могут только опытные специалисты, точно знающие, как устроено и как работает все оборудование.
Новичок, решивший провести расчет системы отопления в многоквартирном доме, с самого начала будет обречен на провал. И это приведет не только к значительному перерасходу ресурсов, но и поставит жизнь обитателей дома в опасность.
Стадия 2. Подготовка технических планов.
Согласно ФЗ № 221 «О кадастровом учете», а также приказу № , кадастровый учет многоквартирного дома нужно производить со всеми внутренними помещениями.
Основная задача кадастрового инженера – изготовить технические планы на само здание, отдельный технический план на каждую квартиру, помещение, место общего пользования (МОП). Рассмотрим эту задачу подробнее.
Технический план на здание ничем не отличается от того, что нужно готовить для получения разрешения на ввод, только с тем отличием, что к техплану прилагается цветная копия разрешения на ввод.
На каждую квартиру требуется отдельный технический план.
Технический план заполняется стандартно, заполняются все графы. Квартиры на графике выделяется следующим образом:

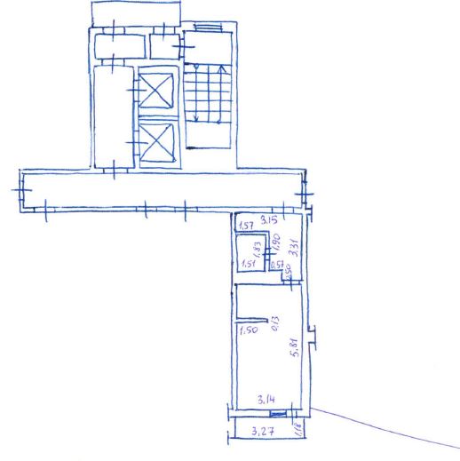
К техническому плану больше ничего прикреплять не нужно. НО. Если обмеры не соответствуют проектной документации, а на практики построить строго по проекту невозможно, к техническому плану квартиры прикрепляется абрис этой же квартиры. Требование обязательно, хотя некоторые кадастровые палаты и пропускают техпланы МКД без абрисов помещений, большая часть инженеров палаты выписывают приостановку, так как подобная норма есть в законодательстве.
Образец абриса квартиры:

Абрис прикрепляется к «дополнительным документам» в техническом плане.
Технические планы нежилых помещений
Техпланы изготавливаются также, как и на квартиры, с одним исключением, что помещения должны быть изолированы и обособлены.
Важно. В случае, если несколько помещений имеют общий вход, либо не изолированы друг от друга, кадастровая палата с высокой вероятностью выдаст приостановку
Вариантов решения несколько: объединять помещения в одно, либо прикладывать проектную документацию и доказывать кадастровой палате, что это предусмотрено.
Технические планы мест общего пользования (МОП)
В некоторых регионах России по разному воспринимают значения МОП и порядок из обозначения и регистрации, но в Москве и Санкт-Петербурге их ставить на учет обязательно. Проще всего их ставить по лестницам, к примеру:
Технический план на МОП, включающий одну лестницу, лестничные марши и лестничные клетки на всех этажах. Границы МОПов идут до границ квартир. Графически несколько этажей:


Технический план на МОП ничем не отличается от других.
Технические планы на подвал, чердак, машино-места
Технические планы ничем не отличаются от нежилых помещений
Важно учитывать минимальные требования по высоте – объекты меньше 1.8 метра нельзя поставить на учет, а также необходимо изучить информацию из разрешения на ввод. Может быть так, что чердак или подвал является МОПом или — техническим
Итог
По завершению подготовке технических планов они подписываются электронно-цифровой подписью кадастрового инженера и записываются на диски (количество дисков может быть любым) CD или DVD.
Как радиаторы отопления могут повлиять на температуру в помещении
Говоря про отопление квартиры и дома в целом, нельзя не уделить внимание радиаторам отопления. Все-таки именно они являются главными поставщиками тепла в большинство помещений квартиры
Большая часть людей привыкла к чугунным радиаторам, которые начали устанавливать в домах почти столетие назад.
Владельцы жилья красят их, завешивают шторами и тюлем и даже устанавливают специальные ширмы, чтобы их скрыть.

А ведь любые преграды уменьшают теплоотдачу, из-за чего температура в помещении может упасть на несколько градусов. Именно поэтому многие владельцы квартир предпочитают устанавливать более современные виды радиаторов. Они могут быть изготовлены из разных материалов.
- Алюминий. Прекрасный материал – легкий, обладающий высокой теплопроводностью и изящный. Его не нужно красить, нагревается очень быстро, и через считаные минуты начинает отдавать тепло помещению. Увы, у него есть минусы. Например, вода с повышенной кислотностью может со временем нанести радиаторам отопления непоправимый вред. Кроме того, алюминий является довольно пластичным и мягким материалом. Слишком высокое давление (чаще всего на первых этажах 12–16-этажных зданий) может просто разорвать их.
- Сталь. Выглядят эти радиаторы просто великолепно. Так же как и алюминиевые, очень быстро нагреваются и передают тепло окружающему помещению.
Высокая прочность позволяет изготавливать довольно миниатюрные радиаторы, которые, благодаря хорошей теплопередаче, способны поддерживать нужную температуру в помещении. Высокая прочность гарантирует, что даже при высоком давлении радиаторы не будут повреждены. Единственный минус – высокое содержание кислорода в воде может негативно воздействовать на внутреннюю стенку «батареи».
- Чугун. Не стоит думать, что чугун безвозвратно покинул мир отопительных систем. Современные технологии позволяют изготавливать довольно миниатюрные и привлекательные радиаторы из чугуна. Они не только обладают высокой прочностью, но и не боятся повышенной кислотности воды или большого содержания кислорода. Их производят в России, Беларуси и некоторых странах Европы. Стоимость этих радиаторов сравнительно невысока, что делает их популярными во многих странах мира.
Так выглядит на сегодняшний день основной рынок радиаторов отопления. Большой выбор позволяет подобрать подходящее решение даже самому придирчивому покупателю, которого не устраивают устаревшие массивные радиаторы из чугуна.
систему отопления
Но стоит учитывать, что, не быстро нагреваясь, они также медленно остывают. То есть они обладают очень высокой тепловой инерцией. Поэтому такие радиаторы способны защитить вас от частых перепадов температуры, негативно сказывающихся на здоровье и самочувствии людей.
Заключение
Поэтажный план и экспликация из БТИ являются неотъемлемой частью технического плана помещения. При этом такие документы могут быть изготовлены по заказу в виде отдельных документов.
Поэтажный план и экспликация содержат все необходимые сведения об объекте (помещении), в т.ч. площади помещений, характеристики помещений, план-чертеж расположения и многое другое. Они обязательны при осуществлении сделок с недвижимостью (отчуждению, наследстве и пр.), перепланировок и т.п. А сведения, содержащиеся в технических документах, могут потребоваться для внутреннего пользования помещением.
Изготовление документов обычно проводит Бюро технической инвентаризации. Однако обратиться за изготовлением подобных документов можно в любое специализированное учреждение, оказывающее данный вид услуг.
Требования риелторов вполне логично. Однако законодательства, обязывающего Вас представить агентству недвижимости данные документы, не имеется. Возможно, такие требования риелтора обоснованы внутренними нормативными актами агентства.
Порядок получения поэтажного плана в БТИ.
Следующая статья: Справка БТИ
Поэтажный план БТИ оформляется при обращении в техническую организацию с заявлением. Необходимо обратиться к специалисту, способному предоставить исчерпывающую информацию об особенностях оформления документации.
Дорогие читатели! Статья рассказывает о типовых способах решения юридических вопросов, но каждый случай индивидуален. Если вы хотите узнать, как решить именно Вашу проблему — обращайтесь к консультанту:
+7 (812) 309-85-28 (Санкт-Петербург)
ЗАЯВКИ И ЗВОНКИ ПРИНИМАЮТСЯ КРУГЛОСУТОЧНО и БЕЗ ВЫХОДНЫХ ДНЕЙ.
Это быстро и БЕСПЛАТНО!
Листы оформляются в формате А4 или А5, с заверением подписью должностного лица и печатью организации.
Выдача поэтажного плана необходима для:
- регистрации права собственности на объект недвижимости;
- его приватизации;
- согласования необходимой перепланировки.
Поэтажный план представляет собой проект этажа с его техническими обозначениями.
Указывается:
- расположение дверных проемов;
- окон в квартирах;
- особенности их конфигурации.
Документ также содержит информацию о размере лестничных площадок, проемов, сведения о высоте потолков, расположении шахт для лифта и вентиляции.
Экспликация оформляется в качестве приложения к поэтажному плану, с подробным чертежом и описанием особенностей квартиры.
Функциональное назначение плана заключается в возможности создать новую схему нежилого помещения.
В каких случаях необходим?
План нужен для оформления квартиры в собственность, проведения необходимых реконструкционных мероприятий.
Основное назначение документа – проведение ремонтных работ законным способом, особенно когда затрагивается структура несущих стен.
Необходимость в документе возникает при совершении сделок с недвижимостью – для передачи ее в собственность, аренду, или с целью оформления документа на наследство.
В плане нуждаются собственники и владельцы недвижимости – при их желании перевести жилое помещение в нежилое для последующего коммерческого использования.
Список источников
- Proekt-sam.ru
- resog.ru
- stroimprosto-msk.ru
- www.rline.tv
- smway.ru
- gkh-rf.ru
- www.prom-terra.ru
7 лестниц