Перепланировка хрущевки – нюансы знать полезно!
Разумеется, придется делать все официально, заказывать в Городской архитектуре проект, ни в коем случае не сносить несущие перегородки, если вы не хотите, чтобы со временем к вам провалились соседи, не замуровывать вентиляцию, менять месторасположение газовых труб или оборудовать туалет над кухней или над жилой комнатой соседей снизу. Эти случаи считаются серьезными нарушениями и грозят штрафными санкциями.
Главное, разумно спланировать ванную комнату, где прежде не помещалась стиральная машинка и была неимоверная теснота. При объединении ванной с туалетом нужно только учесть потребности членов вашей семьи, ведь после такого «приема» нельзя будет подолгу отмокать в новой красивой ванне, потому что кому-то срочно может понадобиться унитаз. Стоит ли идти на такой шаг или нет, решать вам.
Главная цель такова – ваша квартира должна превратиться в единое и красивое стилистическое пространство, разительно отличающееся от того помещения, которое когда-то построили для обитателей бараков и трущоб!


















Выравнивание полов по уровню во всей квартире-хрущевке
Нередко в хрущевках на кухне и санузле полы выполнены иначе, чем в остальной квартире. В кухне и ванной формируется стяжка, а в комнатах – на лагах деревянный пол из досок или паркет. Несколько реже встречается вариант со стяжкой в комнатах, только и она отличается по уровню. Из-за малой толщины перекрытий и использования лаг и деревянного настила звукоизоляция между этажами столь же плоха, как и через внутренние перегородки. В виду большого срока эксплуатации зданий, которые были рассчитаны на 25, максимум 50 лет, в хрущевках нередко проявляются проблемы, связанные с нарушением гидроизоляции.
В ходе ремонта полов следует решить несколько задач:
- Свести все полы в один уровень или сформировать адекватные переходы;
- Восстановить или полностью заменить слой гидроизоляции на кухне и в ванной;
- Обеспечить утепление и звукоизоляцию полов по всей квартире.
Собственно все работы проводятся согласно общепринятым правилам и инструкциям. Только следует учитывать, что толстый слой стяжки формировать нельзя из-за большой результирующей нагрузки на перекрытия, они на это не рассчитаны. Лучше всего подойдет утепление из плотного пенополистирола толщиной в 2-5 см и формирование тонкой стяжки или наливных полов.
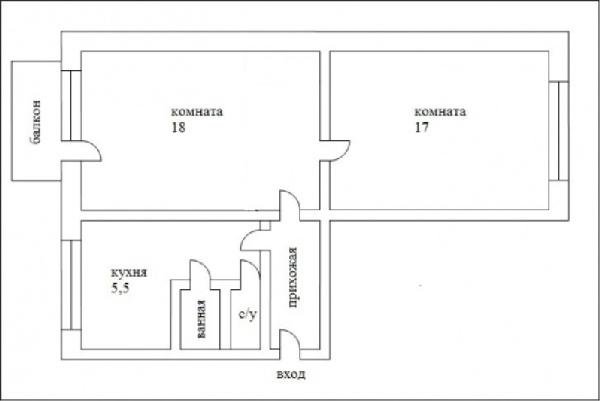
Двухкомнатная хрущевка: переделка
В постройках тех лет двухкомнатных квартир гораздо больше, чем однокомнатных, но проблемы у них одни и те же: малые площади и не продуманное расположение комнат, с наличием проходных помещений. Если заняться перемещением стен, то большинство проблем оказываются решаемыми. Например, имеется возможность разделения смежных комнат, после чего можно из двухкомнатной квартиры сделать и трехкомнатную. Для этого достаточно смонтировать еще одну перегородку, которая отделит комнату от коридора. В результате появляется дополнительная полезная площадь, где можно разместить гардеробную и кладовку. Полученное таким образом второе помещение более длинное и более узкое, разделяется на две части, посредством перегородки из гипсокартона.

На фото ниже представлен второй вариант неудачного планирования жилого пространства тех времен. Здесь, чтобы попасть во вторую комнату, необходимо пройти через первую. Планировка настолько неудачная, что, мало того, что малые площади, еще и появляются и мертвые зоны, что искажает функциональность комнат. Иногда, в торце второй комнаты располагают кладовку, которая не может быть использована в полной мере.

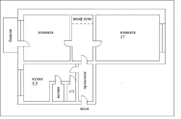
После переделки по этому варианту, ванна приобрела квадратную форму, а прихожая соединилась с первой комнатой. В данном случае, она выполняет роль гостиной, из которой сформирован вход в кухню. Следующее, более дальнее помещение разделено на две спальни. Перегородка между двумя спальнями смонтирована таким образом, чтобы осталось место для небольших гардеробных одной и другой спален.

Обычную двухкомнатную хрущевку в панельном доме, возможно превратить в квартиру студию, объединив гостиную и кухню. Основная задача подобной переделки состоит в том, чтобы сместить входные двери. За счет этого большая прихожая послужит в качестве гардеробной. При этом, объединяются туалет и ванна, а кухня и гостиная объединяются за счет частично разобранной перегородки.
Если имеется желание, то вторая комната может быть разделена на две части, за счет перегородки из гипсокартона, что позволит разделить рабочую и спальную зоны. Чтобы в спальню проникал свет, перегородку достаточно поднять на высоту не больше 1,5 метра.

Достаточно интересный вариант переделки 2-х комнатной квартиры в 3-х комнатную. Здесь прихожая немного скошена, что дало возможность увеличить площадь санузла, а перегородка, которая установлена между кухней и комнатой, частично удаляется. Вторая комната разделяется на 2 части, площадь которой увеличивается за счет кладовки и стенного шкафа. В результате образовались 2 спальни, а так как квартира угловая, то в каждой из спален имеется свое окно.
Коридор принял интересную форму, так как его стены располагаются по диагонали. В результате получается неплохой вариант, хотя функциональность коридора значительно снижена.
Ремонт в хрущевке 2х комнатной без перепланировки: фото до и после
Этим летом мы делали поэтапную отделку двухкомнатной квартиры. Сначала всю мебель и вещи перетащили в одну комнату, заперли и загерметизировали. После ремонта соседней комнаты и кухни, все перетащили в готовые помещения и доделали оставшуюся комнату, коридор, ванну и туалет. В общем, не самый удобный вариант ремонта. Задача: сделать добротный недорогой ремонт из бюджетных материалов. Сроки: 10 июня-24 июля – первый этап, 4августа-10сентября – второй этап. Смета: 295800р (только работа+натяжные потолки) Все работы, кроме установки межкомнатных дверей и установки двух из трех окон, делались своими силами. Фотографий много, поэтому буду выкладывать по мере сил и появления свободного времени. Итак, вот в каком виде пред нами предстал “объект”
ремонт в хрущевке 2х комнатной фото до и после без перепланировки
ремонт в хрущевке 2х комнатной фото до и после без перепланировки
Вот такой объект-ужастик, демонтируем все что можно
Ну, вот, в принципе, и все. Фотографировал в процессе уборки, поэтому извиняюсь за бардак, ремонт в хрущевке 2х комнатной фото до и после без перепланировки закончен.
Статья на тему Ремонт в хрущевке 2х комнатной фото до и после подготовлена автором nazar2292
Благодарим за информацию сайты: ideas.vdolevke.ru,fishki.net,
Зонирование
Интересно преобразить внутреннее пространство квартиры удается не только в случае сноса стен и сооружения новых. Существует достаточно много оригинальных примеров, позволяющих понять, как при помощи успешного зонирования сделать комнаты красивыми и функциональными.


В частности, можно рассмотреть такой пример.

В двухкомнатной квартире проживает семья с ребенком. Одну из комнат можно выделить для организации функциональной детской комнаты. В гостиной в этом случае нужно обязательно продумать варианты зонирования, чтобы выделить пространство для организации спального места для родителей и гостевой зоны.


Для реализации такой идеи рекомендуется:
- кровать разместить у окна, отделив ее тонкой перегородкой или легкими занавесками;
- диван, кресла, журнальный столик разместить ближе к входной двери в гостиную.

Если такая идея с разделением не очень нравится, можно воспользоваться другим интересным решением. В гостиной не выделяется место для спальной зоны, но обязательно приобретается и размещается раскладной диван. В этом случае в дневное время гостиная будет выполнять свое прямое назначение, здесь можно встречать гостей. Ночью она будет превращаться в спальную комнату.

Конструктивные особенности.
Особенностью дома являются железобетонные балки (ригели), «свисающие» от потолка примерно на 45 сантиметров. Они проходят через всю квартиру и опираются на кирпичные стены. Данные ригели являются несущими, поэтому передвинуть или демонтировать их нельзя. Межэтажные плиты перекрытия — железобетонные многопустотные, толщиной 220мм. Хотя по моим измерениям их толщина около 180 мм.

Конструктивные особенности двухкомнатной хрущевки
Через весь дом посередине проходит внутренняя продольная несущая кирпичная стена, которая разделяет квартиры.
Получается следующая конструкция: на фундаменте кирпичные несущие стены, на них опираются железобетонные ригели, далее на ригели и несущие стены опираются межэтажные плиты перекрытия. Основная часть перегородок сделана под ригелями. Могу предположить, что это обусловлено несколькими причинами:
- чтобы ригели визуально меньше выделялись и не мешались проходя посреди помещения;
- в связи с определенным размером плит перекрытия;
- для снижения нагрузки на плиты перекрытия от перегородок;
- с целью экономии материала для перегородок.
Высота потолков в «стандартном» варианте 2,5 метра, что конечно очень мало. После демонтажа деревянных полов высота составляет около 2,7 метров.
Межкомнатные перегородки толщиной 80 мм. Сделаны из чего-то вроде гипсобетона с опилками на деревянном каркасе и практически без стальной арматуры. К несущим стенам они пристыкованы с помощью деревянных закладных в кирпичной кладке и металлических скоб. Одна из стен, разделяющих квартиры, сделана из такой перегородки, но сдвоенной (единственная не кирпичная стена, отделяющая от соседей).
Места установки окон и входной двери сверху усилены железобетонными балками.
Перепланировка двухкомнатной хрущевки: стандартные варианты и их возможности
Какими бы несовременными нам ни казались «хрущевские» квартиры сегодня, не стоит забывать, что в свое время они стали отличным решением для семей, ютившихся в коммуналках. Такие дома возводились по всему миру, а линии для их производства были закуплены во Франции. Другое дело, что эти помещения в большинстве стран были только временным решением, а у нас остались надолго. И сегодня наиболее распространены следующие планировки двухкомнатных хрущевок с различной степенью комфорта:
1. «Книжка» – пожалуй, самое неудачное расположение комнат, где жилые помещения проходящие, а площадь кухни варьирует в пределах 5-6 м2. Общий же размер помещения – 40-42 м2. Главный недостаток – раздельные комнаты можно получить только за счет существенного уменьшения гостиной, удлинив коридор. Конечно, можно объединить комнату с кухней, заодно увеличив площадь последней, но стоит ли оно того?


2. «Трамвай» – квартиры, площадью 45-48м2. Здесь дизайн двухкомнатной хрущевки с проходной комнатой можно значительно улучшить, удлинив прихожую за счет одной или сразу двух соседних комнат. Такая перепланировка более функциональна, чем в «книжке», потому что позволяет не только изолировать комнаты, а и установить в торце коридора вместительный шкаф-купе или гардеробную.


3. «Миниулучшенка» – комнаты и санузел в такой квартире изначально раздельные, в большинстве проектов даже предусмотрена кладовая. Здесь уже возможен вариант разделения гостиной на две комнаты поменьше. Но чаще перепланировка такой двухкомнатной квартиры преследует цель устранить еще один значимый минус хрущевок – миниатюрную кухню, площадью около 5 м2. Если за счет кладовки перенести санузел, можно добавить кухне 2-3 м2.


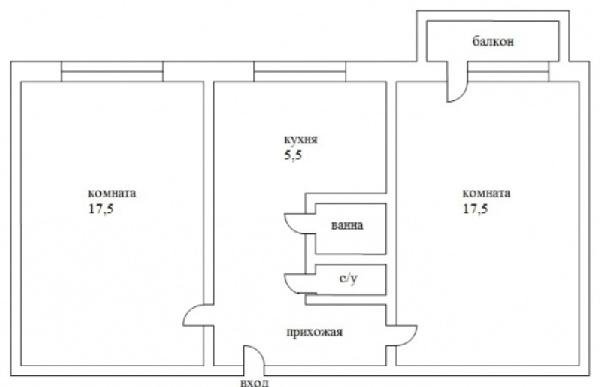
4. «Бабочка» ли «распашонка» – двухкомнатные планировки хрущевских домов, которые имеют площадь в 46-52 м2 и симметрично расположенные комнаты с разными входами из прихожей. Капитальный ремонт в такой двухкомнатной хрущевке можно затевать ради увеличения санузла (если вас устраивает перепланировка отдельной ванной в совмещенную) или разделения одной из комнат перегородкой. Кухню же можно увеличить, только объединив с одной из комнат.

Современный интерьер гостиной
Большую часть времени мы проводим в гостиной, устраивая посиделки с друзьями, принимая гостей или просто, смотрим телевизор
Гостиная должна быть особенно уютна и просторна, неважно однокомнатная или двухкомнатная квартира в хрущевке. Достаточно придерживаться несколько принципов
- Освещение поможет визуально увеличить пространство. Так же используйте светлые тона для штор и занавесок
- Цвет. Что касается стен, потолка и пола советуем выбирать более светлые или бледные оттенки. Потолок можно сделать подвесным или двухуровневым, для визуального увеличения высоты.
- Мебель. Здесь советуем выбирать функциональную и малогабаритную мебель. Постарайтесь обойтись без громоздких диванов и кресел. Для отделения зон воспользуйтесь ширмами или другим более выгодным для вас вариантом.
Планировка и ремонт в кухне и санузле хрущевки
Кухня
Основная проблема во время ремонта кухни в хрущевке – это планировка и выбор материалов для ее отделки. Все упирается в размеры помещения. Кроме этого полы в кухне и санузле отличаются в большей части квартир-хрущевок по уровню от остальной квартиры. В довершение стены, выполненные из гипсобетона или пенобетона, а также внешние железобетонные, не отличаются прямотой.
Для того чтобы несколько расширить помещение можно переместить внутренние перегородки квартиры. При этом займется место у коридора или соседней комнаты. Несущими являются внешние стены и система колон и ригелей, так что внутренние перегородки можно сносить и перемещать. Однако следует в обязательном порядке оформить все изменения и получить все необходимые разрешения. Лучше перестраховаться и пригласить проектировщика, который точно определит: можно ли сносить необходимую перегородку. Возвести новую стену кухни лучше из влагостойкого гипсокартона.

Один из самых популярных вариантов “спасения” кухни в хрущевке – её объединение с комнатой, благо неопорные стены допускают их снос. А из перегородки из гипсокартона можно сделать дополнительное место для хранения. Главное – фантазия и наличие “лишней” комнаты в квартире.
Второй момент в кухне – это коммуникации. Газовые трубы, ввод воды и канализация расположены в самых невыгодных местах и чаще всего отстоят от стен на 5-7 см. Внешний вид коммуникаций также оставляет желать лучшего. Что касается газовых труб, то в этом могут помочь только газовые службы, которые могут перенести трубы в самый угол и сделать ввод более цивилизованным.
Трубы подачи воды и канализацию лучше заменить на пластиковые, и проложить максимально близко к полу. Лишь в некоторых домах можно позволить себе спрятать трубы в стену, тем самым облегчив процесс установки кухонной стенки.
Для отделки стен подойдут такие материалы, как:
- Кафельная плитка;
- Покраска;
- Обои.
На границе между потолком и стенами нежелательно формировать лепнину или декоративные плинтуса. Это только уменьшит визуально и без того крохотную кухню.

Отличным решением для кухни в хрущевке является столешница-подоконник и шкафы вдоль окна.

Не пытайтесь “впихнуть” в небольшое помещение огромный стол – не ленитесь и поищите оригинальные решения в мебельных магазинах.

Незаменимым решением может стать складная мебель. Если у Вас большая семья, а места мало – можно повесить не один, а парочку откидных столов.

И конечно, в маленькой кухне для хранения нужно максимально использовать стены, может тогда в ней останется хоть немного свободного места. Этому лучше всего поучиться у скандинавских дизайнеров.
Ванная
Обязательно следует сопровождать ремонт ванной в хрущевке заменой гидроизоляции. Сливы и выводы канализации лучше заменить на пластик. При этом не стоит экономить. Следует связаться с соседями по стояку и выполнить работы по стояку централизованно. Если этот вариант не получается, то заменять трубы с выводом переходов пластик-металл аж к соседям. Этим можно обезопасить себя от пробоя оставшихся кусков старых труб в перекрытиях.
Варианты планировок 2-х комнатных хрущевок
Наибольшие различия в планировке 2-х комнатных хрущевок все равно присутствовали. Это случилось из-за того, что проектировались они различными по общей площади от 30 кв м до 46. Жильцы придумали свои названия для планировки 2-х комнатных хрущевок. Появились такие названия: «вагончиком», «трамвайчиком», «распашонкой».
В разных сериях были довольно большие различия. Встречались варианты с одной проходной комнатой, были полностью изолированные. Большой интерес представляют варианты с большой кладовкой пристроенной к помещению, за счет которой можно было увеличить и жилое пространство, и сделать целую гардеробную.
Например, 2-х комнатная планировка в хрущевке «вагончиком» – это квартира, в которой окна разведены на разные стороны дома. Помещения здесь смежные, расположены друг за другом ( как вагончики поезда). Однако, если убрать весь негатив связанный с серией, то это довольно удобно. В любом случае, это, конечно, полноценное жилье, в котором есть спальня и гостиная.
Второй вариант — это распашонка. В такой квартире окна выходят на одну сторону. А одна комната обязательно проходная. Основное отличие заключается в том, что одна комната существенно меньше другой. Аналогичный вариант называется «книжка» — в ней комнаты одинаковые по площади, одна из них проходная.
Варианты с более большими площадями имели изолированные помещения. Была т.н. «миниулучшенная» вариация. Такая квартира похожа на аналогичные квартиры в 9-этажках, кроме очень маленькой хрущевской кухоньки. Эти проекты имеют даже раздельный санузел.
И еще одну вариацию можно отметить. Не особенно часто встречается, так называемая, «бабочка». Раздельные одинаковые по площади большие комнаты разделены по центру маленькой кухней, санузлом и крохотным коридорчиком.
Замена остекления в хрущевке
Основной сложностью остекления хрущевок является отсутствие в большинстве домов подоконников как таковых и малая толщина внешних стен
Особое внимание следует уделить замерам оконного проема перед заказом окон. Вместе с тем сразу же обдумайте размеры подоконников и откосов
Часто оконный проем, из которого выставили старое деревянное остекление, представляет собой неровный прямоугольник. Так что замеры должно усреднить по меньшему из размеров. Хорошим моментом является отсутствие толстого слоя задержки между оконной коробкой и краями оконного проема, так что нет необходимости при замерах долбить стены в поисках края основы.

Большинство российских компаний “со стажем” имеют огромный опыт остекления хрущевок и типовые решения для серийных домов. Поэтому при грамотном выборе подрядчика проблем возникнуть не должно.
Сделать широкие подоконники не выйдет. Точнее это нецелесообразно. В результате получится слишком маленькая площадь опоры подоконника на оконный проем, и при увеличении его ширины будет страдать прочность всей конструкции. Кроме того ухудшится циркуляция теплого воздуха возле окна, что может негативно повлиять на новые пластиковые окна.
Особое внимание необходимо уделить вопросу утепления окна по всему периметру и под подоконником с помощью монтажной пены. Старые штукатурные откосы лучше всего полностью демонтировать
Новый подоконник дополнительно укрепить путем укладки его на подушку раствора.
Специфика домов хрущевской эпохи
Малогабаритные дома строились в 60-80-х годах целыми микрорайонами и городами, вплоть до 90-х годов. В брежневские и перестроечные времена появились проекты улучшенной планировки. Но так называемые хрущевки, рассчитанные на 50 лет эксплуатации, так и остались основой городской застройки в РФ. Их активно убирают только в столице.

По регионам основной метод улучшения жилищных условий – капитальный ремонт хрущевки своими руками. Степень преображения зависит от «запущенности» квартиры и финансовых возможностей обладателей далеко не элитного жилья.
В те времена в массовое строительство внедрили ряд сходных проектов:
- Кирпичные 4-этажные дома на железобетонном каркасе.
- Панельные постройки из ж/б панелей с большим количеством несущих стен.

Модернизацию старых тесных квартир делают по-разному – от «косметического» до капитального ремонта. Некоторые проекты настолько удачны, что сложно угадать в престижной квартире с утепленным балконом и теплым полом бывшую «хрущебу», как это можно видеть в сети на фото.

Степень преображения варьируется:
- замена окон и ряд других мер по утеплению квартиры;
- выравнивание и облицовки поверхностей;
- ремонт с перепланировкой;
- частичный демонтаж простенков и перегородок с объединением площадей смежных комнат;
- переосмысление полезной площади через зонирование и присоединение утепленного балкона;
- частичный демонтаж стен и простенков в виде арок с установкой стеклянных перегородок;
- перенос межкомнатных дверей и сооружение дополнительных проходов, чтобы не было проходных комнат;
- активное использование визуальных способов расширения площади;
- ремонт ванной комнаты и кухни современными облицовочными материалами (предварительный демонтаж труб, ванны, раковины, мойки и унитаза) с установкой компактной сантехники.

Даже если ничего нельзя изменить в доме без лифта и мусоропровода, это можно с лихвой компенсировать внутренним обустройством с модным дизайном квартиры.


Для перепланировки понадобится разрешение БТИ и городского архитектурного надзора, чтобы снос стен не угрожал обрушению.

Если своими руками произвести качественную облицовку современным материалами, то выйдет недорого и красиво, как на фото ремонта в хрущевке.
Особенности зданий
Панельные пятиэтажки вовсе не были оригинальным изобретением, в них соединились тенденции, разработанные в Германии (компактные дома) и США (блочное домостроение). Строительство домов первых серий вместе с отделочными работами занимало примерно 50 дней, максимальное удешевление и ускорение строительства достигалось за счет небольшой толщины несущих стен. В конструкциях не было предусмотрено использование лифтов, поскольку считалось, что здоровый человек способен подниматься на пятый этаж и спуститься с него самостоятельно. Из части проектов убирались балконы, на кухни отводилось от пяти до семи квадратных метров.

Газобетон, керамзитобетон, несмотря на свою неплохую прочность, не обеспечивают приличного уровня звукоизоляции и слабо держат тепло. Кирпичные пятиэтажные здания способны прослужить 90-100 лет, однако, это достижимо только при условии качественного, своевременного капитального ремонта и технического обслуживания.

Улучшенная планировка – это наличие балконов, и другие усовершенствования, введенные в проекты хрущевского периода начиная с середины 1960-х годов и позднее (до прекращения такого строительства совсем в 1985 году). В большинстве случаев проектировщики уже заботились и о раздельных санузлах. Потолки в высоту могли достигать трех метров, хотя типичны все же невысокие, до 250 см. Проходные комнаты все равно присутствуют обязательно, это «родовая черта» всего жилья описываемой категории.

Угловые комнаты с двумя окнами – наиболее холодное место во всем доме зимой. Зато неоспоримым преимуществом такой недвижимости является приличная освещенность помещения.
Разделяющие смежные комнаты стены (перегородки) не отличаются особою прочностью. Потому использовать их для подвешивания тяжелых предметов и даже загруженных полок невозможно. Зато снос при выполнении перепланировки значительно упрощается и ускоряется.




Где искать проводку
Проводка в панельных домах прокладывается в специальных каналах внутри панелей. Они предусмотрены конструкцией плит. На рисунке ниже вы видите несколько примеров типовых расположений каналов.

Вы можете заметить, что каналы располагаются под углом, а не всегда вертикально или горизонтально ка принято считать. Кроме этих каналов возможна прокладка проводов в балках под потолком. Эти балки напоминают бордюры, выступающие над поверхностью стены в углу с потолочной плитой.
Проводка требует соединений, поэтому нужно найти и расположение распределительных коробок. Они могут быть открытыми – слегка выступать над стеной, тогда их содержимое скрывается за пластиковой крышкой, а могут быть и заштукатурены.
Интересно! В однокомнатной квартире может быть всего 1 распредкоробка, которая доступна без снятия обоев.
В этом случае чтобы найти распредкоробку придется не только снимать обои, но и возможно простукивать всю стену вдоль потолочного угла, пока не услышите характерный звук пустоты. После чего это место просто проламывается. То же самое делают и по потолку. О том, как найти распределительную коробку, мы подробно рассказывали в отдельной статье.
После того как вы найдете все коробки и розетки вы сможете оценить, как проложены провода. На рисунке ниже изображен внешний вид канала для проводки в нижней части потолочной распредкоробки.

Кстати, хрущевки можно разделить на два типа. Первый – это дома с несущими внешними стенами, то есть те в которых есть окна, а второй – с несущими внутренними стенами. В любом случае бетонные плиты – это силовая конструкция, а те, которые не выполняют несущей роли – они являются ребрами жесткости, подробнее об этом ниже.
Замена электропроводки в хрущевке требует хотя бы приблизительного знания где она может быть (где проходит кабель), а также знания типовых схем. Электрическая схема квартиры зависит от количества комнат. Обобщённо выходит следующая ситуация: в каждой жилой комнате есть 1 светильник и 2-4 розетки (в зависимости от площади), при этом в маленьких комнатах, порядка 10 кв. м. может быть и вовсе 1 розетка.
Ниже приведена подборка типовых решений разводки электропроводки хрущевок.
Для 1 комнатной квартиры:

Для 2 комнатной:

На видео ниже наглядно показывается, как найти проводку в хрущевке:
Согласование перепланировки
Следует заметить, что законодательство, регулирующее перепланировку жилья и иных помещений, было придумано не просто так. Малейшее изменение даже второстепенных стен, не говоря уже о несущих, способно привести к ужасным последствиям.


Ни одна несущая стена не может быть затронута при перепланировке даже в самой малой степени. Обнаружив ничтожное изменение ее, контролирующие органы с полным основанием наложат штраф или применят иные санкции
Важно учесть и иные тонкости, менее очевидные. Например:
- Запрещается действующими правилами расширять ванные, кухни и туалеты за счет жилых комнат (можно отнимать пространство только у технических помещений).
- Недопустимо расширение кухонь за счет санузлов.
- Если все-таки раньше кухню расширили, использовав жилую площадь, на ней не допускается установка сантехнических приспособлений и газовых плит.
- Кухни, оборудованные газовыми плитами, запрещено совмещать с жилыми комнатами (если нет промежуточных дверей).

Если вы хотите не снести несущую стену, а только лишь сделать в ней проем ограниченной величины, это допускается правилами. Но потребуется обосновать необходимость в таком решении, невозможность иного выхода из ситуации и безопасность планируемого отверстия. Обязательным условием разрешения на такую работу окажется инженерное обследование стены как в вашей квартире, так и на смежных этажах. Категорически запрещаются любые работы, которые усложнят доступ к общедомовым коммуникациям и устройствам, ими управляющим.

Ни одна перепланировка, даже считающаяся безопасной и допустимой, не согласуется в домах, стоящих в очереди на снос. Объединять балконы с жилыми комнатами и кухнями можно лишь там, где проекты позволяют монтировать раздвигающиеся перегородки. Нельзя подсоединять теплый пол к общим трубам горячей воды и отопления, поскольку это создает не предусмотренную изначально нагрузку и может вовсе нарушить баланс этих важных систем. Под запрет попадает также перекрытие вентиляции или перенос ее траектории.




Серия К-7
Каркасный 5-ти этажный многосекционный жилой дом. От данных пристроек отказались, чтобы удешевить конструкцию. В строительстве использовались панели, которые в основном облицовывали с помощью красного или белого неглазурованного кафеля.
Характеристика планировки
Отличительные признаки:
- Каждый этаж занимает 3 квартиры – однокомнатного, двухкомнатного и трехкомнатного типа.
- Также существует модифицированный проект, предполагающий четырехкомнатные планировки.
Схемы планировки хрущевки
Одной из конструктивных особенностей такого здания, является то, что оно часто не имеет балконов. Из-за этого хрущевка серии К-7 имеет форму прямоугольного параллелепипеда без выступов. Ниже представлены примеры внутренних планировок с фото с видом сверху.

На фото пятиэтажный дом-хрущевка серии К-7.

На фото план типового этажа.


Первые здания возведенные во времена Хрущева, имели смежно-изолированные помещения, в поздних застройках комнаты стали изолированные.
Плюсы и минусы
Положительные и отрицательные черты хрущевок.
| Преимущества | Недостатки |
|---|---|
|
Наличие раздельных санузлов даже в однушках. |
Внутренние стены нельзя сносить так, как они являются несущими. Это ограничивает перепланировочные решения. |
|
Плохие шумоизоляционные свойства. |
|
| Кухни более просторные примерно 7 кв м, в отличие от планировок других хрущевских застроек. |
Некачественная кровля, которая собирает конденсат. |
|
Внешние стенки и фундамент обладают низкой прочностью. |
Варианты перепланировки хрущевки
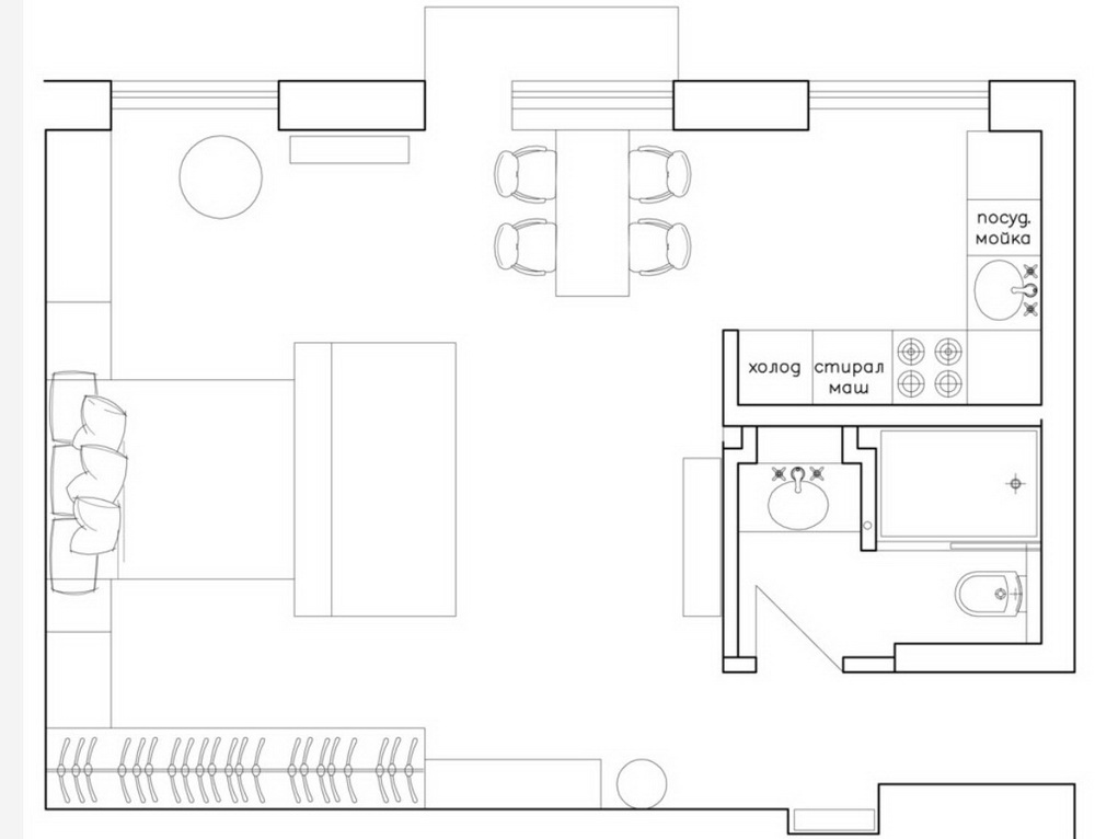
Объединение кухни и гостиной в двухкомнатной квартире позволит создать стильное помещение, в котором будут две зоны: рабочая и обеденная
Хозяйка, готовящая в таком кухонном «уголке», не будет чувствовать себя «обделенной» общим вниманием, посетившие вас гости хоть и станут участниками технологии приготовления праздничного стола, но смогут наслаждаться общей атмосферой уюта. Зато спальня будет по-настоящему изолирована, а гостиная – увеличена! Для спальни можно оставить пространство, необходимое только для двуспальной кровати и прикроватной тумбочки
Встроенные шкафы пусть находятся в коридоре. Таким образом, в гостиной легко разместятся диван и кресла, удобный стол со стульями и, возможно, сервант. Мебель и общий декор гостиной необходимо будет подбирать тщательно, строго придерживаясь выбранного стиля. Даже если вы предпочитаете некую эклектику (смешение стилей), лучше обратиться к услугам дизайнера, чей опыт поможет вам уберечься от самых распространенных ошибок, длительное время после перепланировки портящих всем настроение.
Если хозяева «двушки» – молодая семья, планирующая ребенка, даже из такого сравнительно небольшого пространства, как кухня можно сделать детскую, обеспечив тем самым вашего малыша необходимой изоляцией от окружающего довольно агрессивного мира.
Вряд ли стоит менять стиль каждой комнаты, лучше объединить сравнительно небольшие помещения одним стилем и добиваться отточенности деталей, создающих комфорт.

Оформление комнат
Выбор единого стиля для всех комнат – главное требование дизайнеров. Если придерживаться этого требования, можно получить красивое и функциональное жилое пространство.

Современные дизайнеры также делятся некоторыми секретами по оформлению малогабаритных комнат.

Поскольку кухни в хрущевках характеризуются малой площадью, при выборе кухонного гарнитура предпочтение нужно отдавать тем вариантам, у которых высота навесных шкафов является максимальной (до потолка). В этом случае удастся кухню сделать функциональной, в навесных шкафах будет больше места, в них можно разместить всю кухонную утварь.

При выборе отделочных материалов для кухни, гостиной и спальной комнаты предпочтение лучше отдавать светлым оттенкам. Они позволят зрительно расширить пространство, создать иллюзию высоких потолков.

В спальной комнате лучше устанавливать полноценные кровати, чтобы обеспечить здоровый сон. Вдоль одной из стен можно установить шкаф-купе для хранения вещей. В качестве альтернативы можно организовать в нише гардеробную.

В детской комнате рекомендуется использовать навесные шкафы для хранения вещей, которые не так часто используются.

Если в семье два ребенка, рекомендуется устанавливать двухъярусную кровать, которая позволит сэкономить пространство для игр и занятий.

Варианты перепланировок
Такие особенности многих, кто рассматривает вариант приобретения квартиры в хрущевке, отпугивают. Рассматривая реальные фото до ремонта без перепланировки и после, они не представляют, как можно превратить такое тесное пространство в стильную двухкомнатную квартиру в хрущевке с оригинальным интерьером.
На самом деле современные дизайнеры активно делятся креативными идеями, вооружившись которыми, можно до неузнаваемости преобразить внутреннее пространство квартиры.

Огромным преимуществом таких квартир является то, при проведении перепланировки огромных технических сложностей не возникает.

Внутренние стены в большинстве случаев не являются несущими, поэтому их можно разрушать и создавать новые в другом месте.
Вариант № 1
При осмотре квартиры многие хозяйки приходят в ужас от чрезмерной маленькой кухни, на которой очень сложно разместить даже самое необходимое.

Однако при желании эту проблему можно устранить, если снести стену между кухней и гостиной. В результате получается просторная кухня-гостиная и изолированная спальная комната.

При такой перепланировке удается:
- увеличить кухонное пространство;
- расширить гостевую зону;
- оставить одну, но изолированную комнату;
- получить много свободного места, на котором можно оригинально расставить современную мебель.


Вариант № 2
Многие приветствуют более смелые идеи, сопровождающиеся сносом всех внутренних стен, за исключением ванной и туалета.


В результате удается получить очень просторную квартиру-студию, оформление которой может быть разнообразным. Современные дизайнеры рекомендуют продумать варианты оригинального зонирования, которое может осуществляться при помощи:
- подбора отделочных материалов (например, в кухонной зоне кладут плитку, в гостиной – ламинат);
- легких перегородок.


Эффектно смотрятся квартиры, в которых между комнатами установлены легкие широкие раздвижные конструкции. При их полном раскрытии создается иллюзия квартиры-студии. При необходимости их закрывают, получая мгновенно изолированные комнаты.

Просторная квартира-студия без раздвижных конструкций и перегородок подойдет для одинокого человека или супружеской пары, у которой нет детей. Если же дети есть, такой вариант рассматривать нецелесообразно.

Вариант № 3
Если имеется желание кардинально все изменить, можно рассмотреть еще один вариант, который также предполагает снос всех внутренних стен. Только в отличие от предыдущего варианта, после снесения стен их возводят заново, но в другом месте. По сути осуществляется не снос стен, а их перенос.

Используя такой вариант перепланировки, удается оставить две полноценные комнаты в квартире, но при этом расширить какую-то часть в квартире, которая особенно в этом нуждается, например, кухню.

Важно только учитывать, что снос стен должен быть разрешен государственными органами. Без такого разрешения проводить перепланировку не только запрещается, но и опасно
Если по незнанию снести несущие стены, можно спровоцировать постепенное разрушение дома.
Список источников
- stroyday.com
- mainavi.ru
- designer-apartments.ru
- strojka-gid.ru
- vopros-remont.ru
- prof-kirpich.ru
- stroy-podskazka.ru
- samsmogy-remont.ru
- papamaster.su
- zdesremont.ru
- design-homes.ru
- samelectrik.ru
- uutvdome.ru
7 лестниц