d236e30cdb57d60c76fc18af0d6eab44.jpg

Есть проблема: трехкомнатная квартира в хрущевке

СОДЕРЖАНИЕ
0
231 просмотров
07 февраля 2020

Планировка «Книжка»: идеи оформления двушки

Она представляет собой квартиру из двух смежных комнат по 12 – 17 кв. м. (которые имеют одну общую стену), узкий коридор, ведущий к кухне (около 5 – 6 кв. м.) и проходящий мимо небольшого санузла (примерно 3 – 4 кв. м.). Балкон, как правило, выходит на одну из комнат.

На фото: типовой проект «книжки» – двухкомнатной квартиры в хрущёвке

Это самый популярный проект двухкомнатной квартиры в хрущёвках. 

Основной недостаток планировки – небольшой размер кухни, а также первая комната, являющаяся проходной. Вследствие этого она принудительно становится залом (гостевой комнатой), даже если у хозяев были другие планы на неё. 

Что можно изменить: 

1. Снос стены между двумя смежными комнатами. Разумеется, такое решение нужно согласовать в ЖЭК. Визуально двухкомнатная квартира увеличивается, и у владельцев появляется простор для фантазии. Удачной идеей будет зональное размещение функциональных зон: гостиная-спальня-кабинет либо детская-спальня-гостиная. Добиться этого можно при помощи перегородок, штор-нитей, точечного освещения, расположения мебели. Кабинет следует разместить около окна, в то время как кровать отлично встанет у противоположной стены без естественного света (понадобится дополнительное освещение).

На фото: размещение кабинета около окна в хрущёвке

2. Снос стены между комнатой и кухней. В этом случае следует разделить зоны при помощи кухонного гарнитура либо гостиной мебели. Такое решение позволит увеличить небольшую площадь кухни и создаст больше свободного пространства в доме.

На фото: объединённая комната и кухня

3. Изолирование комнаты. Первая комната является проходной, что не совсем удобно при проектировании интерьера. Её можно отделить с помощью новой перепланировки: удлинить коридор за счёт проходной комнаты и перенести двери. Таким образом, освобождается дополнительное пространство под систему хранения в прихожей.

На фото: прихожая для узкого удлинённого коридора в хрущёвке

Преимущества планировки современной трехкомнатной квартиры

Многочисленное строительство жилья повлияло на качество возводимых помещений. Сейчас в новостройках трудно найти проходные комнаты. Угловые комнаты в трехкомнатной квартире хорошо утепляют, поэтому они не отсыревают и являются теплыми. В них жильцы чувствуют себя комфортно. Увеличилась в размерах общая площадь «трёшек», ванная комната и кухня. Жилье имеет лоджию или балкон, кладовку. Внутренние перекрытия часто не несущие, и при желании сделать перепланировку помещения не составит труда.

Размеры потолков в современных «трешках» увеличились до 3 м. Есть свободная зона, которую нетрудно зонировать, увеличив тем самым функциональность комнаты.

Современные трехкомнатные квартиры удобны и рациональны. Подойдут практически любой семье и редко нуждаются в перепланировке.

Как оформить поверхности

Маленький метраж восполняем дизайнерскими хитростями.

  • Светлые отделочные материалы и для акцента небольшое количество темного. При этом освещение должно быть хорошим.
  • От крупных элементов декора (как и от громоздких мебельных предметов) необходимо отказаться в пользу стильных и оригинальных небольших вещиц (фото, маленькие подарки от родных и т.д.).
  • Используем зеркала для визуального расширения пространства.

В хрущевке 1 комнатной 31 кв м, планировка и дизайн осуществляются в светлых тонах (потолок белый). Если это натяжной, то рисунок неяркий. Паркетная доска, линолеум, ламинат светлых тонов используем для оформления пола. В прихожую и санузел кладем керамическую плитку. Стены отделываем светлыми обоями, декоративной штукатуркой, пастельными акриловыми красками.

Лучшим решением в данной ситуации будет стиль «минимализм», поэтому мебели не должно быть много.

Критерии оценки планировки при выборе жилья

Планировка 3-х комнатной квартиры (с размерами типовых проектов можно ознакомиться на фото ниже) оказывает существенное влияние на её выбор. Прежде всего, при выборе жилого помещения люди ориентируются на общую площадь, на параметры и форму кухни, площадь коридоров. Учитывают количество окон. Некоторым жильцам нравится, чтобы окна располагались по обе стороны здания.

Важным критерием является наличие лоджий и балконов, а также их количество. Учитывают проходные комнаты, несущие стены, толщину панелей, высоту потолков. Жильцы смотрят на удаленность квартиры от лифта и наличие определенных коммуникаций

При покупке жилья следует обратить внимание на соотношение общей площади помещения к жилой зоне, развитие инфраструктуры и серию планировки зданий

Типовые серии хрущевок: основные плюсы и минусы домов

В свое время это был выход для разрешения проблемы с жильем. Проекты предусматривали в основном пятиэтажные строения. План хрущевки был малогабаритным. Типовое отличие связано со строительными материалами:

  • кирпич;
  • панели.

Чтобы правильно спланировать зоны однокомнатной квартиры, потребуется выполнить перепланировку.

Возможность сэкономить привела к строительству панельных домов в 60-х годах прошлого столетия. Стремление обеспечить молодые семьи жильем – маленьким, но своим, оправдывало такие архитектурные решения, но на этом все преимущества таких творений заканчивается. Минусов хватает – компактность коридоров и лестничных клеток, отсутствие лифтов, отвратительная звуковая и теплоизоляция, неизолированность комнат, их маленькие площади, нависающие потолки. По проекту срок эксплуатации панелек составлял 25 лет.

Убирать перегородки необходимо только те, что можно снести без вреда для конструкции дома.

Брежневки

С середины 60-х до начала 80-х проектировались «тюнингованные» согласно введенным строительным ГОСТам жилые здания. Мусоропровод и лифт были обязательными, если речь шла не о пятиэтажках. Жилые комнаты изолировались. Кухни по-прежнему были маленькими. Изоляция отвратительная, панельные швы могли и разойтись. В 80-х планировку стали улучшать, увеличивая площадь квартир и этажность домов (до 10 этажей).

Оптимальным вариантом будет устранение перегородок, поскольку это позволит увеличить площадь комнаты и сформировать очень удобную и современную квартиру-студию.

Монолитные

Многоэтажность, разнообразие форм и быстрое строительство – плюсы монолитной строительной технологии. Планировки разные. Внутренние перегородки из газобетона и гипсоблоков. Каркас монолитный. Наружная стена выполняется из панелей, кирпича или пеноблоков.

Запрещено трогать несущие стены, вентиляцию и газопровод, а также располагать санузел над жилой комнатой или кухней соседей.

Плюс на минус

Второй заключается в том, что за полвека хрущевки показали себя как исключительно надежные и неприхотливые в эксплуатации дома. В них не бывает просевших, как в старом фонде, перекрытий. А в силу своих конструктивных особенностей пятиэтажные панельные постройки со сварными соединениями оказались постройками исключительно крепкими: в частности, на базе ленинградских пятиэтажек уже в 1970-е годы разрабатывали и строили дома для сейсмоопасных районов бывшего СССР.

И, наконец, уже всем, и не только агентам по недвижимости, известно, что ликвидность недвижимости определяется тремя признаками: местом, местом и еще раз местом. По мере роста мегаполисов основные территории хрущевской застройки превратились из городских окраин в обжитые и утопающие в зелени районы с развитой транспортной и социальной инфраструктурой.

Недостатки пятиэтажек первых массовых серий потенциальным покупателям также хорошо известны. В них нет лифта и мусоропровода. Из-за отсутствия чердака квартиры верхних этажей имеют обыкновение раскаляться летом и выстывать зимой. Не слишком комфортен из-за подвальной сырости и первый этаж (поэтому «крайние» квартиры всегда ощутимо дешевле).

Затянувшийся испытательный срок

Между тем из-за своей компактности хрущевки исключительно ремонтопригодны, а их модернизация способна решить все проблемы, кроме недостатка квадратных метров. В начале нашего века появились адресные программы санации городских пятиэтажек, предполагающие утепление фасадов и замену коммуникаций, позволяющие на неограниченный срок продлить жизнь хрущевкам. Типовой проект, предусматривающий модернизацию без расселения, был разработан ГУП «УКС Реставрация». В состав рекомендуемых работ входили косметический ремонт, утепление наружных стен, надподвальных и подкровельных перекрытий, вентиляционных блоков, замена балконных дверей и окон, оснащение приборами учета тепловой энергии. Однако к 2008 году работы по санации домов первых массовых серий были свернуты: для городского бюджета затраты оказались неподъемными, а для инвесторов – королевство маловато, не разгуляться.

Поэтому к заявлениям строителей, о том, что некоторые дома легче снести, а на их месте построить новые, есть смысл отнестись со скепсисом. Им, понятно, интереснее осваивать средства с размахом. Но не факт, что новые строительные технологии возведения экономичного жилья, а также дома эконом-класса, которые возводятся сегодня, так же успешно выдержат полувековой испытательный срок.

Особенности облагораживания многокомнатных хрущевок

В планировка двухкомнатной хрущевки появляется уникальная возможность создать отдельную спальную комнату, что будет являться своего рода персональной территорией.

Балконную часть также стоит по возможности задействовать, оборудовав на нем небольшой кабинет для работы, причем его площадь также по желанию можно увеличить.

Такая процедура потребует затраты сил и времени, так как предварительно необходимо создать проект по увеличению балкона и поучить согласие на его осуществление в соответствующих инстанциях.

Помимо дополнительного рабочего места можно в итоге поучить еще и отдельный выход на него со стороны кухонной части.

Существует несколько наиболее востребованных вариантов планировки хрущевок:

«Трамвай». В данном случае существует только один способ расстановки мебели (по периметру помещения), что представлено на фото планировки хрущевки, причем наличие балконного пространства будет крайне необходимо.

«Распашонка». Лучше воспользоваться созданием подиума небольшого размера. Который будет включать в себя ящики выдвижного характера.

В данном случае отлично впишутся напольные светильники и шкаф-купе. При желании можно увеличить размеры стандартного подоконника и тогда он без особого труда сможет заменить традиционный туалетный столик. Это даст возможность разместить все необходимые вещи в пространстве вашей комнаты.

Именно она и должна быть спальной, а вот пространство кладовки можно переделать, например, в гардеробную.

Так комната получится менее нагруженной в плане предметов мебели, соответственно, свободного пространства будет намного больше.

Планировка однокомнатной квартиры в хрущёвке

В квартирах 60-х годов, конечно, было не всё удобно: маленькие кухни- 6-7 кв. м, смежные комнаты, совмещённый санузел. Ко всему этому ещё и довольно низкие потолки, высотой от 2.45 м до 2.55 м. Если вы всё-таки стали обладателем такого раритета, то особого повода для беспокойства нет, так как на сегодняшний день есть вполне доступные способы превратить минусы этой квартиры в плюсы.

При помощи практичных идей можно преобразить «бабушкино наследство» в удобный и уютный уголок. Рассмотрим самую простую однокомнатную квартиру.

Стандартная планировка однокомнатной квартиры в хрущёвке

В квартире-хрущёвке с одной комнатой не удастся обустроить отдельную спальню. К сожалению, комната будет многофункциональной: и гостиной, и кабинетом, и спальной комнатой, и даже детской. От кроватей и прикроватных тумбочек тоже лучше отказаться. Но как тогда  сделать такую комнату уютной и хоть более-менее удобной?

Наиболее популярной считается диван-кровать, которая обладает самыми различными формами: «книжка», «раскладушка», диван-кровати, имеющие выдвижной механизм и с откидывающимися боковушками. Но, безусловное лидерство нужно отдать дивану гипертрансформеру. В нём отгибается почти всё, что есть – с лёгкостью можно убирать спинку, подлокотники, подушки и т.п.

Диван-трансформер

Кроме таких многофункциональных диванов, не обойтись и без раздвижных столов, стеллажей и лёгких полочек разных  видов. Удачным решением будут и раздвижные двери.  Вот, пожалуй, и весь основной ассортимент мебели для квартир подобной планировки.

Простой раздвижной стол

Сравнительно небольшая площадь вызывает нехватку пространства в квартирах с одной комнатой, а уж тем более в наших хрущёвках. Придётся приложить усилия для высвобождения каждого сантиметра  жилого пространства. Можно прибегнуть к такому приёму, как увеличение площади комнаты или санузла и кухни за счёт расширения коридора.

Остеклив и утеплив балкон, вы можете создать очень  удобное место. Еще лучше, если  эта зона станет жилой по заранее разработанному и утверждённому проекту. Можно поместить там, например, кресло-кровать.

Пример дизайна однокомнатной хрущёвки

Несколько удачных вариантов планировки Хрущевки

Такого типа дома в основном имеют пять этажей и их построение относится к далеким 50-ым годам. Те времена отличались нехваткой жилых помещений.

Поэтому была создана особенная система постройки многоквартирных типовых зданий. В основном для этого использовались специальные готовые блоки, так как это значительно сокращало временные рамки, выделяемые непосредственно на строительство.

Сама квартира имела очень маленькое кухонное помещение (не более 6 квадратных метров), смежные комнаты и общий (совмещенный) санузел.

Что касается однокомнатной хрущевки, планировка здесь сразу же исключает создание отдельной спальни. Здесь скорее комната будет выполнять сразу несколько важных и полезных функций. Главное грамотно подойти к разделению пространства на зоны.

Предметы мебели для планировки хрущевки лучше приобретать из класса трансформеров, причем к такой конструкции следует отнести даже двери.

Очень часто люди прибегают к увеличению комнатного пространства за счет коридора. Следует отметить, что имеет очень неплохая возможность застеклить и утеплить балкон, а при желании и возможности даже увеличить его площадь.

Таким образом появляется отличная возможность приобрести место для установки кресла-кровати.

Серия 1–507

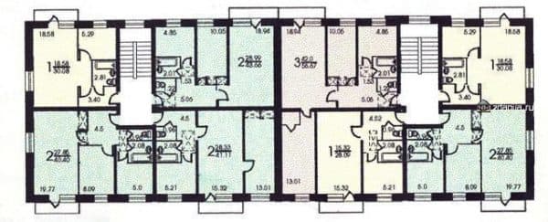
Это самая популярная и массовая серия серых пятиэтажных «панелек» в Ленинграде. Ее разработали в Ленпроекте в 1959 году, хотя на самом деле она является точной копией московской серии 1–515. Разница только в материале внутренних стен. Дома серии 1–507 считают одними из самых удачных вариантов всех построенных хрущевок.

Больше всего таких домов можно встретить на севере Купчино, в Веселом поселке и Ульянке. Самый крупный ленинградский квартал хрущевок 507 серии — вдоль Витебской железной дороги в Московском районе. Первые два подобных дома в городе построили 7 и 11 на улице Бабушкина.

Кухни в домах этого типа крошечные: от пяти квадратных метров в «однушках» до семи — в трех- и четырехкомнатных квартирах. Туалет и ванная раздельные, а вот комнаты в «двушках» и «трешках» — смежные. Площадь комнат варьируется от 8,6 до 18,3 кв. метра, а всей квартиры — от 30 до 72 кв. метров. Высота потолков всего 2,5 метра.

Серия 507 отличается большим набором модификаций. После того как первую партию пустили в оборот, инженеры задумались над улучшениями. Меняли в основном форму кровли, «подрисовывали» балконы и лоджии, играли с размером окон и формой рам. В качестве эксперимента построили семиэтажные хрущевки с внешними лифтами (шифр Э5-58).

Особенности серии и планировок

Всего в 1958–1969 годах было разработано и построено около пятидесяти модификаций типового жилья. Панельные многоэтажки возводились правительством страны для быстрого переселения людей из деревень в города. Особенностью хрущёвок являются малогабаритные квартиры, чем отличается также серия 1 511. Массово строились здания этого типа в Москве и Московской области. Общее число их – 1670. Дома легко узнать по симметричному расположению балконов с двух сторон от входной двери. Подъезд имеет козырек из железобетонной плиты.

Здания, построенные в концах 50-х и 60-х годов, различаются конструкцией кровли и планировкой. Есть разница в высоте потолков. В 1958 году для возведения стен использовали силикатный кирпич, позже – силикат-гидрогелиевый и семищелевой. Дома серии i 511 ранних версий имели четырёхскатную крышу с настилом из шифера или кровельного железа. Здания 1964–1969 годов постройки имели плоскую кровлю с двускатным уклоном и покрытием рулонной гидроизоляцией на основе рубероида. Другие особенности домов серии 1 511:

  • Совмещенные лестницы без общего противопожарного балкона.
  • Кирпичные несущие стены.
  • Толщиной 22 см межэтажные перекрытия, выполненные из железобетонных многопустотных плит.
  • Большой выбор вариантов перепланировки, возможность сноса межкомнатных стен.
  • Туалет и ванная в однушках совмещенные. Санузлы во всех квартирах с количеством комнат более двух – раздельные.
  • Высота потолков составляет 2, 78 м в домах 1958 года и 2,48 м в поздних версиях.
  • Вентиляция – естественная вытяжная.
  • Кухонные плиты – газовые.
  • Рядовой тип секций, число подъездов в доме – от 2 и более.
  • На площадке располагается 4 квартиры.
  • Отсутствие лифтов.

В большом количестве в домах серии 1 511 5 этажей, однако встречаются и 3-этажные здания. От других хрущёвок этот тип отличается кирпичными внешними стенами шириной 38–40 см. В таких домах хорошо сохраняется тепло, не слышен шум с улицы. Толщина межкомнатных стен – 8 см, сделаны они из крупнопанельного гипсобетона.

Однокомнатная квартира

Размеры однокомнатной квартиры серии 1 511 от 28 до 30 м2. Из них жилая – 15–19 м2. Площадь кухни от 5 до 6 м2. Санузлы совмещенные. Особенностями жилья является наличие кладовок и антресолей. Прихожая имеет размеры в пределах 3–4 м2.

Двухкомнатная

Общая площадь двухкомнатной – 44–48 м2, жилая – 28–32 м2. Размер кухни такой же, как и в однушках. Санузлы раздельные. Для экономии электроэнергии застройщики 1969 года делали окна между кухней, туалетом и ванной. Планировку хрущёвок принято считать неудобной, однако площади квартир ничем не отличаются от нормативных для жилых помещений в 2020 году.

Трёхкомнатная

В части домов типовой серии 1 511 в квартирах есть проходные комнаты. В трешках находятся два встроенных шкафа. Санузлы раздельные, в перегородках в ванную и туалет вмонтированы окна для экономии электроэнергии собственниками. Общая площадь трехкомнатной – 53–57 м2, жилая – от 38 до 42 м2. Размер кухни – 5–6 м2. В ранних версиях домов, как правило, высокий потолок (2, 72 м). В зданиях 1964–1969 года – стандартный (2,5 м). Балкон в большинстве случаев примыкает к гостиной проходной комнате.

Серия 502 (1-ЛГ-502)

Когда Обуховский и Полюстровский ДСК отказались от строительства провальных серий ОД и 1–335, в 1963 году приступили к возведению серии 502. Новое здание отличало от собратьев одно окно или балкон в торце здания. С 1973 года на этой стене умещали три окна и/или балкон посередине.

В парадной хрущевок этой серии помещается 15 квартир. В варианте дома с семью подъездами пришлось уменьшить площадь и без того крошечных квартир. Вместо привычных для хрущевской «трешки» 72 кв. метров теперь ленинградцы обитали на площади в 60 кв. метров. Однако в каждой такой квартире есть балкон.

Три окна или один большой балкон в центре торца

Еще одна отличительная особенность этой серии — двухкомнатные «квартиры-распашонки». В таком жилье кухня с совмещенным санузлом и прихожей находятся посередине, между жилыми комнатами. Помещения соединяются узким проходом, который «огибает» коробку ванной комнаты.

Дома этой серии (с одним окном в торце) — основа застройки Купчино. Несколько зданий есть в Щемиловке и на проспекте Науки. Когда в торец здания уместили три окна, обновленные дома стали строить в Веселом поселке и на Гражданке.

Реновация по-петербургски

Программу реновации в Петербурге реализуют уже почти десять лет с регулярными скандалами. В адресную программу в 2008 году включили 23 квартала, в которых часть домов необходимо снести. При этом собственникам квартир обещали переезд в новое жилье в пределах района.

Но весной 2017 года собственникам расселенных квартир передали всего 1,5% квартир от объема, запланированного на 2020 год, когда программа должна была завершиться. Реновация обернулась уплотнительной застройкой, про школы и сады застройщики забывали, а квартиры продавали по рыночным ценам, заплатив небольшие штрафы.

30 мая депутат закса Оксана Дмитриева опубликовала ответ вице-губернатора Игоря Албина на вопрос, распространится ли на Петербург московская программа реновации хрущевок. По мнению политика, эта мера преждевременна. Он также подтвердил, что петербургская программа по расселению хрущевок провалилась. По словам вице-губернатора, утвержденная в 2008 году, она закончится в январе 2020 года, при том что из запланированных 125 миллиардов потратили только 1,8 миллиарда рублей.

23 мая появилась информация, что инвестор петербургской программы по расселению хрущевок «СПб Реновация» собирается увеличить ее сроки до 2029 года. Предприятие обратилось с иском в Арбитражный суд. В заявлении компания попросила КИО изменить условия договора и продлить программу стоимостью 400 млрд на десять лет — до 2029 года.

Эксперт «Урбанистического диктанта» и директор института «Урбаника» Антон Финогенов считает, что у Петербурга должен быть свой путь «расправы» с хрущевками. Он предположил, что перечисленные выше дома можно не сносить, а перестраивать. Например, протестировать модель реконструкции с надстройкой верхних этажей — до семи или девяти. А микрорайонную застройку необходимо превратить в квартальную. По мнению директора «Урбаники», это даже не потребует больших бюджетных затрат. Но без сложной организации тут не обойтись — «проблему должно решать государство», искать компромисс, вестись на полную демократию.

Антон Финогенов считает, что главный вопрос с градостроительной точки зрения — как сделать качество среды и застройки значительно лучше хрущевской на долгую перспективу? В Москве при Лужкове снесли тысячи пятиэтажек, но при этом появились элитные анклавы или высокоплотная панельная 25-этажная застройка. В результате — больше пробок и проблем с социальной инфраструктурой, меньше парковок и зелени. Любой реновации нужен комплексный проект, публичное обсуждение. В противном случае это приведет к шлейфу конфликтов, который мы видим в Москве и Петербурге, подытожил эксперт.

Ксения Нестерова

Фото: wikipedia.org, domavspb.narod.ru, «Карповка»

реновация хрущевок, хрущевки

Ссылки по теме:

karpovka.com: 05.02.2020

Ранее застройщик обещал сдать к концу 2020 года два корпуса.

karpovka.com: 05.02.2020

Арендовать место в коливинге можно будет за 36 тысяч рублей в месяц.

karpovka.com: 05.02.2020

«Студия 44» и «Хвоя» попали в список из восьми финалистов конкурса.

karpovka.com: 05.02.2020

Последний раз такой мороз был в ноябре 2020 года.

karpovka.com: 05.02.2020

Но штрафовать не будут только тех, кто остеклил балкон до 11 января этого года.

Немного истории

Великая Отечественная Война разрушила многие города, поэтому сразу в послевоенный период главной задачей было обеспечить людям хоть какое-то жилье. Люди были согласны даже на общежития и бараки. Проходит несколько лет, и каждому рабочему человеку хочется получить уже собственное, отдельное жилье. Так появились стандартные пятиэтажные хрущёвки – довольно тесные и не всегда удачно спланированные квартиры, зато свои. Изначально планировалось построить их на сравнительно небольшой срок – 20-30 лет, исключительно для того, чтобы временно разместить людей, прежде чем удастся построить для каждого из них просторную и светлую квартиру. Увы, этому не суждено было сбыться.

Но спустя ещё несколько лет людям захотелось получить не только свои, но ещё и более просторные квартиры. К тому же усилился приток людей из деревень, где условия жизни были значительно хуже, чем в городах. Поэтому от строительства пятиэтажных зданий сразу перешли к возведению 8-9 и даже 12-16 этажных домов.

Именно они и получили название «брежневки», так как начали строиться с середины 60-х годов прошлого века.
Официально брежневками называют только квартиры в домах, построенных во время правления Леонида Ильича. Но на самом деле план строительства, иногда чуть измененный, а иногда и неизменный, широко использовался до середины 90-х. И даже сегодня инженеры не забывают об этих наработках, нередко используя их при строительстве.

Недостатки и достоинства квартиры в данной хрущевке.

Минусы квартиры и дома, которые я могу выделить, думаю применимы ко многим хрущёвкам:

  • малогабаритная квартира (очень маленькая кухня и санузел, маленькие комнаты);
  • возраст дома и, соответственно, инженерных коммуникаций более 50 лет;
  • ригели, проходящие через всю квартиру, передвинуть или демонтировать которые нельзя;
  • невысокие потолки;
  • внешний облик дома далеко не самый худший среди хрущевок, но хочется чего-то более современного;
  • подъезд и лестничная клетка небольшие и невзрачные, хотя довольно чистые;
  • отсутствие лифта (хорошо, что квартира находится на 2 этаже);
  • отсутствие мусоропровода.

Но также есть и свои плюсы:

  • кирпичные стены в полтора-два кирпича окружают практически со всех сторон от соседей, лестничной клетки и улицы (за исключением одной стены) — хорошая звукоизоляция, которая вряд ли присутствует в современных новостройках;
  • толщина полов вместе с перекрытием составляет более 30 см, что тоже создаёт неплохую звукоизоляцию;
  • наличие балкона (хоть и маленького);
  • все перегородки не несущие, их можно сносить и делать перепланировку по своему усмотрению, но в соответствии с законом и по согласованию с Мосжилинспекцией.

Новую планировку можно увидеть в статье «Новая планировка двухкомнатной хрущевки».

Чем отличается хрущевка от брежневки? Что лучше?

Сразу вывод: брежневка лучше хрущевки, но стоит дороже на пару сотен тысяч рублей. Почему? Читайте внизу.

  1. Чем отличается хрущевка от брежневки:
  2. Хрущевки – 3 или 5 этажей, брежневки, в отличие от них, насчитывают 8, 12 или 16 этажей;
  3. Хрущевки прекратили строить очень давно (неизвестно когда), брежневки — в середине 1990-х;
  4. В брежневках есть лифты,мусоропровод. И, к сожалению, они воняют.
  5. Высота комнаты в брежневке больше на 20 см;
  6. Площадь квартир в брежневках чаще всего больше (60 м², 30 м² и 50 м² против 25 м², 30 м², 43 м²).
  7. В отличие от хрущевок, в планировках брежневских домов есть варианты 3 и 4-комнатных квартир.
  8. Кухня в брежневке больше на 1-2 м², ее площадь нередко достигает в длину 7 м².
  9. В брежневке есть возможность увеличения кухни за счет коридора или соседней комнаты, так как стены к ним не являются несущими. Отличие хрущевки состоит в том, что такой возможности нет.
  10. Брежневки – более молодые дома (так как их строили до 1990-х годов). Их рыночная цена за счет этого — выше, чем у хрущевок.
  11. Хрущевки дешевле, чем брежневки и более доступны. При прочих равных условиях, разница в цене между хрущевкой и брежневкой составляет 200-300 тысяч рублей.
  12. У хрущевок лучше теплоизоляция и шумоизоляция, ведь их материал – кирпич.
  13. Брежневки чаще всего делаются из панелей, а хрущевки часто бывают из кирпичей.
  14. В брежневках холоднее, чем в хрущевках. В них применяется «знаменитое» отопление, идущее внутри стен.
  15. Отличие хрущевок в том, что углы в их комнатах чаще составляют 90 градусов, чем в брежевках.
  16. Брежневки отличаются от хрущевок тем, что в них стеклили балконы. Более того, эти балконы «внутри» дома.

Если вы думаете о том, что лучше купить, хрущевку или брежневку, то наши специалисты все-таки советуют выбрать брежневку, так как это жилье более ликвидно. Причем лучше выбрать более новый дом по году постройки.

Также изучите нашу статью про дефекты новостроек: http://elitearenda.ru/defekty-novostroek.htm.

Если вам необходима детальная консультация по инвестициям в жилые объекты, то обращайтесь в раздел по оценке эффективности инвестиций или звоните в нашу компанию по телефону: +7 (351) 750-49-71.

Итак, для начала рассмотрим вариант с однокомнатной хрущевкой

Для подобного типа квартиры характерна одна важная особенность. Дело в том, что создать одну только спальню не представляется возможным, поэтому комната будет универсальной, и она будет иметь гостиную, прихожую, личный кабинет, спальню. А по мере необходимости можно сделать еще и детскую комнату.

При этом в комнате должно быть все четко и максимально, компактно, удобно расставлено на своих местах, не должно быть ничего лишнего. По возможности установите в комнату кровать-трансформер, это весьма практично и удобно. Этот предмет интерьера способен сэкономить значительную площадь в помещении.

В помещениях подобного типа наблюдается нехватка свободного пространства, поэтому очень важно разработать варианты планировки. Многие дизайнеры решают эту задачу при помощи расширения других комнат, например коридора, что позволит незначительно увеличить жилую площадь в помещении.

А вот если очень серьезно заняться балконом, если его хорошо остеклить современными оконными рамами, а так же его хорошо утеплить, то можно получить вполне удобное и комфортное место для отдыха. При желании там можно установить небольшое кресло-кровать, на котором можно хорошо отдохнуть.

Что такое перепланировка и как ее оформить

Любое изменение конфигурации стен и перегородок в квартире считается перепланировкой. Что касается несущих стен, то их трогать нельзя вообще. Если имеются ненагруженные стены или перегородки, то здесь все не настолько серьезно, но составлять проект нужно обязательно, после чего его придется согласовать и лишь затем можно приступать к осуществлению задуманного.

При этом, существуют варианты переделок, которые не смогут согласовать ни при каких условиях:

Расширение площади таких помещений, как кухня, ванная и туалет возможно лишь за счет технических помещений. Над жилыми комнатами их располагать запрещается. В данном случае можно уменьшить площадь коридора, встроенного шкафа, прихожей и т.д. Поэтому, имеются спорные варианты некоторых перепланировок. На фото ниже указаны спорные зоны.

Обозначенный красным фрагмент практически находится в коридоре, но документы БТИ указывают, что это жилая площадь. Если в таком варианте подать документы на перепланировку, то их не возьмут. Чтобы не ссориться с законом, нужно сначала поставить перегородку, которая отгородит коридор и в таком виде подается проект на увеличение площади ванной.

Расширяя площадь кухни, нельзя делать:

  • Расширять за счет санузла.
  • В случае расширения кухни за счет жилой площади, то на кухне нельзя устанавливать сантехнические принадлежности и кухонную плиту.
  • Если на кухне имеется газ, то совмещать с жилой комнатой ее нельзя.

Этот пункт можно обойти, если установить двери любой конструкции, в том числе и раздвинутые или двери гармошку.

Планировка двухкомнатной квартиры в хрущёвках

Владельцам данной недвижимости в определенной степени значительно повезло в размерах, так как в таких квартирах есть комната, которая способна называться спальней. Так же при желании и наличии денег, можно увеличить и площадь балкона.

При этом такое решение необходимо согласовать с соответствующими инстанциями. В конечном итоге балкон может быть переоборудован под личный кабинет или небольшую уютную комнату отдыха.

Немаловажное значение при планировке двухкомнатной хрущёвке имеет расположение кровати и ее окружающее обустройство необходимыми для жизни бытовыми предметами.

Поскольку кровать имеет весьма внушительные габариты, то соответственно она на четверть занимает место в спальне, при этом необходимо еще и обустроить комнату, например, установить шкаф-купе, а также поставить маленькую прикроватную тумбочку

Однако важно следить за тем, что бы в комнате было удобно и свободно перемещаться.

Нюансы оформления интерьера в однокомнатной хрущевке

План однокомнатной квартиры 31 кв м хрущевки предполагает комфорт с одновременной экономией пространства – навесной телевизор, к примеру. Большие холодильники заменяем на горизонтальные модели. В дизайне стремимся к простоте и минимализму, привлекая в жизнь современные технологии.

Для небольшой однокомнатной хрущевки требуется максимальное количество света, поскольку таким образом вы сможете визуально сделать квартиру просторнее, объемнее и уютнее.

Интерьер для семьи с ребенком в однокомнатной хрущевке

Гостиная зона является основной – здесь можно разместить два кресла и раскладной диван (превращающийся в спальное место на ночь). Ребенок должен быть обеспечен полноценной детской зоной (до 10 кв. м.), отделенной перегородкой. Рабочему кабинету оставляем один-два квадрата. Окно делает кухонную зону светлой. В оформлении добавляем отличные от основных материалы. Санузел совмещаем, убирая перегородку. Ванну заменяем душевой кабинкой.

Используйте современные стильные модели светильников, которые можно устанавливать на потолке или на стенах.

Малогабаритная квартира не слишком удобна для жизнедеятельности семьи с ребенком. Но, используя современные строительные технологии и дизайнерские решения все неудобства можно свести к минимуму, сделав жилье благоустроенным и комфортным для всех.

Если есть такая возможность, делайте размеры окон как можно больше – добиться этого получится за счет уменьшения расстояния между двумя окнами.

Особенности планировки

Если хрущёвки в большинстве случаев имели крайне небольшой размер, то планировка брежневки была продумана значительно лучше.

пример планировки четырехкомнатной брежневки

Значительно увеличилась площадь жилья. Стандартными стали следующие размеры:

  • 1 комнатная квартира – 22-31 кв. м;
  • 2 комнатная квартира – 42-45 кв. м;
  • 3 комнатная квартира – 48-56 кв. м;
  • 4 комнатная квартира – 58-70 кв. м.

Изменился и вид самих зданий. Как уже говорилось выше, они подросли с 5 этажей до 9 и даже до 16 – это позволило с минимальными затратами заселить большое количество людей.

Высокие здания были оборудованы мусоропроводами и лифтами, что сделало жизнь обитателей куда более приятной и удобной.

Совмещенные санузлы частично ушли в прошлое. На лестничных площадках можно было увидеть как четыре, так и три квартиры. В первом случае использовались совмещенные санузлы, а во втором – раздельные, благодаря чему комфортность проживания в квартирах существенно возросла.

Площадь конкретных помещений также возросла – в одних случаях (кухни и коридоры) несущественно, а вот в других (жилые комнаты) весьма заметно. Например, если кухня имела почти такую же площадь, как в хрущёвках (6-7 метров), то площадь гостиной составляла более 17 метров, а спален и детских – более 8 метров.

Разумеется, такие перемены были с удовольствием встречены новыми владельцами квартир. Например, двухкомнатная брежневка имела примерно такую же площадь, как и трехкомнатная хрущёвка.

пример планировки двухкомнатной брежневки

Серьезным плюсом можно назвать и такую особенность планировки, как наличие большого количества изолированных комнат. То есть комнат, не предусматривающих возможность сквозного прохода.
Поэтому можно с уверенностью заявить, что брежневки определенно были улучшенным вариантом хрущёвок.

Список источников

  • stroyday.com
  • dizainmetrov.ru
  • dizainexpert.ru
  • www.syl.ru
  • Proekt-sam.ru
  • zdesremont.ru
  • skedraft.ru
  • news.ners.ru
  • karpovka.com
  • elitearenda.ru
  • design-ud.net
  • topdizajn.ru

Похожие статьи

Комментировать
0
231 просмотров

Если Вам нравятся статьи, подпишитесь на наш канал в Яндекс Дзене, чтобы не пропустить свежие публикации. Вы с нами?

Adblock
detector