Изготовление
В магазинах продаются аппараты для окуривания мяса, однако если вам не хочется тратиться, мы дадим советы, чтобы вы знали, как сделать коптильню в домашних условиях.

Изготовление такой конструкции станет интересным и увлекательным занятием, ведь есть немало вариантов и способов. Аппарат делают из различных материалов. Мы предлагаем рассмотреть самые простые варианты.

Из бочки или ведра
Сделайте коптильню из железной бочки: это решение наиболее доступное. Для начала отрежьте днище емкости, закрепите на ней решетку (или арматурные прутья) на 2-х уровнях.

Внизу поставьте поддон. В самом верху на крюках подвешивают продукты. Чтобы сделать коптильню, подойдет ведро из металла. Вставьте внутрь 2 нержавеющие решетки.

Одну из них ставят на расстоянии 10 см над дном, а другую – 5 см выше от другой сетки. На днище ведра насыпьте до 2 см щепок. На решетку уложите птицу или рыбу. Теперь накройте мини-коптильню крышкой и поставьте на огонь.

В ведре можно окуривать продукты: они будут готовы 15 мин. спустя после того, как появится дым. Уберите ведро с отрытого огня и подождите, пока оно остынет.

Такая конструкция работает без электричества, так что она хорошо подойдет для выездов на природу или вечерних пикников на даче. При этом вы сможете сэкономить электроэнергию.

Ведро не займет много места. Однако коптильня, установленная на огонь, может быть опасна при неправильной эксплуатации.

Если вы будете неправильно ей пользоваться, то можете получить ожог или травму. Не прикасайтесь к ведру или бочке, когда горит огонь, поскольку металл быстро накаляется.
Из старого холодильника
Часто люди отвозят старую бытовую технику на дачу. Холодильники ставят в сараях или хозяйственных кладовых и хранят в них разную мелочь. Однако из них получаются практичные коптильные установки.

Мастера дают советы о том, как сделать коптильню своими руками из холодильника. Выньте все, что есть внутри и оставьте саму основу с дверцей. Вверху проделайте отверстие, куда будет выходить дым.

На стенках с внутренней стороны холодильника закрепите 9 уголков (по два на каждом уровне).

На 2-х уровнях в верхней части закрепите решетки, повесьте крючки и планочки. Зафиксируйте уголки внизу, чтобы закрепить поддон для стекающего жира. В другой поддон закладывают опилки.

Коптильня горячего копчения будет сделана своими руками и готова к работе, когда вы поставите электроплиту. Плиту устанавливают в нижней части холодильной камеры, а на нее – емкость со стружками. Плотно закройте дверцу, чтобы воздух не поступал в середину.
Из нержавеющей стали
Чтобы сделать надежную коптильную камеру, выберите прочный металл – нержавеющую сталь. С виду такая конструкция похожа на короб. Во внутренней части приваривают уголки для двух металлических решеток.

Коптилки этого типа туристы могут брать в поход. Для окуривания возьмите мелкие поленья деревьев лиственных пород либо стружки.

Уложите кусочки сала или дичи на сетку, затем закройте короб и закрепите над огнем. Первая порция будет готова через 20 мин.

Из кирпича
Такую стационарную коптильню устанавливают на приусадебных участках. Найдите место для гостевой зоны в своем саду и подготовьте площадку для ее установки.

Параметры камеры вы определяете сами. Как и в других случаях, выберите дерево для окуривания. Чтобы жечь дрова в стационарной конструкции устанавливают печку-буржуйку, ее устанавливают снаружи, а не в самой камере.

Затем устанавливают трубу между печкой и коптильной. Когда вы будете проводить строительные работы, следуйте инструкции, спросите совета у мастера.

Достаньте рабочие перчатки, проверьте, исправны ли инструменты, в каком состоянии находятся материалы. Будьте осторожны при использовании коптильни, учтите рекомендации.
Вариант №1. Изготовление коптильни без использования сварочного аппарата
Преимущество способа в том, что вам не потребуется сварочный аппарат. Первоначальным этапом работы является зачистка поверхности бочки.
Совет. Используйте защитные средства, чтобы частицы пыли не попали в глаза и дыхательные пути.
Производим разметку на боковой стороне бочки и при помощи болгарки отрезаем часть. Это будет люк будущей коптильни. Как разрезать бочку, это дело каждого. Можно вырезать небольшой прямоугольный люк или разрезать бочку пополам. Все зависит от выбранного вами варианта и чертежа.

Бочка для изготовления коптильни
- По бокам необходимо прикрепить полосы, которые будут фиксировать крышку и не дадут ей провалиться внутрь. Подойдут металлические ленты от другой бочки или специально купленные планки.
- Далее, переходим именно к тем самым опорам. Их следует выгнуть по форме бочки и прижать специальными зажимами. Просверлить отверстия под заклепки и заклепать их.

Крепление люка и фиксирующих полос для него
- Процедура выполняется два раза, с обеих сторон конструкции.
- Следующий шаг – крепление петель для люка. Используйте ту же технологию, что и для опор люка, т. е. прикрепите петли при помощи заклепок. Сначала испробуйте манипуляции на одной стороне, а затем повторите с другой.

Крепление петель для люка коптильни
- Затем крепится ручка к люку. Можно использовать старые экземпляры, снятые с холодильника, шкафа или прочей мебели. Необходимо просверлить отверстия и на винты зафиксировать ручку.
- Делаем дымоход. В качестве материала для этой детали можно использовать любые трубы или фитинги. Главное, чтобы они хорошо крепились при помощи болтов, т. к. этот способ изготовления коптильни не предусматривает использование сварки.

Дымоход изготавливается из трубы подходящего диаметра
- Дело осталось за малым – установка внутренностей коптильни. Понадобится монтаж опор и направляющих для решетки. Выберите подходящее положение для креплений и просверлите отверстия сбоку. Вставьте опоры.
- Обработать поверхность бочки можно следующим образом: зажечь огонь внутри и дать обгореть краске, пройтись щеткой и удалить остатки гари. Затем обезжирить поверхность и покрыть краской, устойчивой к высоким температурам.
- Раму-держатель можно собрать из металлических уголков и скрепить посредством болтов.


Готовая коптильня, изготовленная без применения сварочного аппарата
Из двух металлических бочек
Вертикальная или горизонтальная коптильня горячего копчения своими руками из бочки считаются эффективными и функциональными. Более практичным является агрегат, собранный из двух емкостей, одна из которых служит топкой, другая – камерой для продуктов.
Схема и чертежи
Схематическое изображение такой коптильни напоминает букву Т: топка располагается вертикально, камера – горизонтально. По сути, такая установка – комбинация горизонтального и вертикального варианта коптилен. Чертеж включает основные составляющие: дверцы топки, крышку камеры, дымоотвод. Возможно создать более совершенный вариант. Приваренная сбоку полочка сделает установку более практичной. На ней удобно размещать посуду или продукты. На схеме стоит указать расположение фильтра, разделяющего топку и емкость с едой, чтобы предотвратить загрязнение пищи. В крышке может быть предусмотрен врезной термометр.
Самое главное – правильная разметка
Изготавливая установку горячего копчения своими руками, важно подумать про удобство эксплуатации. Поскольку в качестве топки используется отдельная большая емкость, то дверцу для загрузки топлива и поджига можно сделать большой
Чтобы конструкция была вырезана правильно, следует предварительно очистить бочки от старой краски, сделать разметку мелом или маркером и произвести распил лобзиком.
Соединяем воедино обе конструкции
Бочки схватываются сваркой. При работе с емкостями из тонкого металла, лучше использовать электроды небольшого диаметра, что поможет избежать деформации. Для обеспечения идеального прилегания двух деталей предварительно на бумаге делается рисунок полукругов верхней бочки в натуральную величину. Они прикладываются к вертикальной емкости, и делаются вырезы с помощью лобзика. Перед соединением следует проверить края, чтобы они были ровными, без заусениц.
Изготовление крышек
Крышка вырезается в верхней части горизонтальной бочки. Срезается около 80% поверхности. Для соединения ее с основанием используют петли. Чтобы обеспечить плотное прилегание, лучше обрезать элемент не полностью, а только с трех сторон. Четвертая срезается после подсоединения петель. Для исключения температурной деформации дверца усиливается по периметру металлическим уголком или полоской, вырезанной из листового металла. По аналогичной схеме можно укрепить и дверцу топки.
Дорабатываем топку
Нюансом является ее непосредственное соединения с коптилкой, из-за чего продукты горения могут попасть на продукты и испортить вкус или внешний вид. Для исключения данного явления используется самодельный фильтр, который устанавливается на стыке двух емкостей. В качестве фильтрующего элемента используют мешковину или мокрую ткань, способную задержать продукты горения, смолы и канцерогены.
Шлифовка и покраска
Окончательный этап – шлифовка и покраска. Правильный подход позволит сделать коптильню горячего копчения из бочки не только практичной и функциональной, но и эстетически привлекательной. После сборки поверхность покрывается краской. Лучше выбирать для этого термостойкие составы. Цвет может быть любой, но практичным считается черный, поскольку на нем меньше видны следы копчения. Чтобы обеспечить надежное сцепление краски с поверхностью, сварочные швы и поверхность коптильни зачищаются.
Для каких продуктов подойдут данные коптильни
В коптильне из бочки, сделанной своими руками возможно приготовить всевозможные деликатесы из:
- куриного, свиного, говяжьего, кроличьего мяса;
- овощей и фруктов;
- грибов;
- рыбы;
- орехов;
- сыров и колбасных изделий.
При обработке из продуктов удаляются патогенные микроорганизмы, поверхность становится золотистой, пища приобретает копченый вкус и аромат дымка. Хранить такие продукты можно короткое время. Что касается размеров помещаемых в коптилку блюд, то все зависит от размеров конструкции. При использовании 200-литровой бочки, удастся закоптить даже крупные тушки и большое количество целых рыбин.
Самодельный дымогенератор для коптильни
Если на участке нет возможности разместить полноценную топку и длинный дымовой канал, для получения дыма пригодится дымогенератор. Это компактное устройство не требует много места, а изготовить конструкцию можно из подручных средств — старого огнетушителя, консервной банки, отрезка трубы большого диаметра. Еще понадобятся более тонкие трубки для дымохода, компрессор (можно аквариумный), штуцер, емкость для сбора конденсата.
Простейший дымогенератор состоит из элементов:
- корпус, где происходит тление щепы без доступа воздуха;
- дымовая труба;
- система охлаждения.

В нижней части емкости размещается колосник для щепы, пространство под ним используется для накопления золы. Доступ нужного для горения воздуха осуществляется через нижнее отверстие с заслонкой.

Устройство дымогенератора
Посредством патрубка устройство присоединяется к дымопроводу. Для регулирования подачи дыма предусматривается эжектор в виде подвижной трубки, вставленной в патрубок.

Опилки укладывают в емкость и разжигают через нижний клапан. Дым, проходя по трубке, частично очищается и подается в коптильную камеру. Движение газов активизируется с помощью компрессора.

Вопросы по топливу
Чтобы копчение в бочковом АХК приносило положительные и изумительные результаты и вкуснейшие блюда, а не горстку углей, уделяйте серьёзное внимание виду применяемого топлива и температуре. Грамотно сооружённый аппарат, благодаря герметичности рабочей ёмкости, позволяет достичь необходимых температурных режимов
Грамотно сооружённый аппарат, благодаря герметичности рабочей ёмкости, позволяет достичь необходимых температурных режимов.
Как уже было замечено, горючее здесь должно тлеть, а не воспламеняться. Здесь поможет сырьё от древесины. Оно перед применением немного смачивается. Если оно будет с большим содержанием влаги, еда просто сварится.
Только благодаря разумному количеству влаги блюда получают нужный вкус.
Топливо – это сырье от подходящей древесины. Если вы желаете получить блюда с хорошим качеством и вкусом, не следует применять сырьё от хвойных пород. Из него при копчении выделяются смолы. Они пропитывают продукт и портят его вкус и запах.
Лучшими вариантами считаются материалы от фруктовых деревьев. Часто применяют яблоневые, вишнёвые, грушевые опилки.
Можно применять дубовое, липовое и ольховое сырьё. Можно сочетать виды сырья, чтобы добиться изысканного вкуса блюд.
Дым – ключевая составляющая. Его в бочке удерживают её герметичность и тяга.
Опилки в очаговую зону добавляются постепенно, ориентировочно по 100 граммов. Там они должны распределяться равномерно.
Золу требуется устранять. Если в аппарате устроен фильтр, необходимо проводить его замену через каждые 4-5 часов.
После каждого применения аппарат тщательно моется и сушится. В иной ситуации жир и копоть негативно отразятся на вкусовых свойствах продукта.
Угли периодически удаляются из очага. Они только препятствуют движению дыма.
Коптильня на базе бочки из дерева, даже хорошо обработанной защитными препаратами, всё равно нуждается в усиленном контроле. Она обязательно должна находиться на металлическом листе.
Изготовление коптильни холодного копчения из бочки
Поскольку конструкции коптилен из 200 литровой бочки бывают разными, рассмотрим некоторые из них.
Простая коптильня
Прежде чем начать изготовление коптильни, рекомендуется сделать наброски, т.е. нарисовать чертеж. Уже по нему можно будет выполнить разметку на грунте. Разметочные работы проводят при помощи рулетки, колышков и шнура.

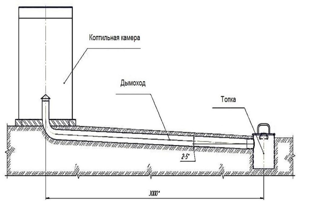
В том месте, где планируется поставить бочку, в землю вбивают колья таким образом, чтобы образовался квадрат. Его размеры должны быть меньше диаметра бочки на 20 см. Со стороны примыкания дымохода отмеряют около 50 см: этот отрезок должен располагаться посередине стороны. После разметки, точки входа дымового канала отмечают кольями.

В ту сторону, куда выходит канал из квадрата, отмеряют 3 м и забивают колышек. Параллельно этой разметке делают вторую, которая будет служить второй стенкой дымового канала. Затем размечают топку. Ее размеры могут быть такими: длина около 60 см, а ширина на 30 см больше ширины дымового канала. После разметки колья соединяют шнуром.
В остальном конструирование коптильни состоит из следующих шагов:
- Земляные работы. По линиям разметки выбирают грунт, углубляясь на 40 см.
- Выравнивание и уплотнение. Если на участке почва супесчаная, т.е. не плотная, стенки вырытых углублений укрепляют металлом либо досками. Также можно использовать кирпич либо камень.
- Обустройство верхней части топочной камеры. Чтобы была возможность регулировать процесс горения и тления стружек, над топкой монтируют заслонку. Для этих целей подойдет кусок листового металла, которым накрывают топку. Для удобства верх топки выкладывают в виде двух рядов кирпича.
- Подготовка емкости. Бочка должна позволять укладывать продукты, как на решетку, так и подвешивать их на крюки. Для последних часто берут изогнутую проволоку. Решетку используют исключительно металлическую. Для установки решетки внутрь бочки можно поместить 2 ряда кирпичей либо просверлить отверстия и закрепить 4 болта, на которые будет опираться решетка. Для подвешивания крючков монтируют пруток из арматуры.
- Монтаж бочки. Емкость устанавливают таким образом, чтобы между ней и краем дымохода не было зазоров, например, ставят бочку прямо на землю и заделывают щели грунтом.
- Герметизация дымохода. Сверху дымового канала укладывают доски либо металл и засыпают землей.
С дымогенератором
В последнее время для холодного копчения все чаще используют дымогенераторы – устройства, которые вырабатывают готовый дым для копчения. Подобные приспособления можно как приобрести, так и изготовить самостоятельно.

Устройство
Коптильня с дымогенератором представляет собой два отдельных узла – камеру для копчения и непосредственно источник дыма. В отличие от предыдущей конструкции, генератор располагается возле бочки, т.е. устройство получается более компактным.

Изготовление дымогенератора
Дымогенератор сделать довольно просто. Для него понадобится металлическая труба диаметром около 60 мм и длиной около полуметра. Из нее изготавливают так называемый «стакан»: одна сторона трубы делается герметичной, другая – более узкой. Также предусматривают резьбу для муфты.

Сборка коптильни
Чтобы собрать дымогенератор и бочку в единое устройство, в нижней части емкости приваривают муфту с резьбой диаметром около 40-60 мм: к ней будет подключаться дымогенератор. Внутри бочку можно оснастить аналогично предыдущей конструкции.

Для установки бочки подготавливают основание, например, в виде листа металла.
Дымогенератор наполняют щепой и подсоединяют к бочке через муфту. В емкость помещают продукты и накрывают ее сверху влажной мешковиной. Остается распалить щепу и можно приступать к копчению.
Из бочки и металлической топки
Для такой конструкции понадобятся:
- бочка;
- уголок;
- квадратная и круглая труба;
- прут.

Для печки используется металл толщиной 4 мм, что исключит прогорание материала.
Собственно процесс изготовления:
- Нарезаем квадратную трубу и свариваем подставку для бочки.
- Из металлического листа, уголков, квадратной и круглой трубы изготавливаем печку.
- Чтобы конструкцию можно было использовать для холодного и горячего копчения, соединительную трубу делаем разборной.
- К бочке закрепляем отрезок трубы для стыковки с печкой (вариант для горячего копчения) либо дымоходной трубой для холодного копчения.
- Из прутьев изготавливаем элементы для подвешивания крюков с мясными и рыбными продуктами. На эти же прутья можно будет укладывать решетки.
- В бочке делаем отверстия и помещаем в них штыри.
- Изготавливаем крышку для печки.
Изготовление первого варианта
Самым быстрым вариантом сборки коптильни из бочки своими руками признан вертикальный агрегат. Сооружается он из бочки 200 литров. Такие емкости применяются для хранения машинного масла и подобных жидкостей, поэтому перед основными процессами следует тщательно очистить бочку путем обжига. Сделать коптильню горячего копчения такого типа лучше по чертежу, поэтому предварительно стоит подготовить проект или воспользоваться готовыми идеями.
Что необходимо
Кроме 200-литровой бочки, для изготовления коптильни горячего копчения потребуется подготовить:
- металлическую арматуру;
- листы металла разной толщины;
- трубу.
Из приспособлений потребуется:
- болгарка;
- сварка;
- рулетка;
- маркер или карандаш для разметки.
Некоторые инструменты можно заменить, но данный набор считается самым простым. Указанные приспособления имеются практически у всех.
Чертежи и схема
На схеме коптильни отображается расположение основных элементов:
- внешних: топка, крышка, ручки, дверца, дымоотвод;
- внутренних: топка, поддоны, решетки, крючки.
Важно на чертежах отобразить размеры будущей коптильни горячего копчения, чтобы конструкция была приспособлена к приготовлению мелко нарезанных продуктов и целых рыбин, тушек
Разметка и распиловка
- Поскольку бочка запаяна с двух сторон, следует срезать верхнюю часть. Чтобы срез вышел ровным, потребуется очертить края мелом или маркером. Далее проводится разметка, распиловка следующих деталей:
- Дверца проделывается в 5 см. от дна бочки. Минимальный размер – 20-25 см. Возможно сделать более крупную дверь. С помощью петель вырезанный элемент крепят на место, что дает возможность беспрепятственно открывать/закрывать топку.
- В дне бочки просверливаются отверстия для притока воздуха в топку.
- Из листа металла подготавливается круглая деталь, диаметром чуть меньше бочки. Она необходима для отделения топки от камеры с продуктами. Крепится круг на 25 см. выше дна с помощью сварки.
- Напротив дверцы высверливается отверстие для дымохода.
Изготовление крышек и ручек
Обязательно следует приварить рукоятки к дверцам и крышке коптильни горячего копчения из бочки. Дополнительно ручки размещают по бокам коптилки для удобства транспортировки. Агрегат достаточно массивный, обычно является стационарным, поэтому боковые рукоятки не обязательны.
Коптильню из бочки необходимо загерметизировать. Гидрозатвор и правильно сделанная крышка справятся с этой задачей. Работы выполняются в следующей последовательности:
- Из листа металла вырезается полоска толщиной 5 см, по длине равная окружности бочки.
- Вырезанная полоска приваривается в верхней части бочки под углом 45°. Полученный желоб является гидрозатвором, куда будет наливаться вода.
- Из листа металла вырезается крышка коптильни. Ее диаметр должен быть больше, чем бочка на 1 см.
- Из листового металла вырезается полоска шириной 10 см, по длине равная окружности крышки.
- Подготовленная полоса приваривается к крышке. Она будет заходить в гидрозатвор и обеспечивать герметичность конструкции.
Отсутствие такого гидрозатвора в коптильне горячего копчения из бочки приведет к утечке дыма, изменению температуры внутри камеры, что может повлиять на результат копчения. Для контроля температурного режима встраивается термометр.
Доработка топки
Отверстия в днище бочки помогают не только обеспечивать эффективное тление, но и удалять золу. Чтобы приток воздуха был максимальным, а продукты горения свободно высыпались наружу, следует соорудить ножки. Материалом для их изготовления послужит металлическая арматура. Оптимальная высота от земли – 30 см. Лучше не приваривать ножки к коптилке, а сделать своеобразную подставку для обеспечения большей устойчивости коптильни горячего копчения из бочки.
Изготовление подставки
Для начала делается подставка под топливо, которое помещается внутрь бочки. Следующим этапом считается установка емкости для стекающего с продуктов жира. Установив на дно приспособление на специальных ножках, удастся предотвратить затухание щепы, а также упростить процесс очистки коптильни.
Эксплуатации и уход за самодельной коптильней
Приступая непосредственно к процессу копчения, нужно сначала приготовить продукты. Для этого, предварительно засоленные и замаринованные продукты нужно обернуть марлей, для того, чтобы защитить их от возможного попадания копоти и грязи. Затем поместить меньшие кусочки на противень, а большие развесить на крючках. Прикрыть верх бочки плотной крышкой и хорошо обмотать мокрой мешковиной, что не дает дыму быстро уходить из коптильной камеры. Мешковина должна быть влажной все время пока идет процесс копчения.
- Разложив ровным слоем опилки в дымовой камере можно разжигать костер в печке.
- Растопку начинают с малого количества, постепенно увеличивая до полной загрузки.
- Для копчения нельзя использовать сырые дрова. Они горят медленно и образуют много сажи, которая может оседать на продуктах. Лучшие всего использовать сухие дрова. Они хорошо и жарко горят, а значит, быстрее начнется процесс копчения. Опилки для образования ароматного дыма нужно брать обязательно лиственных пород: лучше вишню, яблоню, грушу, можно граб, бук, ясень, ольху. Можно также использовать можжевельник. Он придает продуктам красивый цвет и замечательный аромат.
- О том, что процесс копчения начался, будет свидетельствовать дымок, который в некоторых местах все же может просачиваться из коптильной камеры.
- Коптильню нельзя перегревать. Температура не должна быть слишком высокой, иначе это может сказаться на качестве готового продукта. В начале копчения происходит процесс подсушивания, поэтому температура не должна быть выше 90 градусов. При самом процессе копчения она допускается не выше 120 градусов. Регулировать температуру можно самостоятельно добавляя или уменьшая количество дров в топочной камере.
- Время копчения продуктов зависит от желаемого результата (горячее или холодное копчение) и величины продукта.
- Чем больше температура и суше воздух, тем быстрее происходит процесс копчения продуктов и тем качественнее и вкуснее они будут. Если копчение производилось правильно, то на поверхности продукта образуется красивая корочка, прекрасно сохраняющая его.
- После завершения процесса копчения копченостям необходимо дать остыть в подвешенном состоянии несколько суток при температуре 10−120С.
Уход за такой коптильней не составит большого труда. После каждого копчения нужно промыть решетку и прутья, на которых коптились продукты, и почистить внутреннюю часть коптильной камеры. Вычистить остатки опилок из печки.
Конечно же, копчение дело не простое, но знания приходят с опытом. И если конструкция получиться удачной, то вкусные и приятные продукты, приготовленные своими руками, будут хорошей наградой за труд.
Список источников
- stroim-dom.net
- nashgazon.com
- mainavi.ru
- kakpravilnosdelat.ru
- 1pokopcheniyu.ru
- coollifehack.ru
- edaTuristu.ru
7 лестниц