Применение бутового бетона
Бутобетон практически не имеет технологических отличий при устройстве конструкций от традиционного монолитного. Разница заключается лишь в более крупном заполнителе, укладываемом отдельно от бетонной смеси. Поэтому такой тип фундамента предпочитают любители строить своими руками.
Процесс заливки бутового фундамента
Каменное заполнение выкладывается рядами высотой до 30 сантиметров и на всю ширину фундамента. После чего заливается бетонная смесь или песчано-цементный раствор чуть выше уровня забутовки.
Очень важно тщательно заполнить все пустоты между камнями бетоном. Иногда последовательность работ иная
В небольшой слой бетона или раствора, высотой до 15 сантиметров, утапливаются элементы забутовки. Выбор приемов зависит от конкретных обстоятельств и размеров материала. Для осадки смеси и распределению ее по пустотам придется применять только штыкование, так как работе вибробулавы будут мешать крупные бутовые элементы. Это снижает технологичность и увеличивает трудозатраты, но позволяет выполнить работу своими руками.
Уход за свежеуложенным бетоном осуществляется так же, как и при обычном монолите. Требуется либо защита от промораживания, либо орошение водой в период схватывания.
Схема устройства бутового фундамента для забора
Материалы для опалубки
Для изготовления опалубки для ленточного фундамента применяются разнообразные варианты материалов. Однако при выборе нужно учитывать основные требования, предъявляемые к опалубочным системам, именно они определяют необходимость использования определенных материалов:

- Сопротивляемость на изгиб. Допустимый прогиб щитов при заливке бетонной смеси не должен превышать 2 м.
- Жесткость. Элементы, из которых собрана конструкция, должны быть качественно соединены между собой.
- Гладкость щитов. Перепады по уровню на поверхностях щитов не должны быть более 2 мм. Такие же требования предъявляются и к местам соединений щитов.
- Точность геометрии. Материал щитов не должен быть склонен к перекашиванию при контакте с влагой.
Металл
Металл – подходящий материал для опалубки ленточного фундамента. Но применяют его, в основном, в профессиональном строительстве, поскольку он довольно дорогой. Для сборки форм применяются листовой прокат толщиной до 2 мм.

Этот материал позволяет изготавливать формы сложных конфигураций, например, полукруглые. Опалубка из металла может быть съёмной и несъемной. В последнем случае, арматура приваривается к опалубочным формам, что увеличивает прочность конструкции.
Железобетон
Использование железобетонных плит для опалубки под фундамент также требует дополнительных финансовых затрат. В зависимости от толщины плит при выполнении заливки можно сократить количество бетонного раствора.
Наличие стационарной железобетонной опалубки позволит сохранить прочностные показатели отливаемой конструкции даже при уменьшении толщины основной детали. Недостатком варианта является внушительный вес плит, из-за чего возникает необходимость применять грузоподъемную технику.

Пенополистирол
Пенопластовая несъемная опалубка под ленточный фундамент — практичный вариант. Собираются формы быстро, поскольку они имеют небольшой вес и их легко перемещать вручную. Кроме того, этот материал отлично выполняет функции теплоизолятора.
К недостаткам стоит отнести не безупречность с точки зрения экологии, все же пенополистирол – материал искусственного происхождения. Еще один существенный негативный момент — материал при нагревании выделяет токсичные вещества, что крайне опасно при пожаре.
Древесина
Планируя сделать опалубку для фундамента своими руками, многие выбирают в качестве материала древесину. Это доступный и легкий в обработке материал. Из досок и бруса сколачивают щиты, затем нужно будет герметизировать щели и подготовить распорки.

Из дерева изготавливают переставную опалубку, для создания несъемных форм этот материал непригоден.
Подручные материалы
Для изготовления опалубки для ленточного фундамента своими руками могут быть использованы и подручные материалы. Как правило, применяется листовой материал. Например, профлист или шифер. Единственным преимуществом такого решения является её дешевизна, а вот недостатков немало, в частности, это:
- сложность сборки, скреплять между собой листы шифера совсем непросто;
- низкие показатели сопротивляемости нагрузки;
- необходимость установки большого количества дополнительных распорок.

Виды разборно-переставных опалубочных конструкций
Существует три основных вида разборно-переставной опалубки, разновидность выбирается в зависимости от поставленной задачи.
- Мелкощитовая. Считается наиболее универсальной, небольшие размеры щитов позволяют собирать разнообразные формы, причем многие конструкции могут быть собраны без применения спецтехники. Широко используется в частном и профессиональном строительстве.
- Крупнощитовая. Этот вариант конструкций используется для возведения массивных сооружений. Преимуществом конструкции является быстрота сборки, так как используются щиты большой площади. Для установки необходимо использование спецтехники.

Блочная. Для сборки конструкций используют не плоские щиты, а объемные блоки. Блок-формы бывают разных размеров, поэтому конструкции могут собираться вручную и с использованием грузоподъёмных кранов.
Мелкощитовая опалубка
Название мелкощитовой инвентарной разборно-переставной опалубке дали из-за размера её основных элементов – щитов, максимальная площадь одного элемента не превышает 3 квадратных метров.
При этом вес элемента не превышает 50 килограммов, что позволяет монтировать формы вручную, силами строительных бригад. Этот вид широко применяют при строительстве:
- частных домов;
- колонн;
- фундаментов;
- проведения перепланировок в квартирах с установкой дополнительных перегородок и пр.

Несмотря на скромные размеры, конструкции, собранные из элементов, отличаются прочностью, они выдерживают давление до 0,5 Па. Кроме того, эта разновидность является практически универсальной, она позволяет:
- собирать пространственные блоки;
- строить большие формы, за счет соединения щитов;
- собирать конструкции для создания ступенчатых элементов.
В комплектацию входят:
- несущие каркасы щитов;
- палубы из стали или фанеры, которые крепятся на каркасы;
- распоры для регулировки пространственного положения;
- крепеж – винты, замки, скобы и пр.

Крупнощитовая опалубка
Для возведения крупных сооружений используется крупнощитовая опалубка, её основное отличие заключается в габаритах щитов. Их размер варьируется от 3 до 20 квадратных метров, поэтому данная разновидность применяется, в основном, в профессиональном строительстве.
Если мелкощитовые формы можно монтировать вручную или краном, то крупнощитовую опалубку устанавливают только с применением строительной техники, поскольку вес элементов существенный. Комплектация этого вида не отличается от комплектации мелкощитовых форм, исключением является лишь то, что вместо распоров используются специальные домкраты.

Подъемно-переставная опалубка
Этот вид опалубки похож на крупнощитовую, но имеет отличия в конструкции. В состав входят:
- внутренние и внешние щиты в форме прямоугольников и трапеций;
- несущие кольца;
- опорные рамы;
- аппараты радиального движения внешней части.

Формы используются для возведения объектов переменного сечения. После застывания нижнего яруса, конструкцию из щитов поднимают, наращивая высоту и изменяя её сечение путем частичного разбора. Таким образом, установку опалубки чередуют с выполнением заливки, что позволяет причислить эту разновидность к переставным моделям.
Технология возведения коробчатого основания
Для начала следует провести на участке комплекс подготовительных работ – снять верхний грунт, убрать строительный мусор и выкорчевать старые деревья и кустарники, а также удалить растительность, мешающую строительству объекта.
При необходимости можно провести работы по вертикальной планировке участка, это поможет засыпать все ямы и срезать бугры.
Рытье котлована следует начинать после разметки будущего фундамента, для чего в углах по периметру конструкции выставляют колышки. По установленным кольям протягивают бечевку, которая поможет визуально определить контуры будущего фундамента.
На подготовленное и слегка утрамбованное основание котлована можно застелить геотекстиль, что поможет изолировать заглубленные конструкции от сырости и проникновения влаги.
Рекомендуем посмотреть видео о том, как производится монтаж конструкции коробчатого основания.
Подсыпка из песка и щебня выполняется на дне котлована, оба слоя инертных материалов укладывают послойно с выполнением тщательного уплотнения. Поверх песчано-щебеночной подушки укладывают утеплитель, идеально подходят листы экструдированного пенополистирола.
Армирование и заливка бетоном
Опалубку для заливки плиты можно изготовить из дерева, влагостойких фанерных листов или использовать многоразовые металлические щиты, которые необходимо предварительно тщательно очистить от наплывов бетона и грязи.
Опалубку устанавливают по периметру плитной конструкции, после чего укладывают в нее арматурный каркас
Очень важно, чтобы оголенные пруты каркаса не выступали на поверхность конструкции. Для лучшего покрытия каркаса бетонной смесью конструкцию приподнимают на отрезках деревянных брусков или металла
Посмотрите видео, как производится установка опалубки для дальнейшей заливки.
Бетонирование плиты желательно выполнить за один раз, для чего заливка бетона начинается одновременно с противоположных сторон конструкции. Непрерывно поступающий бетонный раствор следует своевременно разравнивать, проводя уплотнение смеси в опалубке с помощью вибротрамбовок.
Монтаж вертикальных ребер и верхней плиты
Ленточный пояс может быть возведен любым способом: заливка ленточного ребра из монолитного бетона, монтаж из сборных элементов или готовых облегченных конструкций. В этой статье рассмотрим возведение конструкции из плит полистирола толщиной 40 см, что значительно удешевляет строительство, и уменьшает вес самого фундамента коробчатого типа.
Плиты размерами 1х1 м устанавливаются с расстоянием 10 см, после чего можно приступать к изготовлению и установке каркаса верхней плиты.
После монтажа каркаса выполняется опалубка и заливается верхняя монолитная плита, при устройстве которой можно предусмотреть укладку необходимых элементов для теплого пола.
Особенности устройства ростверка
Фундамент под относительно легкие конструкции может выполняться в виде ростверка. При этом основные опоры, на которых устанавливаются колонны или стойки забора, заливаются на глубину промерзания.
Чертеж для монтажа ростверка фундамента
В зависимости от применяемого типа бетонирования они выполняются как бетонный или бутобетонный ленточный фундамент. Участок, выполняемый в виде ригеля или фундаментной балки, закладывается на глубину в 0,5–0,75 метра.
Такое решение позволяет распределить вес на основные фундаментные опоры, при этом предохранив элементы ростверка от морозного пучения грунта. Высота всех элементов фундамента выводится под проектную отметку, определенную для этого участка ограждения. Ростверк не стоит делать из бутобетона, так как его невозможно армировать. Бетонирование элементов фундамента одной высоты следует проводить одновременно как опорной части, так и ростверковой.
Пример монтажа ростверка фундамента для забора
Армирование
Ленточный фундамент для забора работает в достаточно сложных условиях. Прежде всего, по причине своей протяженности и из-за отсутствия поперечных элементов. Поэтому высока вероятность появления трещин и деформаций в основании, которые могут привести к разрушению ограждающей конструкции сооружения. Хотя это требование нельзя считать обязательным, но, если есть возможность и желание, лучше его реализовать.
Оптимальным вариантом армирования будет установка двух поясов из арматуры диаметром от 12 миллиметров, с шагом в поперечном направлении в 100–150 миллиметров. Продольную арматуру следует перевязать через 30–40 сантиметров поперечными стержнями. Армирование ростверка необходимо как в средней части, для восприятия изгибающих нагрузок, так и в местах примыкания к столбчатым фундаментам. Армирование следует рассчитывать с учетом нагрузки на ростверк. Но минимальным требованием можно считать использование трех арматурных стержней диаметром 12 миллиметров в среднем и нижнем сечении и трех стержней того же диаметра длиной около метра — в верхнем, в местах примыкания ростверка к заглубленной части фундамента.
Выполняя армирование своими руками, не забывайте требования по обеспечению защитного слоя бетона. Толщина его от внешней грани любого бетонного элемента до наружной поверхности арматуры не должна быть менее пяти сантиметров. Опалубка элемента определяет его внешнюю грань, контроль зазоров проводится до начала бетонирования. В процессе заливки фундамента при необходимости производится установка закладных элементов.
Гидроизоляция
Фундамент под ограду с кирпичными столбами не требует устройства обмазочной гидроизоляции, в отличие от фундаментов зданий. Хотя если она будет сделана, хуже не будет, бетон меньше подвергнется воздействию грунтовых вод. А вот вертикальную гидроизоляцию между бетонным основанием и кирпичными или блочными стеновыми элементами сделать нужно обязательно.
Для нее можно использовать один-два слоя гидроизола, рубероида или аналогичного материала. Выбор определяется разницей цен на них. Установка гидроизоляции выполняется по слою битумной мастики.
Инструкция по монтажу опалубки
Выше приведена общая инструкция по монтажу опалубки любых конструкций. Но при сборке форм для фундамента, стен и перекрытий существуют особые нюансы, о которых обязательно нужно знать.
Фундамента
При монтаже опалубки для ленточного фундамента часто используют щиты, сделанные из досок или фанеры. Именно эти элементы принимают на себя основную нагрузку, оказываемую бетонным раствором.
От того, насколько правильно будет выполнена сборка опалубки для фундамента, зависит прочность и срок службы всего здания, поскольку фундамент является его основой. Прежде чем начинать устройство фундамента, необходимо провести ряд подготовительных мероприятий.

На начальном этапе необходимо ознакомиться с требованиями проекта, кроме того, необходимо принять во внимание климат. Проводить работы, желательно, при положительных температурах, то есть поздней весной или летом, когда заморозки маловероятны
Если планируется строить самый распространенный вариант опалубки из досок, то порядок действий должен быть таким:
- на подготовленной площадке производится обозначение углов заливаемого фундамента. К этим брускам будут крепиться остальные элементы;
- замеряется расстояние между брусками и в зависимости от полученных результатов, собираются щиты из досок;
- сколачивают щиты при помощи брусков, которые должны оставаться с внешней стороны форм;
- щиты изготавливают в двух экземплярах, так как эти элементы устанавливают друг напротив друга;
- проводится герметизация щитов, кроме того, проводится обработка их внутренней поверхности, она должна быть максимально гладкой;

щиты устанавливают между угловыми брусками, надежно скрепляя элементы друг с другом. С внешней стороны их укрепляют путем установки укосов. Шаг расположения этих элементов зависит от толщины фундамента и составляет от 0,5 до 1 метра. Внутри щиты скрепляют путем установки стяжек.
внутреннюю часть собранных опалубочных форм выстилают плотной полиэтиленовой пленкой либо рубероидом, крепится гидроизолирующий материал саморезами. Это поможет избежать вытекания раствора через щели. На дно форм рекомендуется насыпать щебень или песок, чтобы жидкость из раствора не слишком быстро впитывалась в грунт;

перед заливкой раствора необходимо еще раз проверить горизонтальность и вертикальность установленных элементов.
Стен
При сборке опалубки для возведения стен технология проведения монтажа мало отличается от технологии сборки форм фундамента. Используют две разновидности стеновых опалубок:
- мелкощитовая – собирается из относительно небольших щитов из ламинированной фанеры или пластика. Это оборудование подходит для постройки небольших объектов, например, малоэтажных домов;
- крупнощитовая – отличается наличием щитов большой площади. Используется для постройки больших объектов, например, многоэтажных домов.

Расстояние между щитами зависит от толщины стен. При сборке форм следует учитывать необходимость оставления проемов для окон и дверей. Разбираются щиты после полного застывания бетонного раствора.
Перекрытий
При монтаже опалубки перекрытия горизонтальные формы собирают на высоте. Вариант монтажа зависит от того, какая запланирована высота потолков. Чаще всего, применяются конструкции на телескопических стойках, их можно использовать, если высота перекрытий не превышает 4,5 метра.

В нижней части стоек для устойчивости монтируются треноги, а в верхней – крепятся универсальные вилки. Эти вилки используются для крепления несущих балок, поверх которых укладываются поперечные балки.
Поверх балок настилается горизонтальная часть формы – палуба. А по её периметру устанавливаются вертикальные бортики, их высота зависит от проектной толщины перекрытий.
Несъемной
Монтаж несъемной опалубки производится проще, чем сборка переставных форм. Для сборки неразборной опалубки выпускаются специальные блоки из вспененного полистирола. Намного реже используются другие варианты материала – железобетон, арболит, металл.

Блоки из пенополистирола устанавливаются на предварительно подготовленное основание. Если это опалубка стен, то их ставят на готовый фундамент, покрытый слоем гидроизоляции. Блоки насаживаются сверху на выступающие из фундамента пруты арматуры. Боковое соединение смежных блоков происходит за счет имеющихся на них креплений.
Итак, монтажные работы по сборке опалубки – это крайне важный этап возведения здания. От качества выполненных работ напрямую зависит не только внешний вид отливаемой конструкции, но и её прочностные характеристики
Поэтому к проведению монтажа необходимо отнестись с особым вниманием и тщательно выполнять все технологические требования
Комплектующие для установки и фиксации опалубки стен, фундаментов и колонн

Стяжка опалубки
Щиты опалубки стен и фундаментов собираются и закрепляются в правильном положении стяжными комплектами. Стяжной комплект изготавливается из высокопрочной стали и включает в себя стяжной болт диаметром 17 мм, литую гайку и шайбу. Длина болтов варьируется от 800 до 6000 мм.
Иногда вместо стяжного комплекта используют пружинный зажим (клипсу), болт здесь заменяет арматура диаметром 6-10 мм, для закрепления зажима применяется специальный ключ. Для установки и фиксации опалубки колонн стяжным комплектом служит шкворень в сборе с гайкой и шайбой.
Выпускаютсякомплектующие опалубкидля фиксации вертикально установленных щитов в нужном положении. Это подкосы винтовые и телескопические, одноуровневые и двухуровневые. Их рабочий диапазон от 2,4 до 14,3 м. Винтовые подкосы применяются при работе на высоте.
Монтаж-демонтаж
Р°Ã·Ã±Ã¾ÃÂýþ-ÿõÃÂõÃÂÃÂðòýðàþÿðûÃÂñúð ÿþûÃÂÃÂøûð ÃÂòþõ ýð÷òðýøõ ÿþ ÿÃÂøÃÂøýõ ÃÂõÃÂýþûþóøÃÂõÃÂúøàþÃÂþñõýýþÃÂÃÂõù. âþ õÃÂÃÂÃÂ, ôûà÷ðûøòþÃÂýÃÂàÃÂðñþàÃÂÃÂõñÃÂõÃÂÃÂàüþýÃÂøÃÂþòðÃÂàÃÂøÃÂÃÂõüàýð ÃÂðñþÃÂõü ÃÂÃÂðÃÂÃÂúõ, ð ÿþÃÂûõ ÷ðÃÂòõÃÂôõòðýøàþÃÂûøòúø ÿÃÂþø÷òõÃÂÃÂø õàôõüþýÃÂðö àÿõÃÂõýþÃÂúþù ýð ÃÂûõôÃÂÃÂÃÂøù ÃÂÃÂðÃÂÃÂþú. ÃÂûàþñûõóÃÂõýøàüþýÃÂðöýþ-ôõüþýÃÂðöýÃÂàÃÂðñþàñÃÂûð ÃÂð÷ÃÂðñþÃÂðýð ÃÂÿõÃÂøðûÃÂýðàÃÂøÃÂÃÂõüð úÃÂõÿõöõù: ÃÂÃÂþñàÃÂþõôøýøÃÂàôòð ÃÂøÃÂð ò ôûøýàøÃÂÿþûÃÂ÷ÃÂÃÂÃÂÃÂà÷ðüúø, ÿðÃÂðûûõûÃÂýþõ úÃÂõÿûõýøõ þÃÂÃÂÃÂõÃÂÃÂòûÃÂõÃÂÃÂàÿþÃÂÃÂõôÃÂÃÂòþü òøýÃÂþò.

ÃÂþýÃÂðö-ôõüþýÃÂðö ÃÂð÷ñþÃÂýþ- ÿõÃÂõÃÂÃÂðòýþù þÿðûÃÂñúø
31.10.2016
III Опалубка ОЭС-80
Опалубка применяется для бетонирования крупноразмерных вертикальных
конструкций, главный образом, промышленного и энергетического строительства; может
быть применена для возведения гражданских зданий.
Опалубка состоит из модульных щитов, каркасной конструкции. Каркас щита
выполнен из гнутых профилей, палуба – из фанеры или металла.
Элементы опалубки, их характеристика и назначение приведены в табл. 5.
Чертежи основных элементов приведены на – .
Конструкция щитов позволяет устанавливать их в любых сочетаниях. Тяжи
инвентарные, устанавливаемые в специальных пластиковых трубках, облегчающих их
извлечение. Неиспользуемые отверстия для пропуска тяжей закрываются
пластиковыми пробками.
Возможность монтажа как отдельными щитами, так и панелями позволяет
применять опалубку при различной технологии возведения конструкций. Возможность
изменения монтажных схем с установкой щитов как в вертикальном, так и в
горизонтальном положении, а также применение доборов позволяет использовать
опалубку для возведения различных по размерам и конфигурациям (в т.ч.
модульных) монолитных конструкций.
Технико-экономические
показатели
Приведенная
масса (в зависимости от материала палубы) -52
– 65 кг/м2
Оборачиваемость-300
раз
Средняя
трудоемкость работ-0,35
чел.-ч на 1 м2
Опалубка изготавливается Киевским заводом
экспериментальных конструкций Минэнерго СССР и применяется на стройках
Министерства с 1980 г.
Проект 524.00.000 разработан ин-том Оргэнергострой Минэнерго СССР
(113105, Москва, Варшавское ш., 17).
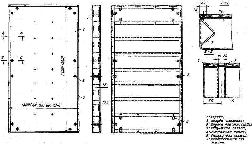
Таблица 5
|
Элементы опалубки |
Обозначение |
Габаритные размеры, длина, м |
Назначение |
|
1 |
2 |
3 |
4 |
|
Щит |
ЩК 2,4×1,2 ЩК 2,4×0,9 ЩК 2,4×0,8 ЩК 1,2×0,6 ЩК 1,2×0,3 |
2,4×1,2 2,4×0,9 2,4×0,8 1,2×0,6 1,2×0,3 |
Формообразующий |
|
Щит |
ЩуК ЩуК |
2,4×0,3×0,3 1,2×0,3×0,3 |
Для образования внутренних |
|
Монтажный уголок |
1МУ 2,4 1М 1,2 |
2,4×0,132×0,132 1,2×0,132×0,132 |
Для образования |
|
Щит металлический |
ЩМ 2,4×1,2 ЩМ 2,4×0,9 ЩМ 2,4×0,6 ЩМ 1,2×0,6 ЩМ 1,2×0,3 |
2,4×1,2 2,4×0,9 2,4×0,6 1,2×0,6 1,2×0,3 |
Формообразующий |
|
Щит металлический |
ЩуМ ЩуМ |
2,4×0,3×0,3 1,2×0,3×0,3 |
Для образования |
|
Монтажный уголок |
2Му 2,4 2Му 1,2 |
2,4×0,123×0,123 1,2×0,123×0,123 |
Для образования |
|
Зажим |
1Кд |
0,13×0,16 |
Для навески |
|
2Кд |
0,26×0,136 |
Для соединения |
|
|
Тяж с конусом |
3Кд |
Д=60×180 мм |
Для крепления |
|
Схватка |
Сх 1,6 |
1,6×0,18 |
Для увеличения |
|
Кронштейн-подкос |
Кп |
1,1×0,9 |
Для устройства |
|
Лестница |
Л |
2,2×0,54 |
Для доступа на |
|
Настил |
Н |
1,99×0,8 |
Устройство |
|
Ключ |
– |
0,18×0,08×0,28 |
Монтажный |
|
524.00.000 |
Крупнощитовая опалубка |
Лист 81 |
|
Общий вид |
||
|
|
|
524.00.000 |
Крупнощитовая опалубка |
Лист 82 |
|
Щиты комбинированные ЩК |
||
|
|
|
524.00.000 |
Крупнощитовая опалубка |
Лист 83 |
|
Щит угловой ЩуК |
||
|
|
|
524.00.000 |
Крупнощитовая опалубка |
Лист 84 |
|
|
Монтажные уголки 1Му и |
|||
|
|
|||
|
524.00.000 |
Крупнощитовая опалубка |
Лист 85 |
|
Щиты с металлической |
||
|
|
|
524.00.000 |
Крупнощитовая опалубка |
||
|
Щиты угловые с металлической палубой ЩуМ |
2,4×0,3×0,3 1,2×0,3×0,3 |
||
|
|
|||
|
524.00.000 |
Крупнощитовая опалубка |
|
|
Зажимы |
||
|
|
|
524.00.000 |
Крупнощитовая опалубка |
Лист 88 |
|
Лестница. Тяж с конусом |
||
|
|
Технологические аспекты
По конструкционным особенностям и типовым характеристикам крупнощитовая опалубка является сборной конструкцией, усиленной ребрами жесткости по вертикали и горизонтали. Целевое предназначение заключается в обеспечении условий для формирования массивных вертикальных поверхностей.
Способность комплекса крупнощитовой опалубки выдерживать значительные нагрузки, делает актуальным её применение в различных областях строительства помимо домостроения. Используя дополнительные элементы можно создавать очень длинные, высокие и широкие конструкции, отличающиеся прочностью, долговечностью и т.д.

Благодаря использованию крупнощитовой опалубки можно создать очень длинные, высокие и широкие конструкции
В современных крупнощитовых опалубках учитывается фактор эргономики, то есть все компоненты системы в совокупности обеспечивают простоту монтажа /демонтажа конструкции, без ущерба для качества готовой отливки. Также элементы опалубки стойки к агрессивным факторам среды, контакт с жидким цементным раствором также не причиняет значительно вреда.
Высокая вариативность размеров щита (до 3 м в высоту), способность выдерживать значительные нагрузки, минимальный прогиб и превосходный показатель оборачиваемости (до 500 циклов для каркаса и до 80 циклов для палубы) – делают крупнощитовую опалубку востребованной во всех областях современного монолитного строительства.
Показатель оборачиваемости крупнощитовой опалубки
| Тип и материал опалубки (палубы) | Оборачиваемость для формообразующих/несущих элементов конструкции (в оборотах или метрах перемещения) | ||
|
1 класс (не менее) |
2 класс (не менее) |
3 класс (до) |
|
| Крупнощитовая: | |||
|
фанера для стен |
80 |
60 |
60 |
|
дерево, пластик |
30 |
20 |
20 |
|
сталь, алюминий |
300/400 |
200/250 |
200/250 |
Список источников
- svoizabor.ru
- ravchan.ru
- files.stroyinf.ru
- opalubka-expert.ru
- fundamentaya.ru
7 лестниц







