Как нивелировать недостатки узких комнат
Какой владелец хрущёвки не знает, как трудно бывает обставить узкую длинную комнату. А тут весь дом имеет такую форму, и в нём вполне могут оказаться непропорционально вытянутые помещения.
Несколько советов, как обратить недостаток в достоинство и красиво распланировать пространство:
Противоположные стены могут как зрительно сузить, так и расширить помещение. Значит, длинные стены нужно делать более светлыми, а торцевые – оформлять им в контраст.
Так же с помощью контрастов можно разделить длинную комнату на функциональные зоны.
Визуально разделить длинную комнату поможет и пол. На нём может быть разное напольное покрытие или подиум, чтобы создать разные уровни. Подойдет и ковёр — но не один большой, а два или три поменьше.
В длинной комнате для хорошего освещения никогда не будет достаточно одной люстры. Их должно быть как минимум две, и лучше, если они будут дополнены настенными светильниками. Как вариант, над одной зоной будет люстра, а над другой – точечная подсветка.
Зонирование маленькой комнаты лучше выполнять с помощью светопрозрачной перегородки.
Для акцентного декорирования лучше всего подходит короткая стена. Если она глухая, её можно отделать обоями с крупным рисунком, постерами в рамках, настенными полками
Если на ней есть окно, что чаще всего и бывает в помещениях с такой конфигурацией, внимание должны привлекать шторы. Ими же можно и разделить комнату на две зоны.
Фотообои – отличный инструмент для визуального изменения пространства
Если клеить их на длинную стену, то только в одной зоне или по центру. Такой приём делает комнату зрительно шире.
Широкий дверной проём на длинной стене нивелирует непропорциональность комнаты — особенно, когда в нём вмонтированы стеклянные створки.
Самая большая проблема для гармоничного дизайна – длинная кухня (варианты планировка кухни вы найдете в статье). В ней итак тесно, да ещё и приходится устанавливать «съедающий» пространство гарнитур. Однако он же поможет отделить зону приготовления пищи от обеденной.Этот вариант зонирования обязательно нужно сочетать с визуальным, выполняемым за счёт разных цветов и фактур стеновых покрытий.
Расставить мебель вдоль длинных стен – значит, сделать комнату ещё более тесной. Лучший предмет мебели для такой комнаты – угловой диван с каким-либо акцентом на противоположной стене.
Всегда можно найти оптимальное решение — как самостоятельно, так и взяв за образец дизайнерскую работу. И пусть перспектива приобретения узкого участка не пугает.
Стеснённые условия отнюдь не мешают построить красивый удобный дом, и уж тем более — оформить со вкусом его интерьер.
Особенности проектов узких домов
Для начала обозначим, что узким считается участок, ширина которого не превышает 15 м. Соответственно, на сам дом в таком случае отводится 7-9 м – оставшаяся площадь дает возможность соорудить забор и выдержать расстояние до других построек, согласно пожарным и санитарным нормам. Области, которые недоступны для строительства, лучше заранее заштриховать в проекте, чтобы не пришлось вносить коррективы уже в процессе работы.
Дом лучше всего располагать в глубине узкого участка, придвинув к одной из его сторон – если разместить здание посередине, вокруг него останутся чересчур узкие проходы, от которых не будет никакой пользы.
Внутреннее пространство узкого дома, который традиционно вытянутой продолговатой формы, можно обустроить двумя способами: расположив комнаты «трамваем» одна за другой или отделив их небольшими коридорчиками. Первый вариант более эргономичен, но второй намного комфортнее для проживания семьи из нескольких человек.
Узкий дом с мансардой
Наиболее удачное решение для узкого участка – дом с мансардой. Такой проект очень эргономичный и абсолютно не лишен комфорта. Несмотря на то, что шаблона организации такого жилья нет, все же стоит придерживаться определенных правил:
Дом с мансардой
- Помещения, которые нуждаются в хорошем освещении, лучше размещать на фасадной линии. Как правило, это детская, столовая и гостиная.
- Мансардные окна должны быть большими – это не только сделает помещение более светлым, но и придаст всему узкому дому привлекательный вид.
- Лестницу, которая ведет на мансарду, желательно располагать у глухой стены, а под ней можно обустроить небольшую хозяйственную подсобку – это позволит максимально эргономично использовать маленькое пространство. Еще один удачный вариант – расположение под лестницей небольшого рабочего уголка.
- Для комфортного проживания высота потолка в мансардном помещении должна быть не меньше 2,2 м.
Дом для узкого участка
Сопоставив все нормы и варианты привязки дома, определяем его ширину. Дом для семьи из трех и более человек предполагает наличие нескольких жилых комнат: спален, гостиной, а так же санузла, кухни, возможно столовой и конечно подсобных помещений (котельная, гардеробная, кладовая).
Это нужно знать
Нормы СНиП 2.08.01-89* «Жилые здания» гласят:
- — площадь гостиной для комфортного проживания в квартире или доме с количеством комнат более 2-х должна быть не менее 16 кв.м;
- — площадь остальных жилых комнат, а так же кухни – не менее 7-8 кв.м;
- — ширина межкомнатных коридоров – не менее 0,85 м, а в домах с проживанием лиц с ограниченными возможностями (инвалидами) – не менее 1,15 м;
- — ширина прихожей не менее 1,4 м, а туалета – не менее 0,8 м;
Длина комнаты не должна превышать ее ширину более чем в 2 раза, иначе помещение будет слишком вытянутым и не комфортным.
Варианты планировки
Вряд ли узкий дом будет одноэтажным, на одном этаже достаточно трудно расположить все необходимые помещения, исключение составляют лишь небольшие дачные дома.

Хотя все конечно зависит от количества проживающих и наличия необходимых помещений.
Одним из вариантов узкого дома является дом, построенный из контейнеров. Ширина грузовых контейнеров не велика, грамотно скомпоновав их и продумав планировку, в результате можно получить довольно комфортабельный дом.

Определившись с количеством и составом желаемых помещений, приступаем к проектированию.
Конечно же, можно обратиться к специалисту — архитектору, который составит проект будущего дома, учтет все пожелания заказчика и поможет ему найти наиболее рациональное использование полезной площади и правильное расположение помещений.

Но вы сможете и самостоятельно выполнить планы будущего дома. Вооружившись листом бумаги (лучше миллиметровой), карандашом и линейкой, смело приступайте к планировке своего жилища.
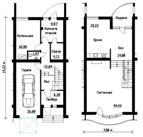
План 1-го этажа
Как правило, в небольшом узком доме на первом этаже располагают гостиную, кухню, санузел, котельную, а на втором – спальные комнаты, гардероб и при необходимости дополнительный санузел.
План 2-го этажа
Чтобы помещение гостиной было наиболее просторным, кухню можно расположить в нише, объединив ее с гостиной небольшой столовой зоной. Гостиную так же можно объединить с прихожей, не разделяя помещения стенами для увеличения пространства, а зонирование их выполнить с помощью разнообразных приемов, например, разным материалом пола – в прихожей плитка, а в гостиной паркет, ламинат, или разным цветом пола и стен.
На первом этаже чаще располагают небольшой санузел с душевой кабиной или вовсе без нее, а на втором более удобную и просторную ванную или раздельный санузел.

Лестница, ведущая на второй этаж, выходит в небольшой коридор, который ведет в две или более спальные комнаты. Для экономии пространства лестницу можно сделать винтовой. Лестница на второй этаж может быть устроена из гостиной и сделана на больцах. Такая конструкция раствориться в пространстве и не буде загромождать помещение.
Если габариты дома позволяют устроить гостиную со вторым светом, то есть высоту ее выполнить в два этажа, входы в спальные комнаты, объединенные коридором в виде антресоли, будут просматриваться из гостиной. В этом случае гостиная станет центральным ядром дома, где будет протекать жизнь семьи, столовая и зона приготовления пищи так же будут являться ее частью.
Такой вариант подойдет дружной семье, с общими интересами и совместным времяпровождением. В данном случае второй этаж можно сделать мансардным. Большая просторная комната в небольшом доме – лучшее решение. Здесь семья проводит больше времени, а спальные комнаты, как правило, используются в ночное время или для кратковременного уединения.
1-й и 2-й этажи
На узком участке часто не находится места для строительства гаража, а эта постройка вам необходима. В этом случае гараж располагается в первом или цокольном этаже, а все жилые помещения находятся на втором и мансардном этажах.
3-й этаж
На одном с гаражом уровне можно спланировать котельную, прихожую с лестницей, ведущей в жилые комнаты, а так же необходимые подсобные помещения (гардероб, постирочную, кладовую, мастерскую, сауну). Дом увеличивается в высоту до трех этажей и имеет все необходимые помещения.
Вход в тамбур организуйте с бокового фасада. Прихожая, расположенная у одного из боковых фасадов, даст возможность использовать всю ширину дома для расположения комнат, их величина будет максимально возможной. Помещения станут наиболее просторными и комфортными.
Узкий дом с гаражом
Второй по популярности проект дома на узком участке – здание с гаражом внутри. Сразу нужно отметить, что эта идея имеет не только плюсы, но и минусы, которые будет непросто нивелировать. Но начнем с преимуществ.
Узкий дом с гаражом
Дом с гаражом – практически единственный реальный вариант обустроить на узком участке «жилище» для автомобиля. Конечно же, первый этаж здания для этих целей задействовать нерационально, поэтому в ход пойдет подвал. В проекте такого дома, прежде всего, нужно будет проработать моменты, касающиеся безопасности содержания транспорта в здании как для домочадцев, так и для самой машины
Во-первых, необходимо сделать так, чтобы продукты сгорания не проникали в жилую часть дома, а во-вторых, важно обеспечить непопадание тепла в гараж, так как высокие температуры существенно снизят срок службы авто
Совет. Также не забудьте предусмотреть безопасный, но функциональный подъезд к подвалу.
Что же касается минусов, то нужно учитывать сложность и высокую стоимость строительства узкого дома с гаражом – правильно возвести и обустроить такое здание будет непросто и недешево.
Как видим, и на малогабаритном участке можно построить вполне комфортный, функциональный и эстетичный узкий дом. Конечно же, будет глупо отрицать, что скромная площадь накладывает определенные ограничения и усложняет строительство, но если тщательно продумать проект здания и активизировать весь арсенал инструментов эргономики, абсолютно реально получить уютное жилье даже для большой семьи.
Как вписать дом в маленький участок
В любом типовом проекте есть сведения о том, какой минимальный размер должен иметь участок, чтобы на нём можно было построить дом.
Ведь при застройке надо соблюдать нормативы по отношению к границе с соседским участком.
Расстояния, которые нужно соблюдать при застройке участка
Основные нормативы:
- Между стеной дома и забором должно быть минимум 3 метра — если стена глухая, и 4 метра — если в ней есть дверь или окно. Маленькие окошки в санузлах можно не считать.
- Если на боковом фасаде есть крыльцо, балкон (примеры двухэтажных домов с балконом предложены в статье), лестница на второй этаж или другой выступающий элемент, расстояние считают от него, должно быть 1,5 м до границы участка. До соседского дома или хозяйственной постройки должна соблюдаться дистанция в 3 м.
- Регламент землепользования допускает расположение на границе участка, но при условии, что и у соседей дом располагается на этой же линии и имеет такую же высоту. По этому правилу строят в основном дуплексы — коттеджи на два хозяина и таунхаусы.
Двухквартирный коттедж – проект Z500
Примечание: блокированные дома (на 2 семьи) часто покупают родственники. При этом ограда, разделяющая участки, может не устанавливаться.
Чужие люди предпочитают всё же отделить свою половину забором. Маленький размер участка особенно бросается в глаза, но зато перед крыльцом можно сделать красивый палисадник или закрытое патио.
Маленький, но уютный дворик таунхауса
Конечно, когда участок маленький, нормы бывает трудно соблюсти. Главное – что бы у соседей не было претензий. Но даже если у вас есть их согласие, не расслабляйтесь, ведь соседи завтра могут быть другие, и им может не понравиться то, на что прежние владельцы внимания не обращали.
Дом вплотную к забору может доставить неприятности
Поэтому до начала строительства на руках должен быть план застройки участка. На плане должна быть распределена вся площадь: нанесены размеры зданий и дистанции между ними. Сделать это можно самостоятельно.
План узкого участка с домом
При покупке участка под застройку человек обычно ориентируется на низкую цену (об оформлении земельного участка в собственность читайте в статье).
Когда характеристики ландшафта далеки от стандарта: участок имеет непропорциональные параметры, длина значительно больше ширины, сложный рельеф, и дом придётся ставить на участке с уклоном или существенным перепадом отметок, цена земли снижается (о строительстве дома на участке с уклоном рассказано в статье).
Дом стоит не только на небольшом пятаке застройки, но и на неровном рельефе
Но выбирать получается не у всех, многим приходится покупать не то что хочется, а то, на что хватает бюджета. Остаётся только, изучая готовые проекты домов для узких участков, выбрать тот, что лучше всего впишется в заданные рамки.
В крайнем случае, придётся спроектировать дом индивидуально — ведь далеко не на каждом нестандартном участке можно выполнить привязку к местности типового проекта.
Несколько советов по выбору проекта
Если узкий участок не позволяет соблюсти расстояние в 4 метра от соседского забора до стен дома с оконными проёмами, придётся делать стены глухими. А это значит, что естественное освещение сможет попадать в дом только через узкую фасадную часть.
Соответственно, если на ней будут обычные окна, в помещениях будет не хватать света (программы для расчёта окон вы найдете в статье). Эта проблема обычно решается за счёт панорамного остекления торцевых стен дома.
Предлагаем посмотреть, как можно решить этот вопрос:
Дом буквой Г
За счёт чего компенсировать недостаток площади
Проект одноэтажного дома для узкого участка не лучший вариант – если конечно, в нём не будет предусмотрен цокольный этаж, в котором можно расположить не только технические помещения или гараж, но и, например, гостиную.
Иногда гидрогеологические условия на участке не позволяют выбрать вариант с цоколем. Если близко грунтовая вода, строительство с заглублением сильно увеличит смету объекта.
А вот для участков с существенным перепадом рельефа, строительство подвала под домом – хороший способ сэкономить, так как при этом значительно снижается объём земляных работ.
Вот какие помещения можно расположить в цоколе:
Важно только, чтобы правильно была утеплена кровля, была удобная лестница для подъёма (о проектировании лестниц в доме читайте в статье) и качественная звукоизоляция. Вот как можно задействовать мансарду:
Вот как можно задействовать мансарду:
Чтобы и фасад с дворовым ландшафтом был красивым, а комнаты удобными, нужно всего лишь выбрать подходящий проект.
Список источников
- Proekt-sam.ru
- sad24.ru
- greensector.ru
7 лестниц