Преимущества глобального ремонта с демонтажем стен
Не стоит бояться затевать грандиозные ремонтные работы со сносом перегородок и переделкой общего плана квартиры. Ведь в результате вы получите просторную площадь в комфортабельной квартире. Если не решаетесь на крупные изменения, просто избавьтесь от встроенного шкафа, уберите антресоль, объедините кладовую с ванной.
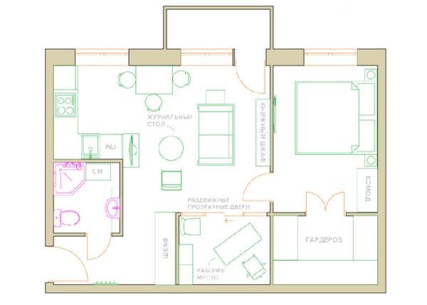
Снос встроенного шкафа
Перепланировка полностью изменит облик и атмосферу вашего жилища. Здесь снова запахнет новой краской и свежей штукатуркой. Полностью уйдут старые запахи, которые годами скапливались в перекрытиях.
Обновленные поверхности будут радовать глаз современной отделкой. Если использовать светлые оттенки, потолок будет казаться выше, а стенки шире. Не забудьте про гармоничный текстиль, который поможет зонировать пространство, завершить интерьер комнаты, сделать акцент на отдельных его элементах.
Вариант стильного оформления квартиры
Перепланировка двухкомнатной квартиры – задача вполне посильная для новичка в строительстве. Однако необходимо тщательно изучать правовые и технические моменты каждого вида деятельности. И обязательно консультироваться с опытными специалистами.
Помните, непродуманные действия могут привести к печальным последствиям. А грамотный подход подарит обновленную квартиру с комфортабельной планировкой. Пусть ваш дом станет уютным и удобным для всех домочадцев.
В завершение посмотрите видеоматериал с полезными рекомендациями по выбору лучшего метода расширения полезной площади в двушке:
9.4
Total Score
Перепланировка 2 комнатной хрущевки
8.8Expert Score
УДОБСТВО
8.5
БЕЗОПАСНОСТЬ
9
ДИЗАЙН
9
10Оценка пользователя
УДОБСТВО
10
БЕЗОПАСНОСТЬ
10
ДИЗАЙН
10
|
Ремонт стен в хрущевке

Так же как потолки и полы, стены в хрущёвках ни бывают ровными и редко хотя бы приближены к уровню. Начнём с последнего – для чего нам нужен уровень в плоскости стен?
Визуально в плоскости стены мы уровня не увидим, но мы можем увидеть линии.
Первое – например если от оконного откоса до угла небольшое расстояние и откос так же как и окно стоит по уровню, то в нижней части откоса расстояние до угла будет например 3 см, а в верхней 6 см – это будет заметно.
Второе – если вы решите поклеить обои с вертикальными полосками, то это так же будет заметно в углах.
Так же надо обратить внимание на установку дверей. Двери нужно устанавливать по уровню, иначе дверь будет самостоятельно закрываться, либо открываться
Так что, если нет возможности вставить дверную коробу в откос по уроню, надо выравнивать стену.
Теперь что касается неровности стен. Так же как и уровень неровность в плоскости стены особо не видны, однако если позволяют средства и возможности, то нужно хотя бы частично выровнять.

Другое дело, что хорошо будут видны углы и примыкания к потолку и стенам. Кривые углы это понятно, на счёт примыканий.
Плинтуса смонтированные к кривым стенам пойдут волной, а это будет очень заметно! Так что если вы не штукатурите стены, то нужно хотя выровнять примыкания правилами.Выделим основные моменты:
лучший вариант – оштукатурить стены под маяк, если нет такой возможности, то:
первое – необходимо выровнять углы,
второе – выровнять примыкания со стенами и потолками.
Делая ремонт в своей квартире не забывайте о том, что текущий ремонт зданий хрущевской планировки производится крайне редко и прямо скажем – плохо. Рекомендуем вам при ремонте полностью заменить электрику.
Все необходимые строительные и отделочные материалы для ремонта своей хрущевки вы можете найти посетив магазин строительных материалов “СтройМаг”.
Перепланировка двухкомнатной хрущевки: стандартные варианты и их возможности
Какими бы несовременными нам ни казались «хрущевские» квартиры сегодня, не стоит забывать, что в свое время они стали отличным решением для семей, ютившихся в коммуналках. Такие дома возводились по всему миру, а линии для их производства были закуплены во Франции. Другое дело, что эти помещения в большинстве стран были только временным решением, а у нас остались надолго. И сегодня наиболее распространены следующие планировки двухкомнатных хрущевок с различной степенью комфорта:
1. «Книжка» – пожалуй, самое неудачное расположение комнат, где жилые помещения проходящие, а площадь кухни варьирует в пределах 5-6 м2. Общий же размер помещения – 40-42 м2. Главный недостаток – раздельные комнаты можно получить только за счет существенного уменьшения гостиной, удлинив коридор. Конечно, можно объединить комнату с кухней, заодно увеличив площадь последней, но стоит ли оно того?


2. «Трамвай» – квартиры, площадью 45-48м2. Здесь дизайн двухкомнатной хрущевки с проходной комнатой можно значительно улучшить, удлинив прихожую за счет одной или сразу двух соседних комнат. Такая перепланировка более функциональна, чем в «книжке», потому что позволяет не только изолировать комнаты, а и установить в торце коридора вместительный шкаф-купе или гардеробную.


3. «Миниулучшенка» – комнаты и санузел в такой квартире изначально раздельные, в большинстве проектов даже предусмотрена кладовая. Здесь уже возможен вариант разделения гостиной на две комнаты поменьше. Но чаще перепланировка такой двухкомнатной квартиры преследует цель устранить еще один значимый минус хрущевок – миниатюрную кухню, площадью около 5 м2. Если за счет кладовки перенести санузел, можно добавить кухне 2-3 м2.


4. «Бабочка» ли «распашонка» – двухкомнатные планировки хрущевских домов, которые имеют площадь в 46-52 м2 и симметрично расположенные комнаты с разными входами из прихожей. Капитальный ремонт в такой двухкомнатной хрущевке можно затевать ради увеличения санузла (если вас устраивает перепланировка отдельной ванной в совмещенную) или разделения одной из комнат перегородкой. Кухню же можно увеличить, только объединив с одной из комнат.

Подготовительный этап
Минусом бюджетных квартир, построенных в советское время, в том числе и хрущёвок является то, что они не отличались продуманной планировкой: коридоры в них слишком узкие, комнаты чаще всего проходные, кухни крошечные. Именно поэтому для качественного ремонта вам придется столкнуться с проблемой переноса стен.
Именно поэтому существует ряд нюансов, которые вы обязаны учесть. Разберём на примере. В однокомнатной хрущёвке есть небольшой коридорчик, который по документам считается жилой зоной и расширять за счёт него ванную по существующим нормам нельзя. Однако, если подлить стену и выделить зону в нежилое пространство, т.е. в коридор, правило перестаёт действовать.
Пример законного расширения пространства ванной за счет выделения коридора
Все эти нюансы вами должны быть решены задолго до планирования всех реконструкций и перепланировок.
Перепланировка
Невзирая на все неудобства и бестолковость изначальной планировки, где тотальная нехватка квадратных метров ощущается на каждом шагу, квартиры в хрущевках прекрасно подлежат перепланировке.
Скромность площадей, не только жилых, но и подсобных не позволяет маневрировать современным оборудованием. Особенно это касается кухонного помещения и санузла, в частности, если ванная и санузел являются раздельными помещениями. Конечно, самым большим недостатком, в который выливается ремонт хрущевки 2 комнаты с кухней, ванной и туалетом, это вложение дополнительных финансов в демонтаж стен.
Типовым проектом перепланировки двушки, является объединение жилой комнаты с кухней и прихожей, как организация единого пространства для приема пищи и получения полноценного отдыха. При этом стена спальной комнаты может быть перемещена, а если спальня оборудована балконом или лоджией, ее площадь можно увеличить, задействовав дополнительные метры нежилого помещения. Благодаря такому приему в сравнительно небольшой спальне можно разместить даже гардеробную.
Ремонт с перепланировкой в двухкомнатной хрущевке – фото
Разбивая высвободившуюся площадь на рабочие зоны, можно оборудовать небольшой рабочий кабинет, который отделен от зоны отдыха любым приемом с применением перегородок. Как правило, в таких случаях дизайнеры работают с прозрачными перегородками, в которых может разместиться аквариум. Но это дело вкуса каждого домовладельца. Возможен вариант применения раздвижных перегородок.
Главным рабочим моментом, когда проводится дизайн 2-х комнатной хрущевки, становится организация пространства санузла. Совместив ванную комнату с санузлом и установив душевую кабину, высвобождается место под стиральную машину, которой до этого не находилось в квартире места и возможность установки столешницы с ящиками. При этом доля полезной площади значительно увеличивается.
К положительным сторонам данного проекта можно отнести организацию значительного пространства с трансформируемыми зонами и наличие гардеробной в спальне.
Минусом могут стать небольшие рабочие зоны кабинета и кухни, а также маловместительная за счет организации гардероба спальня.
До ремонта: 5 важных советов
1. Сверьтесь с планом БТИ
Ремонт двушки в хрущевке часто требует перепланировку, и проводить ее нужно только сверившись с планом БТИ. Например, довольно часто коридор или кладовая, которые мы привыкли рассматривать как нежилые помещения, на плане оказываются частью жилого пространства. А значит, расширять за счет них кухню или санузел будет нельзя, а вот присоединять к комнате — можно.

Фото: saveskul.ru
Фото: saveskul.ru

Фото: Instagram @sensart.design
Фото: Instagram @sensart.design
2. Проверьте состояние труб и проводки
Рекомендация для тех, кто планирует ремонт в хрущевке 2-х комнатной своими руками. Обязательно обратитесь к специалистам для оценки состояния электропроводки и труб в квартире. Последствия легкомысленного отношения к этим вопросам могут самые плачевные, и вынужденная переделка свежесделанного ремонта — не самое страшное из них.

Фото: saveskul.ru
Фото: saveskul.ru

Фото: m2project.ru
Фото: m2project.ru
3. Не игнорируйте законодательные нормы
Ремонт в 2-х комнатной хрущевке без перепланировки не требует согласования. А вот задумав перепланировку в квартире, без похода в надлежащие инстанции не обойтись. Не стоит игнорировать нормы существующего законодательства в этой сфере: не забывайте, что все правила созданы прежде всего для безопасности — вашей и остальных жильцов.

Фото: Instagram @galinaju_designer
Фото: Instagram @galinaju_designer
4. Продумайте функциональное наполнение
От того, какие функции вы планируете возложить на квартиру, зависит весь ремонт целиком
Именно поэтому важно продумать все максимально тщательно до начала работ. Если вы обращаетесь к дизайнеру, не забудьте рассказать ему о своих бытовых привычках: чем продуманнее и индивидуальнее будет интерьер, тем комфортнее будет в нем находиться
Тем выше будет качество вашей жизни.

Фото: saveskul.ru
Фото: saveskul.ru
5. Оцените объем необходимого хранения
Еще один момент, который важно продумать на самом начальном этапе, — необходимое хранение. Трезво оцените количество имеющихся вещей, обуви, кухонной утвари, спортивного инвентаря, не забудьте о своих хобби, мелких и крупных бытовых помощниках, гладильной доске, домашней библиотеке, коллекциях сувениров и прочих мелочах
Оценив нужный объем хранения, предусмотрите 25-30% запаса: все мы развиваемся, и довольно скоро может потребоваться дополнительное хранение. К тому же, всегда есть вероятность пополнения в семье.

Фото: Instagram @lofthouse.sakhalin
Фото: Instagram @lofthouse.sakhalin

Фото: Instagram @zidesigninteriors
Фото: Instagram @zidesigninteriors
Двери и окна + апгрейд вентиляции
Скорее всего, вы избавитесь от древних деревянных окон и установите современные герметичные стеклопакеты. Идея отличная, однако не забудьте привести в порядок вентиляцию, иначе без свежего воздуха квартира быстро превратится в рассадник плесени.
Для начала проверьте вентиляцию в кухне и санузле: приложите к отверстию лист бумаги, он должен плотно прилипнуть. Если движение воздуха плохое, напишите в УК заявку на прочистку вентиляции. Иногда виноваты соседи, которые закрыли отверстия шкафчиком. Постарайтесь решить вопрос полюбовно, если не получается, обращайтесь в УК, а в крайнем случае — подавайте судебный иск о восстановлении общего домового имущества.
Позаботьтесь о притоке свежего воздуха на кухне: установите клапаны приточной вентиляции в наружной стене или оконных рамах. Предусмотрите вентиляционные решетки внизу двери в санузел и зазоры под дверями в комнаты. Так вы восстановите правильную циркуляцию воздуха в квартире: из комнат в кухню и санузлы.
Чтобы защититься от шума с лестничной площадки, установите входную дверь с двухконтурным уплотнением и повышенной звукоизоляцией. Если этого недостаточно, можно поставить вторую дверь, не обязательно металлическую, сгодится и обычная межкомнатная.
Сколько стоит
Монтаж входной двери (только работы) — от 2 тыс. рублей.
Двустворчатое окно с установкой — от 15 тыс. рублей.
Этапы работ
Прежде чем заниматься выбором обоев, линолеума или краски, составьте алгоритм действий. Грамотное планирование ремонта и осмысленный выбор стилистики интерьера облегчат рабочий процесс, помогут сэкономить силы и финансы.

Совет: Если у семьи скромный бюджет, лучше разбить преображение хрущевки на этапы, выполняя пошагово, чтобы не затевать «вечный» ремонт. Завершив одну комнату, приступайте к другой, чтобы квартира не выглядела десятилетие как поле битвы с варварами.

Сначала сделайте ревизию, избавившись от старой мебели, антресолей, дверей и всего, что морально устарело. Используйте приемы «осовременивания» поверхностей на крепких ровных поверхностях.

Специалисты рекомендуют:

Составьте план работ по каждой комнате и отдельно по видам работ, охватывающим всю квартиру (утепление, замена труб и сантехники, выравнивание пола или потолка).

При покупке отделочных материалов не забудьте про идеи по визуальному расширению пространства (зеркала, фотообои с оптическими иллюзиями и 3D эффектом, вертикальные и горизонтальные линии).

Используйте приемы зонирования и оптимизации пространства с помощью встроенной мебели, если нет возможности каждому в семье отвести отдельную комнату. Это хоть как-то компенсирует недостаток личного пространства и сделает время приготовления пищи, отдыха или работы за ПК более комфортным.


Стиль должен хорошо подходить функциональности комнаты, если нет единого решения. Например, морской – для ванной, романтизм – в спальне, фьюжн – в гостиной и прихожей и прованский стиль – на кухне. Их можно объединить общим цветовым решением – в холодной, теплой или нейтральной гамме в зависимости от типа естественного освещения (север, юг).
При оформлении потолка, стен и пола не забывайте про низкие потолки, поэтому многоуровневые конструкции будут неуместны. Лучше выбирайте простую отделку после выравнивания поверхностей, например, наливные полы и жидкие обои для потолка.

Если невозможно взять разрешение на перепланировку хрущевки, реально сделать болгаркой арочный проем во второстепенном простенке и укрепить его стальным уголком.

Если на каком-то этапе потребуется помощь специалистов или профильных фирм, не игнорируйте такой возможности. Они сделают заказ быстро и профессионально. Сэкономить можно на демонтаже и очистке поверхностей от старых покрытий.

При отделке используйте отделочные материалы последнего поколения, отказавшись от традиционных обоев, линолеума и побелки, чтобы через пару лет не пришлось «осовременивать» дизайн.

Сегодня сложно обойтись при ремонте в стиле техно, лофт или хай-тек без инновационных материалов, приемов освещения и сочетания эффектных фактур.


Малогабаритные однокомнатные хрущевки сложно радикально расширить, даже если придать более современный вид по типу квартиры-студии.
При этом трансформируются перегородки между жилой комнатой и смежными помещениями – кухней и прихожей (коридором).

Узнаем несущие стены
Независимо от того, в каком доме находится ваше жилище – панельной хрущевке или кирпичной девятиэтажке – в нем обязательно будут несущие стенки, и просто межкомнатные перегородки. Вторые реально убрать без каких-либо последствий, в нарушение целостности первых повлечет серьезные неприятности, грозящие не только вашей квартире, но даже всему дому. Но иногда задуманный проект требует дабы сквозной проем был проделан в одном конкретном месте, а может, стенка и вовсе мешает?
В любом случае, не стоит прибегать к демонтажу, не ознакомившись с планом помещения. Если такового нет под рукой, обратитесь в бюро технической инвентаризации либо попытаться определить несущие стены самостоятельно.
В панельных домах
Не найдя техническую документацию на квартиру, несущие стены в панельном доме легко определить по их толщине: дело в том, что основные стенки, поддерживающие панели перекрытий, всегда немного толще. Так, минимальная толщина несущей стены в стандартном панельном доме составляет 12 см, не учитывая слой штукатурных, отделочных материалов, а дополнительные перегородки на 2 см тоньше.
Обычно, внутренние стенки не влияют на устойчивость всего дома, а служат лишь, разделением единого пространства квартиры на комнаты. Приступать к работам по изменению и сносу разрешено лишь после того, как все стены тщательно замерены, выделены ключевые конструкции.
И еще: девятиэтажные панельные дома в большинстве случаев состоят из основных стенок – такое сооружение очень напоминает классический карточный домик. Планируя ремонт квартиры в таком доме, лучше все-таки ознакомиться с детальным планом перед началом работ.
В хрущевках
Понять, какие стены в хрущевке несущие, можно несколькими способами:
первый, самый правильный – изучить техническую документацию; второй способ предлагает обратить внимание на назначение стенки – если у вас хрущевка, то здесь несущие стены обычно разделяют этаж на отдельные квартиры, а второстепенные уже делят каждую из них на комнаты; то же касается и участков, отделяющих помещение от лестничного марша либо общих коридоров – они всегда главные; а вот стенка между комнатной и балконом, в отличие от кирпичных домов, наоборот, не несет важной нагрузки, зато сохраняет тепло; в разделенном санузле, можете смело сносить перегородку – это никак не скажется на целостности или устойчивости здания. Существует еще способ, определения, какие стены несущие – это сверление: толщина основных перегородок такова, что одного сверла недостаточно для сквозного отверстия. Существует еще способ, определения, какие стены несущие – это сверление: толщина основных перегородок такова, что одного сверла недостаточно для сквозного отверстия
Существует еще способ, определения, какие стены несущие – это сверление: толщина основных перегородок такова, что одного сверла недостаточно для сквозного отверстия.

Что такое хрущевка
Поэтапный бюджетный ремонт в новостройке своими руками. Секреты экономии и полезные рекомендации для новичков (Фото & Видео)
Откуда взялось такое неблагозвучное название? Оно совсем не ассоциируется с хорошим жилищем, за которым стоит большая очередь. А ведь когда-то получение такой квартиры считалось верхом удачи, а событие отмечалось масштабнее, чем свадьба или новый год.
Один из домов с тесными квартирками
В период с 50-80 годы прошлого века было отстроено более трех сотен миллионов квадратных метров такого жилья. Это квартиры в однотипных панельных или кирпичных строениях, чаще всего 4-х или 5-этажных.
Генсеком большей части начала этого периода был Н.С. Хрущев, которому и приписывают идею массового строительства.
Именно его фамилию и трансформировали в название тех советских новостроек. Тогда презрительного отношения к небольшим квартирам с отдельной кухней и туалетом не было. Люди с удовольствием выезжали из коммуналок в собственные площади и радовались невероятному простору.
Как из «двушки» сделать «трешку»
Перепланировка двухкомнатной квартиры в трехкомнатную возможна только в том случае, если перестроенные помещения будут иметь площадь не меньше 8 м2 и не останутся без естественного освещения. А так как в типовых хрущевских квартирах для каждой комнате предусмотрено только одно окно, получить полноценную «трешку» не выйдет.
Но есть варианты:
1. Одну из разделенных комнат указать на плане как нежилое помещение (например, назвав гардеробной), продумать в ней хорошее многоуровневое освещение и спокойно обустроить по своему вкусу. Такой вариант подойдет, к примеру, для небольшой спальни или рабочего кабинета.
2. Установить между комнатами не стену, а гипсокартонный стеллаж, раздвижную или мобильную перегородку, которую можно задвигать или складывать днем, чтобы солнечный свет проникал в комнату. Такую перепланировку можно не отражать на плане и разрешение на нее не нужно – ведь целостность комнаты нарушена не будет.





Место для мебели, туалета и стиральной машины
Т.к. места совсем мало, планировка ванной в хрущевке требует супер точного расчёта и использования некоторых идей. Их и разберём.
Ванна со шторкой
Для маленькой ванны в хрущевке стоит рассмотреть вариант установки шторки. Как бы аккуратно вы не мылись, брызги неизбежны. В идеале ставить стеклянную складную шторку. С ней можно полноценно принимать душ. В крайнем случае обычную тканевую шторку, но выглядят они морально устаревшими.





Душ вместо ванны
С точки зрения практичности душ намного удобнее чем ванна. За рубежом душ должен быть в каждой квартире и это стандарт, а вот ванна уже идёт как дополнение и если позволяет место. И в этом есть смысл, поверьте. По опыту, при наличии и того и другого, ванной пользуются очень редко. Единственное исключение — наличие маленьких детей. Хотя бы обдумайте вариант отказа от ванны в пользу душевого уголка или монолитного душа(только не покупайте кабинки, они убогие). Про душ в ванной без душевой кабины.





Ванная в хрущевке с туалетом
Большинство хрущевок идут именно с совмещенными санузлами, хотя есть серии и без туалета. В пункте про монолитность я уже говорил, что современный ремонт ванной требует именно подвесной вариант с инсталляцией. На этом нельзя экономить ни в коем случае.
При зашивке инсталляции над ней образуется свободное место, которое обязательно нужно задействовать. В зависимости от расположения там должно быть 1 из:
- Лючок к коммуникациям. Оформлять или скрытым люком под плитку или мебельным шкафчиком. Главное не ставить металлический белый — это техническое решение не для квартир и выглядит оно всегда отвратительно.
- Шкаф для вещей или хотя бы полочка.
- Полотенцесушитель. Не супер удобно, но сэкономит нам место на другой стене.


Стиральная машина
Если ванная без туалета, то вариант расположения мебели и стиральной машины только 1: раковина перпендикулярно ванной и стиральная машина под раковиной. Про расположение машинки есть отдельная статья с кучей фото и особенностями встраивания, обязательно посмотрите: ванная 4 кв.м со стиральной машиной.


Для хрущевки где ванная объединена с туалетом, есть варианты и с отдельностоящей стиральной машиной, но выглядит это почти всегда плохо. Даже в этом варианте лучше встроить под раковину, а в освободившемся месте сделать шкаф.
Узкий шкаф
Дизайн ванной не имеет смысла если в ней будет беспорядок. А в хрущевке всегда проблема с местами для хранения вещей. Особенно это актуально если под раковиной у вас стоит стиральная машина вместо тумбы. Решение — узкий навесной шкафчик. Место для него можно найти почти всегда. Лучше всего смотрится в белом глянце.




Сохраняйте и делитесь – пригодится!
Как снести стену в хрущевке своими руками
Получив необходимо разрешение на снос, изначально с демонтируемой стены необходимо удалить хотя бы частично наружный слой штукатурки. Для этого необходимо установить в перфоратор насадку «широкая стамеска» и попытаться сбить полосу штукатурки в самой верхней области межкомнатной стены. Нет смысла удалять старую штукатурку с обеих сторон стены, достаточно это выполнить только с одной стороны и, тем самым, оголив кирпичную кладку.

Когда хотя бы на одной стороне межкомнатной стены можно будет различить кирпичные ряды и швы между ними, тогда в патроне перфоратора насадку «широкую стамеску» заменяют на «зубило». В принципе, эти две насадки схожи, однако «зубило» предназначено для тяжелого грубого долбления, а «широкая стамеска» больше для очистки поверхности. Используя ударную силу перфоратора и установив лезвие зубила в область горизонтального кирпичного шва, производят поэтапное отделение кирпичей из кирпичной кладки.

При отсутствии мощного перфоратора, всю демонтажную работу придется выполнять ручным инструментом, что, конечно же, может затянуть весь процесс. Учитывая большие трудозатраты, найдется мало людей, которые будут изначально очищать плоскость стены от штукатурки, а после разбирать ее по кирпичу. Чаще всего, вручную стена демонтируется по принципу – долбим, где долбиться.
Дизайнерские идеи для спальни
Ваша спальня располагает около 10, 11, 12, 13 метров, это не помешает создать безупречный дизайн двухкомнатной квартиры в хрущевке. Здесь также существуют принципы.
Мебель. Лучше выбирать небольшой шкаф, чтоб не упирался в потолок, и малогабаритный комод. Так же не стоит забывать о туалетном столике с зеркалом и небольшой тумбочке около кровати. Что касается самой кровати, постарайтесь выбрать малогабаритную, без объемного изножья. Для большего удобства и экономии места, можно приобрести кровать с встроенными ящичками.
Освещение должно быть хорошим, позаботьтесь о всевозможных светильниках. Не стоит занавешивать темными и тяжелыми шторами окна.
При оформлении спальной комнаты используйте не больше трех оттенков. Это касается стен, потолка и пола. Для большего визуального увеличения комнаты, используйте светлые тона.
Пожеланию вы можете объединить спальню и гостиную. Если все члены семьи не будут против. Если вы молодая семья с ребенком, лучше этого не делать, так как когда он подрастет ему понадобиться личное пространство. К тому же, в эту небольшую комнатку отлично впишется детская кроватка.
Ремонт пола в хрущевке

Общее во всех хрущёвках то, что полы в них во всех деревянные. Как это выглядит? Устанавливаются лаги (это доска высотой около 15 см, и шириной около 5 см) на них сверху прибивают доски.
В некоторых квартирах поверх дополнительно прибито ДВП. Хорошо это или плохо? Со временем деревянные полы начинают скрипеть, это скрипят старые гвозди.
Можно ли это исправить? Если это скрипят гвозди заколоченные в доски по которым мы непосредственно ходим, то возможен вариант протянуть саморезами эти доски вокруг тех мест где они скрипят – это должно помочь, но к сожалению помогает не всегда.
Другой вариант если это скрипят гвозди забитые в лаги. Здесь ничего поделать нельзя – полы либо так и будут скрипеть, либо их нужно полностью менять.

Выравнивание деревянных полов
В зависимость от кривизны полов для этого используют либо ДВП, либо ДСП. При использовании ДСП поверхность полов получается более ровной, но работа и сами материалы выходят дороже.
Под ламинат необходимо стелить именно ДСП, под линолеум возможно ДВП (зависит от кривизны имеющегося пола).
Так же перед началом настила плит необходимо выравнивание досок, это делаться при помощи рубанка или машинки, используемой для шлифования паркета. Второй способ обойдётся вам в разы дороже.

Стяжка
В современных условиях качественные полы изготавливаются путём изготовления цементно-песчаной стяжки, которая заливается на слой керамзита. Керамзит здесь используется как теплоизоляция и звукоизоляция.В чём главные плюсы цементно-песчаной стяжки:
1. При хорошо выполненной работе – стяжка получается ровной и уже готова для монтажа ламината, если же вы хотите стелить линолеум или ковролин рекомендую поверх стяжки сделать наливные полы. В прочем наливные полы рекомендуется делать во всех случаях, так как их поверхность более крепкая и гладкая.
2. Цементно-песчаная стяжка получится ниже на несколько сантиметров, которые вы потеряете в случае монтажа потолка из гипсокартона или натяжного потолка.
3. Даже выровненные деревянные полы, не будут стоять по уровню (горизонтальной плоскости). Вы скажете: “Да какая мне разница, если уровень пола уходит на 2-3 сантиметра, я этого не замечу! Ведь это можно увидеть только при помощи специального инструмента.” Отвечу – вы не правы!
Потолки, что натяжные, что из гипсокартона делаются по уровню, и в таком случае после ремонта выйдет, что расстояние от пола до потолка в одном углу будет больше чем в другом.

“И что же?” – спросите вы. А то, что установив шкаф, в одном углу скажем он будет до потолка, а в другом будет щель до потолка в 2-3 сантиметра. Сделать мебель на заказ?
Фасады все равно должны иметь правильную геометрическую форму, иначе двери не будут закрываться и открываться, делать ножки выше – ниже, придумывать ещё что-то, выход найти можно всегда – но это также будет стоить денег, а дополнительно вашего времени и ваших нервов.
В некотором роде аналогом цементно-песчаной стяжки является черновой пол из плит пол из плит ЦСП.
Итог
Ни зря во всех новостройках делают стяжку. Начиная делать ремонт вы задумывайтесь о том, что будет дешевле и быстрее. И в этом обвинить нельзя никого, но в данной статье мы рассматривали качество.
В современном мире, из существующих материалов цементно-песчаная стяжка и наливные полы в разы превосходят привычные деревянные полы.
Особенности строения хрущевок, их виды
Прежде чем переходить к советам по ремонту в хрущевках, необходимо озвучить особенности строений, которые подпадают под данное название. Ведь общего у них собственно только маленькие габариты, часто объединенный санузел и невысокие потолки, а вот в плане конструкции различия довольно существенные, что следует учитывать при планировании ремонта, как капитального, так и легкого декоративного. Объединяет их также период строительства – 60-80 года прошлого века. В то время была разработана и внедрена в массовое строительство целая группа проектов. Среди них:
- Панельные дома из железобетонных панелей с несущими продольными внешними стенами;
- Дома с внешними кирпичными стенами, внутренним каркасом из ж/б колон;
- Панельные дома из железобетона с несущими продольными и поперечными стенами.

Типичное здание своей эпохи в Москве
Основной конструктивной особенностью является наличие внутри конструкции несущих колон и ригелей, на которые опираются плиты перекрытия. Во всех типах домов перекрытия выполнялись с использованием 220 мм железобетонных плит с пустотами.
Внутренние перегородки могут существенно различаться по материалу. Так, в панельных домах чаще всего использовались тонкие, всего в 40 мм толщиной, стены, выполненные из пенобетона и гипсобетона. Другим вариантом исполнения были деревянные перегородки, которые обшивались дранкой и оштукатуривались.
Компоновка квартир предполагает наличие проходных комнат малого размера, объединенный санузел и малогабаритную кухню, которая в лучшем случае могла иметь площадь до 7 м2.
Вентиляция организована централизованно с выводом воздуховодов в кухню и санузел. В панельных вариантах на оконных проемах отсутствуют подоконники.
Теплоизоляция внешних стен в большинстве случаев недостаточная. Особенно это заметно для центральных и северных районов страны.
Отделка стен и потолков в хрущевках
Сложность отделки в хрущевках состоит в предельно малой толщине перегородок. Как уже говорилось выше, перегородки выполняются здесь из гипсобетона, пенобетона или дерева. В виду различий между этими материалами отличны и особенности их отделки и восстановления.
Деревянные перегородки формируются с обивкой дранки и оштукатуриванием. Такие стены подвержены деформации, и очень сложно избежать образования трещин, даже после профессионального ремонта. Любой ремонт комнаты в хрущевке следует начинать с укрепления стен по краям с помощью металлических уголков. После их можно оштукатурить с применением армирующей сетки. В качестве отделочного материала подойдут толстые обои, пробка и пробковые обои, покраска или же декоративная штукатурка. Главное, чтобы слой отделки не превышал 1-2 см. Ведь при малых размерах комнат не стоит тратить ни одного лишнего квадратного сантиметра площади. Так что любые виды обшивки, которые монтируются на обрешетку, неприемлемы.

Перегородки из пенобетона и гипсобетона легко поддаются отделке. Они практически не деформируются и достаточно прочны. Основная проблема — это сравнять их. Использовать продуктивный метод с маяками вряд ли получится, и при этом будет опять-таки занято слишком много места. Так что предстоит повозиться с выравниванием стен с использованием стартовой шпаклевки в несколько слоев в тех местах, где обнаружены глубокие перепады. Несколько слоев необходимы, ведь при толщине слоя шпаклевки в 2-3 мм уже заметна усадка раствора при застывании и возможно его растрескивание.
Другим вариантом может стать либо оклейка стен тонкими гипсокартонными листами, либо же полная замена перегородок на гипсокартон, укрепленный на каркасе из профиля. Последний вариант сразу же решит и другую насущную проблему хрущевок, а именно сложность в разводке электрических проводов и установки розеток и выключателей.
Если необходимо выполнить сверление гнезда под розетку или выключатель, то предстоит делать это предельно внимательно и аккуратно. Толщина перегородок столь маленькая, что легко можно сделать сквозное отверстие в соседнюю комнату или же вовсе к соседям. При использовании специальных насадок необходимо воспользоваться ограничителем на дрели, чтобы выполнить бурение на строго определенную глубину.
Потолки в хрущевках так же, как и стены не отличаются ровностью. Стыки между плитами чаще всего очень ярко просматриваются и иногда перепады могут достигать 2 сантиметров. Чтобы вывести потолок в один уровень, можно разве что предложить самую простую форму подвесного потолка. В этом случае каркас из профиля крепится без подвесов непосредственно к потолку с помощью специальных держателей в виде перфорированных лент.
Заключение
Хрущевки давно уже себя изжили не только с технической точки зрения, но и с моральной. Кроме этого, современная планировка учитывает недостатки прошлого и не допускает подобных просчетов. Те, кто до сих пор живет в хрущевке, ежеминутно и ежесекундно думают, как быстрее осуществить ремонт, с целью избавления от этих крошечных кухонь, туалетов и ванн, а также проходных комнат, где не оптимально используется полезная площадь маленьких комнат.
При этом, следует учитывать, что существует еще одна проблема, не менее серьезная – это организация проекта перепланировки и его утверждение. К великому сожалению, бюрократы не хотят идти навстречу хозяевам хрущевок. Подобное решение получить весьма сложно и хлопотно, а то и совсем дорого. В связи с этим многие владельцы квартир улучшают свою жизнь самостоятельно и переделывают свои квартиры втихую. При определенных условиях, когда придется продавать квартиру, придется заплатить и штраф за самопроизвольную перепланировку. Если все сделано без нарушений технологии, то паспорт на квартиру переделают, естественно за отдельную плату.
Но здесь кроется и другая проблема, связанная с тем, что часть владельцев квартир, при проведении перепланировки все же нарушают требования и нормы, что приводит иногда к плохим последствиям.
Исходя из этого, можно сделать заключение, что любые работы желательно согласовать с соответствующими организациями и получить на это разрешение, иначе можно иметь дело с законом, что повлечет за собой административную или уголовную ответственность.
Список источников
- x-line.by
- stroyday.com
- krrot.net
- designer-apartments.ru
- strojka-gid.ru
- vopros-remont.ru
- stenamaster.ru
- www.remontyes.ru
- homius.ru
- mirndv.ru
- interiorno.ru
- s30087890855.mirtesen.ru
- samsmogy-remont.ru
- salon.ru
- bogiremonta.ru
7 лестниц