Проект двухэтажного дома Верден-2 (230 кв.м.)
Полюбившийся нашим заказчикам проект 2-х этажного коттеджа Верден с каждым воплощением получает частичку индивидуальности владельца. Эта вариация, незначительно отличающаяся от исходного проекта по планировке, всё же претерпела существенные изменения в плане фасада.

Архитектура это дома ещё ближе к так называемому “стилю прерий” за счёт большого выноса крыши, который зрительно делает дом более компактным, приземистым и сливающимися с окружением и в то же время лучше защищает стены от атмосферных осадков.

Фасады дома выдержаны в тёплых тонах из кирпича с применением “баварской кладки” и плитки под дерево. Такая кладка придаёт строению особый шарм. В этом проекте панорамные окна в пол заменены на окна с невысокими подоконниками, что позволяет сэкономить на внутрипольных конвекторах и открывает для обзора только самые красивые видовые точки. В целом от дома веет благородством и вместе с тем уютом.
ХАРАКТЕРИСТИКИ ПРОЕКТА
КУПИТЬ ПРОЕКТ Верден-2
Все материалы и размеры, указанные в каталоге и на сайте, не могут использоваться при строительстве дома без приобретения рабочей документации. Отдельно продажу паспорта проекта без приобретения основного комплекта рабочих чертежей мы не осуществляем.

ПЛАНИРОВОЧНЫЕ РЕШЕНИЯ
Внутри это практически тот же старый добрый Верден. При сравнительно небольшой общей площади 230м2 и компактном пятне застройки здесь есть всё необходимое для комфортной загородной жизни. Кроме того небольшие габариты коттеджа дают возможность ограничиться одной несущей стеной внутри строения, что позволяет варьировать планировку по вашему желанию только за счёт перегородок.
На первом этаже дома расположен гараж на одно машиноместо, здесь есть также вход в погреб заводского изготовления. Такой погреб приобретается отдельно и его размеры зависят от потребностей владельца дома. Дом отапливается при помощи оборудования, размещенного в бойлерной.

При входе в дом размещены гардеробная для хранения верхней одежды и гостевой санузел, совмещенный с постирочной. Оборудование постирочной (стиральная и сушильная машины) размещено в нише, которую можно закрыть дверями-купе и скрыть от глаз, расположив тут же шкаф для бытовой химии.
Общая зона включает в себя объединенное пространство кухни-столовой и гостиной с панорамным окном и выходом на просторную террасу, оборудованную мангалом. Гостиная здесь наполнена светом, а большое окно создаёт ощущение единения с природой. Кухня также связана с террасой окном над мойкой — блюда за стол на открытом воздухе можно передать кратчайшим путём, а во время мытья посуды есть чудесная возможность полюбоваться садом.
Важная составляющая комфортной загородной жизни — удобные места для хранения, и их в этом доме достаточно: кладовая под лестницей для хозяйственного инвентаря и продуктовая — при кухне.

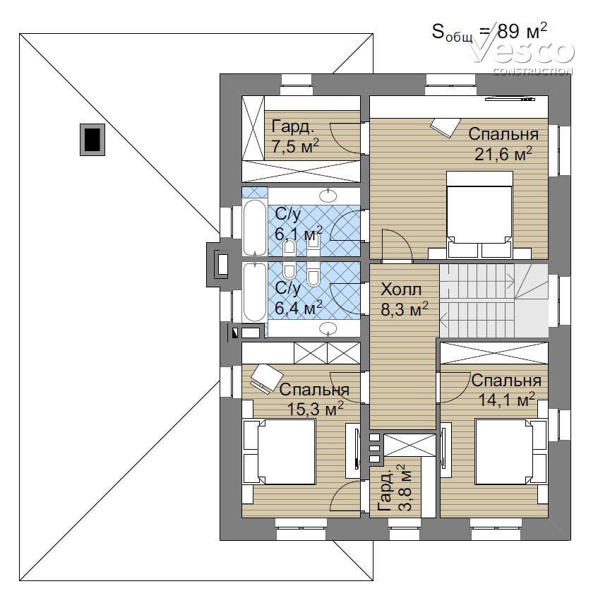
На втором этаже коттеджа находятся три спальни. Две из них имеют идентичные размеры, они могут служить детскими. В одной из спален есть собственная гардеробная, в другой выделена ниша для шкафов. В общем для этих двух спален санузле есть ванна и конечно же предусмотрено естественное освещение. В просторной хозяйской спальне запроектированы комфортный санузел и собственная вместительная светлая гардеробная с возможностью обустроить будуар.
КУПИТЬ ПРОЕКТ Верден-2
Строительство деревянных домов
Как в свое время говорили жители Великобритании: «Мой дом – моя крепость». Но как же хочется, чтобы эта крепость была не только надежной, но и стильной, удобной для проживания. Компания «Домик Строй» – это надежный партнер, который предлагает строительство каркасных и щитовых домов, дач и бань под ключ. Причем стоимость услуг наших мастеров будет самой адекватной и доступной для любого заказчика.
Брусовые дома под ключ
Итак, если вы решили построить дом из бруса под ключ, наши специалисты смогут помочь в решении этой задачи максимально качественно и оперативно. Мы берем на себя все работы, начиная с создания проекта дома и заканчивая облагораживанием его внешнего вида, проведение отделочных работ в доме. Дома из бруса под ключ популярны по нескольким причинам:
- они прекрасно держат тепло (зимой в них не холодно, а летом – не жарко);
- прекрасный микроклимат, который, благодаря уникальным свойствам дерева, препятствует развитию болезнетворных бактерий и микроорганизмов;
- дома из бруса, построить которые под ключ мы предлагаем, не требуют постоянного ухода, их можно эксплуатировать очень долго.
Профессионализм наших мастеров позволяет построить брусовые дома под ключ не только быстро, но и очень качественно.
Щитовой дом под ключ
Главной мечтой каждого человека является желание обзавестись собственным домом. Многие всю жизнь собирают деньги или берут их в кредит для покупки своего жилья. Часто осуществление мечты затягивается на годы и даже десятки лет. Основной причиной тому является то, что готовые предложения не устраивают потребителя, а строить свой дом слишком дорого. Это и стало толчком для инновационной идеи от компаний, занимающихся строительством. Щитовые дома более 50 лет пользуются популярностью в Восточной Европе и США, в нашей стране этот тип строительства только осваивается. Такие дома строятся действительно очень быстро, не более 1-2 месяцев.
Преимущества каркасно щитовых домов:
Каркасно щитовые дома в нашем каталоге появились несколько лет назад, но за это время они заняли лидерские позиции по продажам из-за ряда преимуществ:
- «Правильный» микроклимат в доме, благодаря составу панелей;
- Высокая теплоизоляция стен, позволяющая сохранить тепло зимой и насладиться прохладой в доме летом;
- Высокая звукоизоляция стен и перестенков;
- Материалы не токсичны и экологичны;
- Минимальные затраты на внутренние работ из-за отсутствия неровностей на стенах, только небольшие соединительные швы между панелями.
Для окончательного выбора метода постройки стоит отметить, что щитовой дом под ключ будет стоить дешевле на 30-50%, чем любой кирпичный дом с готовым проектом.
Новости
21 Января 2020
Новинский ЗМК продолжает наращивать темпы производства
21 Января 2020
Новинский ЗМК продолжает наращивать темпы производства
«Отличное начало 2020 года, наши Заказчики ценят качество и выполнение сроков поставки металлоконструкций нашего завода, поэтому привозят нам всё новые и новые заказы.» -…
14 Января 2020
Пополнение запасов для кислородного оборудования
14 Января 2020
Пополнение запасов для кислородного оборудования
Ранним утром на Новинский ЗМК в городе Егорьевск приехала специальная машина для заправки нашей ёмкости жидким кислородом.
30 Декабря 2020
Новогоднее поздравление от компании Новинский завод металлоконструкций
30 Декабря 2020
Новогоднее поздравление от компании Новинский завод металлоконструкций
Наши дорогие, уважаемые Партнеры и Коллеги, в этот наступающий волшебный праздник позвольте пожелать вам всего наилучшего. Пусть уходящий год станет для вас еще одним этапом на…
16 Декабря 2020
16 Декабря 2020
12 Декабря 2020
Объединение и консолидация рынка МеталлоСтроительства идёт полным ходом
10 Декабря 2020
Объединение и консолидация рынка МеталлоСтроительства идёт полным ходом
Сегодня в офисе Новинский ЗМК состоялись плодотворные переговоры с Проектно-Строительной Компанией “ТРАНССТРОЙПРОЕКТ” в лице Генерального директора Харламова Дмитрия Николаевича и…
05 Декабря 2020
Новинский ЗМК получил Сертификаты Соответствия Республики Беларусь
05 Декабря 2020
Новинский ЗМК получил Сертификаты Соответствия Республики Беларусь
НОВИНСКИЙ ЗМК ПОЛУЧИЛ ОЧЕРЕДНОЕ ПОДТВЕРЖДЕНИЕ ВЫСОКОГО КАЧЕСТВА ПРОДУКЦИИ. Эффективно выстроенный менеджмент — важнейшее звено в обеспечении рынка, внешнего и внутреннего,…
02 Декабря 2020
02 Декабря 2020
Новинский ЗМК и Carboglass pro создали типовой конно-спортивный комплекс БУЦЕФАЛ
27 Ноября 2020
Новинский ЗМК и Carboglass pro создали типовой конно-спортивный комплекс БУЦЕФАЛ
Новинский ЗМК и Carboglass pro создали типовой конно-спортивный комплекс “БУЦЕФАЛ”. Равномерная инсоляция без слепящих солнечных лучей и теней создает благоприятный световой…
23 Ноября 2020
23 Ноября 2020
Увеличение производственных мощностей идёт по плану Новинский ЗМК
13 Ноября 2020
Увеличение производственных мощностей идёт по плану Новинский ЗМК
Отлично выстроенная технологическая цепочка изготовления металлоконструкций позволяет соблюдать технические требования согласно ГОСТ и заводского ТУ. Проводится контроль качества…
06 Ноября 2020
06 Ноября 2020
01 Ноября 2020
31 Октября 2020
29 Октября 2020
О нашей Управляющей компании
«УПРАВЛЯЮЩАЯ КОМПАНИЯ «ЛЮБИМЫЙ ДОМ» оказывает услуги по управлению и обслуживанию жилых домов и коммерческой недвижимости с 2015 года. На данный момент в управлении организации находится 13 многоквартирных домов (более 3000 квартир и офисов), в том числе три дома “ТСЖ”. УК «Любимый дом» предоставляет своим жителям преимущества которые не дает ни одна из управляющих организаций города: наши преимуществаБудем благодарны за Ваши замечания и предложения – они помогают нам становиться лучше. Спасибо Вам. Хорошего времени суток ! Видеонаблюдение домов он-лайн и архив:https://orbita-telekom.ru/cameraЗапись предоставляется по личному обращению с указанием камеры, даты и времени. По камерам на домах “ТСЖ” Вам необходимо обращаться к Председателям “ТСЖ”.
Список источников
- nvzmk.ru
- podryady.ru
- domykstroy.ru
- uk-ldom.ru
7 лестниц