Варианты перепланировок апартаментов
Зачастую перепланировку трудно представить без сноса стен, объединения одного помещения с другим и разделения комнаты на конкретные функциональные зоны. Большинство видоизменений придется согласовывать не только с соседями, но и с соответствующими органами.

Разработка готового дизайн-проекта зависит от технических характеристик жилья, количества членов семьи, их деятельности и привычного образа жизни, наличия ребенка. Потребности всех хозяев могут кардинально отличаться:
- для одинокого холостяка просторная рабочая зона на кухне часто не является острой необходимостью, поэтому всегда можно пожертвовать лишний метр этого помещения ради увеличения комнаты;
- для молодой семьи, планирующей завести детей, стоит предусмотреть место, где будет находиться кроватка новорожденного;
- для домочадцев, которые любят принимать гостей, не лишним будет выделить дополнительное спальное место;
- человеку, работающему дома, необходимо обустроить уютный кабинет, для которого подойдет эркер или лоджия.

Планировка жилья для одного человека
Жилая комната одинокого постояльца обычно разбивается на четыре зоны:
- гостиную;
- спальню;
- рабочую зону с компьютером;
- гардеробную.
Все участки могут быть равноценными, а гардеробная становится местом хранения как одежды всех сезонов, так и спортивного инвентаря, если хозяин квартиры в нем нуждается.
Объединение лоджии с комнатой – наиболее оптимальное решение для типовой квартиры П44Т. Зачастую полностью убрать несущую перегородку невозможно, поэтому дизайнеры предлагают максимально увеличить дверной проем, что позволяет визуально увеличить площадь и выделить освобожденный участок для зоны отдыха или под рабочий кабинет. Здесь можно поставить маленькую софу или кресло, разместить компьютерный стол.

Разграничить зону спальни и гостиной можно с помощью перегородки со сквозным стеллажом, на котором уместно хранить книги или рабочие документы.
При выборе кухонного гарнитура стоит остановить свой выбор на модульной мебели компактных размеров: она идеально подойдет для нужд человека, который живет один. Чтобы освободить место для холодильника, можно перенести перегородку между кухней и санузлом.

Стильная «однушка» для молодой пары
Для молодой семьи, пока не планирующей заводить детей, в дизайне квартиры основной акцент делается на зоне гостиной. Чтобы увеличить этот участок, так же рекомендуется объединить лоджию с комнатой. Спальное место стоит ненавязчиво отделить с помощью легких конструкций, например, красивой металлической перегородки в стиле лофт. В качестве визуального разделителя может послужить и большой комнатный цветок, например, монстера, драцена или гибискус.

Двое молодых людей нуждаются в большей гардеробной, которую можно эргономично разместить даже в таком ограниченном пространстве. Для этого стоит убрать проход в кухню из коридора, что позволит продлить санузел и уменьшить его ширину. Ванна заменяется на компактную душевую кабину, а на освободившейся в прихожей площади можно поставить вместительный шкаф. Подобное решение дополнительно вытягивает кухню, на территории которой логично разместить просторную рабочую зону вдоль окна.
Дизайнерское решение дает возможность выгодно использовать пространство и удобно разместить максимальное количество вещей.

Вариант для семейной пары с детьми
Семьям с уже появившимися наследниками придется пожертвовать зоной гостиной. На этом участке комнаты обустраивается детская, которая объединит и игровую, и спальню, и место для выполнения домашних заданий. Поэтому эту зону лучше приблизить к утепленной лоджии:
- бывший подоконник может заменить стеллаж для учебников;
- стол школьника аккуратно впишется в часть объединенной с комнатой лоджии.

Сохранить личное пространство родителей позволит перегородка с раздвижным механизмом, скрывающая кровать и тумбочки от любопытных детских глаз.
При оформлении интерьера кухни стоит подумать об увеличении посадочных мест. Небольшой диван позволит комфортно разместиться за обеденным столом части семьи, а гарнитур в форме буквы «Г» дает возможность спокойно позавтракать всем домочадцам.
Освободить площадь для шкафа можно в прихожей, повторив продление помещения санузла.
Продумываем планировку квартиры-студии 20 кв.м.

Исходная планировка типичных однокомнатных квартир
Строительство домов серии П44Т началось еще в 1979 году. Здания стали первым продолжением типовых многоэтажек П-44. Подобные дома возводятся до сих пор, поэтому нередко счастливые обладатели квартир в новостройках на собственном опыте знакомятся с планировкой П44Т/25 и отличиями П-44Т от П-44К.

Дом, построенный по проекту П44К, не имеет трехкомнатных апартаментов. На одном этаже расположены две одно- и две двухкомнатные квартиры. «Однушка» в П-44К отличается большей площадью кухни, дополнительные кв. м освобождаются благодаря уменьшению коридора. Так же в подобной квартире есть полуэркер.
Дизайн квартиры студии 26 кв. м +75 фото интерьера

Однокомнатное жилье линейки П-44Т более комфортабельно, чем квартира в его предшественнике П44. Благодаря переносу вентиляционного короба увеличен размер кухни. Общая площадь такой квартиры составляет 37-39 кв. м, из которых под жилое помещение отводится 19 кв. м, а под кухню – от 7 до 9. Неудобства, связанные с совмещенным санузлом размером не более 4 кв. м, компенсируются благодаря наличию просторной прихожей и лоджии.

Плюсы и минусы квартир-распашонок
В любой квартире старой постройки есть свои преимущества и недостатки, но стоит отметить, что плюсов гораздо больше, чем минусов. Посмотрев фото ремонта двушки–распашонки п44т в интернете, вы убедитесь, что преимущества можно приумножить и с легкостью справитесь с недостатками.
Основные преимущества квартиры:
- Выход окон на разные стороны дома дает больше солнечного света в помещениях. Также это удобно для семьи с детьми, мама может наблюдать за детской игрой, не выходя из дома из окна, выходящего во двор.
- Эркер на кухне. Благодаря этому элементу планировки можно создать уникальный и красивый дизайн, который выгодно подчеркнет всю квартиру.
- Два балкона. Один из них можно использовать по прямому назначению, а за счет другого расширить полезную площадь помещения.
- Удобство проветривания, вам никогда не понадобиться кондиционер даже в очень жаркие дни. Окна на разные стороны проветрят помещение за несколько минут естественным путем.
- Легкая перепланировка квартиры при необходимости. Внутренние стены в таких домах не являются несущими, поэтому без особых разрешений и усилий можно убрать несколько перегородок для создания того интерьера, какой вам необходим.
- Размер коридора позволит поместить удобную гардеробную на всю семью или поставить дополнительную бытовую технику, чтобы не заставлять кухню.
Минусы в такой квартире тоже присутствуют, но они компенсируются большинством плюсов. Дизайн двушки-распашонки п44т подразумевает единый стиль для всего помещения
Также стоит обратить особое внимание на качество остекления окон и балконов: малейшая щель создает сквозняк, что будет небезопасно для вас и особенно для детей

Распашонки часто встречаются в домах сериях п-44 и п44т.
Варианты перепланировки
Обычно в трехкомнатной квартире много несущих стен, что служит препятствием для проведения кардинальной перепланировки. Но все же есть несколько способов, как можно высвободить несколько метров полезной площади и разработать оригинальный дизайн 3 комнатной квартиры п44т:
Самый распространенный прием – объединение кухни и гостиной. Этот способ перепланировки квартиры позволяет всей семье вечером собираться в одном помещении. Если стена несущая, то обычно просто прорубается дверной проем или арка, чтобы удобно было проходить из зала в кухню.

«Расширить» кухню также можно, если соединить ее с лоджией. Получившееся дополнительное пространство можно занять обеденным столом, барной стойкой или шкафами для хранения посуды.

Лоджию можно использовать как небольшую комнату. Для этого закрывается оконный проем и меняется дверь. Также придется утеплить получившееся помещение или постелить полы с подогревом.

Избавляться в квартире можно от незадействованного пространства в коридорах. Коридор можно присоединить к ванной и получить место для стиральной машинки или сушилки для белья. Кроме этого, часть узких проходов можно присоединить к площадям комнат и установить там шкафы купе.

В некоторых домах есть эркер, и с этой деталью также можно экспериментировать – например, в этом пространстве можно организовать место для отдыха или небольшую библиотеку.

Перепланировка на любой случай
Семьи бывают совершенно разные, и однокомнатная квартира серии п44т может с легкостью подстраиваться под любых своих жильцов благодаря достаточно простым приемам зонирования, используемым дизайнерами своих проектах.
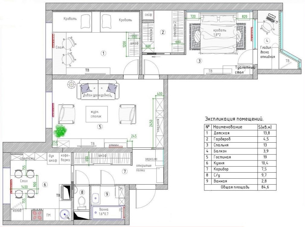
| Семья | Вариант зонирования | Проект |
| 1 человек | Спальня, гостиная, рабочее место |
|
| Молодая пара | Большая гостиная, маленькая спальня, гардеробная |
|
| Семья с двумя детьми | Детская, место для учебы, взрослая спальня |
|
| Мама с двумя детьми | Детская, место для учебы, гостиная |
|
| Семья с одним взрослым ребенком | Взрослая спальня, детская, место для учебы, гостиная |
|

Планировка для одного человека: комната разделяется телевизионной стойкой на гардеробную и диванную зоны. Появляется вместительная система хранения и визуально открытое пространство

В этом варианте появляется приватная спальная зона с просторной двухспальной кроватью

Планировка для двоих: квартира получает и спальню, и гостиную, и большой гардероб

Планировка для семьи с ребенком: комната разделяется на три миниатюрные, но самостоятельные зоны – детскую, спальню и гостиную

В комнате есть спальня и гостиная: можно довольно комфортно разместить и гостей, и себя
Какой выбрать стиль и дизайн интерьера трехкомнатной квартиры П44Т
Стилистический выбор при ремонте практически ничем не ограничен, поскольку достаточно высокие потолки и площадью 93 кв.м. дают простор дизайнерской мысли.

Светлая и просторная гостиная в современном стиле

В отделке использованы современные натуральные материалы – пробковые панели, бамбуковые обои и паркетная доска
Органично воспринимается дизайн 3-комнатной квартиры П44-Т в разном стиле:
- урбанистический, скандинавский или японский минимализм;
- прованс, шале и другие виды кантри;
- восточный колорит или другой этнический акцент;
- хай-тек или лофт;
- контемпорари, фьюжн, другой современный микс.

Скандинавский интерьер практичен, прост в оформлении и идеален для комнат с окнами на север

Красивая гостиная в японском стиле

Лаконичность и простата минимализма – только самое необходимое и минимум декоративных “штучек”

Для хай-тека характерно всё самое современное – мебель, техника и отделочные материалы
Основная цветовая гамма зависит от личных предпочтений и естественного освещения комнат, выходящих на разные стороны. В северных широтах специалисты предлагают компенсировать недостаток солнечных лучей широким применением ярких акцентов на светлом или белом фоне.

Милая и уютная спальня в стиле прованс

Непритязательная атмосфера в спальне стиля кантри способствует расслаблению и отдыху

Лофт обычно выбирают ценители неординарных решений

Контемпорари предоставляет свободу творчества и в наше время часто пересекается с другими направлениями интерьера

Фьюжн никогда не бывает скучным, ведь в нем причудливо переплетаются элементы самых разных стилей, наиболее близких хозяевам квартиры
Предпочитаемая гамма в зависимости от стороны света:
| 1. | Север | Теплая гамма (желтые, бежевые, абрикосовые, розовые и бордовые тона, терракота). |
| 2. | Юг | Сдержанная холодная палитра (мятный, изумрудно-зеленый, лиловый, синие и голубые оттенки). |
| 3. | Запад | Мягкие тона, поглощающие избыток освещения (бежевые и коричневые цвета, оливковый, серый). |
| 4. | Восток | Тона, усиливающие освещение, когда солнце идет к закату (апельсиновый, сиреневый, желтый, красный). |
Ремонт рекомендуется завершить грамотным подбором мебели, соответствующей стилистике дизайна. Для современной детской можно выбрать двухъярусную мебель, если дизайн готовят для двоих мальчиков.

В комнате для двоих детей всё должно быть умножено на два

Два рабочих места около окна и две кровати, размещенные изголовьем друг к другу

Места для учебы организованны на общей столешнице, установленной вместо подоконника

Цветовая палитра из бежевого и терракотового цветов отлично вписалась в интерьер этой комнаты для мальчиков-подростков
Не рекомендуется оставлять старые «шедевры» советской и постсоветской эпохи, даже если это любимая мягкая или корпусная мебель. Замените фасады на новые, если это встроенная мебель. А комфортный мягкий уголок с креслами для объединенной гостиной-столовой лучше осовременить перетяжкой. Экокожа и флок с тефлоном отталкивает жидкости загрязнения, если случайно опрокинуть чашку чая или уронить бутерброд с вареньем.
Компактность помещения – не приговор, а возможности
В современных «хрущевках» полет фантазии дизайнера часто разбивается о типичные проблемы планировки – помещения в них далеки от идеала удобства, а ванную или кухню перенести просто невозможно. С другой стороны большинство перегородок не являются несущими и могут при правильном подходе переноситься достаточно легко.

Но планировка квартиры 44 кв. м. может все же улучшаться. Например, можно убрать прихожую, а за счет высвобожденных квадратов расширить санузел или кухонное пространство. Также отдельно целесообразно обустроить зону для хранения вещей.

Данные изменения компенсируются правильным выбором цветовой гаммы. Если вы используете в качестве базового белый цвет, то с ним можно комбинировать любые решения с разнообразными оттенками элементов интерьера.
Одновременно светлые тона помогают визуально расширить все комнаты. А реализованный минимализм может прекрасно дополняться элементами в эко-стиле. Например, прекрасно будет сочетаться оформление пола и какой-либо стены под натуральное дерево. Жилье выиграет в теплоте и уюте обстановки.

Цветовая гамма
Выбор цветовой гаммы может быть самым разным. Многое зависит от выбранного вами стилевого решения. Например, для скандинавского стиля единая цветовая палитра для всего жилья – это принципиальный вопрос. Как правило, основа скандинавского стиля – это оттенки белого: для потолка, стен и даже пола. Фон готов. Теперь осталось расставить яркие акценты. В скандинавском интерьере может быть до 5 оттенков. Виды акцентов: разноцветный коврик, декоративные подушки или мебель темного цвета.
Цветовая гамма лофт-интерьера формируется иначе. Роль фона играет кирпичная кладка или ее имитация (как вариант – грубо оштукатуренные стены). Обязательные моменты – одноуровневые потолки и одинаковое напольное покрытие во всех комнатах. Что касается мебели, текстиля и аксессуаров, то они могут быть какими угодно: от суперсовременных до антикварных. Например, в коридорчике традиционную вешалку заменит стойка с «плечиками» и дощатая полка для головных уборов.
- Для смешанных решений, сочетающих элементы классики, прованского стиля или модерн, уместны такие советы:
- Выбор 2-3 оттенков. Они могут быть контрастными или, наоборот, сочетающимися. Аксессуары выбирают под цвет отделки.
- Основной фон для всего жилья единый (как правило, нейтральный), а одну стену в каждой комнате ярко окрашивают или оклеивают обоями с узором, подходящим по стилю.
Красиво выглядит интерьер с 2-3 общими цветами и одним собственным в каждом помещении.
Дизайн спальни
Осуществляя ремонт квартиры, не следует забывать и об обустройстве наиболее интимной ее части – спальни. Яркие цвета приветствуются в оформлении, а для спальни можно выбрать, например лайм. Если не перегружать предметами, то благодаря фиолетовому текстилю, можно обеспечить контрастность восприятия и сделать комнату более нарядной.

Не следует утяжелять интерьер массивной меблировкой. Целесообразно выбирать предметы более светлых тонов. Многие дизайнеры рекомендуют обустраивать более контрастной одну из стен.

И желательно выбирать ту, которая размещена напротив кровати. На ее поверхность можно нанести покрытие с яркими узорами или рисунками. А вот над кроватью следует разместить постеры в эко-стиле.


Кухня в трешке П-44Т
Что касается кухни этой серии домов, то она совмещена с лоджией или застекленным выступом из наружной стены, что называется эркером. Он дает возможность для реализации идей его использования либо как зону отдыха, либо размещая там зону мойки. Для этого не обязательно демонтировать отопительную батарею, а поместить ее в решетчатый короб. Иначе придется монтировать дополнительные обогревательные приборы, оснащая кухню теплым полом или конвектором.

Относительно переноса мойки в эркер, то придется проходить процедуру согласования, так как такая модернизация потребует изменений инженерных коммуникаций и для обеспечения уклона сливной канализации придется приподнимать пол.
Дизайн квартиры-студии площадью 23 кв. м

При этом следует использовать мебель, повторяющую контуры эркера. Правда, если оснастить его сплошной столешницей, то она своим ровным наружным краем сгладит эркер внутри кухни.

Некоторые проектировщики рекомендуют в кухнях с выступами применять их в качестве дополнительной площади для увеличения обеденной зоны, обустраивая так называемые банкетки.

Относительно визуального оформления кухни то часто комбинируют стилями вокруг одного цветового решения интерьера. Поэтому можно сочетать как классический, так и современный тип хай тек, как французский, так и прованский, а также голландский и скандинавский типы.
Оформляем гостиную
Гостевой зал оформляют светлыми тонами. Место, где происходит общий сбор членов семьи, и принимают гостей, оформляют яркими красками. В гостиной выделяют несколько разных зон для отдыха, по вкусам и предпочтениям жильцов. Помимо дивана, здесь располагают несколько кресел, ставят столик для компьютера или прессы, размещают телевизор.

Иногда ее объединяют с лоджией, оснащают барной стойкой, делая подобием кафе.
Оригинально выглядит гостиная, которая сделана в скандинавском типе, что предполагает использование натуральных материалов преимущественно белого цвета. А вот американский тип предполагает наличие камина, а напротив него дивана. Для поклонников экзотики, есть варианты восточного, латиноамериканского или африканского стиля. Сделав гостиную центром интерьера, можно оформить также прихожую, а также коридоры и кухню.

Если рискнуть и сделать перепланировку, то оптимальное решение – это объединить гостиную с кухней с помощью дверного проема или арки из зала в кухню, что позволит всей семьей собираться в одном большом гостевом зале.
Варианты трансформации внутреннего пространства
Трехкомнатные квартиры отличаются несущие перегородками, которые нельзя сносить.
Даже если не делать радикальной перепланировки, найдется несколько удачных решений, чтобы сделать дизайн квартиры серии П-44 более комфортным для проживания:
| 1. | Объединение кухни с гостиной | Не сносить стену, а обойтись большим арочным проемом с барной стойкой на половину прохода |
| 2. | Добавить кухне площади лоджии | Убрать дверь и окно, сделать полное утепление и вынести туда обеденный стол (кресла с тумбой) |
| 3. | Добавить кв.м санузлу | Свободное пространство коридоров срезать и «нарастить» в ванной места для машинки |
| 4. | Жилые комнаты удлинить | Отнять от коридора кв.м для спален, чтобы оборудовать шкаф-купе или гардеробную |
Эркер – хорошее место для экспериментов в дизайне интерьера квартиры серии П 44, где много естественного света. Тут может стоять письменный стол, где школьники будут учить уроки, или удобный диван для чтения или работы за ноутбуком.
Интерьер гостиной с эркерным окном можно обустроить по-разному
Комнаты лучше благоустроить в том стиле, который устроит всех членов семьи.
Гостиная
Гостиную дизайнеры предлагают сделать светлой, «вкусных» оттенков, например, кремовый фон и шоколадные линейные контрасты, чтобы исключить черный цвет. В таком дизайне интерьера П 44 будет хорошо смотреться классический столовый гарнитур из светлой древесины или мягкая мебель с роскошной обивкой.
Маленькую гостиную можно увеличить, убрав перегородку между комнатой и коридором
Спальня
Супружескую спальню можно оформить в духе романтизма. Выбор цвета зависит от личных предпочтений, но светло-сиреневый или нежно-голубой цвет обычно устраивает обоих супругов. Выбор пользу современной стилистики подчеркнут парящие потолки наливные полы.
Шкафы с зеркальными дверками зрительно расширяю пространство небольшой спальни
Туалетный столик можно поставить около окна
Детская
Детская комната – вторая спальня, дизайн комнат П 44 Т дает возможность «разгуляться» с декорациями и зонированием. Если детей двое – двухъярусная кровать и модульная корпусная мебель позволят сэкономить место для игровой зоны. Не забудьте про место для рабочего уголка с многочисленными полками и стеллажи для игрушек и мелких предметов.
Если комната предназначена для двух детей, в ней всего должно быть в два раза больше
Письменный стол лучше поставить около окна
Рабочий кабинет
Если дети уже выросли и покинули уютное семейное «гнездышко», дополнительную комнату можно оформить, исходя из образа жизни родителей. Это может быть рабочий кабинет с библиотекой или отдельное личное пространство одного из супругов, например, мастерская для жены рукодельницы. Большая гардеробная с примерочной и сидячим местом для телефонных переговоров – современное решение, когда много вещей. Творческая мастерская или комната, чтобы уединенно музицировать или рисовать, подходит для творческих личностей.
Для оформления рабочего кабинета отлично подходит классический стиль
Хорошим выбором будет добротная мебель из натуральных материалов
Кухня
Кухня может быть классической, в стиле ретро или кантри, где приятная ностальгическая атмосфера содействует процессу приготовления пищи и угощению. Но большинство специалистов предлагают современный дизайн квартир П 44Т, например, хай-тек или лофт. Используйте фотообои или декор для иллюзии расширения пространства, чтобы прибавить оригинальности.
Кухня в современном стиле с легкими прозрачными занавесками
Размеры обеденного стола зависят от количества едоков и размеров кухни
Прихожая
Прихожая достаточно просторная, чтобы оборудовать ее компактной мягкой мебелью, куда приятно «приземлиться», когда переобуваешься. Не стоит загромождать нескольких квадратов у входной двери и перегружать восприятие сложным декором.
Светлые тона зрительно расширят пространство прихожей
Минимализм в любом варианте (скандинавский, японский или классика) – отличное решение для дизайна П44Т. Уделите больше внимания эффектной подсветке, встроенной мебели, качеству отделочных материалов и зеркальным стенам. Это расширит пространство прихожей и других комнат, осовременив дизайн квартиры. Другие примеры – в нашей галерее.
Что стоит знать перед планировкой и созданием дизайна квартиры типа п44т
В многоэтажных домах такого типа имеются квартиры с одной, двумя, тремя и четырьмя комнатами. Дизайн стандартной однокомнатной квартиры п44т является «проблемным», если решено сделать перепланировку. По современным канонам это не самые удобные помещения, так как внутри «стоят» несущие стены, сносить которые никто не даст, так как это грозит обрушением значительной части здания.
Если позволяет площадь комнаты, типовую однушку можно трансформировать в двухкомнатную квартиру, добавив перегородки или разделив пространство ширмой, шторами или мебелью
Для «однушки» п44т планировка существует в двух вариантах:
- В первом случае выход из кухни в комнату сделать крайне сложно либо вообще невозможно, так как проблематично согласовать.
- Во втором варианте застройщик изначально выполнил проем в стенке, расположенной между гостиной и кухней.
Типичная планировка однокомнатной квартиры в доме серии 44т
В квартирах п44к «однушка», планировка отличается от п44т тем, что она считается улучшенной. На комнату здесь приходится 18,9 м. кв., кухня с полуэркером либо треугольным эркером – 9,1 или 10,1 метра, ванную (совмещенный санузел) – 3,6 метра, прихожую – 5,6 кв. м., балкон – 3,5 кв. м. Общая площадь – 39,2-40 квадратных метров. «Обновления» здесь также производятся с учетом всех строительных ограничений.
В описываемых квартирах всегда имеются воздушные короба, сносить которые запрещается, но слегка видоизменять форму, декорировать различными способами, вполне допустимо.
Перед выбором планировочного решения важно правильно расставить приоритеты
Молодая семья, не планирующая пока заводить детей, обычно делает акцент на гостиной
Семейная пара с детьми определенно пожертвует частью гостиной в пользу детской
Игра красок в дизайне
Позитивность обстановки обеспечивается розовыми оттенками. Мягкий диван с цветными подушками, яркие шторы – это основа уюта и сердечности в доме.

Предпочтительна деревянная мебель, в дизайне очерчиваются нотки прованса с окрашенными в белый цвет стенами и светлым потолком. Для кухни подойдет гарнитур в бирюзовых оттенках. Прекрасно будет смотреться круглый стол с аккуратными стульями.


Не должна выбиваться из общей композиции ванная комната. Для нее выбирают розовую керамику и простую меблировку, а довершает интерьер оригинальное зеркало.

Обустроить интерьер небольшого двухкомнатного жилья вполне по силам, если при этом проявить фантазию. Игра на контрасте цветов, подбор мебели, использование элементов декора – все это поможет создать уютную и оригинальную обстановку.

Как делать перепланировку в трешке П44-Т
Площадь застекленного и утепленного балкона можно присоединить к примыкающей комнате, прихожую объединить с коридором, разделив на функциональные отсеки по принципу зонирования, чтоб организовать небольшую гардеробную.

Небольшую гостиную можно увеличить путем присоединения части коридора, если между ними стоит легкая перегородка

Гостиная станет проходной, зато её площадь увеличится с 11 до 19 кв. метров

Вдоль стены, которая раньше была частью коридора, можно поставить функциональный многосекционный шкаф

На кухнях квартир серии П44-Т часто встречается вентиляционный короб, который запрещено трогать. Обыграть его можно с помощью углового гарнитура, а на на сам короб повесить телевизионную панель
В некоторых квартирах этой серии есть эркер – округлый выступ с 3-мя окнами, в котором можно организовать дополнительное место отдыха. Но можно использовать другую интересную идею, позаимствованную из готовых дизайн-проектов 3-комнатных квартир П44-Т. В угловой планировки встречаются 2 лоджии (или балкон + лоджия) или есть кладовая, которую нередко преобразуют во второй санузел.

В большой гостиной с эркером уместно поставить два диванчика для вечерних посиделок в кругу семьи

При оформлении интерьера особое внимание уделяют организации освещения
Объединение кухни с гостиной с небольшим разграничением мебелью или барной стойкой – наиболее популярный прием. Это удобно тем, что можно наблюдать за детьми во время приготовления пищи или общаться с гостями. Несущие стены нельзя демонтировать, поэтому чаще всего ограничиваются переносом дверного проема или входной аркой.
Присоединяемую лоджию или балкон можно утеплить вагонкой и системой «теплый» пол – с теплым кабелем «Нексанс». Это экономично и практично, а также осовременит дизайн интерьера трехкомнатной квартиры П44-Т.
Эркер – казнить или помиловать?
Итак, большинство квартир П-44Т имеют эркер на кухне. Что это? Эркер – это многогранный выступ с окнами непосредственно в стене здания. Идей его обустройства немало, кто-то предпочтет организовать зону отдыха, кто-то решит перенести мойку…
Я нашла для вас оптимальные решения для оформления эркера и уже готова выложить все свои дизайнерские тайны.
Место отдыха. Данное решение актуально лишь при достаточной площади кухни, однако это совершенно не означает, что место под диванчиком будет потеряно. В основание подоконника можно уместить выдвижные ящики, например, как на фото.
Кухня с воздуховодом и эркером может превратиться в уютное и гармоничное пространство
Обеденная группа. Оптимальное решение для небольшой площади в квартире, где не предусмотрена отдельная столовая. Выбирайте легкую мебель простой формы, которая не перегрузит пространство. В данном варианте длинный подоконник может трансформироваться в зимний сад.
Кухня с эркером в стиле прованс
Мойка в эркере. Такая перепланировка и перенос коммуникаций требует согласования, кроме того, вам придется приподнять уровень пола, чтобы обеспечить уклон для трубы. Для кухни скромной площади выбирайте гарнитур, который будет повторять форму эркера. В качестве альтернативы можно сгладить эркер прямым краем столешницы, этот прием сработает на кухне, окно которой расположено на узкой стене.
Дизайн кухни п44т с переносом раковины в зону эркера
Обустраиваем банкетку
Идеальный вариант – подбор мебели, которая полностью повторит форму эркера, именно поэтому я советую обратить внимание на банкетки. Благодаря наличию решетки для радиатора, вам не потребуется перенос батареи.
Дизайн п44т: кухни с эркером, превращенные в обеденную зону
Список источников
- www.dizainvfoto.ru
- dizainexpert.ru
- thewalls.ru
- planirovkainfo.ru
- dekodiz.ru
- zen.yandex.com
7 лестниц