Стоимость
Цена разработки котлованов с вывозом и утилизацией грунта в Москве и области — от 450 руб./куб.м.
Посмотрите лишь часть объектов, для которых мы уже выполнили рытьё котлованов и монтаж шпунтовых ограждений.
- Строительство котлована центра холодоснабжения №2; г. Москва, д. Сколково. Устройство шпунтового ограждения котлована из труб d 325 мм, L = 9 м в кол-ве 187 шт., 1720,4 п. м.; установка продольного пояса из двутавра №30Б 2,765 т; устройство забирки из доски 40 мм с креплением уголка 50 х 5 мм 867 м2; монтаж распорной системы из труб d 325 мм — 4,26т.
- «Блок начальных классов (БНК) на 300 мест к среднеобразовательной школе (СОШ) № 550»; г. Москва, ЮАО, район Чертаново Северное, корп. 809А, 810. Шпунтовое ограждение котлована из труб d 273 мм, L = 9 м 90 шт., 810 п. м.; изготовление котлована объёмом 11 390 куб.м.
- «БНК на 250 мест к СОШ № 1599»; г. Москва, ЮВАО, ул. Зеленодольская, д.32, корп.6. Разработка грунта с вывозом и утилизацией — 7099 куб.м.
- «БНК на 350 мест к СОШ № 667»; г. Москва, ЮАО, район Бирюлево Западное, Востряковский проезд, д.13а. Выемка грунта с вывозом и утилизацией — 7 370 м3.

Устройство откосов котлована на строительстве фундамента под жилой комплекс в Москве
Стоимость услуг определяется проектными параметрами и грунтовыми условиями. Среди первых: длина, ширина и глубина котлована, его конфигурация, наличие и крутизна откосов, необходимость крепления стен, наличие подъездных дорог, содержание подготовительных работ, расположение близлежащих сооружений, удалённость площадки утилизации породы. Среди грунтовых условий наибольшее значение имеет класс грунта по трудности разработки, наличие и уровень залегания водоносного горизонта, угол естественных откосов.
Последовательность работ, осуществляемая при производстве строительных котлованов:
- Геодезическая разбивка. На этом этапе важна точность, отмечаются размеры и углы будущего котлована, размечается территория, для этого используется специальные инструменты и приборы — нивелир, теодолит. При определённых условиях обязательно проводятся пробы грунта или предварительная разработка траншеи с целью выяснить особенности толщи породы, глубину залегания грунтовых вод, а также возможные подземные коммуникации, не попавшие в план местности под зоной строительства.
- Подготовительные работы. С территории копки котлована убираются все подземные и наземные коммуникации. Предварительно работы согласовываются с влдельцами коммуникаций. Выполняется вырубка и выкрчёвывание кустов и деревьев, снос построек, подготовка подъездных путей под вывоз грунта.
- Рытье котлованов. Размеры и другие параметры зависят от проекта здания, глубины промерзания грунта, уровня грунтовых вод и других факторов. Земляные работы начинают, как правило, с удаления верхнего растительного слоя почвы, дёрна. Затем выполняется рытьё котлована проектной глубины и конфигурации. Ширина и наклон откосов, а также необходимость укрепления стен котлована установлены проектом производства работ (ППР) заранее для данного типа почвы.
- Вывоз грунта. Это обязательная часть работы, необходимы специальные разрешения для его вывоза и утилизации. Частично породу оставляют на территории для того чтобы потом использовать для подсыпки фундамента.
- Контроль качества на всех этапах. Что отличает нашу компанию — непрерывный контроль качества работ.
Нормативные данные для проектирования откосов
Устройство котлована с вертикальными без крепления стенками допускается, только при разработке:
- насыпных, песчаных или гравелистых грунтов на глубину не более 1м,
- супесчаных и суглинистых – не более чем на 1,25м,
- глинистых – на 1,5 м,
- особо плотных – на 2 м.
Если же требуется устройство котлована большей глубины, необходимо принять крутизну откосов, рекомендуемую СНиП с учетом типа грунта и глубины заложения. При этом если глубина котлована или траншеи превышает 5 м, то для определения устойчивости земляных масс выполняют расчет.
Крепление стенок котлована глубиной 2-3 м должно выполняться строго по типовому проекту.
В нормативной литературе крутизна откосов котлована и траншей измеряется как угол откоса (ɑ) или отношение высоты откоса к заложению (1:m). В СНиП эти данные приводятся в табличной форме отдельно для каждого типа грунта с учетом глубины выемки.
Если на участке присутствует несколько видов грунта, то крутизну откосов принимают, ориентируясь на самые неустойчивые слои.
В связи с тем, что даже при разработке котлована с откосами не исключена вероятность обрушения грунта под тяжестью машин, необходимо соблюдать требуемое в СНиП расстояние от подошвы откоса до места стояния техники.
Рассчитывая объем земляных работ, учитывают величину откосов, которые увеличивают ширину котлована на b=m*h.
Крутизна откосов котлована и траншей Крутизна откосов котлована и траншей при строительстве фундамента дома или других подземных сооружений. Таблица. СНиП.
Подготовка к рытью и строительству фундамента
Для каждого типа фундамента требуется обустроить котлован соответствующей формы. Поэтому, прежде чем начинать копать, следует определиться с типом и характеристиками фундамента. Для этого требуется:
Проанализировать грунт в месте запланированного строительства, определить его тип и состояние.
Произвести анализ параметров будущего строения: его размеров, общей массы, величину нагрузки на грунт.
Изучить особенности климата и (важно!) сезонного движения грунтов в данной местности.
На основании полученных результатов можно оптимально подобрать тип и параметры фундамента под запланированное строение. А уже определившись с типом и размерами фундамента, можно рассчитать характеристики требующегося котлована.

Проект производства работ по разработке грунта
Зная, что копать, определим, как копать землю под фундамент нашей постройки. Для этого путем расчетов и консультаций нужно получить следующие данные:
Сколько грунта нужно вывезти а, сколько оставить для обратной засыпки. Для чего из геометрического объема котлована (с учетом откосов) вычитаем объем конструкций, которые в нем будут располагаться.
Совет. Ошибки в расчете объема вывозимого грунта практически неизбежны, поэтому решите, что для Вас будет проще: довезти недостающий грунт или убрать тот, что сразу не вывезли, а в расчете добавьте или уберите 5-7%
- Место вывозки лишнего грунта и потребность в технике для работы на отвале. Узнать это можно в администрации. (Вопрос серьезный – за несанкционированную свалку можно получить приличный штраф).
- Объем механизированной разработки и объем ручной разработки (доработки) грунта.
Если объем работ значителен, скажем, копка котлована дома с подвалом, стоит нанять экскаватор. Объем ручной доработки, по зачистке дна котлована принимают из расчета слоя в 10 см, снимаемого там, где будут укладываться фундаментные подушки.
- Категория грунта. Знать к какой категории относится грунт в месте строительства, Вам потребуется для определения способов разработки. Узнать это можно, из карты грунтов (есть в отделе архитектуры).
- Наличие факторов осложняющих работу (старые здания и сооружения, существующие коммуникации и т.д.).
Важно! До начала земляных работ, свяжитесь с организациями, которые могут иметь коммуникации в районе работ. Уведомления об отсутствии коммуникаций недостаточно: нужна соответствующая запись на выкопировке из ген
плана застройки, заверенная печатью организации
ППР на котлован
На основании выше перечисленных данных, плинируем работы по устройству котлована, траншеи своими руками, определяем состав и характеристики механизмов (при необходимости).
Кроме того, нужно наметить мероприятия по безопасности, рассчитать материалы для крепления откосов, устройства переходных мостиков, лестниц и т.п.
Технология рытья котлована
Чтобы вырыть котлован, земляные работы должны проводиться в соответствии с ТТК. Типовая технологическая карта помогает рассчитать оптимальный объем котлована, выявить необходимость опоры и откосов. Помимо прочего, в ТТК указана техника безопасности, которую требует выемка и засыпка грунта. Согласно ТТК, земляные работы включают такие этапы:
- Подготовка процесса.
- Непосредственная копка котлованов:
- определение размера котлована (рассчитывается объем работ);
- разработка грунтовых масс вручную или экскаватором (выемка, вывоз, засыпка земли);
- откачка воды;
- доработка объекта вручную.
Требованием ТТК является:
- обязательное ограждение участка ;
- очистка территории от мусора и кустарников;
- вертикальная разбивка площади и отвод поверхностной воды;
- снятие верхнего шара грунта;
- обустройство санитарно-гигиенической зоны и водной системы для очистки колес машин при выезде из территории стройплощадки, когда осуществляется вывоз земли.
Технологическая карта указывает, что ширина выемки должна быть просторной для перемещения строительной техники. Рабочие должны перемещаться в пазухах шириной не менее 1 м. Для их безопасности обустраиваются опоры.
Технология обустройства откосов должна регулироваться правилом, что при высоте более 5 м, их крутизна составляет не более 80˚. Согласно ТТК, в зимнее время наибольшая высота вертикальной стенки котлована может составлять не более 2 метров, если температура воздуха достигает минус 2 градусов.
В ТТК указанно, что этап устройства котлована включает такие работы, как: разработка грунта, его погрузка в транспорт и вывоз. Для обустройства котлованов применяется одноковшовый экскаватор. Кроме того, требуются машины на время работы с землей, осуществляющие ее вывоз или ее утрамбовки на территории участка. Типовая карта описывает мокрые грунты, как такие, что расположены ниже или выше уровня грунтовой воды на расстояние капиллярного поднятия:
- до 0.5 м – для песчаных грунтов;
- до 1 м – для суглинок.
Отвод воды из котлована
Карта земляных работ подтверждает, что водоотлив может понадобиться при осушении поверхностных вод и понижения уровня грунтовых, перед тем как предстоит вырыть котлован. Поверхностные воды могут появляться на стройплощадке из двух источников: соседних участков и атмосферных осадков. В первом варианте необходимо обустроить нагорный водоотлив для их перехвата. Его размер должен быть не менее 0.5×0.5 м.
При сильном обводнении стройплощадки водоотлив обустраивается в виде дренажной системы, одного из двух типов: открытый и закрытый. Первый эффективен при понижении вод на глубину 0.4 м. Для этого нужно выкопать канаву глубиной 0.7 м, а на ее дно уложить гравий или песок.
Закрытый дренаж — это водоотлив с уклоном в сторону. На его дно могут укладываться перфорированные трубы. При незначительном притоке вод с ними поможет справится открытый водоотлив.
Карта раскрывает водоотлив открытого типа таким образом: грунтовая вода уходит через откосы и дно котлована. В их конце нужно выкопать канавы и выемки – зумпфы, откуда жидкость удаляется насосами. Применение насосов позволяет откачивать даже большое количество воды за небольшое время.
Самая эффективная технология понижения уровня вод – грунтовая, которая включает такие типы:
- иглофильтровый;
- вакуумный;
- электроосмотический.
Первый тип использует водоотлив со специальной техникой, состоящей из стальных труб, коллектора для забора водных масс, насоса. Метод эффективен в песчаных и песчано-гравелистых грунтах.
Вакуумный способ реализуется на основе вакуумных установок. Он работает в мелкозернистых грунтах: песках, супесях, илах лессовых грунтах. Электроосмос – это расширенный вариант иглофильтровой установки. Применяется для понижения уровня воды до 5 метров в песчаных грунтах.
Виды земляных сооружений
Строительство зданий и коммуникационных сооружений сопряжено с проведением трудоемких земляных работ. Под ними подразумевают разработку грунта при рытье котлованов и траншей, его транспортировку, складирование.
Земляными сооружениями являются насыпи, выемки. Они могут быть постоянного типа и временного. Первые делают для продолжительной эксплуатации. К ним относятся:
- каналы,
- плотины,
- водохранилища,
- дамбы и прочие сооружения.
Временные выемки – это траншеи и котлованы. Они предназначены для проведения последующих строительных работ.
Котлован — это выемка, ширина и длина которой практически не отличаются заметно по размерам. Они необходимы для сооружения фундаментов под постройки.
Траншея же представляет собой борозду большой протяженности по сравнению со своим поперечным сечением. Предназначена она для монтажа коммуникационных систем.
По требованиям ГОСТ 23407-78 рытье котлованов, траншей в населенных пунктах, местах движения транспорта, либо людей, должно сопровождаться созданием защитных ограждений. Их устанавливают по периметру рабочего участка. На них размещают предупреждающие знаки и надписи, а ночью задействуют даже сигнальное освещение. Также специально оборудуют мостики для движения людей.
Откосы – это наклонные боковые стенки выемок или насыпей
Важной характеристикой их является уклон (крутизна). Окружающие откосы горизонтальные поверхности называются бермами
Под дном выемки понимают ее нижнюю, плоскую часть. Бровка является верхней кромкой созданного откоса, а подошва – нижней частью.
Проведение земляных работ на стройплощадке
При эксплуатации земляных сооружений они не должны:
- изменять своих очертаний и линейных размеров,
- просаживаться,
- размываться водой или поддаваться действию осадков.
Прокладка водопроводов, подземных линий электропитания, канализации, строительство фундаментов под здания не обходятся без рытья траншей, либо котлованов. В строительстве приняты специальные определения для обозначения элементов конструкций данного типа. Все работы обязательно должны проводиться со строгим соблюдением правил безопасности, чтобы свести к минимуму возможность возникновения несчастных случаев.
Разновидности котлованов
Рытье выемок под основание сооружения – это ответственное дело, требующее больших временных, денежных, трудовых затрат. Котлованы принято разделять сегодня по следующим признакам:
- наличию откосов,
- применению креплений, предназначенных для предотвращения осыпей грунта,
- типу боковых поверхностей (стенок).
Стенки котлованов могут быть:
Чтобы земляные работы выполнить правильно, вначале проводят исследования на стройплощадке. Эти мероприятия включают такие операции:
- анализ свойств грунта: установление его группы и вида,
- определение нагрузок от возводимой постройки,
- вычисление глубины выемки,
- установление наличия старых коммуникаций,
- определение глубины залегания подземных вод,
- анализ погодных условий местности.
Выбор способа проведения работ определяется в зависимости от следующих факторов:
- типа и габаритов строимой конструкции,
- глубины заложения фундамента,
- объема предстоящей деятельности.
Если планируется сооружение мелкозаглубленного основания ленточного, либо столбчатого типа, то грунт можно разрабатывать без привлечения техники, вручную. Когда необходимо построить дом, имеющий подвал, либо цокольный этаж, тогда в работах понадобится задействовать землеройные механизмы.
Для извлечения основной массы грунта из выемки часто используют экскаваторы различных видов, оснащенные обратной, либо прямой лопатой. Работы, связанные с рытьем котлована, следует выполнять, не нарушая при этом плотность грунта на дне фундамента. Это требование реализуется на практике путем его недобора, величина которого составляет от 5 до 20 см.
Зачистку земли с боков и со дна выемки до плановой отметки производят вручную рабочие. При этом следует обязательно следить за укреплением ее стен с помощью откосов, либо за счет монтажа специальных конструкций. Выпадение осадков и подъем грунтовых вод весной, летом, воздействие морозов зимой – все это способствует разрушению котлована.
Грунт из котлована сразу же должен быть вывезен или размещен на стройплощадке не ближе, чем через 1 м от его края. Для отвода почвенных вод создают дренажную систему.
Важным моментом при рытье котлованов является создание рабочего пространства нужных по правилам размеров. Оно должно занимать не менее полуметра от фундаментной опалубки до подошвы уклона. Крутизну откосов котлована выбирают по таблицам или графикам, приведенным в СНиП 3.02.01-87.
Разметка фундамента
После выбора места строительства на участке могут потребоваться первичные земельные работы — сглаживание неровностей рельефа, выкорчевывание деревьев и кустарников, удаление крупных камней. С помощью геодезических нивелиров контролируют профиль местности. Затем приступают к разметке фундамента, которая обычно выполняется методом «золотого треугольника».
Представьте геометрическую фигуру в виде прямоугольного треугольника с катетами длиной 3 метра и 4 метра. Воспользовавшись теоремой Пифагора, несложно определить, что длина его гипотенузы составит ровно 5 метров. Это и есть «золотой треугольник», который поможет правильно разметить углы фундамента. Работа проводится в четыре этапа:
Устанавливается первый, «отправной» колышек внешнего периметра.
От отправного колышка по направлению одной из стен отмеряют 4 метра, отмечают ещё одним колышком.
Воспользовавшись простым угольником или «на глазок» отмеряют 3 метра от отправного колышка перпендикулярно четырехметровой отметке, вновь ставят колышек.
Контролируют расстояние межу колышками № 2 и 3 — оно делается ровно 5 метров. Если расстояние отличается от номинального, колья переставляют, постоянно контролируя длины сторон треугольника.
Аналогичным методом размечают все остальные углы внешнего периметра. Когда их места точно определены, угловые колья соединяют нитью или леской. Внутренний периметр размечают с помощью рулетки. Поверить точность разметки можно, сравнив диагонали в прямоугольном фундаменте. Их длины делают равными.
Технология погружения шпунта ограждения

Готовая стена выемки, креплённая трубошпунтом
Применяется 5 основных технологий погружения шпунта ограждения котлована:
- вибропогружатель для шпунта — наиболее распространённая технология, за счёт высокой скорости монтажа, а значит и производительности. Установка для вибропогружения представляет собой базовую машину (экскаватор, кран или трактор) с подвесным оснащением (собственно вибропогружатель, состоящий из гидро-двигателей с эксцентриками, смонтированными на станине, и гидравлической станции),
- статическое вдавливание шпунта — самый бесшумный и щадящий к прочностным свойствам грунта и к фундаментам расположенных поблизости построек, погружение шпунта выполняется сваевдавливающей установкой,
- забивка и предварительное лидерное бурение под шпунт, или без бурения — самый доступный способ при использовании сваебойной установки с дизель-молотом,
- и чуть более дорогой, но более контролируемый в процессе — забивка шпунта гидравлическим молотом,
- завинчивание и вдавливание трубчатого шпунта свайной буровой установкой.
Погружение шпунта ограждения в грунт происходит до рытья котлована на выровненной строительной площадке по периметру будущей выемки. В твёрдых грунтах предварительно выполняется бурение под шпунт, чем достигается гарантированное достижение проектной глубины, снижение динамического воздействия через грунт на основания соседних зданий, применение менее мощного (а значит и менее дорогого в эксплуатации) оборудования и ускорения операции погружения.

Копровая установка с гидромолотом
Погружение шпунта ударным методом без бурения лидеров — это самый простой и недорогой способ устройства ограждений из шпунта. Используется чаще всего, когда нет особых требований к уровню шума и динамическим воздействиям на основания близ расположенных зданий через грунт. Выполняется копровыми установками.

Вибропогружение шпунтового профиля
При повышенном давлении от осадочных пород и, тем более, при нагрузке от грунта под близко расположенными зданиями обычное шпунтовое ограждение может оказаться недостаточным для должного укрепления стены выемки. В этих случаях проводятся дополнительные меры крепления стен котлована. В распоряжении проектировщиков и строителей имеется широкий арсенал методов и технических решений:
- монтаж продольного пояса из металлического профиля (швеллера, двутавра),
- применение укрепляющих распорок из металлопроката, упирающихся одним концом в дно котлована, а другим в стену,
- применение распорных систем из металлического профиля — конструкции их могут быть разнообразны по сложности и исполнению,
- устройство грунтовых анкеров — заглубляемых в толщу грунта железобетонных якорей.
Выполнение разметки котлована
К разметке контуров, перед тем как выкопать траншею под фундамент, приступают только после расчистки и выравнивания поверхности площадки под застройку.
Допускается забивать деревянные колья, но они менее устойчивы и прочны.
Разметка траншеи или котлована производится на основании проектных решений с учетом места для установки опалубки и обеспечения возможности производства гидроизоляционных работ.
Решение отказаться от установки опалубки и нанесения на поверхность гидравлической изоляции в большинстве случаев может оказаться ошибочным, хотя и значительно сократит время выполнения работ. Проникновение грунтовой влаги в фундаментную конструкцию может повлечь за собой ее постепенное разрушение в результате периодического замерзания в холодное время и последующего оттаивания.
Выполнение разметки (про неё также читайте в этой статье) начинают с определения точного месторасположения и контуров одной наиболее длинной стены. После этого разметить другие стены не составит большого труда. Проверку точности прямых углов при отсутствии специального измерительного инструмента можно сделать путем проверки длины диагоналей прямоугольного контура, которые должны быть равны. Прямые углы проще всего отмерить по «методу треугольника» с гипотенузой 5 метров и катетами 3 и 4 метра.
1 – геодезический колышек;2 – шнур уровня центрального прогона;3 – колышки;4 – горизонтальные доски;5 – наружная линия;6 – шнур.
Для нанесения контуров здания сложной конфигурации, а также при уклонах рельефа площадки, потребуется нивелир или другой точный прибор для определения углов и относительных высот. Измерение длины фундаментной ленты на склонах при помощи простой рулетки может привести к получению ошибочных результатов. Поэтому для выполнения такой разметки лучше пригласить специалиста, имеющего опыт геодезических работ.
Когда на разработку котлована требуется проект
Часть проекта, согласно которой на объекте производятся земляные работы, называется ПРК (проект разработки котлована). Такой проект составляют, когда глубина разработки превышает 2 м (это может быть дом с подвалом), а также когда для безопасности работ надо укрепить стенки или сделать глубинное водопонижение.
ПРК (или ППР котлована) включает в себя чертежи в плане и разрезе, технологические и другие схемы, в которых содержится информация, вплоть до мест расстановки землеройной техники и самосвалов.
Обязательная часть проекта – экспликация материалов, необходимых для выполнения основных и вспомогательных работ.
План котлована под фундамент
Технологическая схема разработки грунта
Схема организации площадки
Поперечный разрез котлована
Если котлован разрабатывают рядом с существующим сооружением, либо его глубина превышает уровень заложения последнего, в проекте определяют меры против осадки грунта и деформации конструкций.
Это может быть возведение шпунтовых стен, усиление грунтов цементацией либо силикатизацией, устройство нового, более глубокого фундамента под старым.
Выбор защиты зависит от глубины котлована и гидрогеологических условий.
Защита фундаментов существующих зданий
Как форма стенок котлована зависит от его глубины
Свойства грунтов и наличие в них подземных вод определяют структуру котлована, который может иметь вертикальные стенки или пологие.
Вертикальные без креплений можно делать в плотных сухих грунтах, и только, когда котлован не остаётся открытым на продолжительное время.
Стенки котлована ступенчатой формы
Если есть вертикальные откосы (если рядом нет сооружений), глубина не может превышать:
- в твёрдых глинах и суглинках – 3м;
- в полутвёрдых глинах и суглинках – 2м;
- в тугопластичных глинах – 1,5 м;
- в текучих глинах и твёрдых супесях – 1,25 м;
- в песчаных, гравийных и лёссовых грунтах – 1,0 м.
Когда надо рыть на большую глубину, в котловане предусматривают пологие (иногда ступенчатые) стенки, либо выбирают один из вариантов крепления стенок.
Отвесные стенки котлована с анкерным креплением
Когда глубина более 5 метров, крутизна откосов принимается по таблице в СНиП и зависит от типа грунта. Этот параметр – отношение глубины к проекции откоса на горизонталь (на схеме снизу).
Чертеж: крутизна откоса котлована 1:1
Определение размеров котлована
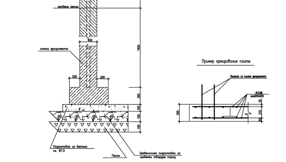
Глубина котлована – важный параметр, который определяется сложением толщин фундамента и подстилающих слоёв. Это: песчано-щебневые подушки, бетонные подготовки и пластовый дренаж.
Разницы нет, под ленточный фундамент роют котлован или под монолитную плиту. Она тоже может значительно заглубляться, когда в здании предусмотрен цокольный этаж или подвал.
Глубина – сумма всех слоёв, начиная от уровня земли
Есть ещё несколько важных размеров. Это периметр дна котлована и его размеры поверху, которые значительно отличаются, если есть пологие стенки.
Основные параметры при расчете размеров котлована
Размеры дна в плане назначают при проектировании, учитывая параметры фундамента и способ возведения, необходимое пространство для опалубки, удобство бетонирования или монтажа сборных элементов.
Сверху размер котлована больше дна на суммарную ширину откосов и элементов крепления стенок.
Часто размеры котлована по дну и поверху различаются незначительно, потому что пологие стенки увеличивают объём земляных работ. На практике чаще делают вертикальные откосы, не смотря на необходимость укрепления.
Когда и какой котлован нужен
Для создания котлована под ленточный фундамент, фундамент из монолитной бетонной плиты или столбчатый фундаментне требуется значительного углубления. Большое заглубление необходимо при строительстве свайного фундамента или дома с подвальным помещением. Увеличение глубины котлована необходимо, если в его зоне находятся объекты, которые невозможно удалить: деревья, строения.
В любом случае копаем котлован под фундамент, так как верхний плодородный слой почвы по своей структуре менее плотен, чем нижележащие слои, а зимой поверхностные слои подвержены пучению в результате образования кристаллов. По этим причинам снятие верхнего почвенного слоя необходимо. Для уверенности в прочности и надежности фундамента следует погрузить его основание ниже уровня промерзания почвы.
Создание котлована под плитный фундамент
Создание плитного фундамента – дорогостоящее дело, оправданное при наличии на участке сыпучих или глинистых грунтов с тенденцией к вертикальному и горизонтальному смещению. Он отлично выдерживает вес крупногабаритных конструкций. Плитные фундаменты различаются по степени заглубления. Глубина котлована под плитный фундамент зависит оттолщины верхнего плодородного слоя. Площадь котлована должен быть больше площади будущего строения на 50-70 см с каждой стороны, дно – ровным.
Этапы создания и особенности котлована под ленточный фундамент
Процесс создания котлована под ленточный фундамент состоит из рытья траншей. Работы начинаются с определения местоположения одного из углов дома и маркировки его колышком. От него выставляется прямой угол, и определяются остальные углы здания, которые тоже отмечаются колышками. Между ними натягивается шпагат, по которому будет определяться внешний край фундамента. Для такого фундамента грунт должен быть стабильным. Сохранению стабильности грунта способствует качественный дренаж и обустройство системы водоотведения.
Глубина траншей зависит от типа фундамента. Мелкозаглубленный фундамент используется для хозяйственных построек, небольших домов без подвала, деревянных и каркасных домов. Для него создаются траншеи глубиной от 50 до 100 см. На заглубленном фундаменте возводятся крупногабаритные или двухэтажные дома, дома с подвалом. В первом случае траншеи выкапываются на глубину промерзания грунта (примерно 150 см). Для дома с подвалом роем котлован под фундамент на глубину подвального помещения с учетом толщины песчаной подушки. Затем создаются траншеи на глубину подошвы фундамента.
Ширина траншей зависит от состояния грунта. Чем слабее грунт, тем больше должен быть запас ширины. Минимальная ширина траншеи по нормам СНиП составляет толщину стен с опалубкой плюс толщина изоляции плюс по 20 см с каждой стороны будущей конструкции.
Крепление шпунтовыми ограждениями
Для крепления котлованов в грунтах, насыщенных водой (жижа и плывун), применяется так называемое шпунтовое ограждение. Шпунтовое ограждение состоит из сплошного ряда вертикально установленных шпунтовых труб или досок (в которых, в одной кромке сделан паз-шпунт, а на другой — гребень), прижатых к стенкам траншеи или котлована горизонтальными рамами с распорами (рис. 44). Все, что было сказано о распорах в вертикальном креплении, относится целиком и к шпунтовыми ограждением заключается в том, что при шпунтовом ограждении сначала забивают шпунт, а затем уже производится рытье траншеи с постепенной установкой распорных рам; в вертикальном же креплении сначала выкапывается траншея или котлован, а затем устанавливается крепление, постепенно опускаемое вниз по мере дальнейшей разработки грунта. Доски шпунта забиваются на глубину, несколько большую (на 0,2-0,5 м) глубины траншеи или котлована, для того, чтобы после окончания рытья нижние концы их не могли быть сдвинуты напором грунта.

Деревянный шпунт изготовляется из досок толщиной 6-7 см или из брусьев 10х20 см (рис.45). В каждой шпунтине (свае) устраиваются гребень и паз. При забивке свай гребень одной входит в паз другой. Затеска нижнего конца сваи делается в виде клина с острым углом со стороны паза
При такой затеске сваи при забивке плотно прилегают друг к другу, что очень важно при мокрых грунтах, когда вода под напором просачивается в щели неплотных шпунтов. Шпунтины должны изготовляться из сырого свежевырубленного леса
Если же они изготовлены из леса, уже некоторое время пролежавшего на воздухе, то перед забивкой их надо положить в воду на 10-15 дней для того, чтобы они успели набухнуть. Делается это потом, что шпунтовой ряд, забитый из высохших свай, в мокром грунте набухает и вследствие увеличения объема свай ряд искривляется; отдельные сваи выворачиваются, образуя щели, и ряд приходит в негодность. работа по забивке свай начинается с установки точно по линии будущего ряда так называемых маячных свай через 2 м друг от друга (рис. 43).
Эти сваи забиваются в первую очередь, и к ним прикрепляются с обеих сторон рамные брусья. В промежутках между маячными сваями и рамными брусьями, служащими направляющими, производится забивка остальных свай шпунтового ряда. Каждая последующая свая должна прилегать к уже забитой пазом, а гребень должен оставаться свободным, в противном случае пазы сильно забиваются землей, и плотного ряда добиться будет трудно. Забивка производится механическим копром, а при небольшой глубине и слабом грунте может производиться и вручную деревянными бабами.
Время для проведения работ
Начинающие строители часто задумываются о том, в какое время лучше проводить работы по рытью котлована. На поверхности лежит только один очевидный факт – зимой это делать не стоит, так как копать мерзлую землю чрезвычайно тяжело. Однако это не значит, что для работ подходят все остальные времена года.
Хороший специалист ответит, что подходящих сезонов два: лето и осень. Нельзя проводить работы такого рода весной. В это время года начинаются процессы оттаивания земли, вследствие чего происходит выделение большого количества воды, которую нужно будет откачивать. Следовательно, потребуются дополнительные затраты на специализированную технику.
Осенний сезон подходит для данной деятельности не полностью. Работать можно только в его первой, теплой части. Поздней осенью уже начинаются заморозки, почва ведет себя нестабильно – ночью замерзает, днем оттаивает. Это может наложить отпечаток на ход и качество работ.
Конечно, нельзя однозначно запретить рытьё котлована в холодное время года. Если есть непреодолимая потребность в его срочном создании, это возможно. Однако придется учесть, что это «удовольствие» обойдется вам в полтора-два раза дороже.
Если вы хотите сделать котлован под цокольный этаж или под фундамент обычного дома своими руками, прежде всего, вам нужно подготовить чертеж и план работы.


Список источников
- www.beststroy.biz
- klub-masterov.ru
- ImBuilder.ru
- Proekt-sam.ru
- stroy-podskazka.ru
- postroifundament.ru
- chonemuzhik.ru
- 1pofundamentu.ru
7 лестниц