Как их устанавливать?

штукатурка или гипсовый клей
Монтаж в гипсокартонную стену несколько отличается, отличается и необходимый инструментарий. В гипсокартонных листах все отверстия делаются заранее, куда нужно будет провести кабеля. Для фиксации розеток и выключателей используются специальные лапки, которые должны удерживать их на листе.
Что же касается установки при открытой проводке, то такие случаи крайне редки и в основном их так крепят лишь временно (например, при ремонте), поскольку провода сказываются на интерьере. Согласитесь, что намного приятней смотреть на красивую стену, где все аккуратно и эстетично.
Электроустановочные устройства
6.6.21. Требования, приведенные в пп. 6.6.22-6.6.31, распространяются на устройства (выключатели, переключатели и штепсельные розетки) для номинального тока до 16 А и напряжения до 250 В, а также на штепсельные соединения с защитным контактом для номинального тока до 63 А и напряжения до 380 В.
6.6.22. Устройства, устанавливаемые скрыто, должны быть заключены в коробки, специальные кожухи или размещаться в отверстиях железобетонных панелей, образованных при изготовлении панелей на заводах стройиндустрии. Применение горючих материалов для изготовления крышек, закрывающих отверстия в панелях, не допускается.
6.6.23. Штепсельные розетки, устанавливаемые в запираемых складских помещениях, содержащих горючие материалы или материалы в горючей упаковке, должны иметь степень защиты в соответствии с требованиями гл. 7.4.
6.6.24. Штепсельные розетки для переносных электроприемников с частями, подлежащими защитному заземлению, должны быть снабжены защитным контактом для присоединения РЕ проводника. При этом конструкция розетки должна исключать возможность использования токоведуших контактов в качестве контактов, предназначенных для защитного заземления.
Соединение между заземляющими контактами вилки и розетки должно устанавливаться до того, как войдут в соприкосновение токоведущие контакты; порядок отключения должен быть обратным. Заземляющие контакты штепсельных розеток и вилок должны быть электрически соединены с их корпусами, если они выполнены из токопроводящих материалов.
6.6.25. Вилки штепсельных соединителей должны быть выполнены таким образом, чтобы их нельзя было включать в розетки сети с более высоким номинальным напряжением, чем номинальное напряжение вилки. Конструкция розеток и вилок не должна допускать включения в розетку только одного полюса двухполюсной вилки, а также одного или двух полюсов трехполюсной вилки.
6.6.26. Конструкция вилок штепсельных соединителей должна исключать натяжение или излом присоединяемых к ним проводов в местах присоединения.
6.6.27. Выключатели и переключатели переносных электроприемников должны, как правило, устанавливаться на самих электроприемниках или в электропроводке, проложенной неподвижно. На подвижных проводах допускается устанавливать выключатели только специальной конструкции, предназначенные для этой цели.
6.6.28. В трех- или двухпроводных однофазных линиях сетей с заземленной нейтралью могут использоваться однополюсные выключатели, которые должны устанавливаться в цепи фазного провода, или двухполюсные, при этом должна исключаться возможность отключения одного нулевого рабочего проводника без отключения фазного.
6.6.29. В трех- или двухпроводных групповых линиях сетей с изолированной нейтралью или без изолированной нейтрали при напряжении выше 50 В, а также в трех- или двухпроводных двухфазных групповых линиях в сети 220/127 В с заземленной нейтралью в помещениях с повышенной опасностью и особо опасных должны устанавливаться двухполюсные выключатели.
6.6.30. Штепсельные розетки должны устанавливаться:
1. В производственных помещениях, как правило, на высоте 0,8-1 м; при подводе проводов сверху допускается установка на высоте до 1,5 м.
2. В административно-конторских, лабораторных, жилых и других помещениях на высоте, удобной для присоединения к ним электрических приборов, в зависимости от назначения помещений и оформления интерьера, но не выше 1 м. Допускается установка штепсельных розеток в (на) специально приспособленных для этого плинтусах, выполненных из негорючих материалов.
3. В школах и детских учреждениях (в помещениях для пребывания детей) нa высоте 1,8 м.
6.6.31. Выключатели для светильников общего освещения должны устанавливаться на высоте от 0,8 до 1,7 м от пола, а в школах, детских яслях и садах в помещениях для пребывания детей — на высоте 1,8 м от пола. Допускается установка выключателей под потолком с управлением при помощи шнура.
Технические требования к установке розеток и выключателей
Места размещения внутри и снаружи жилых помещений выбирают исходя из 3 основных критериев:
- безопасность;
- функциональное удобство;
- эстетическая привлекательность.
Безопасность включает в себя 3 пункта:
- Природный газ.Принцип работы выключателя таков, что во время включения лампы (или другого потребителя) происходит замыкание цепи питания. Происходит это за счёт передвижения контактной пары. В этот момент между контактами проскакивает микро искра, способная поджечь газ. В случае возникновения утечки в газоснабжении, выключатель может стать причиной возгорания или взрыва. Тоже происходит и в том случае, если выключатель или розетка неисправны. Недоброкачественное соединение проводов, подающих напряжение на прибор, разболтанные контакты и прочее, приводят к искрению на клеммах. Именно по этой причине в квартирах с газовыми плитами и водонагревательными колонками, выключатель света выносится за пределы кухни. Обычно его устанавливают в коридоре, разделённом с кухней дверьми. В отношении розеток действует другая логика. Газ легче воздуха и поэтому в первую очередь накапливается в верхней части помещения. Поэтому розетку в кухне лучше разместить ближе к полу, в этом случае вероятность возгорания газа от искры ниже.
- Вода.Любая жидкость — прекрасный проводник тока. Если вода попадает между разноимёнными контактами, между ними происходит короткое замыкание. Но это не самое страшное. При коротком замыкании сработают защитные автоматы, и электричество будет отключено. Намного хуже, если намочен один из контактов — напряжение по воде передаётся во всех «мокрых» направлениях. Если человек (или животное) прикоснётся к влаге, его ударит током. В случае утечки из систем водоснабжения (или водяного отопления) образовавшиеся на полу лужи становятся зоной потенциального риска. Поражение электрическим током чревато для здоровья человека — известны случаи остановки сердца и возникновений целого ряда других неврологических заболеваний. Поэтому расположение розеток планируется с учётом возможности подтопления. Размещение их на безопасном расстоянии от пола, а также других источников воды в доме, имеет обоснованную аргументацию.
- Механические повреждения.Подавляющее большинство розеток, да и выключателей производятся из пластмассы. Пластик прекрасный диэлектрик и надёжно предохраняет человека от контакта с током. Единственное слабое его место — хрупкость. Сильный удар может повредить корпус прибора со всеми вытекающими отсюда неприятностями — выход из строя, оголение контактов и т.д. Поэтому размещение их планируют так, чтобы свести к минимуму угрозу механического повреждения. Особенно внимательно нужно относиться к этому при внешней проводке, когда корпус розетки и выключателя находятся полностью снаружи стены.
Фактор удобства пользования трудно переоценить. Человек по многу раз за день пользуется как выключателями, так и розетками. Если при этом испытывается дискомфорт, прибор необходимо переустановить, не откладывая в долгий ящик
Важно также помнить, что выключатели и розетки должны быть хорошо доступными в экстремальных ситуациях. Нельзя загромождать их мебелью или устанавливать в труднодоступных местах
Видео: неудобное расположение розеток и выключателей
Любой интерьер устраивается под вкус и эстетические предпочтения обитателей жилья. Розетки и выключатели тоже являются частью интерьера. Поэтому их «художественное» оформление имеет право на существование. Всегда можно выбрать цвет, размер и форму. Современная промышленность предлагает широкий и разнообразный ассортимент приборов электроснабжения и управления осветительными устройствами. С помощью воображения и фантазии можно создавать необычные дизайнерские решения. Но не в ущерб безопасности и удобству пользования!
Декоративное оформление выключателя
Какой кабель выбрать для кухни
Чтобы определиться с кабелем, требуется рассчитать сечение общего питающего провода электрического щитка и отходящей проводки до каждого токоприемника.

Рекомендуем придерживаться следующих характеристик:
- при нагрузке домашних электроприборов до 3,5кВт выбирайте медный кабель ВВГнг-Ls 3*2,5мм2;
- если нагрузка не превышает 5,5кВт — делайте выбор в пользу медного кабеля ВВГнг-Ls 3*4мм2;
- нагрузка доходит до 10кВт, в этом случае потребуется использовать медный кабель ВВГнг-Ls 3*6мм2;
- при общей нагрузке всех приборов до 15кВт – медный кабель ВВГнг-Ls 3*10мм2.
Автор статьи — Максим Архангельский
В каком месте расположить выключатель
Расположение выключателя зависит от назначения помещения. В любом случае для основного освещения он устанавливается сразу возле входной двери со стороны ручки. Не стоит размещать выключатель за открытой дверью, так как это затруднит его эксплуатацию и приведет к случайным нажатиям.
Также он не должен частично или полностью закрываться мебелью и предметами интерьера. Высота установки выключателя должна быть удобной для всех членов семьи, как для взрослых, так и для детей. Чтобы было удобно нажимать на клавишу, учитывайте среднюю высоту опущенной вниз руки для всех взрослых членов семьи.
Где лучше установить выключатель для ванной комнаты (санузла): у входа в помещение или внутри? В таких помещениях как ванная комната, туалеты, сауны, кладовая выключатели освещения следует устанавливать снаружи, то есть перед входом. Почему снаружи, а не внутри?
Обычно когда человек заходит в ванную или туалет что он в первую очередь делает? Правильно – закрывает дверь (возможно даже на замок). А представьте теперь, что вы закрылись и вокруг темно, где искать этот выключатель? Поэтому для удобства управлять освещением в таких помещениях лучше снаружи: зашел – свет уже горит вокруг все видно, вышел – выключил.


В жилых комнатах, кухнях и коридорах все наоборот. В таких помещениях выключатели устанавливают внутри. Зашли в комнату – включили свет, ложитесь спать – выключили. То есть здесь все управление происходит внутри комнаты и не нужно отрывать двери для этого.
Причем для повышения комфорта, например в спальне, целесообразно устанавливать особенные (проходные) выключатели для основного освещения, которые позволяют управлять одной люстрой с разных мест. Например, один выключатель размещается возле кровати или дивана на уровне вытянутой руки лежащего человека, другой у входа возле двери. Благодаря этому появляется возможность выключить свет перед сном, не вставая с постели.

Не забываем и про дополнительное освещение – светильники, бра, диодные ленты. Их выключатели устанавливаются в зависимости от удобства использования и эстетичного вида интерьера.
А вы обращали внимание, в каком положении выключатель включен, а в каком отключен? А следовало бы. Это необходимо для того чтобы одинаково правильно установить все оборудование в квартире
| Совет! На финише устанавливайте все выключатели в одинаковом порядке, то есть, чтобы все клавиши одноименно управлялись во всей квартире (доме). На практике, как правило, принято нажатая клавиша вверх – включенное положение, вниз – отключенное. |
Из вышеизложенного можно сделать вывод, что месторасположение выключателей выбирают исходя из назначения помещения и удобства управления. Общепринятое место расположения – у входа в помещение на расстоянии 10-15 см от двери. Вот что по этому поводу сказано в Государственном стандарте СП 31–110–2003 пункт 15.34.

Советы как определиться с выбором высоты для выключателей
На какой высоте должен быть выключатель от пола? Помимо существующих стандартов на выбор расположения влияют индивидуальные факторы. Стандартно предлагается выбирать расстояние опущенной вниз руки. Такая высота удобна тем, что включение и отключение света можно выполнять машинально, не сгибая конечность. Пройдитесь несколько раз, имитируя нажатие выключателя, и отметьте на стене удобное для вас положение.
Второй фактор, влияющий на расположение – особенности дизайна ремонта. Следует заранее определиться где будет располагаться мебель, розетки, основное и дополнительного освещения.
Визуально представите, где будет установлен выключатель для той или иной комнаты, мысленно попробуйте несколько раз его включить. Возможно, при управлении вам покажется, что он слишком высоко или наоборот – низко. Так вы сможете ничего не забыть и подобрать оптимальное расположение.

Подсмотрите идею! Обратите внимание на расположение выключателей в квартирах ваших знакомых и близких. Удобно ли вам ими пользоваться? Возможно, так вы сможете избежать ошибки в вашем ремонте, заранее поменяв выбранное положение
Выключатели не устанавливаются вблизи источников тепла и воды (батарей, раковин). Эти ограничения установлены в целях безопасности. Также не располагайте устройства слишком низко или слишком высоко.
Оптимальная высота – на уровне опущенной вниз руки. Если установить слишком низко, то вам придётся приседать или наклоняться. При высоком расположении руку необходимо поднимать или сгибать, что тоже доставляет, хоть и небольшие, но неудобства.
Похожие материалы на сайте:
- Как закрепить выпадающую розетку
- Высота розетки для вытяжки
- Розетка и выключатель в одном блоке
- Количество розеток на кухне
Высота от пола до подоконника в жилых помещениях есть ли стандарт

Большинство людей, занятых самостоятельным проектированием или строительством дачи или загородного дома, часто задаются вопросом: какова высота подоконника над полом? Вопрос далеко не так прост, как может показаться на первый взгляд, и определению «на глазок» он не подлежит.
Дело в том, что подоконник не бывает установлен сам по себе, это — часть оконного блока, и высота его установки автоматически обозначает высоту нижнего среза окна. Поэтому следует рассматривать весь оконный блок в целом, учитывая его высоту и назначение.
к содержанию
Требования СНиП
Прежде всего, необходимо знать, что требованиями российских СНИП стандарт высоты подоконника не регламентируется. Тем не менее, в этом вопросе принято ориентироваться на требования советских СНИП, в которых данная величина определена вполне конкретным образом, во всяком случае имеется минимальное значение.

За основу расчета принимается размер радиаторов отопления, высота которых составляет 50 см.
Таким образом, минимальная высота установки подоконника составит 68 см, но на практике подоконник располагается несколько выше, порядка 75-80 см.
к содержанию
В жилых комнатах
Для жилых комнат стандартная высота подоконника лежит в пределах 70-80 см. Эта величина соответствует всем техническим требованиям (расположение радиаторов), а также обеспечивает достаточную освещенность помещения и не вызывает ощущения непропорциональности.
Высота подоконника — величина, определяемая многими факторами. Здесь учтены:
Эстетика.
Слишком высокая (или низкая) установка окна смотрится негармонично и не согласуется с пропорциями помещения или с предметами мебели.
Психология.
Неверно выбранная высота может вызывать чувство отсутствия комфорта, особенно при слишком низкой установке.
Безопасность.
Низкий подоконник может стать причиной выпадения из окна, особенно при наличии в доме маленьких детей или инвалидов, людей с нарушениями зрения.
Таким образом, произвольно выбранная высота установки может оказаться недопустимой по тем или иным причинам, поэтому при выборе высоты установки необходимо учесть все факторы.
к содержанию
В подсобных помещениях
Для подсобных мест выбор высоты подоконника диктуется назначением помещения и размерами мебели, используемой в ней. Окна в таких случаях делаются лишь для обеспечения освещенности, эстетические соображения если и присутствуют, то лишь в последнюю очередь.
В кухне высота подоконника не должна быть меньше, чем у используемой мебели.
Для ванных комнат или туалетов высота подоконника обычно

Сами окна в нежилых помещениях имеют меньшие размеры, поскольку назначение их — обеспечить возможность проветривания и доступ солнечного света в дневное время.
к содержанию
На мансарде
Мансарда располагается высоко, что выдвигает свои требования к обустройству окон:
Безопасность.
Зачастую мансардные окна открываются наружу, и слишком низкое расположение создаст угрозу выпадения из окна.
Высота аттиковой стены.
Установка окна ниже линии аттиковой стены повлияет на внешний облик дома.
Обзор.
Слишком высокий подоконник помешает увидеть, что происходит непосредственно под окном. Кроме того, желательно, чтобы высота нижнего уровня обеспечивала обзор улицы из окна из положения сидя, что невозможно при слишком высоком подоконнике.
Исходя из этих обстоятельств, высота подоконника на мансарде обычно колеблется в пределах 90-110 см, такая установка позволяет пользоваться окном, ухаживать за ним и обеспечивает удовлетворительный обзор при нормальной высоте аттиковой стены (90 см).

В заключение следует напомнить, что приведенные величины — не догма и не имеют силу закона. Они выведены путем многолетней практики строительства и использования жилья, учитывают технические требования и призваны способствовать максимальному комфорту и безопасности жилья.
Как установить подоконник своими руками узнайте из видео:
На каком расстоянии от пола вешают выключатели и розетки
Высота установки строго не регламентируется в документах, правила устройства электроустановок дают лишь рекомендации по расположению. Придерживаться их или нет, решает хозяин квартиры.
Нормы ПУЭ рекомендуют устанавливать выключатели на расстоянии не более 1,7 м от пола. Это совпадает с советскими стандартами. В настоящее время расположение точек питания определяется удобством и дизайном помещения. Предполагается, что высота розеток может находиться на расстоянии 30-40 см от пола, а выключателей – от 80 до 100 см.
В кухне и ванной
Особенность ванной комнаты – это повышенная влажность. Высоту точек питания следует выбирать, опираясь на требования ГОСТи ПУЭ. Выключатель должен быть вынесен за пределы ванной. Электророзетки должны располагаться не ближе чем на 60 см от источника воды. Рекомендуемая высота для бытовых приборов:
- для бойлера 1,5 м;
- для фена, бритвы – 1 м;
- для стиральной машины не ниже метра.
Размещать изделия ниже 15 см нежелательно. Ванная комната – это помещение, в котором на полу периодически может появляться вода. Она может попасть в розетку и стать угрозой для жизни.
На кухне электротехнические изделия должны располагаться на расстоянии 60 см от газопроводов и источников воды. Учитывая стандарты высоты мебели, электророзетки можно ставить на трех уровнях:
- 10-15 см от пола – точки питания плиты, холодильника, посудомоечной и стиральной машины;
- 110-130 см – для чайника, микроволновой печи, мультиварки и других бытовых приборов, которые размещены на рабочей поверхности;
- 200-250 см – для вытяжки и подсветки.
Размеры выбраны с учетом удобства доступа к розеткам.
В детской комнате и спальне
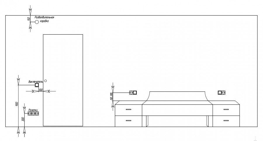
В спальне точек питания традиционно устанавливается меньше. Выключатель от основной люстры устанавливается около двери со стороны ручки на высоте 90 см. Около прикроватных тумб традиционно делаются по одной электророзетке с каждой стороны на высоте около 70 см. Дополнительная розетка на 2-3 разъема ставится около рабочего стола на уровне 30 см от пола. Если в спальне есть телевизор, электророзетку лучше скрыть за его корпусом.
В детской комнате выключатель должен устанавливаться на такой высоте, чтобы ребенок мог до него дотянуться, 70-90 см будут оптимальны. Розетку желательно оснащенную защитными шторками, следует поставить около кроватки и рядом с письменным столом на той же высоте, что и в спальне.
В коридоре и гостиной
В гостиной устанавливают несколько электророзеток за телевизором на уровне 1 м от пола. Дополнительно делают точки питания для светильников, музыкальных систем на комфортной высоте. Выключатель устанавливается один, около входной двери со стороны ручки. Для помещений с многоуровневым сложным освещением можно поставить выключатели на несколько клавиш.
Коридор оборудуют одним выключателем рядом с входной дверью. Розетку также делают одну рядом с бра на комфортной высоте.
Выбор места для точек электропитания
Кухня
Не существует строгих ограничений, какой должна быть высота розеток от пола на кухне и в любой другой комнате, их размещение следует планировать согласно удобству использования, практичности и вышеперечисленных правил по монтажу. Стандартная кухонная мебель сформировала среди потребителей градацию, где высота установки розеток от пола делится на три уровня.
- Первый уровень расположен в 10–15 см от напольного покрытия, предназначен для подключения посудомоечной машины, электроплиты, холодильника. Такая бытовая техника не требует частого отключения, подключения к сети, после установки кухонного гарнитура доступ к разъемам будет только снизу.
- Второй уровень – это 110–130 см от плинтуса. Предназначен для подключения чайника, блендера, мультиварки и другой мелкой техники, которая будет использоваться при приготовлении пищи.
- Третий уровень – 200–250 см. На этом уровне подключают вытяжку, подсветку. Чаще разъемы располагают над верхними кухонными шкафами, тогда они незаметны снизу.
Ванная комната

В ванной комнате повышенная влажность, поэтому установка элементов питания должна происходить через УЗО, иметь степень защиты от влаги не менее IP44. Также целесообразно установить брызгозащитную крышку на пружине.
Ванная комнаты делится на зоны:
- зона максимальной влажности, это ванная и душ, создающие брызги, допустима только установка электроприборов, обеспечивающих функционирование сантехники (мощность до 12 В);
- допускается установка водонагревательных устройств;
- можно подключить бойлеры, светильники, вытяжные вентиляторы , которые включаются с использованием шнура;
- место установки электророзеток с соблюдением правил безопасности.
Чем выше находится розетка, тем безопаснее. Оптимальное расстояние – 60 см от плинтуса. Этой высоты будет достаточно, чтобы предотвратить замыкание во время потопа, если такой случится.
Спальня и гостиная

При ремонте хозяева часто задаются вопросом, на какой высоте ставить розетки в спальне. Один включатель традиционно размещается у входа. Если в комнате будет установлена двуспальная кровать, то для комфортного использования можно расположить электророзетку с выключателем по обе стороны спинки, на расстоянии 70 см от пола. Тогда не возникнет проблем с зарядкой телефона на ночь и включением/выключением основного света или бра.
В гостиной на расстоянии 130 см от пола устанавливают розетки под телевизор. Дальнейшее размещение точек питания зависит от расстановки мебели, наличия техники. Рекомендуется поставить дополнительную розетку, например, под пылесос.
Детская комната

В гостиной достаточно одного выключателя – у входной двери. Если потолок имеет многоуровневое освещение, выбирают выключатели на несколько клавиш. Детская комната
Детская комната – это обычно комбинация спальни и игровой зоны. Появление в продаже защитных крышек на штепсельные разъемы исключает необходимость располагать их как можно выше от детей.
При входе в комнату должна быть возможность включать общее освещение. Электровыключатель размещают на высоте 75–90 см. Но это расстояние можно корректировать, исходя из среднего роста всех членов семьи. Размещать прибор нужно со стороны дверной ручки шкафа, если такой имеется, чтобы предотвратить неудобства в эксплуатации.
Для ночника потребуется точка питания возле кровати. Если малыш еще совсем маленький, возможно, понадобится включить музыкальный мобиль для колыбели.
Школьнику требуется рабочее место, оснащенное достаточным количеством разъемов электросети, чтобы обеспечить подключении всех гаджетов. Оптимальная высота – 15 см от стола.
Кабинет

Обладателям отдельного кабинета потребуется 5–6 разъемов для подключения системного блока, монитора, принтера, аудиоколонок, настольной лампы. Возле книжных полок или кресла необходима точка подключения светильника, чтобы обеспечить комфортное чтение. Высота размещения розеток и выключателей – 1,5–3 м от напольного покрытия. Прихожая
В коридоре достаточно 1–2 электророзеток, рассчитанных на подключение пылесоса или обувной электросушилки. Расположить их можно на расстоянии 15–20 см от пола. Точки освещения предусматривают вблизи от входа. Электросчетчик и стабилизатор напряжения так же часто устанавливают в прихожей. Кроме того, выключатели для кухни, санузла, коробка для телевизионного кабеля, интернета легко впишутся в коридор.
Список источников
- kitchennice.ru
- pauk.top
- elektrika.expert
- elektro.guru
- tehznatok.com
- www.elec.ru
- mr-build.ru
- electricvdome.ru
7 лестниц